FacadeChange Igangsettingstillatelse Leilighetsbygg

Bruks- og fasadeendring med riving i Markens gate 24, Kristiansand

📍 Markens gate 24 , 4611 KRISTIANSAND S

Nøkkelinfo

Sakstype
Fasadeendring
Bygningstype
Leilighetsbygg
Bruksareal
1,151 m²
Kommune
Kristiansand
Fylke
Agder
Gnr / Bnr
150 / 983
Saksnummer
24/10639
Fase
Igangsettingstillatelse

Om byggesaken

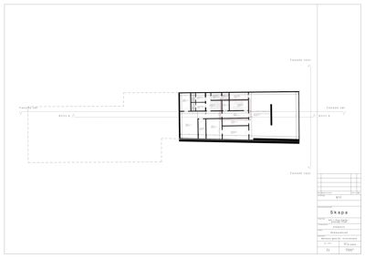
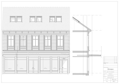
Prosjektet omfatter omfattende endringer i et eksisterende leilighets- og næringsbygg i Markens gate 24, Kristiansand. Det inkluderer fasadeendringer med ny baldakin og flere takvinduer, tilbygg i bakgården med nytt ventilasjonsanlegg på taket, samt riving av eksisterende bakgårdsbygg. Det skjer også bruksendring fra forretning til servering i 1. etasje og kontor i loftsetasje. Bygget har tre etasjer med saltak og flate tak, og fasadene består av mur og tre. Det etableres nye åpninger mot naboeiendommer for sammenslåing av næringslokaler. Prosjektet inkluderer omfattende tekniske installasjoner innen VVS, elektro, ventilasjon, samt miljøsanering og konstruksjonssikkerhet for stål og betong. Det er gitt igangsettingstillatelser for flere deler av tiltaket, og midlertidig brukstillatelse for 2. etasje er innvilget.

Produkter og materialer

Heis Heisinstallasjon

Antall: 1

Eksisterende heis betjener kjeller og 1. etasje, ikke loft og 2. etasje

Heisinstallasjon med begrenset etasjebetjening

Stål Bærekonstruksjoner

🧱 Stål HE 120 bjelker

Eksisterende stålbjelker i baldakin beholdes, nye stålkonstruksjoner i tilbygg

Stålkonstruksjoner for baldakin og tilbygg

Fasade Murfasade

🧱 Mur

Fasade sør i mur med 12 vinduer og 3 dører

Oppgradering og endring av fasade mot sør

VVS Sanitærinstallasjoner

Sanitærinstallasjoner i hele bygget, inkludert vannforsyning og avløp

Oppgradering og nyinstallasjon av sanitær og vann/avløp

Fasade Trefasade

🧱 Tre

Fasade vest og øst i tre med flere vinduer, dører og balkonger

Fasadeendringer og oppgraderinger på trefasader

Betong Plasstøpte betongkonstruksjoner

🧱 Betong

Nye betongkonstruksjoner i tilbygg, inkl. hulltaking i eksisterende brannmur

Betongarbeider for nytt tilbygg i bakgård

VVS Varme- og kuldeinstallasjoner

Varme- og kuldeinstallasjoner i bygget

Oppgradering av varme- og kjøleanlegg

Gulv Membran på våtrom

🧱 Membran

Membranarbeid i våtrom

Vanntetting i våtrom

Tak Saltak med teglstein

🧱 Teglstein

Eksisterende saltak med teglstein, inkludert takopplett

Taktekking og takopplett i forbindelse med tilbygg og fasadeendring

Elektro Brannalarmanlegg og ledesystem

Installasjon av brannalarmanlegg og ledesystem

Brannsikkerhetsinstallasjoner i bygget

Fasade Baldakin

🧱 Stålbjelker HE 120, tre og metallkledning

Antall: 1

Eksisterende bærekonstruksjon beholdes, ny slankere baldakin monteres på eksisterende bæring

Ny baldakin på eksisterende bæresystem over fortau mot Markens gate

Tømrer Trekonstruksjoner

🧱 Tre

Montering av trekonstruksjoner i tilbygg og innvendige arbeider

Tømrerarbeid for tilbygg og innvendige oppgraderinger

Ventilasjon Ventilasjon- og klimainstallasjoner

Nytt ventilasjonsanlegg på tak over tilbygg i bakgård

Ventilasjonsanlegg for ny del av bygget

Grunnarbeid Riving

Antall: 1

Riving av eksisterende bakgårdsbygg og vegg mot naboeiendom

Riving og miljøsanering av bakgårdsbygg

Vinduer Takvinduer

🧱 Tre/aluminium

Antall: 6

Nye takvinduer i sørfasade, ett mer enn opprinnelig godkjent

Nye takvinduer for økt lysinnslipp i 3. etasje

Fasader

Butikk

Sør
Materiale
Tre
Taktype
Saltak
Høyde
6.0 m
Mønehøyde
8.0 m
Vinduer
11
Dører
3
Synlige etasjer
3

Hovedbygg

Sør
Materiale
Mur
Taktype
Saltak
Takmat.
Tegl
Vinduer
12
Dører
3
Balkonger
2
Synlige etasjer
3
Vest
Materiale
Tre
Taktype
Flatt tak
Vinduer
11
Dører
2
Balkonger
2
Synlige etasjer
3
Øst
Materiale
Tre
Taktype
Flatt tak
Vinduer
4
Dører
1
Synlige etasjer
2

Hendelser

22.04.2026 2024010639-19 Markens gate 24 - 150/983, igangsettingstillatelse 2 for deler av tiltaket.
20.04.2026 2024010639-18 Markens 24 Søknad om igangsettingstillatelse 150/983
24.11.2025 2024010639-17 Markens gate 24 - 150/983, midlertidig bruks-tillatelse for 2. etasje.
24.11.2025 2024010639-15 Markens 24 Søknad om midlertidig brukstillatelse 150/983
30.09.2025 2024010639-14 Markens gate 24 - 150/983, endring av tillatelse for fasade mot Markens gaten.
29.09.2025 2024010639-12 Markens gate 24 150/983/0/0, tilbakemelding fra søker mht. utforming av baldakin mot Markens gate
02.09.2025 2024010639-10 Markens gate 24 Søknad om endring av gitt tillatelse eller godkjenning 150/983
12.06.2025 2024010639-9 Markens gate 24 -150/983, igangsettingstillatelse for deler av tiltaket.
11.06.2025 2024010639-8 Markens gate 24 - 150/983 - søknad om igangsettingstillatelse
02.12.2024 2024010639-7 Markens gate 24 150/983/0/0, Vi innvilger søknaden om samtykke - kopi av brev til Klementin K20 AS