FacadeChange UnderBehandling Leilighetsbygg

Ettergodkjenning av underbygg, fasade- og bruksendring i Undelstadveien 84D

📍 Undelstadveien 84D , 1387 ASKER

Nøkkelinfo

Sakstype
Fasadeendring
Bygningstype
Leilighetsbygg
Bruksareal
416 m²
Kommune
Asker
Fylke
Akershus
Gnr / Bnr
49 / 53
Saksnummer
26/930
Fase
Under behandling

Om byggesaken

Eksisterende leilighetsbygg i Undelstadveien 84D gjennomgår ettergodkjenning av et etablert underbygg i kjeller, fasadeendringer og bruksendring. Underbygget er en integrert del av byggets opprinnelige konstruksjon fra 1983, med innvendig etterisolering og oppgradering. Fasadeendringene omfatter utvidelse av vinduer og etablering av nye lysgraver på vestfasaden for å gi bedre lysforhold i kjelleretasjen. Bruksendringen innebærer omgjøring av disponibelt areal og bod til to nye soverom og et bad, med nye rømningsvinduer som tilfredsstiller funksjonskrav. Romhøyden i underbygget er 2,2 meter, noe under dagens krav, men innenfor unntak for eldre bygg. Tiltaket inkluderer dispensasjonssøknad for byggegrense mot vei og unntak fra enkelte TEK17-krav. Terreng og uteområder forblir i hovedsak uendret, og tiltaket vurderes som funksjonelt og estetisk tilpasset eksisterende bebyggelse.

Produkter og materialer

Vinduer Rømningsvinduer i kjeller

Antall: 2

Nye vinduer 1,0 x 0,8 m, åpningsbare, tilfredsstiller krav til rømningsvei og ventilasjon

Utvidelse av eksisterende vinduer og etablering av nye vinduer i kjeller for soverom og bad

Fasade Lysgraver

Antall: 2

Etablering av ny lysgrav og utvidelse av eksisterende lysgrav på vestfasade, dybde under 0,5 m

Fasadeendring med nye og utvidede lysgraver for bedre dagslys i kjeller

Betong Underbygg

🧱 Betong

Eksisterende underbygg etablert samtidig med tilbygget i 1983, integrert i konstruksjonen

Underbygg i kjeller som skal godkjennes i ettertid, del av bærekonstruksjon

Grunnarbeid Terrengtilpasning for lysgraver

Antall: 2

Mindre terrenginngrep under 0,5 m dybde for etablering og utvidelse av lysgraver

Grunnarbeid knyttet til lysgraver på vestfasade

Gulv Lyddempende gulvbelegg

Lyddempende gulvbelegg i kjeller for tilfredsstillende lydforhold

Gulvbelegg for lydisolering i kjellerrom

Isolasjon Innvendig etterisolering

Innvendig etterisolering av underbygg for å tilfredsstille energikrav i TEK17

Isolasjon av kjeller underbygg for bedre energiytelse

Tømrer Innvendige vegger og himling

🧱 Gipsplater

Ekstra gipsplater i vegger og himling for lydisolering og etterisolering

Innvendig oppgradering av vegger og himling i kjeller

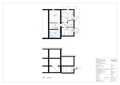
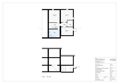
Plantegning

Leilighet 416.0 m²

Etasje 0 416.0 m²

Rom Areal Vinduer Dører
Kjeller A KIBLER A 104.0 m² 1 1
Kjeller B KIBLER B 104.0 m² 1 2
Kjeller C KIBLER C 104.0 m² 1 2
Kjeller D KIBLER D 104.0 m² 1 1
Disponent DISP 4.0 m² 0 0

Enebolig 0.0 m²

Etasje 1 0.0 m²

Rom Areal Vinduer Dører
Stue 101 0.0 m² 1 1
Kjøkken 102 0.0 m² 0 1
Hall 103 0.0 m² 0 1
Trapp 104 0.0 m² 0 0

Fasader

Enebolig

Nord
Materiale
Tre
Taktype
Flatt tak
Vinduer
4
Dører
1
Synlige etasjer
2
Sør
Materiale
Tre
Taktype
Flatt tak
Vinduer
2
Dører
0
Synlige etasjer
2
Vest
Materiale
Tre
Taktype
Saltak
Vinduer
3
Dører
1
Synlige etasjer
2

Hendelser

09.04.2026 49/53 Undelstadveien 84D - Mottakskontroll
23.03.2026 49/53 Undelstadveien 84D - Søknad om tillatelse i ett trinn - Ettergodkjenning - Underbygg, fasadeendring og bruksendring