NewConstruction Rammetillatelse Leilighetsbygg

Ny lavblokk med 6 leiligheter og garasje i Solheimvegen 10, Molde

📍 23/627 , 6412 MOLDE

Nøkkelinfo

Sakstype
Nybygg
Bygningstype
Leilighetsbygg
Bruksareal
1,018 m²
Boenheter
6
Kommune
Molde
Fylke
Møre og Romsdal
Gnr / Bnr
23 / 627
Saksnummer
24/08089
Fase
Rammetillatelse

Om byggesaken

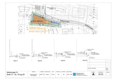
Ny lavblokk boligbygg i tre etasjer med totalt 6 boenheter og underliggende garasje på Solheimvegen 10 i Molde. Bygget har et totalt bruksareal på ca. 1017,5 m², inkludert garasje på 265 m². Bygningen er tilpasset et bratt terreng med terrassering, støttemurer og utearealer som inkluderer private terrasser og en felles takterrasse på ca. 206 m². Bygget har flatt tak og trekledning, og er utstyrt med heis og trapperom. Garasjen er underbygget og fungerer som egen brannseksjon. Det er søkt og innvilget dispensasjoner for byggegrense mot vei, avstandskrav til nabogrense, samt for terrengmurer, internveg og trapper som ligger nærmere nabogrense enn normalt tillatt. Prosjektet inkluderer også tilrettelegging for snøsmelteanlegg og avfallshåndtering. Det er mottatt og behandlet flere nabomerknader, som er besvart av ansvarlig søker og kommunen.

Produkter og materialer

Grunnarbeid Tomtearbeid og terrengbearbeiding

Terrengbearbeiding for å tilpasse bratt tomt, inkludert planering av utearealer og adkomstveg

Grunnarbeider for bygging i bratt terreng

Rekkverk Rekkverk på terrasser og trapper

Rekkverk på terrasser og utvendige trapper iht. forskrift

Sikkerhetsrekkverk for utearealer og trapper

Dører Ytterdører og balkongdører

🧱 Tre eller aluminium

Antall: 18

Ytterdører og dører til terrasser, inkludert inngangsdører og dører til utearealer

Dører for adkomst og utgang til terrasser

Vinduer Fasadevindu

🧱 Trelags glass

Antall: 26

Vinduer i fasader nord, sør, øst og vest, totalt 26 vinduer, 3-lags energiglass antatt

Fasadevinduer for leilighetsbygget i tre etasjer

Trapper Innvendig trapp og utvendig trapp til takterrasse

🧱 Betong/stål/trapp i terreng

Antall: 2

Innvendig trapp i bygget og utvendig trapp fra 2. etasje til takterrasse, bredde 1,3 m

Trapper for intern kommunikasjon og adkomst til takterrasse

VVS Snøsmelteanlegg

Snøsmelteanlegg planlagt for internveg for å redusere brøytebehov

Teknisk anlegg for snøsmelting på internveg

Terrasse Private terrasser og felles takterrasse

Antall: 7

6 private terrasser mellom 14,5 og 43,4 m², samt felles takterrasse på ca. 206 m²

Uteoppholdsarealer for beboere

Kjøkken Kjøkkeninnredning

Antall: 6

Kjøkkeninnredning til hver boenhet

Innredning for matlaging i leiligheter

Bad Baderomsinnredning og sanitærutstyr

Antall: 12

Bad i hver boenhet, inkludert sanitærutstyr og fliser

Baderomsutstyr for leiligheter

Maling Utvendig og innvendig maling

Maling av trekledning og innvendige overflater

Overflatebehandling av fasade og innvendige rom

Tak Flatt tak

🧱 Takmembran

Antall: 1

Flatt tak på lavblokk med takterrasse på ca. 206 m²

Tak med takterrasse og membran

Garasjeport Garasjeport til underbygget garasje

Antall: 1

Garasjeport til garasje på 265 m² i underetasjen

Garasjeport for innkjøring til underbygget garasje

Betong Fundamenter, støttemurer og terrengmurer

🧱 Betong

Terrengmurer inntil 1 meter høyde, støttemurer langs internveg og utearealer

Betongmurer for terrassering og sikring av utearealer og internveg

Elektro Heis

Antall: 2

Heis i bygget, 4,1 m² per heis, for tilgjengelighet mellom etasjer

Heiser for beboere i lavblokk

Fasade Trekledning

🧱 Tre

Trekledning på fasader øst og vest

Fasadebekledning i tre

Gulv Gulvbelegg og parkett

Gulvbelegg i fellesarealer og parkett i leiligheter

Innvendige gulvflater

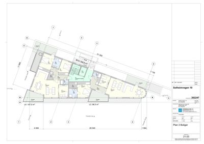
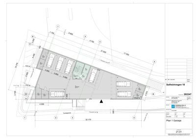
Plantegning

Garasje 265.0 m²

Etasje 1 265.0 m²

Rom Areal Vinduer Dører
GARASJE 001 255.0 m² 0 0
Sluse 002 2.7 m² 0 1
Heis 003 4.1 m² 0 0
Trapperom 004 12.2 m² 0 1
Bod 5 005 5.8 m² 0 1
Bod 6 006 5.0 m² 0 1
Bod 1 007 5.5 m² 0 1
Bod 2 008 5.5 m² 0 1
Bod 3 009 5.2 m² 0 1
Bod 4 010 5.3 m² 0 1

Enebolig 348.8 m²

Etasje 1 348.8 m²

Rom Areal Vinduer Dører
Opphold 401 43.3 m² 1 1
Sov/Stue 402 9.7 m² 1 1
Bad 403 3.0 m² 0 1
Entre 404 11.6 m² 0 2
Sov 405 10.3 m² 1 1
Bod 406 3.1 m² 0 1
Sov 407 15.6 m² 1 1
Bad 408 8.1 m² 0 1
Opphold 301 44.2 m² 1 1
Sov/stue 302 9.2 m² 1 1
Heis 303 4.1 m² 0 0
Entre 304 11.6 m² 0 2
Soverom 305 15.8 m² 1 1
Bad 306 8.0 m² 0 1
Bod 307 4.1 m² 0 1
Trapperom/Inngang 200 22.2 m² 0 1
Avfall 340 0.0 m² 0 0
Opphold 101 38.9 m² 1 1
Sov/stue 102 11.4 m² 1 1
Heis 103 4.1 m² 0 0
Teknisk rom 104 2.3 m² 0 0
Bad 105 4.8 m² 0 1
Entre 106 6.6 m² 0 1
Trapperom/Inngang 107 19.0 m² 0 1
Sov 108 15.9 m² 1 1
Bad 109 8.0 m² 0 1
Bod 110 4.1 m² 0 1
Sov/stue 111 9.7 m² 1 1
Bad 112 3.0 m² 0 1
Entre 113 5.8 m² 0 1
Bod 114 3.1 m² 0 1
Gang/TV-rom 115 16.8 m² 0 1
Bad 116 6.0 m² 0 1
Sov 117 25.1 m² 1 1
Terrasse L1 118 43.4 m² 0 0
Terrasse L2 119 38.2 m² 0 0
Opphold L601 45.3 m² 1 2
Sov/Stue L602 9.7 m² 1 1
Bad L603 8.0 m² 0 1
Entre L604 11.6 m² 0 2
Sov L605 10.3 m² 1 1
Bad L606 8.1 m² 0 1
Sov L607 15.8 m² 1 1
Bod L608 3.1 m² 0 1
Terrasse Terrasse 14.7 m² 0 0
Opphold L501 44.2 m² 1 1
Sov L502 9.2 m² 1 1
Bad L503 3.0 m² 0 1
Entre L504 11.6 m² 0 2
Soverom L505 15.8 m² 1 1
Bad L506 8.0 m² 0 1
Bod L507 4.1 m² 0 1
Heis L508 4.1 m² 0 0
Trapperom/Inngang L509 22.2 m² 0 1

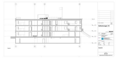
Fasader

Enebolig

Nord
Høyde
7.9 m
Mønehøyde
29.1 m
Vinduer
6
Dører
1
Synlige etasjer
2
Sør
Høyde
7.9 m
Mønehøyde
29.1 m
Vinduer
4
Dører
1
Synlige etasjer
2
Vest
Materiale
Tre
Taktype
Flatt tak
Høyde
7.9 m
Vinduer
4
Dører
1
Synlige etasjer
2
Øst
Materiale
Tre
Taktype
Flatt tak
Høyde
7.9 m
Vinduer
4
Dører
1
Synlige etasjer
2

Hendelser

14.04.2026 24/08089-15 23/627/0/0 Solheimvegen, rammetillatelse og dispensasjon- lavblokk
14.04.2026 24/08089-16 Forvaltningsavdelingen har ingen merknader til tiltaket
09.04.2026 24/08089-13 23/627/0/0 Solheimvegen 10, ytterligere redegjørelse nabomerknader
09.09.2024 24/08089-10 23/627/0/0 Solheimvegen 10, godkjent rammesøknad om oppføring av boligbygg og dispensasjon fra byggegrense mot veg
21.08.2024 24/08089-9 23/627/0/0 Solheimvegen 10, oppføring av boligbygg - svar på foreløpig tilbakemelding
20.08.2024 24/08089-8 23/627 Solheimvegen, foreløpig tilbakemelding på søknad om oppføring av boligbygg
19.08.2024 24/08089-7 Uttalelse forvaltning - Solheimvegen 10
05.07.2024 24/08089-1 23/627/0/0 Solheimvegen 10, oppføring av boligbygg - søknad om rammetillatelse