NewConstruction Soeknad Leilighetsbygg

Ny blokkbebyggelse med garasjekjeller i Bergerveien 12, Asker

📍 Bergerveien 12

Nøkkelinfo

Sakstype
Nybygg
Bygningstype
Leilighetsbygg
Bruksareal
14,100 m²
Boenheter
190
Kommune
Asker
Fylke
Akershus
Gnr / Bnr
32 / 279
Saksnummer
25/3624
Fase
Søknad

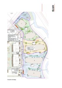
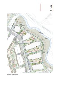
Om byggesaken

Prosjektet omfatter oppføring av fem boligblokker i 4-8 etasjer med til sammen ca. 190 leiligheter, fordelt på et bruttoareal på ca. 14 100 m² og et bruksareal på ca. 13 000 m². Byggene er planlagt med fasader hovedsakelig i rødbrun tegl med variasjoner i forband og detaljering, samt et særpreget punkthus med metallbasert kledning. Under boligblokkene etableres en underjordisk parkeringskjeller med 70-80 parkeringsplasser og sykkelparkering. Prosjektet inkluderer også opparbeidelse av tilhørende uteområder som turvei langs Neselva (TV4), torg (T2), parkareal (GP2) og gatetun (GC1). Turveien skal i hovedsak beholdes i eksisterende trasé for å minimere inngrep i kantsonen, noe som krever dispensasjon fra reguleringsplanen. Området ligger innenfor hensynssoner for ras- og skredfare, og det er utført geotekniske vurderinger og grunnforsterkning. Det planlegges også midlertidige renovasjonsløsninger og trinnvis ferdigstillelse av uteområder i takt med byggingen. Prosjektet er under planlegging med rammesøknad planlagt i juni 2026.

Produkter og materialer

Grunnarbeid Terrengtilpasning og overvannshåndtering

Opparbeidelse av turvei TV4 med gruset dekke 2m bredde, overvannshåndtering med åpne renner, vegeterte fordrøyningsarealer og grøfter, erosjonssikring ved elvebredden

Terrengarbeid og overvannshåndtering i uteområder og langs turvei

VVS Ventilasjon og balansert mekanisk ventilasjon

Ventilasjonssystemer for leiligheter, spesielt for leiligheter med vinduer mot støyutsatt side

Ventilasjon for å sikre inneklima og støydemping

Tømrer Innvendige arbeider

Innvendige konstruksjoner og overflater i boligene, inkludert balkonger og inngangspartier

Tømrerarbeid for boligblokkene

Dører Ytterdør

Antall: 5

Ytterdører i boligbygg, 1 per bygg

Ytterdører til boligblokkene

Vinduer Fasadevindu

Antall: 52

Vinduer fordelt på 5 bygg, antall fra fasadeanalyse: Hus 5 (12), Hus 6 (10), Hus 7 (11), Hus 8 (10), Hus 9 (9)

Fasadevinduer i boligblokkene, antall og plassering iht. fasadetegninger

Tak Flatt tak med takterrasse

Antall: 5

Takterrasser på boligbygg, del av minste uteoppholdsareal (MUA)

Felles og private takterrasser som del av uteoppholdsareal

Garasjeport Port til underjordisk parkeringskjeller

Antall: 1

Port og dør mellom parkeringskjeller C2 og C1, ca. 70-80 parkeringsplasser i kjeller

Adkomst til underjordisk parkeringsanlegg

Fasade Teglfasade

🧱 Rødbrun tegl med variasjon i forband og relieff

Antall: 5

Fasader med rødbrun tegl, variasjon i forband og struktur, horisontale bånd, detaljering med hjørnemotiver og inntrukne balkonger

Fasader på boligblokkene hovedsakelig i rødbrun tegl med variasjon i farge og detaljering for å unngå monotoni

Terrasse Private og felles takterrasser

Takterrasser som inngår i minste uteoppholdsareal, med god kvalitet og tilgjengelighet

Uteoppholdsarealer på tak

Maling Overflatebehandling balkongrekkverk

🧱 RAL 9003 hvit

Maling av balkongrekkverk på Hus 9 i hvit RAL 9003

Overflatebehandling for balkongrekkverk

Fasade Metallplater fasade

🧱 Metallplater (sink eller lignende) med kvalitetsfinish

Antall: 1

Hus 9 med metallbasert kledning, sokkel i betong, hvite åpne rekkverk, fargealternativer RAL 3012/3009 eller RAL 6011

Særpreget punkthus med metallplater og betongsokkel, med fokus på robusthet og kvalitet

Grunnarbeid Kalksementstabilisering

🧱 Kalksementpeler

Grunnforsterkning langs Neselva for å sikre mot kvikkleireskred, utført og planlagt supplerende tiltak

Grunnforsterkning for å sikre stabilitet i kvikkleiresone

Balkong Balkong med rekkverk

Antall: 19

Balkonger med varierende rekkverkstyper, inkludert tette/perforerte og åpne vertikale spiler, hvite rekkverk på Hus 9

Balkonger til leilighetene med skjerming og variasjon i materialbruk

Elektro Belysning uteområder og balkonger

Belysning langs turvei og uteområder, med fokus på trygghet og estetikk

Utendørs belysning for uteområder og balkonger

Annet Renovasjonsteknisk løsning

Permanent og midlertidig renovasjonsløsning med containere og tilpasset adkomst for renovasjonsbil klasse L

Renovasjonssystem for avfallshåndtering i boligområdet

Fasader

HUS 5

Ukjent
Materiale
Tegl
Vinduer
12
Dører
1
Balkonger
4
Synlige etasjer
5

HUS 6

Ukjent
Materiale
Tegl
Vinduer
10
Dører
1
Balkonger
3
Synlige etasjer
5

HUS 7

Ukjent
Materiale
Tegl
Vinduer
11
Dører
1
Balkonger
4
Synlige etasjer
5

HUS 8

Ukjent
Materiale
Tegl
Vinduer
10
Dører
1
Balkonger
4
Synlige etasjer
5

HUS 9

Ukjent
Materiale
Tegl
Vinduer
9
Dører
1
Balkonger
4
Synlige etasjer
5

B1

Ukjent
Høyde
23.6 m
Mønehøyde
26.5 m
Vinduer
8
Dører
4
Balkonger
4
Synlige etasjer
7

Hendelser

15.04.2026 32/279 m.fl. Bergerveien 12 - Vestre Billingstad felt C2 - Kommentarer til referat
18.03.2026 32/279 Bergerveien 12 - Referat fra møte 2 - oppfølging etter forhåndskonferanse vedr. fasader, TV4 og GP2
06.03.2026 32/279 m.fl. Bergerveien 12 - Vestre Billingstad Felt C2 - Oppfølging forhåndskonferanse - Dokumenter for møte 2 - Fasadestudier
06.03.2026 32/279 m.fl. Bergerveien 12 Felt C2 - Oppfølging etter forhåndskonferanse - Fasader, o_TV4 og f_GP2
27.12.2025 32/279 m.fl. Bergerveien 12 Felt C2 - E-post - Svar til søker - tilbakemelding på referat fra forhåndskonferanse
08.12.2025 32/279 m.fl. Bergerveien 12 Felt C2 - Tilbakemelding på referat fra forhåndskonferanse
20.11.2025 32/279, 32/104, 32/258 Bergerveien 12 - Felt C2 - Referat fra forhåndskonferanse vedr. ny blokkbebyggelse med garasjekjeller på felt C2, opparbeidelse torg T2, turvei TV4 og parkareal GP2
07.11.2025 32/279 m.fl. Bergerveien 12 Felt C2 - E-postsvar - Bestilling av forhåndskonferanse - Søknad om rammetillatelse for C2
31.10.2025 32/279 m.fl. Bergerveien 12 Felt C2 - Purring på forhåndskonferanse
23.10.2025 32/279 m.fl. Bergerveien 12 Felt C2 - Bestilling av forhåndskonferanse - Søknad om rammetillatelse for C2