Rendering
3D-visualisering (rendering) av et hus med fargekonsept og detaljerte annotasjoner om materialer og farger.
1 / 39
NewConstruction
Unknown
Leilighetsbygg
Oppføring av boligblokk 8 med leiligheter
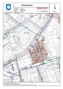
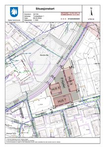
📍 Bergerveien 12
Nøkkelinfo
- Sakstype
- Nybygg
- Bygningstype
- Leilighetsbygg
- Kommune
- Asker
- Fylke
- Akershus
- Gnr / Bnr
- 32 / 104
- Saksnummer
- 24/299
- Fase
- Unknown
Om byggesaken
Saken gjelder igangsettingstillatelse for resterende arbeider, inkludert utomhusarbeider, ved oppføring av boligblokk 8 i Vestre Billingstad felt B9.
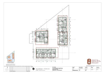
Plantegning
Bergerløkka BT6 325.3 m²
Etasje 2 325.3 m²
| Rom | Areal | Vinduer | Dører |
|---|---|---|---|
| Trapp 8-2 | 18.4 m² | 0 | 0 |
| Entré 8-1 | 11.4 m² | 0 | 1 |
| Entré 8-3 | 13.7 m² | 0 | 1 |
| Balkong 8-4 | 4.9 m² | 0 | 1 |
| Balkong 8-5 | 11.9 m² | 0 | 1 |
| Balkong 8-6 | 11.9 m² | 0 | 1 |
| Balkong 8-7 | 11.9 m² | 0 | 1 |
| Stue/Kjøkken 8-8 | 33.8 m² | 2 | 1 |
| Stue/Kjøkken 8-9 | 36.4 m² | 2 | 1 |
| Stue/Kjøkken 8-10 | 37.0 m² | 2 | 1 |
| Sov 1 8-11 | 14.8 m² | 1 | 1 |
| Sov 1 8-12 | 12.0 m² | 1 | 1 |
| Sov 1 8-13 | 14.0 m² | 1 | 1 |
| Sov 2 8-14 | 7.8 m² | 1 | 1 |
| Sov 3 8-15 | 8.4 m² | 1 | 1 |
| Sov 3 8-16 | 8.1 m² | 1 | 1 |
| Sov 3 8-17 | 7.9 m² | 1 | 1 |
| Sov 2 8-18 | 7.9 m² | 1 | 1 |
| Bod 8-19 | 2.5 m² | 1 | 1 |
| Bod 8-20 | 3.1 m² | 1 | 1 |
| Bod 8-21 | 3.0 m² | 1 | 1 |
| Bad 8-22 | 5.9 m² | 0 | 1 |
| Bad 8-23 | 6.4 m² | 0 | 1 |
| Bad 8-24 | 5.9 m² | 0 | 1 |
| Wc 8-25 | 2.0 m² | 0 | 1 |
| Bad 8-26 | 3.6 m² | 0 | 1 |
Hus 8 0.0 m²
Etasje 0 0.0 m²
| Rom | Areal | Vinduer | Dører |
|---|
Etasje 1 0.0 m²
| Rom | Areal | Vinduer | Dører |
|---|
Etasje 2 0.0 m²
| Rom | Areal | Vinduer | Dører |
|---|
Etasje 3 0.0 m²
| Rom | Areal | Vinduer | Dører |
|---|
Etasje 4 0.0 m²
| Rom | Areal | Vinduer | Dører |
|---|
Leilighetsbygg 0.0 m²
Etasje 0 0.0 m²
| Rom | Areal | Vinduer | Dører |
|---|---|---|---|
| P-plasser 001 | 0.0 m² | 0 | 0 |
| Boder 002 | 0.0 m² | 0 | 0 |
| Sykler 003 | 0.0 m² | 0 | 0 |
Etasje 1 0.0 m²
| Rom | Areal | Vinduer | Dører |
|---|---|---|---|
| 2-roms 101 | 0.0 m² | 0 | 0 |
| 3-roms 102 | 0.0 m² | 0 | 0 |
| 4/5-roms 103 | 0.0 m² | 0 | 0 |
| Sov 1 104 | 20.8 m² | 1 | 1 |
| Sov 2 105 | 8.6 m² | 1 | 1 |
| Sov 3 106 | 8.1 m² | 1 | 1 |
| Bod 107 | 3.1 m² | 1 | 1 |
| Terrasse 108 | 4.9 m² | 0 | 1 |
| Terrasse 109 | 22.4 m² | 0 | 1 |
| Omkledning 110 | 5.1 m² | 0 | 1 |
| Bad 2 111 | 5.5 m² | 0 | 1 |
| Trapp 112 | 28.7 m² | 0 | 0 |
| Terrasse 8-0101 | 47.0 m² | 0 | 0 |
| Terrasse 8-0102 | 98.9 m² | 0 | 0 |
| Terrasse 8-0103 | 114.4 m² | 0 | 0 |
| Entré 113 | 17.1 m² | 0 | 1 |
| Bad 114 | 5.9 m² | 0 | 1 |
| Sov 3 115 | 8.1 m² | 1 | 1 |
| Sov 2 116 | 8.6 m² | 1 | 1 |
| Bod 117 | 3.4 m² | 0 | 1 |
| Trapp 118 | 28.5 m² | 0 | 0 |
| Bad 2 119 | 5.5 m² | 0 | 1 |
| Omkledning 120 | 5.1 m² | 0 | 1 |
Etasje 2 0.0 m²
| Rom | Areal | Vinduer | Dører |
|---|---|---|---|
| 2-roms 201 | 0.0 m² | 0 | 0 |
| 3-roms 202 | 0.0 m² | 0 | 0 |
| 4/5-roms 203 | 0.0 m² | 0 | 0 |
| Stue/Kjøkken L08.2.1 | 37.0 m² | 1 | 1 |
| Stue/Kjøkken L08.2.2 | 36.4 m² | 1 | 1 |
| Stue/Kjøkken L08.2.3 | 33.8 m² | 1 | 1 |
| Balkong Balkong | 11.9 m² | 0 | 1 |
| Soverom Sov 1 | 14.0 m² | 1 | 1 |
| Soverom Sov 2 | 7.9 m² | 1 | 1 |
| Soverom Sov 3 | 7.9 m² | 1 | 1 |
| Bad Bad 1 | 6.4 m² | 0 | 1 |
| Bad Bad 2 | 3.6 m² | 0 | 1 |
| Bad Bad | 5.9 m² | 0 | 1 |
| WC Wc | 1.9 m² | 0 | 1 |
| Entré Entré | 13.7 m² | 0 | 1 |
| Bod Bod | 2.6 m² | 0 | 1 |
| Trapp Trapp | 18.2 m² | 0 | 0 |
Etasje 3 0.0 m²
| Rom | Areal | Vinduer | Dører |
|---|---|---|---|
| 2-roms 301 | 0.0 m² | 0 | 0 |
| 3-roms 302 | 0.0 m² | 0 | 0 |
| 4/5-roms 303 | 0.0 m² | 0 | 0 |
Etasje 4 0.0 m²
| Rom | Areal | Vinduer | Dører |
|---|---|---|---|
| 2-roms 401 | 0.0 m² | 0 | 0 |
| 3-roms 402 | 0.0 m² | 0 | 0 |
| 4/5-roms 403 | 0.0 m² | 0 | 0 |
| Trapp 9A-4 | 17.9 m² | 0 | 1 |
| Soverom Sov 1 | 12.3 m² | 1 | 1 |
| Soverom Sov 2 | 8.0 m² | 1 | 1 |
| Entré Entré | 8.8 m² | 0 | 1 |
| Bad Bad | 6.3 m² | 0 | 1 |
| Bad Bad 2 | 3.2 m² | 0 | 1 |
| Bod Bod | 4.2 m² | 0 | 1 |
| Stue/Kjøkken Stue/Kjøkken | 54.0 m² | 2 | 1 |
| Balkong Balkong | 11.7 m² | 0 | 1 |
| Soverom Ev. Sov 3 | 13.7 m² | 0 | 1 |
| Stue/Kjøkken 9A-0401 | 55.8 m² | 3 | 2 |
| Stue/Kjøkken 9A-0402 | 54.0 m² | 3 | 2 |
| Entré U01 | 19.4 m² | 0 | 1 |
| Entré U02 | 8.8 m² | 0 | 1 |
| Bad Bad 1 | 7.4 m² | 0 | 1 |
| Bad Bad 3 | 6.3 m² | 0 | 1 |
| Bad Bad 4 | 2.5 m² | 0 | 1 |
| Bod Bod 1 | 3.5 m² | 0 | 1 |
| Bod Bod 2 | 3.9 m² | 0 | 1 |
| Trapp Trapp | 17.9 m² | 0 | 0 |
| Balkong Balkong 1 | 20.3 m² | 0 | 1 |
| Balkong Balkong 2 | 23.4 m² | 0 | 1 |
Etasje 5 0.0 m²
| Rom | Areal | Vinduer | Dører |
|---|---|---|---|
| 2-roms 501 | 0.0 m² | 0 | 0 |
| 3-roms 502 | 0.0 m² | 0 | 0 |
| 4/5-roms 503 | 0.0 m² | 0 | 0 |
Etasje 6 0.0 m²
| Rom | Areal | Vinduer | Dører |
|---|---|---|---|
| 2-roms 601 | 0.0 m² | 0 | 0 |
| 3-roms 602 | 0.0 m² | 0 | 0 |
| 4/5-roms 603 | 0.0 m² | 0 | 0 |
Etasje 7 0.0 m²
| Rom | Areal | Vinduer | Dører |
|---|---|---|---|
| 2-roms 701 | 0.0 m² | 0 | 0 |
| 3-roms 702 | 0.0 m² | 0 | 0 |
| 4/5-roms 703 | 0.0 m² | 0 | 0 |
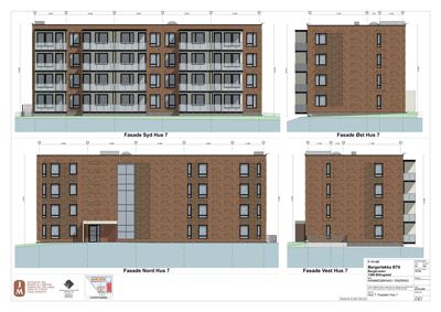
Fasader
HUS 7
Sør
- Materiale
- Mur
- Taktype
- Flatt tak
- Høyde
- 9.9 m
- Vinduer
- 10
- Dører
- 0
- Synlige etasjer
- 3
Nord
- Materiale
- Mur
- Taktype
- Flatt tak
- Høyde
- 9.7 m
- Mønehøyde
- 22.5 m
- Vinduer
- 10
- Dører
- 1
- Synlige etasjer
- 3
Syd
- Materiale
- Mur
- Taktype
- Flatt tak
- Høyde
- 12.3 m
- Mønehøyde
- 22.5 m
- Vinduer
- 24
- Dører
- 0
- Balkonger
- 12
- Synlige etasjer
- 4
Øst
- Materiale
- Mur
- Taktype
- Flatt tak
- Høyde
- 11.9 m
- Mønehøyde
- 22.5 m
- Vinduer
- 8
- Dører
- 0
- Balkonger
- 4
- Synlige etasjer
- 4
Vest
- Materiale
- Mur
- Taktype
- Flatt tak
- Høyde
- 12.5 m
- Mønehøyde
- 22.5 m
- Vinduer
- 8
- Dører
- 0
- Balkonger
- 4
- Synlige etasjer
- 4
Sørvest
- Materiale
- Tegl
- Vinduer
- 12
- Dører
- 0
- Balkonger
- 4
- Synlige etasjer
- 4
Hendelser
14.04.2026
32/305 Vestre Billingstad felt B9 - BT6 - Boligblokk 8 - Igangsettingstillatelse nr. 2 for resterende arbeider - Endringstillatelse
24.03.2026
32/104 Kabelfaret (tidl. Bergerløkka) - Søknad om igangsettingstillatelse 2 - Resterende arbeider, inkludert utomhus
21.07.2025
32/104 Kabelfaret (tidl. Bergerløkka) - Igangsettingstillatelse nr. 1 for komplett råbygg - boligblokk 8
10.07.2025
32/104 Vestre Billingstad felt B9 (tidl. Bergerløkka) - BT6 - Søknad om igangsettingstillatelse
21.06.2024
32/104 Felt B9 - Bergerløkka BT6 - Rammetillatelse for oppføring av boligblokk 8
03.04.2024
32/104 Bergerveien 12 - Bergerløkka BT6 - Felt B9 - Blokk 8 - Dokumentasjon