NewConstruction UnderBehandling Leilighetsbygg

Oppføring av 3 boligblokker med garasje i Blyveien 2, Kristiansand

📍 Blyveien 2

Nøkkelinfo

Sakstype
Nybygg
Bygningstype
Leilighetsbygg
Bruksareal
1,394 m²
Boenheter
146
Kommune
Grimstad
Fylke
Agder
Gnr / Bnr
151 / 124
Saksnummer
23/13945
Fase
Under behandling

Om byggesaken

Prosjektet omfatter oppføring av tre boligblokker med tilhørende garasjeanlegg i Blyveien 2, Kristiansand. Byggene er seks etasjer høye med fasader i tre og omfattende vindus- og dørpartier, inkludert innglassede balkonger. Byggene inneholder flere boenheter med varierte rom som stue/kjøkken, soverom, bad, kontor, garderobe og fellesarealer. Byggene har bærende konstruksjoner i betong, massivtre og stål, med isolerte yttervegger og lyd- og brannsikringstiltak. Det er installert tekniske anlegg som heis, ventilasjon, sanitær, brannalarmanlegg og slukkesystemer. Utomhusanlegg inkluderer parkeringskjeller og landskapsarbeid. Prosjektet er i sluttfasen med midlertidige brukstillatelser gitt for blokk A og B, mens blokk C gjenstår ferdigstillelse.

Produkter og materialer

Tømrer Bærende og ikke-bærende trekonstruksjoner

🧱 Tre

Montering av trekonstruksjoner, massivtrevegger og isolasjon

Trekonstruksjoner i boligblokker

Stål Bærende metallkonstruksjoner

🧱 Stål

Montering av bærende metallkonstruksjoner

Stålkonstruksjoner i bygg

Terrasse Balkonger og terrasser

🧱 Tre og glass

Antall: 20

Balkonger på 8,9-14,1 m², innglassing på 8 balkonger

Utendørs balkonger og terrasser til leiligheter

Tak Taktekking med membran

🧱 Membran og kryssfiner

Taktekking med membran og kryssfiner, isolasjon under

Vanntett taktekking for boligblokker

Dører Ytterdører og balkongdører

🧱 Tre og glass

Antall: 20

Dører i fasader og balkonger, inkludert brann- og rømningsdører

Ytterdører og balkongdører til leiligheter

Vinduer Fasadevindu med støyskjerm i glass

🧱 Glass med støyskjerm montert utenfor veggåpning

Antall: 56

Vinduer i tre med 10 mm avstand fra støyskjerm til kledning, 100 mm overlapp rundt veggåpning

Vinduer for boligblokker med støyskjerm for lydisolering

Kjøkken Kjøkkenmoduler fra Strai Kjøkken

Prinsippplassering av kjøkkenmoduler, kontrollert av Strai Kjøkken før bestilling

Kjøkkeninnredning i leiligheter

Mur Mur-, puss- og flisearbeid i våtrom

Murarbeid, puss og flislegging med fuktsikring i våtrom

Våtromsarbeider i boligblokker

Dører Balkongdører innglasset

🧱 Glass

Antall: 8

Innglassing av 8 balkonger i blokk A

Innglassing av balkonger for værbeskyttelse og isolasjon

Grunnarbeid Graving, sprengning, oppfylling, planering og komprimering

Grunnarbeider for bygg og uteområder

Grunnarbeid for boligprosjektet

Trapper Innvendige trapper og heis

🧱 Betong og metall

Heis med sertifikat nr. 65531, trapper i fellesarealer

Heisinstallasjon og trapper i boligblokker

Elektro Brannalarmanlegg og ledesystem

Installasjon av brannalarmanlegg og ledesystem

Brannsikkerhetsinstallasjoner

Ventilasjon Ventilasjons- og klimaanlegg

Ventilasjonsanlegg med varme-, kjøle- og gjenvinningsfunksjoner

Ventilasjons- og klimainstallasjoner for boligene

Fasade Tre kledning og spiler

🧱 Tre

19 mm kledning, 23 mm spiler, vindsperre og isolasjon i yttervegger

Yttervegger med tre kledning og isolasjon

Gulv Parkett og fliser

🧱 Parkett, fliser

Parkett på gulv, fliser i våtrom

Innvendige gulvflater i leiligheter

VVS Sanitærinstallasjoner og sprinkleranlegg

Innvendige sanitærinstallasjoner, bunnledninger, sprinkleranlegg med permanent vannkobling

Sanitær og brannslukkingssystemer i boligblokker

Betong Plasstøpte betongkonstruksjoner og fundamenter

🧱 Betong

Bærende og ikke-bærende konstruksjoner i betong, fundamentering

Betongkonstruksjoner for bygg og garasje

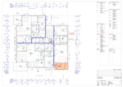
Plantegning

Enebolig 361.4 m²

Etasje 4 237.4 m²

Rom Areal Vinduer Dører
Stue/kj. A-H0401 35.9 m² 1 1
Stue/kj. A-H0402 46.4 m² 1 1
Stue/kj. A-H0403 71.5 m² 1 1
Sov A-H0404 11.7 m² 1 1
Sov A-H0405 11.7 m² 1 1
Sov A-H0406 11.7 m² 1 1
Sov A-H0407 11.7 m² 1 1
Bad A-H0408 8.5 m² 0 1
Bad A-H0409 8.5 m² 0 1
Bad A-H0410 8.5 m² 0 1
WC A-H0411 4.5 m² 0 1
Gard. A-H0412 5.4 m² 0 1
Kontor A-H0413 9.9 m² 1 1
Felles korridor A-H0414 8.1 m² 0 0
Vf. A-H0415 5.4 m² 0 0
Vf. A-H0416 5.4 m² 0 0
Vf. A-H0417 5.4 m² 0 0
Vf. A-H0418 5.4 m² 0 0
Balkong A-H0419 14.1 m² 0 1
Balkong A-H0420 14.1 m² 0 1
Balkong A-H0421 14.1 m² 0 1
Balkong A-H0422 14.1 m² 0 1

Etasje 2 124.0 m²

Rom Areal Vinduer Dører
Stue/kj. A-H0203 31.6 m² 2 1
Stue/kj. A-H0201 36.8 m² 2 1
Stue/kj. A-H0202 40.8 m² 2 1
Sov. A-H0204 12.7 m² 1 1
Sov. A-H0205 11.6 m² 1 1
Sov. A-H0206 19.7 m² 1 1
Kontor A-H0207 9.9 m² 1 1
Gard. A-H0208 5.6 m² 0 1
WC A-H0209 1.5 m² 0 1
Bad A-H0210 7.8 m² 0 1
Bad A-H0211 5.5 m² 0 1
Bad A-H0212 8.5 m² 0 1
Felles korridor A-H0213 5.8 m² 0 0
Vf. A-H0214 2.0 m² 0 0
Vf. A-H0215 2.0 m² 0 0
Vf. A-H0216 2.0 m² 0 0
Vf. A-H0217 2.0 m² 0 0
Balkong A-H0218 14.1 m² 0 1
Balkong A-H0219 10.9 m² 0 1
Balkong A-H0220 12.4 m² 0 1

Fasader

Bygg A

Sør
Materiale
Tre
Høyde
18.9 m
Vinduer
14
Dører
1
Balkonger
1
Synlige etasjer
6
Øst
Materiale
Tre
Høyde
18.9 m
Vinduer
14
Dører
1
Balkonger
1
Synlige etasjer
6
Nord
Materiale
Tre
Høyde
18.9 m
Vinduer
14
Dører
1
Balkonger
1
Synlige etasjer
6
Vest
Materiale
Tre
Høyde
18.9 m
Vinduer
14
Dører
1
Balkonger
1
Synlige etasjer
6

Hendelser

20.04.2026 2023013945-34 Blyveien 2A - 151/124 - Oppføring av 3 boligblokker med tilhørende garasjeanlegg - Endringstillatelse - Innglassing av 8 balkonger
23.03.2026 2023013945-33 Blyveien 2 Søknad om endring av gitt tillatelse eller godkjenning 151/124
27.01.2026 2023013945-32 Blyveien 2 - 151/3025 - Oppføring av 3 boligblokker med tilhørende garasjeanlegg - Midlertidig brukstillatelse til blokk B, med adresse Blyveien 2C
27.01.2026 2023013945-31 Tilbakemelding på spørsmål om status
27.01.2026 2023013945-30 Blyveien 2 151/124/0/0, oppføring av 3 boligblokker med tilhørende garasjeanlegg - spørsmål om status
21.01.2026 2023013945-29 Blyveien 2 Supplering av søknad 151/124
12.01.2026 2023013945-28 Blyveien 2 Søknad om midlertidig brukstillatelse 151/124
03.04.2025 2023013945-27 Blyveien 2 - 151/3022 - Erklæring om ansvarsrett for Murerfirma Richard Kleiven
02.04.2025 2023013945-26 Blyveien 2A - 151/3022 - Oppføring av 3 boligblokker med tilhørende garasjeanlegg - Midlertidig brukstillatelse til blokk A
02.04.2025 2023013945-25 Blyveien 2 Søknad om midlertidig brukstillatelse 151/124