NewConstruction UnderBehandling Leilighetsbygg

Ny bolig med flere boenheter og garasje på Dalen 9, Arendal

📍 Dalen 9 , 4816 KOLBJØRNSVIK

Nøkkelinfo

Sakstype
Nybygg
Bygningstype
Leilighetsbygg
Bruksareal
235 m²
Boenheter
6
Kommune
Arendal
Fylke
Agder
Gnr / Bnr
306 / 104
Saksnummer
2024/28704
Fase
Under behandling

Om byggesaken

Ny bolig på Dalen 9 i Arendal består av en to-etasjes enebolig med totalt 226 m² BRA, inkludert flere boenheter fordelt på to plan med kjøkken, stue, bad, soverom, tekniske rom og bod. Bygget har saltak og trefasade, med tilhørende garasje i tre med saltak og garasjeport. Det planlegges også to terrasser på henholdsvis 20 og 25 m². Eksisterende bolig fra 1933 med tilhørende garasje skal rives. Nybygget skal tilpasses områdets bevaringsverdige karakter, men det er søkt dispensasjon fra enkelte planbestemmelser. Prosjektet inkluderer ny adkomst og parkeringsareal, og det er gjennomført omfattende kulturminnefaglige vurderinger og nabovarsling. Det er også planlagt to tilbygg på ca. 29 m² i forbindelse med renovering av eksisterende bolig.

Produkter og materialer

Tømrer Innvendige vegger og tak

🧱 Panel, plater, treverk

Innvendige vegger med panel og plater, trapper i tre med rekkverk

Innvendige konstruksjoner og overflater i bolig

Garasjeport Garasjeport til trebygget garasje

🧱 Tre eller tilsvarende

Antall: 1

Garasjeport i tre til garasje med saltak

Garasjeport til ny garasje

Elektro Elektrisk anlegg

🧱 El-tavle med skrusikringer og jordfeilbryter

Eldre spredenett, anbefalt gjennomgang av el-fagmann

Elektrisk anlegg i bolig

Bad Våtromsinnredning og overflater

🧱 Våtromstapet, gulvbelegg, dusjkabinett, toalett, servants

Antall: 4

Oppgradering/renovering av bad i bolig, inkl. våtromstapet og sanitærutstyr

Bad i bolig med nødvendig oppgradering

Tak Saltak med takstein

🧱 Enkeltkrum, brent, rød teglstein

Antall: 1

Takvinkel mellom 30 og 40 grader, tradisjonelle materialer

Saltak til bolig og garasje med tradisjonell teglstein i henhold til områdeplan

Grunnarbeid Fundamentering og drenering

Støpte fundamenter, ny drenering og fuktsikring anbefalt

Grunnarbeid for ny bolig og garasje, inkl. fundamentering og drenering

Terrasse Terrasser til bolig

🧱 Tre eller tilsvarende

Antall: 2

Terrasser på 20 m² og 25 m² i tilknytning til bolig

Utendørs terrasser til bolig

Brannvern Branntekniske tiltak

Branntekniske tiltak for å sikre avstand til naboeiendommer og forebygge brannspredning

Branntekniske tiltak i henhold til forskrift og nabosamtykke

Fasade Trekledning

🧱 Stående og liggende trepanel, malt

Dimensjoner og profilering som eksisterende eller opprinnelig, malt i tradisjonelle farger

Utvendig kledning til bolig og garasje i tre, tilpasset bevaringsområde

VVS Vann- og avløpsinstallasjoner

🧱 Kobberrør, soil avløpsrør, varmtvannsbereder 147 liter

Eksisterende VVS med behov for vurdering, ingen synlig svikt

VVS-installasjoner i bolig

Gulv Innvendige gulvbelegg

🧱 Tepper, vinyl, skifer, belegg

Oppgradering av gulvbelegg i bolig, sliping og oljing av trapper

Innvendige gulv i bolig med ulike overflater

Betong Grunnmur og støttemurer

🧱 Støpt betong, sparestein

Eksisterende mur beholdes og ny mur oppføres i tråd med situasjonsplan

Grunnmur og støttemurer for bolig og uteområder

Annet Adkomst og parkering

Ny adkomst med parkeringsareal, avkjøringstillatelse under behandling

Adkomst og parkeringsløsning for bolig og garasje

Vinduer Fasadevindu i tre

🧱 Tre med kittfals, utadslående rammer med sidehengsling og fast midtpost

Antall: 25

Enkle, koplete eller med innvendige varerammer, i tråd med bevaringsbestemmelser

Fasadevinduer til bolig med krav om tradisjonell utførelse i tre

Dører Ytterdører i tre

🧱 Tre, utadslående inngangsdører

Antall: 6

Skal ikke byttes ut med innadslående dører, overflatebehandles

Ytterdører til bolig i tråd med bevaringsbestemmelser

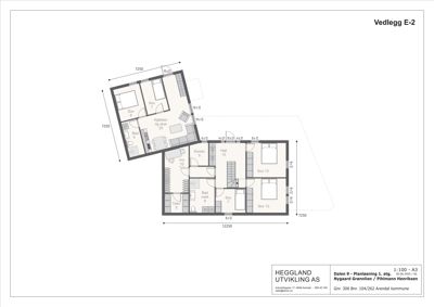
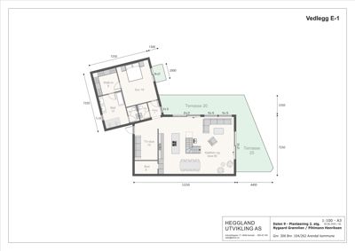
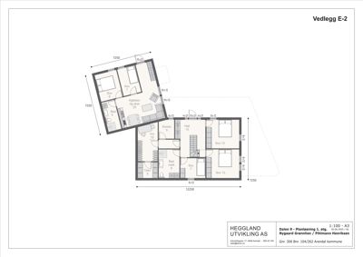
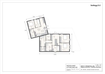
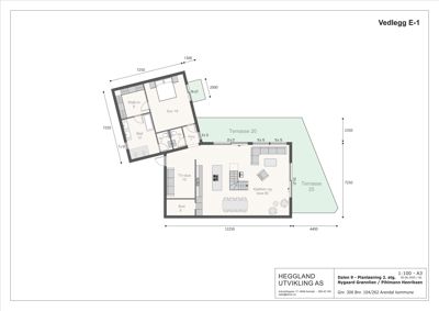
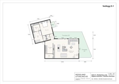
Plantegning

Enebolig 226.0 m²

Etasje 2 105.0 m²

Rom Areal Vinduer Dører
Bad 12 12.0 m² 0 1
WC 2 2.0 m² 0 1
WC 2 2.0 m² 0 1
Gang 2 2.0 m² 0 1
Walk-in 8 8.0 m² 0 1
Sov 18 18.0 m² 1 1
Terrasse 20 20.0 m² 0 0
Kjøkken og stue 60 60.0 m² 2 1
Bod 5 5.0 m² 0 1
Terrasse 25 25.0 m² 0 0

Etasje 1 121.0 m²

Rom Areal Vinduer Dører
Stue 101 92.0 m² 0 0
Sove 102 17.0 m² 0 0
Bad 103 12.0 m² 0 0
Vin 10 10.0 m² 0 1
Teknisk 5 5.0 m² 0 0
Bad 8 8.0 m² 0 1
Sov 7 7.0 m² 0 1
Sov 13 13.0 m² 0 1
Kjøkken og stue 25 25.0 m² 0 1
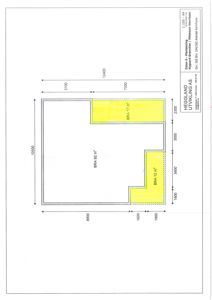
Sov 13 104 12.0 m² 1 1
Sov 7 105 12.0 m² 1 1
Bad vask 106 8.0 m² 0 1
Tekn 107 5.0 m² 0 0
Vin 108 10.0 m² 0 1
Kjøkken og stue 201 25.0 m² 2 1
Bad 202 5.0 m² 0 1
Sov 8 203 12.0 m² 1 1
Sov 7 204 12.0 m² 1 1

Fasader

Garasje

Nordøst
Materiale
Tre
Taktype
Saltak
Høyde
2.6 m
Mønehøyde
4.5 m
Vinduer
2
Dører
0
Synlige etasjer
1
Sørvest
Materiale
Tre
Taktype
Saltak
Høyde
2.6 m
Mønehøyde
4.5 m
Vinduer
4
Dører
1
Synlige etasjer
1

Enebolig

Vest
Materiale
Tre
Taktype
Saltak
Vinduer
3
Dører
1
Synlige etasjer
2
Sør
Materiale
Tre
Taktype
Saltak
Vinduer
3
Dører
1
Synlige etasjer
2
Nord
Materiale
Tre
Taktype
Saltak
Høyde
7.5 m
Mønehøyde
9.6 m
Vinduer
10
Dører
1
Balkonger
2
Synlige etasjer
2
Øst
Materiale
Tre
Taktype
Saltak
Høyde
7.5 m
Mønehøyde
9.6 m
Vinduer
6
Dører
1
Balkonger
1
Synlige etasjer
2

Hendelser

20.04.2026 Tilbakemelding - 306/104 og 262 - Merknad til nabovarsel
20.04.2026 Alternativ planløsning - 306/104/0/0 - Dalen 9 - flere boenheter
17.04.2026 306/104 og 262 - Merknad til nabovarsel
16.04.2026 Angående alternativ løsning - 306/104/0/0 - Dalen 9 - flere boenheter
16.04.2026 Tilbakemelding - 306 /104 og 262 - Dalen 9 - forespørsel
14.04.2026 306 /104 og 262 - Dalen 9 - forespørsel
07.10.2025 Tilbakemelding - 306/104/0/0 - Dalen 9 - flere boenheter
18.09.2025 Kommentar til uttalelse - 306/104/0/0 - Dalen 9 - flere boenheter
17.09.2025 Oversender uttalelse - 306/104/0/0 - Dalen 9 - flere boenheter
16.09.2025 Kulturminnefaglig uttalelse - 306/104 - Dalen 9 - rivning av bolig og ny bolig 2960863
20.08.2025 Oversender tilbakemelding - 306/104/0/0 - Dalen 9 - flere boenheter
18.08.2025 306/104 - Dalen 9 - Tilbakemelding i forbindelse behandling etter veiloven
15.08.2025 306/104 -Vedrørende befaring
14.08.2025 306/104 - Vedrørende befaring
13.08.2025 306/104 - Svar vedrørende søknad
06.08.2025 Høringsbrev til kulturminnevern - 306/104/0/0 - Dalen 9 - Rivning av bolig og ny bolig
06.08.2025 Høringsbrev til vegmyndighet - 306/104/0/0 - Dalen 9 - flere boenheter
11.07.2025 306/104 - Søknad om dispensasjon
19.12.2024 Forhåndskonferanse - 306/104/0/0 - Dalen 9 - flere boenheter
12.12.2024 Bekreftelse på møtetidspunkt - 306/104/0/0 - Dalen 9 - flere boenheter
12.12.2024 BYGG-24/01917-3 - 306/104 og 306/262 - Vedrørende forhåndskonferanse
11.12.2024 306/104 og 306/262 - Vedrørende forhåndskonferanse
09.12.2024 Tilbakemelding - 306/104 og 306/262 - Anmodning om forhåndskonferanse
14.11.2024 306/104 og 306/262 - Anmodning om forhåndskonferanse