NewConstruction Rammetillatelse Leilighetsbygg

Oppføring av tomanns- og firemannsboliger med garasjer i Danlivegen, Molde

📍 Danlivegen 10 , 6420 MOLDE

Nøkkelinfo

Sakstype
Nybygg
Bygningstype
Leilighetsbygg
Bruksareal
2,176 m²
Boenheter
18
Kommune
Molde
Fylke
Møre og Romsdal
Gnr / Bnr
36 / 118
Saksnummer
23/03924
Fase
Rammetillatelse

Om byggesaken

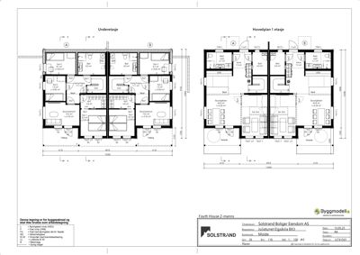
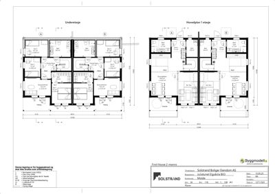
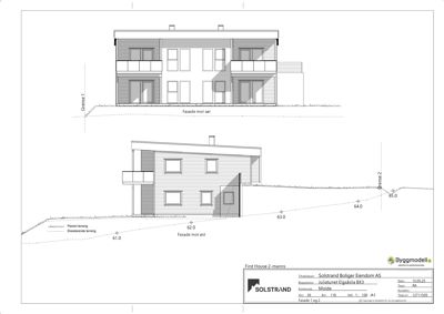
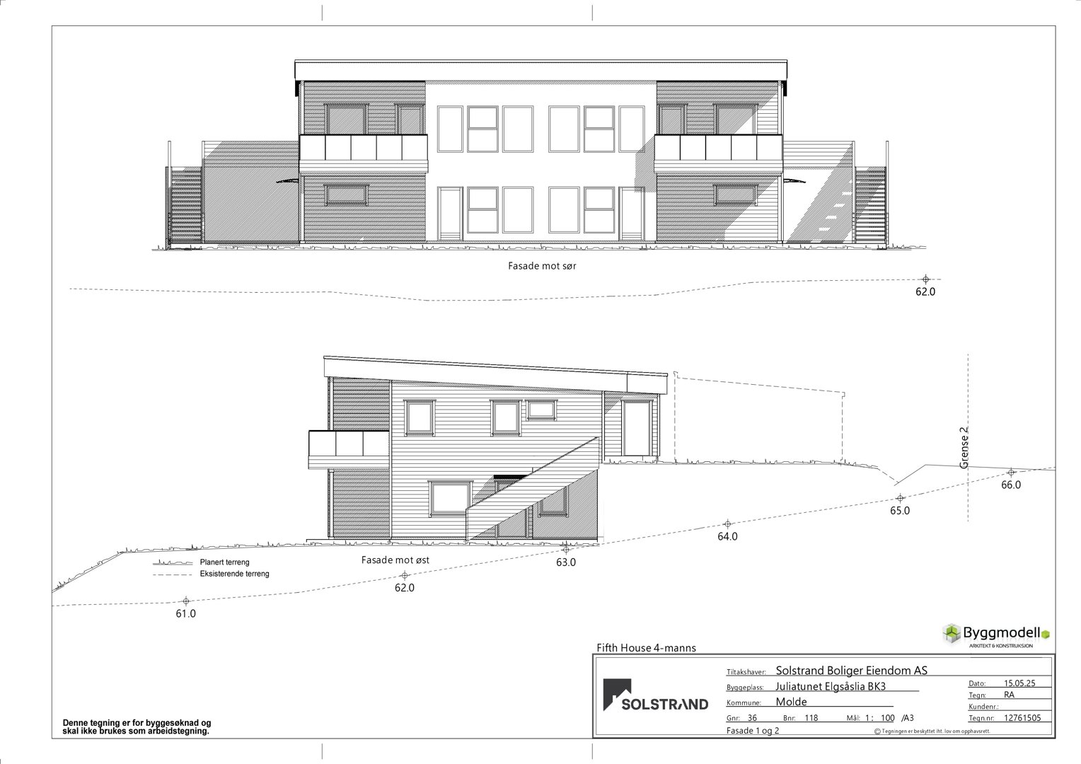
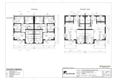
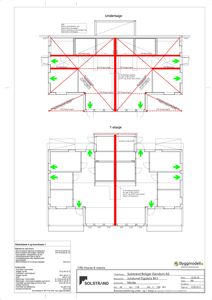
Prosjektet omfatter oppføring av seks boligbygg i Danlivegen, Molde, bestående av tre tomannsboliger og tre firemannsboliger, samt tilhørende garasjer og boder. Byggene har hoved- og underetasje, med sokkeletasje under terreng, og fremstår fra nord som en etasje over terreng. Totalt bruksareal for boligene er ca. 2 176 m², fordelt på bygg med arealer mellom 256 og 332 m². Garasjene har et samlet areal på ca. 457 m², med flere frittstående boder. Byggene har flate eller pulttak, og fasader i tre. Prosjektet inkluderer også opparbeidelse av uteoppholdsarealer, lekeplass, parkering på bakken og terrenginngrep med fylling. Byggene er plassert i tråd med reguleringsplanens byggegrenser, med dispensasjon for bygningstype og byggegrense. Det er gjennomført geotekniske vurderinger for sikkerhet mot jord- og flomskred. Prosjektet har godkjent ansvarlig søker, prosjekterende, utførende og kontrollerende, og er under behandling med godkjent endringstillatelse.

Produkter og materialer

Terrasse Veranda og uteplasser

🧱 Tre

Tette verandaer og uteplasser tilknyttet boligene

Uteplasser og verandaer

Rekkverk Rekkverk på veranda og trapper

🧱 Tre/metall

Rekkverk iht. forskriftskrav

Sikkerhetsrekkverk på verandaer og trapper

Bad Baderomsinnredning og fliser

Bad med fliser og standard baderomsinnredning

Bad i boligene

Bygningskomponenter Ytterdører

🧱 Tre, EI30 brannklassifiserte

Antall: 18

Ytterdører med brannklassifisering EI30

Ytterdører til boligene

Bygningskomponenter Vinduer

🧱 Tre, EI30 brannklassifiserte, sikkerhetsglass

Antall: 100

Flere typer vinduer inkludert fastvinduer, åpningsbare vinduer, lufteluker, med brannklassifisering EI30

Vinduer til boligene med brann- og lydkrav

Ventilasjon Mekanisk ventilasjon

Ventilasjonsanlegg iht. TEK17

Ventilasjon i boligene

VVS Sanitær og vanninstallasjoner

Utvendig og innvendig rør og sanitæranlegg, tilknytning til offentlig vann- og avløpsnett

VVS-installasjoner for boligene

Tømrer Bærende konstruksjoner og innervegger

🧱 Tre

48 mm stenderverk i bærende innervegger, ekstra platelag på yttervegger

Tømrerarbeid for bærende konstruksjoner og innervegger

Grunnarbeid Terrenginngrep og fylling

🧱 Massedeponering, jord, beplantning

Terrengfylling iht. godkjent situasjonsplan, beplantning av fylling

Terrengarbeid for tilpasning av tomt og overvannshåndtering

Tak Flatt tak og pulttak

🧱 Taktekking iht. TEK17

Flate tak eller pulttak på boligene

Taktekking og isolasjon for boligene

Brannvern EI30 brannskille og lydskille

EI30 vertikale og horisontale brann- og lydskiller mellom boenheter og i yttervegger

Brannsikring av boligene

Bygningskomponenter Boder

🧱 Tre

Antall: 10

Frittstående og integrerte boder, størrelse ca. 5-10 m²

Boder til lagring og sportsutstyr

Fasade Tre kledning

🧱 Tre

Tre kledning på bolig- og garasjebygg

Utvendig kledning for byggene

Bygningskomponenter Innvendige dører

🧱 Tre

Antall: 100

Innvendige dører til leilighetene

Isolasjon Termisk og lydisolasjon

🧱 Mineralull eller tilsvarende

Isolasjon iht. TEK17 og brannkrav EI30

Isolasjon i vegger, tak og mellom boenheter

Gulv Innvendige gulvflater

🧱 Parkett, fliser

Parkett i oppholdsrom, fliser på bad

Innvendige gulvflater i boligene

Grunnarbeid Drenering og overvannshåndtering

Drenering og overvannshåndtering i henhold til godkjent plan

Grunnarbeid for vannhåndtering

Betong Plate på mark og fundament

🧱 Betong

Betongfundament og plate på mark for bolig- og garasjebygg

Fundamentering og gulv for byggene

Elektro Elektriske installasjoner

El-installasjoner iht. gjeldende forskrifter

Elektriske anlegg i boligene

Bygningskomponenter Garasjeport

🧱 Tre/metal

Antall: 9

Garasjeporter til 9 garasjer, flate tak, ca. 18-54 m² per garasje

Garasjeporter til tilhørende garasjer

Fasader

Garasje

Sør
Materiale
Tre
Taktype
Flatt tak
Høyde
2.9 m
Mønehøyde
3.5 m
Vinduer
0
Dører
1
Synlige etasjer
1
Øst
Materiale
Tre
Taktype
Flatt tak
Høyde
2.9 m
Mønehøyde
3.5 m
Vinduer
0
Dører
4
Synlige etasjer
1
Nord
Materiale
Tre
Taktype
Flatt tak
Høyde
2.9 m
Mønehøyde
3.5 m
Vinduer
1
Dører
1
Synlige etasjer
1
Vest
Materiale
Tre
Taktype
Flatt tak
Høyde
2.9 m
Mønehøyde
3.5 m
Vinduer
0
Dører
0
Synlige etasjer
1

Hendelser

16.04.2026 23/03924-22 36/118/0/0 Danlivegen, Supplering av søknad
23.03.2026 23/03924-21 36/118 Danlivegen, godkjent endring for resten av feltet
17.12.2025 23/03924-20 36/118 Danlivegen 8-18, godkjent endring av tillatelse
17.12.2025 23/03924-19 36/118 Danlivegen, supplering av søknad
15.12.2025 23/03924-18 36/118/0/0 Danlivegen, oppføring av boliger og garasjer - supplering av søknad - revidert
09.12.2025 23/03924-17 Danlivegen 8 Supplering av søknad 36/118
26.08.2025 23/03924-15 36/118 Danlivegen, referat fra møte 26.08.2025
21.08.2025 23/03924-14 36/118 Danlivegen, tilbakemelding på søknad
23.07.2025 23/03924-13 Etterlyser nabomerknad
08.07.2025 23/03924-12 36/118/0/0 Danlivegen, Supplering av søknad