NewConstruction Ferdigattest Leilighetsbygg

Ny leilighetsbygg med næringsareal i Folabruveien 18, Asker

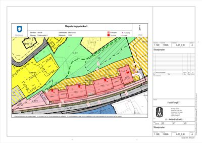
📍 Folabruveien 10 , 1384 ASKER

Nøkkelinfo

Sakstype
Nybygg
Bygningstype
Leilighetsbygg
Bruksareal
1,753 m²
Boenheter
27
Kommune
Asker
Fylke
Akershus
Gnr / Bnr
50 / 434
Saksnummer
21/4419
Fase
Ferdigattest

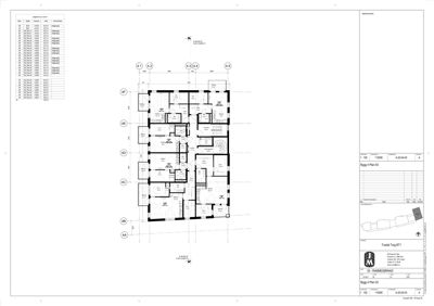
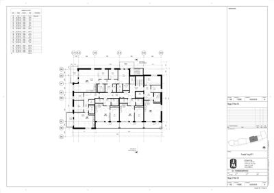
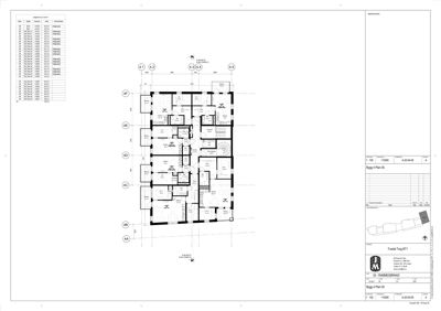
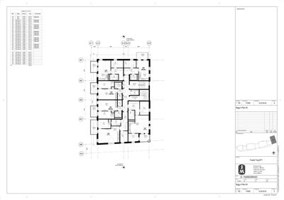
Om byggesaken

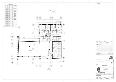
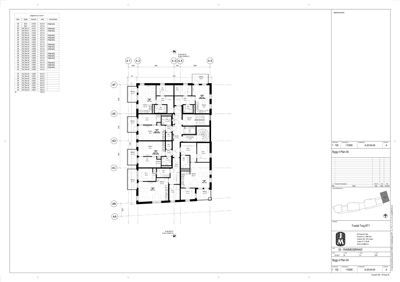
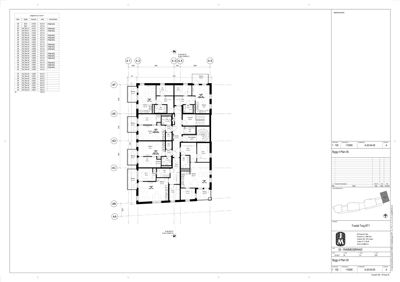
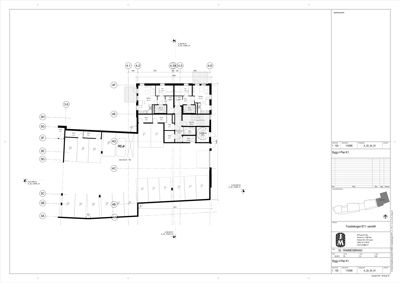
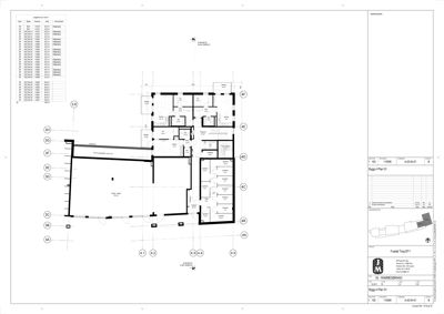
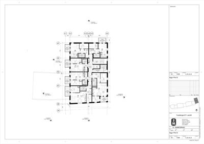
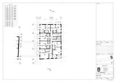
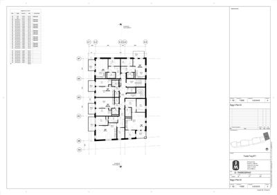
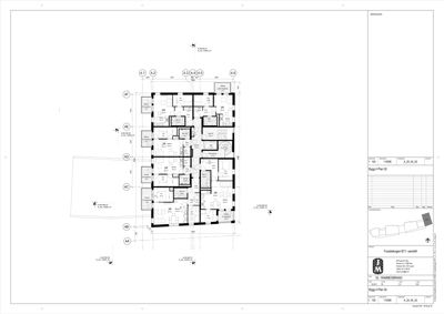
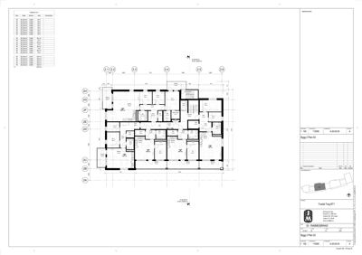
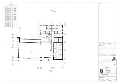
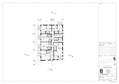
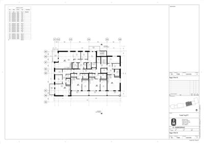
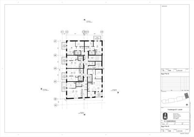
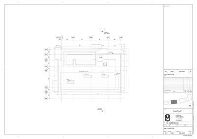
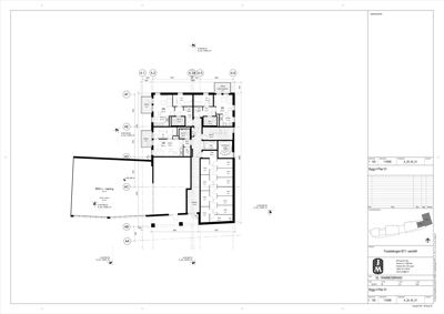
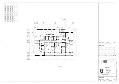
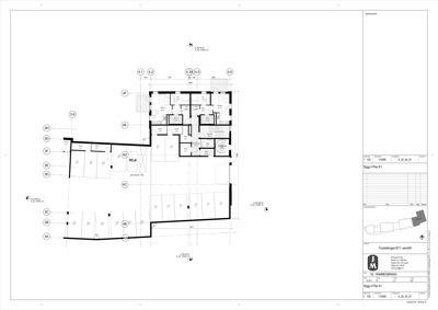
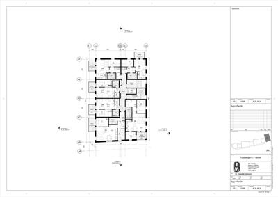
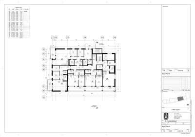
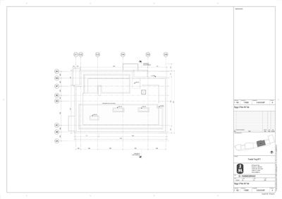
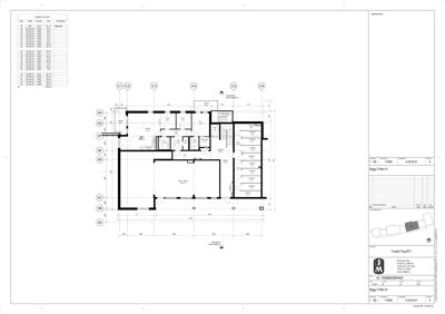
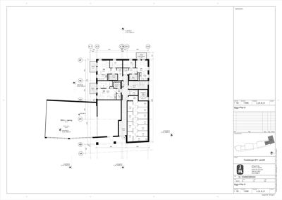
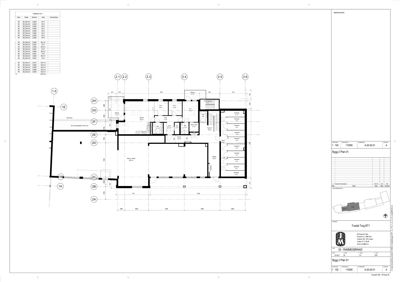
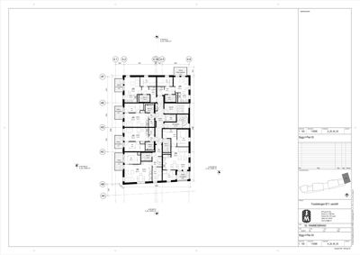
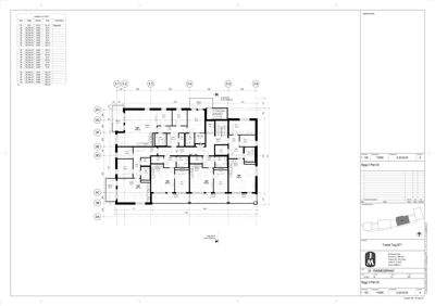
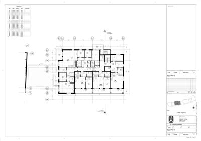
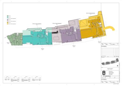
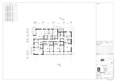
Bygg 4 i Fusdalskogen felt B3 er et nytt leilighetsbygg med tilhørende næringsareal i første etasje, oppført i betong med flatt tak over fire etasjer. Bygget har et totalt bruksareal på ca. 1753 m², fordelt på flere leiligheter med varierende størrelser og romfunksjoner, inkludert stuer, soverom, bad, kjøkken, vaskerom, boder og tekniske rom. Bygget har 6 trapper og 12 balkonger, hvorav flere balkonger er innglasset for å ivareta støykrav og estetikk. Fasaden er i betong med glasskonstruksjoner og beslag som fasadeelementer. Bygget er tilknyttet heis, vannbåren varme, varmepumpe, brannalarmanlegg, slukkeinstallasjoner, ventilasjon og sanitærinstallasjoner. Utomhusanlegg inkluderer opparbeidelse av vei, fortau, sykkelvei, beplantning, overvannshåndtering og avfallssug. Bygget har gjennomgått flere endringer og oppdateringer i planløsning og fasade, og er nå i ferd med å få ferdigattest etter midlertidig brukstillatelse.

Arbeidsomfang

Oppføring av nytt leilighetsbygg med næringsareal (Bygg 2 i Fusdalskogen BT1-prosjektet). - Oppføring av ny bygning med boligeiendommer og næringsareal. - Utførelse av grunnarbeider og betongkonstruksjoner. - Tømrerarbeid: Oppføring av trekonstruksjoner, takkonstruksjon og innvendige skillevegger. - Murerarbeid: Oppføring av murvegger og fasadeelementer. - Rørleggerarbeid: Installasjon av vann, avløp, avtrekk og varmeanlegg (vannbåren radiator og elektriske varmekabler). - Elektrikerarbeid: Installasjon av hovedfordeling, lys, styring og spesialinstallasjoner for næringsdelen. - Vindus- og dørmontering: Montering av fasadevindu, balkongdører og inngangsdører. - Takleggerarbeid: Montering av takdekk og taktekniske installasjoner. - Pipemontering: Oppføring av røyk- og ventilasjonsrør. - Innvendig innredning av næringsareal (fast-food): Innredning av serveringslokale, montering av trekonstruksjoner og innvendig sanitærarbeid. - Installasjon av klimaanlegg og avtrekk for serveringslokale. - Fasadebehandling og malerarbeid.

Produkter og materialer

Vinduer Fasadevindu

🧱 Glass med beslag

Antall: 48

Fasadevinduer i betongfasade, inkludert vindusfelt i næringsareal og bolig

Vinduer for leilighetsbyggets fasader, inkludert glassfelt i næringslokaler

Grunnarbeid Avfallssug og overvannsgrøft

Avfallssug, overvannsgrøft og tilhørende ledninger

Infrastruktur for avfallshåndtering og overvann

Heis Personheis

Antall: 1

Heis levert av Orona Norway AS, sertifisert iht. NS-EN 81-20

Heisinstallasjon i bygget

Trapper Innvendige trapper

🧱 Betong og tre

Antall: 6

Trapper i leilighetsbygg, inkludert rømnings- og trappetårn

Innvendige trapper for leilighetene og fellesarealer

Betong Plasstøpte betongkonstruksjoner

🧱 Betong

Betongkonstruksjoner for bærende elementer

Bærende konstruksjoner i betong

Tak Flatt tak med sedum

🧱 Betong, sedumtak

Antall: 1

Flatt tak med sedum og takoppbygg

Tak med sedumbelegg og tekniske installasjoner

Elektro Brannalarmanlegg og ledesystem

Brannalarm og nødlysanlegg, ledesystem

Elektriske sikkerhetssystemer

Slukkeinstallasjoner Sprinkleranlegg

Sprinkleranlegg for brannsikring

Brannslukkingsanlegg i bygget

Gulv Gulvbelegg

Innvendige gulvbelegg i leiligheter og fellesarealer

Solceller Solcelleanlegg

Mulig solcelleanlegg på tak (ikke eksplisitt dokumentert, men vanlig for slike bygg)

Tømrer Tømrerarbeid og montering av trekonstruksjoner

🧱 Tre

Tømrerarbeid for balkonger, terrasser og innvendige konstruksjoner

Tømrerarbeid og trekonstruksjoner i bygget

Varmepumpe Luft-til-luft varmepumpe

Varmepumpe for energiforsyning

Varmepumpe for oppvarming og kjøling

VVS Sanitær, varme- og kuldeinstallasjoner

Vannbåren radiator, varmepumpe luft, sanitærinstallasjoner

Sanitær- og varmeanlegg for leilighetsbygg

Grunnarbeid Veg- og grunnarbeider, utomhus

Opparbeidelse av vei, fortau, sykkelvei, beplantning, overvannshåndtering

Utomhusanlegg og grunnarbeider for prosjektet

Rekkverk Glassrekkverk balkonger

🧱 Glass og metall

Antall: 12

Glassrekkverk på balkonger for estetikk og sikkerhet

Rekkverk for balkonger

Maling Innvendig og utvendig maling

Maling av fasader og innvendige flater

Ventilasjon Ventilasjon- og klimainstallasjoner

Ventilasjons- og klimaanlegg for leilighetsbygg

Fasade Betongfasade med glasskonstruksjoner

🧱 Betong, glass, beslag

Antall: 1

Betongfasade med glassfelt og beslag, justert materialbruk på balkonger

Fasadeelementer for leilighetsbygg med næringsareal

Terrasse Markterrasse med Kebony karakter

🧱 Kebony tre

Markterrasser med Kebony karakter treverk

Utendørs terrasser for leiligheter

Balkong Innglassede balkonger

🧱 Glass og beslag

Antall: 12

Balkonger med full eller delvis innglassing, glassrekkverk

Balkonger med innglassing for støyreduksjon og estetikk

Dører Ytterdører og glassdører

🧱 Glass og metall

Antall: 10

Dører i næringslokaler og inngangspartier, inkludert dører i plan 01 næringsareal

Ytterdører og glassdører for næringsareal og leilighetsinnganger

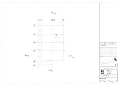
Fasader

Bygg 4

Nord
Materiale
Betong
Taktype
Flatt tak
Høyde
12.5 m
Mønehøyde
12.3 m
Vinduer
12
Dører
1
Balkonger
1
Synlige etasjer
4
Sør
Materiale
Betong
Taktype
Flatt tak
Høyde
12.6 m
Mønehøyde
12.3 m
Vinduer
12
Dører
1
Balkonger
1
Synlige etasjer
4
Vest
Materiale
Betong
Taktype
Flatt tak
Høyde
12.5 m
Mønehøyde
12.3 m
Vinduer
12
Dører
1
Balkonger
1
Synlige etasjer
4
Øst
Materiale
Betong
Taktype
Flatt tak
Høyde
12.1 m
Mønehøyde
12.3 m
Vinduer
12
Dører
1
Balkonger
1
Synlige etasjer
4

Næring 1

Sør
Materiale
Betong
Taktype
Flatt tak
Høyde
4.5 m
Vinduer
0
Dører
2
Synlige etasjer
1

Hendelser

08.04.2026 50/434 Folabruveien 18, Folabruveien 20 - Bygg 4 - Spørsmål om avklaring knyttet til innglassing av balkonger
16.08.2025 50/434 Folabruveien 18 og 20 - Ferdigattest - Bygg 4 - Leilighetsbygg med næring ferdigattest
11.08.2025 50/434 Folabruveien 18 og 20 - Bygg 4 - Supplering av søknad om ferdigattest ferdigattest
23.07.2025 50/434 Folabruveien 18 - Bygg 4 - Ufullstendig søknad om ferdigattest - Nybygg - Leilighetsbygg med næring vedtak
02.07.2025 50/434 Folabruveien 18 - Søknad om ferdigattest ferdigattest
28.09.2024 50/434 Folabruveien 18 - Midlertidig brukstillatelse bygg 4 midlertidig_brukstillatelse
16.09.2024 50/434 Folabruveien 18, Folabruveien 20 - Supplering av søknad søknad
16.09.2024 50/434 Folabruveien 18, Folabruveien 20 - Supplering av søknad søknad
02.09.2024 50/434/0/88 Folabruveien 18 - Bygg 4 - Søknad om midlertidig brukstillatelse midlertidig_brukstillatelse
17.06.2024 50/434 Fusdalskogen BT1 - Endringstillatelse II for Bygg 4 – Leilighetsbygg med næring
02.04.2024 50/434 Fusdalskogen BT1 - Bygg 4 - Søknad om endring av gitt tillatelse søknad
01.06.2023 50/434 Igangsettingstillatelse - nybygg - Bygg 4 - Leilighetsbygg med næring igangsettingstillatelse
02.05.2023 50/434 Søknad om igangsettingstillatelse 1 - Nybygg - Bygg 4 - Leilighetsbygg med næring igangsettingstillatelse
28.04.2023 50/434 Godkjent endring - Nybygg - Bygg 4 - Leilighetsbygg med næring
24.02.2023 50/434 Søknad om endring av gitt tillatelse - Nybygg - Bygg 4 - Leilighetsbygg med næring søknad
12.11.2021 50/434 Rammetillatelse til nybygg - Bygg 4 - Leilighetsbygg med næring rammetillatelse
01.11.2021 50/434 Søknad om nybygg - Bygg 4 - Leilighetsbygg med næring søknad