Facade
Bildet viser fasadetegninger (oppriks) av en bygning sett fra to ulike vinkler (mot sør og mot nord).
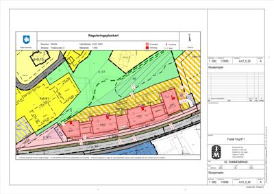
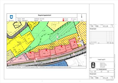
Nybygg leilighetsbygg med næring i Folabruveien 8, Asker
📍 Folabruveien 10 , 1384 ASKER
Nøkkelinfo
- Sakstype
- Nybygg
- Bygningstype
- Leilighetsbygg
- Bruksareal
- 3,318 m²
- Boenheter
- 21
- Kommune
- Asker
- Fylke
- Akershus
- Gnr / Bnr
- 50 / 434
- Saksnummer
- 21/4417
- Fase
- Ferdigattest
Om byggesaken
Arbeidsomfang
Produkter og materialer
Utført av JM Norge AS
Plasstøpte betongkonstruksjoner i bygget
Utført av Schneider Electric Norge AS og Irby Elektro AS
Brannalarmanlegg og ledesystem
Antall: 14
Fasadevinduer i betongfasade, antall 14 stk
Antall: 1
Orona Norway AS, sertifikat nr. 128041-136532 og 128042-136533
Personheis i bygget
Utført av Sprinkler Prosjekt AS og VEAS Rør AS
Slukkeinstallasjoner i bygget
Antall: 0
Takvinduer ikke spesifisert, men sedumtak med betongheller
Antall: 5
5 trapper i bygget
Utført av Andresen, Jacobsen og Løyning AS
Sanitærinstallasjoner i bygget
🧱 Sedum, betongheller
Sedumtak med betongheller kant
Flatt tak med sedum og betongheller
Utført av Icopal Tak AS
Taktekkingsarbeid
Utført av Kongsberg Entreprenør AS
Veg- og grunnarbeider for utomhus og infrastruktur
🧱 Betong
Betongfasade med flatt tak, gesimshøyde ca 12-12.5 m
Betongfasade på alle sider
Utført av JM Norge AS
Tømrerarbeid og montering av trekonstruksjoner
Avfallssug med nedkast etablert i uteareal
Avfallshåndtering med avfallssug
🧱 Glass
Antall: 6
Glassrekkverk på balkonger for helhetlig uttrykk
Balkongrekkverk i glass
Utført av Mjøndalen Mur og Puss AS
Murarbeid i bygget
Antall: 2
Ytterdører i fasade, antall 2 stk
Antall: 6
Balkongdører til 6 balkonger
Utført av Andresen, Jacobsen og Løyning AS og Ingeniørfirmaet LS Solland AS
Ventilasjon og klimainstallasjoner
Antall: 3
Rømningstrapper lukket med dør, 3 stk
Varmepumpe luft installert
Varmepumpe for oppvarming
Utført av Kongsberg Entreprenør AS og JM Norge AS
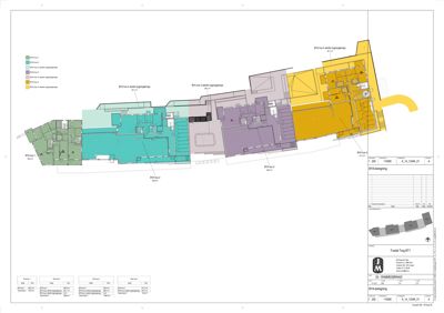
Landskapsutforming og utearealer med beplantning, gang- og sykkelveier, fortau, rekkverk og trapper
Underjordisk parkeringskjeller tilknyttet byggene
Parkeringskjeller under byggene
Ingen eksplisitt informasjon, men vanlig for slike prosjekter
Mulig solcelleanlegg på tak
Utført av Andresen, Jacobsen og Løyning AS, varmepumpe luft
Varme- og kuldeinstallasjoner med varmepumpe luft
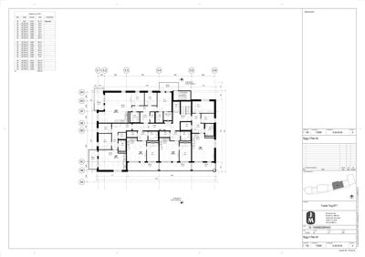
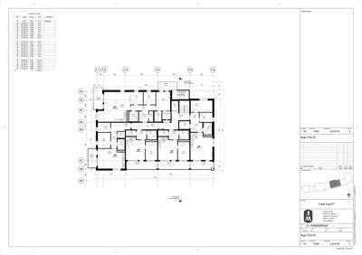
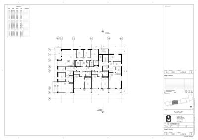
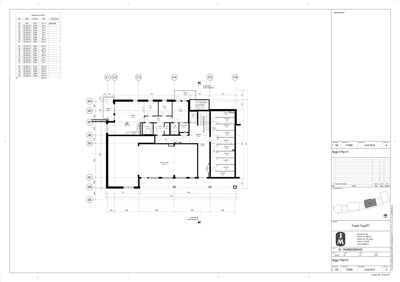
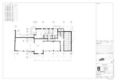
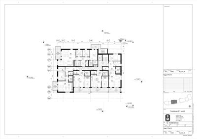
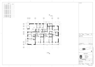
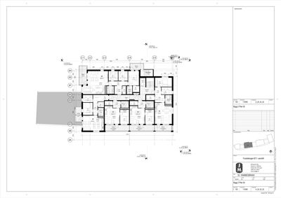
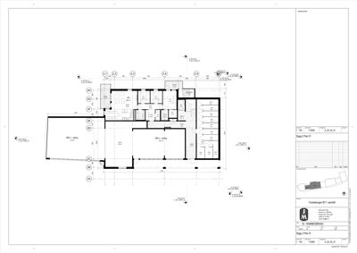
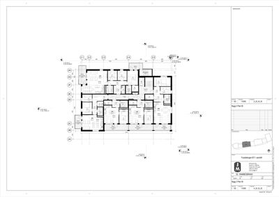
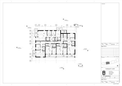
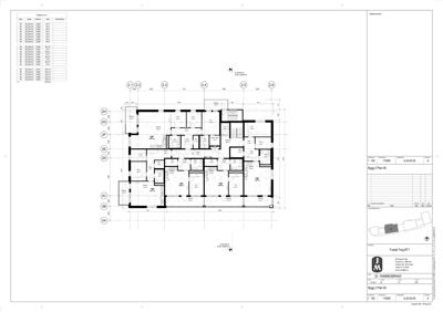
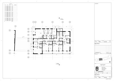
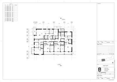
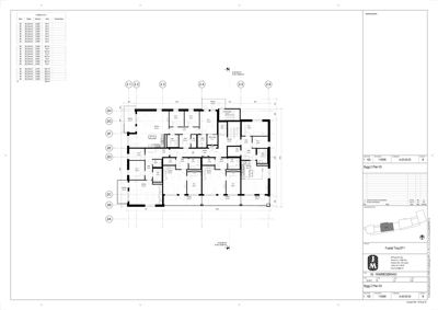
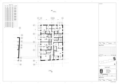
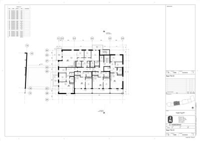
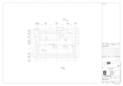
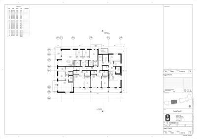
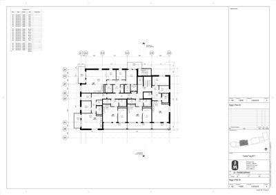
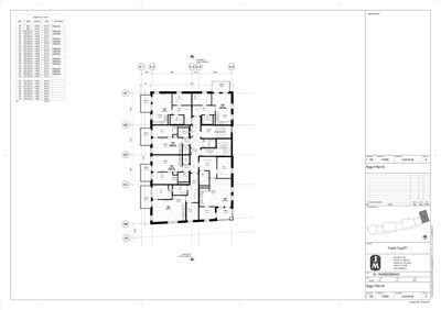
Plantegning
Bygg 2 3,318.5 m²
Etasje 5 1,200.0 m²
| Rom | Areal | Vinduer | Dører |
|---|---|---|---|
| Leilighet 2A | 45.0 m² | 2 | 3 |
| Leilighet 2B | 48.0 m² | 2 | 3 |
| Leilighet 2C | 50.0 m² | 2 | 3 |
| Leilighet 2D | 52.0 m² | 2 | 3 |
| Leilighet 2E | 55.0 m² | 2 | 3 |
| Leilighet 2F | 58.0 m² | 2 | 3 |
| Leilighet 2G | 60.0 m² | 2 | 3 |
| Leilighet 2H | 62.0 m² | 2 | 3 |
| Roms 2R | 15.0 m² | 0 | 2 |
| Roms 3R | 18.0 m² | 0 | 2 |
| Roms 4R | 20.0 m² | 0 | 2 |
| Trapp 2.1 | 5.0 m² | 0 | 0 |
| Trapp 2.2 | 5.0 m² | 0 | 0 |
| Trapp 2.3 | 5.0 m² | 0 | 0 |
| Trapp 2.4 | 5.0 m² | 0 | 0 |
| Trapp 2.5 | 5.0 m² | 0 | 0 |
| Gang Gang | 7.8 m² | 0 | 0 |
Etasje 4 0.0 m²
| Rom | Areal | Vinduer | Dører |
|---|---|---|---|
| R 4R | 10.2 m² | 1 | 1 |
| Trapp 2.1 | 0.0 m² | 0 | 0 |
| Trapp 2.2 | 0.0 m² | 0 | 0 |
| Trapp 2.3 | 0.0 m² | 0 | 0 |
| Trapp 2.4 | 0.0 m² | 0 | 0 |
| Trapp 2.5 | 0.0 m² | 0 | 0 |
| Balkong 4R_B2_Plan 01 | 8.5 m² | 1 | 0 |
| Kjøkken/stue 4R_B2_Plan 02 | 27.5 m² | 1 | 1 |
| Bad 4R_B2_Plan 03 | 4.3 m² | 0 | 1 |
| Sov 4R_B2_Plan 04 | 9.6 m² | 1 | 1 |
| Balkong 4R_B2_Plan 05 | 3.8 m² | 1 | 0 |
| Balkong 4R_B2_Plan 06 | 12.7 m² | 1 | 0 |
| Sov 4R_B2_Plan 07 | 9.6 m² | 1 | 1 |
| Balkong 4R_B2_Plan 08 | 12.4 m² | 1 | 0 |
| Sov 4R_B2_Plan 09 | 11.7 m² | 1 | 1 |
| Sov 4R_B2_Plan 10 | 12.5 m² | 1 | 1 |
| Balkong 4R_B2_Plan 11 | 14.2 m² | 1 | 0 |
| Trapp 204 4R_B2_Plan 12 | 14.2 m² | 0 | 1 |
| Gang 4R_B2_Plan 13 | 5.1 m² | 0 | 1 |
| Sov 4R_B2_Plan 14 | 6.5 m² | 1 | 1 |
| Gang 4R_B2_Plan 15 | 5.1 m² | 0 | 1 |
| Sov 4R_B2_Plan 16 | 4.2 m² | 1 | 1 |
| Korridor 4R_B2_Plan 17 | 10.0 m² | 0 | 1 |
| Gang 4R_B2_Plan 18 | 9.8 m² | 0 | 1 |
| Kjøkken/stue 4R_B2_Plan 19 | 43.5 m² | 1 | 1 |
| Sov 4R_B2_Plan 20 | 6.4 m² | 1 | 1 |
| Sov 4R_B2_Plan 21 | 12.8 m² | 1 | 1 |
| Sov 4R_B2_Plan 22 | 7.4 m² | 1 | 1 |
| Sov 4R_B2_Plan 23 | 4.1 m² | 1 | 1 |
| Sov 4R_B2_Plan 24 | 5.3 m² | 1 | 1 |
| Sov 4R_B2_Plan 25 | 8.5 m² | 1 | 1 |
| Balkong 4R_B2_Plan 26 | 5.2 m² | 1 | 0 |
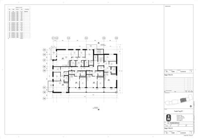
| Balkong 4R_B2_Plan_01 | 8.5 m² | 1 | 0 |
| Kjøkken/stue 4R_B2_Plan_02 | 27.5 m² | 1 | 1 |
| Bad 4R_B2_Plan_03 | 4.3 m² | 0 | 1 |
| Sov 4R_B2_Plan_04 | 9.6 m² | 1 | 1 |
| Sov 4R_B2_Plan_05 | 9.6 m² | 1 | 1 |
| Balkong 4R_B2_Plan_06 | 12.7 m² | 1 | 0 |
| Balkong 4R_B2_Plan_07 | 3.8 m² | 1 | 0 |
| Balkong 4R_B2_Plan_08 | 10.4 m² | 1 | 0 |
| Gang 4R_B2_Plan_09 | 5.1 m² | 0 | 1 |
| Sov 4R_B2_Plan_10 | 4.2 m² | 1 | 1 |
| Sov 4R_B2_Plan_11 | 4.3 m² | 1 | 1 |
| Sov 4R_B2_Plan_12 | 4.8 m² | 1 | 1 |
| Sov 4R_B2_Plan_13 | 4.8 m² | 1 | 1 |
| Trapp 204 4R_B2_Plan_14 | 14.2 m² | 0 | 1 |
| Gang 4R_B2_Plan_15 | 5.1 m² | 0 | 1 |
| Sov 4R_B2_Plan_16 | 6.5 m² | 1 | 1 |
| Sov 4R_B2_Plan_17 | 6.5 m² | 1 | 1 |
| Sov 4R_B2_Plan_18 | 4.4 m² | 1 | 1 |
| Sov 4R_B2_Plan_19 | 3.7 m² | 1 | 1 |
| Kjøkken 4R_B2_Plan_20 | 10.0 m² | 1 | 1 |
| Gang 4R_B2_Plan_21 | 9.8 m² | 0 | 1 |
| Kjøkken/stue 4R_B2_Plan_22 | 43.5 m² | 1 | 1 |
| Sov 4R_B2_Plan_23 | 5.3 m² | 1 | 1 |
| Sov 4R_B2_Plan_24 | 8.5 m² | 1 | 1 |
| Balkong 4R_B2_Plan_25 | 5.2 m² | 1 | 0 |
| Balkong 4R_B2_Plan_26 | 9.1 m² | 1 | 0 |
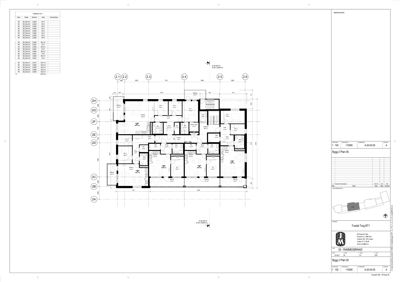
Etasje 2 106.0 m²
| Rom | Areal | Vinduer | Dører |
|---|---|---|---|
| Stue 2H | 28.0 m² | 1 | 2 |
| Sove 2G | 10.7 m² | 1 | 1 |
| Sove 2F | 10.7 m² | 1 | 1 |
| Sove 2E | 10.7 m² | 1 | 1 |
| Sove 2D | 10.7 m² | 1 | 1 |
| Sove 2C | 10.7 m² | 1 | 1 |
| Sove 2B | 10.7 m² | 1 | 1 |
| Sove 2A | 10.7 m² | 1 | 1 |
| Stue 4R | 106.0 m² | 1 | 2 |
| Gang 2.1 | 7.8 m² | 0 | 2 |
| Gang 2.2 | 7.8 m² | 0 | 2 |
| Gang 2.3 | 7.8 m² | 0 | 2 |
| Gang 2.4 | 7.8 m² | 0 | 2 |
| Gang 2.5 | 7.8 m² | 0 | 2 |
| Stue 2R | 49.0 m² | 1 | 2 |
| Stue 3R | 49.0 m² | 1 | 2 |
| Bod 1 2.020 | 59.0 m² | 0 | 1 |
| Bod 2 2.022 | 59.0 m² | 0 | 1 |
| Bod 3 2.023 | 59.0 m² | 0 | 1 |
| Bod 4 2.032 | 59.0 m² | 0 | 1 |
| Bod 5 2.042 | 59.0 m² | 0 | 1 |
| Bod 6 2.052 | 59.0 m² | 0 | 1 |
| Bod 7 2.024 | 86.3 m² | 0 | 1 |
| Bod 8 2.021 | 75.0 m² | 0 | 1 |
| Bod 9 2.034 | 86.3 m² | 0 | 1 |
| Bod 10 2.030 | 75.0 m² | 0 | 1 |
| Bod 11 2.044 | 86.3 m² | 0 | 1 |
| Bod 12 2.047 | 75.0 m² | 0 | 1 |
| Bod 13 2.054 | 86.3 m² | 0 | 1 |
| Bod 14 2.051 | 75.0 m² | 0 | 1 |
| Bod 15 2.010 | 108.1 m² | 0 | 1 |
| Bod 16 2.026 | 108.2 m² | 0 | 1 |
| Bod 17 2.036 | 108.3 m² | 0 | 1 |
| Bod 18 2.046 | 108.3 m² | 0 | 1 |
| Bod 19 2.056 | 108.3 m² | 0 | 1 |
| Bad 2.025 | 5.0 m² | 0 | 1 |
| Bad 2.031 | 7.5 m² | 0 | 1 |
| Bad 2.033 | 7.5 m² | 0 | 1 |
| Bad 2.035 | 7.5 m² | 0 | 1 |
| Stue 2.040 | 86.3 m² | 2 | 2 |
| Bad 2.041 | 7.5 m² | 0 | 1 |
| Bad 2.043 | 7.5 m² | 0 | 1 |
| Bad 2.045 | 7.5 m² | 0 | 1 |
| Stue 2.050 | 86.3 m² | 2 | 2 |
| Bad 2.053 | 7.5 m² | 0 | 1 |
| Bad 2.055 | 7.5 m² | 0 | 1 |
| Gang 2.6 | 7.8 m² | 0 | 2 |
| Bod 201 | 12.0 m² | 0 | 1 |
| Gang 202 | 15.0 m² | 0 | 2 |
| Vaskerom 203 | 10.0 m² | 1 | 1 |
| Stue 204 | 45.0 m² | 2 | 1 |
| Kjøkken 205 | 25.0 m² | 1 | 1 |
| Spisestue 206 | 20.0 m² | 1 | 1 |
| Sovegang 207 | 12.0 m² | 0 | 2 |
| Soverom 1 208 | 15.0 m² | 1 | 1 |
| Soverom 2 209 | 14.0 m² | 1 | 1 |
| Bad 210 | 8.0 m² | 0 | 1 |
| Teknisk rom 211 | 5.0 m² | 0 | 1 |
| Trapperom 212 | 10.0 m² | 0 | 1 |
Etasje 6 0.0 m²
| Rom | Areal | Vinduer | Dører |
|---|
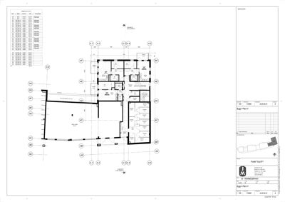
Etasje 0 0.0 m²
| Rom | Areal | Vinduer | Dører |
|---|---|---|---|
| Garasje 001 | 0.0 m² | 0 | 0 |
| Teknisk rom 002 | 0.0 m² | 0 | 0 |
| Gang 003 | 0.0 m² | 0 | 0 |
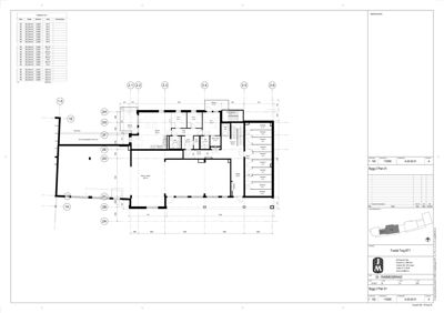
Etasje 1 788.5 m²
| Rom | Areal | Vinduer | Dører |
|---|---|---|---|
| Teknisk rom 101 | 246.4 m² | 0 | 1 |
| Teknisk rom 102 | 542.1 m² | 0 | 1 |
| Vaskerom 103 | 4.3 m² | 0 | 1 |
| Bad 104 | 7.4 m² | 0 | 1 |
| Gang 105 | 3.9 m² | 0 | 2 |
| Sov 1 106 | 12.8 m² | 1 | 1 |
| Sov 2 107 | 11.7 m² | 1 | 1 |
| Sov 3 108 | 12.5 m² | 1 | 1 |
| Sov 4 109 | 11.8 m² | 1 | 1 |
| Sov 5 110 | 12.5 m² | 1 | 1 |
| Sov 6 111 | 9.6 m² | 1 | 1 |
| Balkong 112 | 6.1 m² | 0 | 1 |
| Balkong 113 | 12.7 m² | 0 | 1 |
| Balkong 114 | 9.8 m² | 0 | 1 |
| Balkong 115 | 8.5 m² | 0 | 1 |
| Trapperom 116 | 30.5 m² | 0 | 1 |
| Teknisk rom 117 | 3.7 m² | 0 | 1 |
| Bad 118 | 4.8 m² | 0 | 1 |
| Gang 119 | 5.1 m² | 0 | 2 |
| Sov 7 120 | 4.2 m² | 1 | 1 |
| Sov 8 121 | 5.5 m² | 1 | 1 |
| Sov 9 122 | 20.3 m² | 1 | 1 |
| Sov 10 123 | 1.5 m² | 0 | 1 |
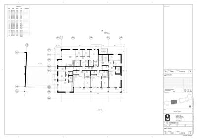
Etasje 3 1,224.0 m²
| Rom | Areal | Vinduer | Dører |
|---|---|---|---|
| Bod 301 | 12.0 m² | 0 | 1 |
| Gang 302 | 15.0 m² | 0 | 2 |
| Vaskerom 303 | 10.0 m² | 1 | 1 |
| Stue 304 | 45.0 m² | 2 | 1 |
| Kjøkken 305 | 25.0 m² | 1 | 1 |
| Spisestue 306 | 20.0 m² | 1 | 1 |
| Sovegang 307 | 12.0 m² | 0 | 2 |
| Soverom 1 308 | 15.0 m² | 1 | 1 |
| Soverom 2 309 | 14.0 m² | 1 | 1 |
| Bad 310 | 8.0 m² | 0 | 1 |
| Teknisk rom 311 | 5.0 m² | 0 | 1 |
| Trapperom 312 | 10.0 m² | 0 | 1 |
Bygg 4 1,614.0 m²
Etasje 2 403.5 m²
| Rom | Areal | Vinduer | Dører |
|---|---|---|---|
| Stue 4-0101 | 39.2 m² | 1 | 2 |
| Sov 1 4-0102 | 13.6 m² | 1 | 1 |
| Sov 2 4-0103 | 12.5 m² | 1 | 1 |
| Bad 4-0104 | 6.3 m² | 0 | 1 |
| Kjøkken 4-0105 | 14.3 m² | 1 | 1 |
| Gang 4-0106 | 7.8 m² | 0 | 2 |
| Vaskerom 4-0107 | 4.3 m² | 0 | 1 |
| Teknisk 4-0108 | 3.5 m² | 0 | 1 |
| Terrasse 4-0109 | 8.3 m² | 0 | 1 |
Etasje 3 403.5 m²
| Rom | Areal | Vinduer | Dører |
|---|---|---|---|
| Stue 4-0201 | 39.2 m² | 1 | 2 |
| Sov 1 4-0202 | 13.6 m² | 1 | 1 |
| Sov 2 4-0203 | 12.5 m² | 1 | 1 |
| Bad 4-0204 | 6.3 m² | 0 | 1 |
| Kjøkken 4-0205 | 14.3 m² | 1 | 1 |
| Gang 4-0206 | 7.8 m² | 0 | 2 |
| Vaskerom 4-0207 | 4.3 m² | 0 | 1 |
| Teknisk 4-0208 | 3.5 m² | 0 | 1 |
| Terrasse 4-0209 | 8.3 m² | 0 | 1 |
Etasje 4 403.5 m²
| Rom | Areal | Vinduer | Dører |
|---|---|---|---|
| Stue 4-0301 | 39.2 m² | 1 | 2 |
| Sov 1 4-0302 | 13.6 m² | 1 | 1 |
| Sov 2 4-0303 | 12.5 m² | 1 | 1 |
| Bad 4-0304 | 6.3 m² | 0 | 1 |
| Kjøkken 4-0305 | 14.3 m² | 1 | 1 |
| Gang 4-0306 | 7.8 m² | 0 | 2 |
| Vaskerom 4-0307 | 4.3 m² | 0 | 1 |
| Teknisk 4-0308 | 3.5 m² | 0 | 1 |
| Terrasse 4-0309 | 8.3 m² | 0 | 1 |
| Stue 4-0101 | 42.3 m² | 2 | 2 |
| Stue 4-0102 | 42.3 m² | 2 | 2 |
| Stue 4-0103 | 40.2 m² | 2 | 2 |
| Stue 4-0104 | 43.3 m² | 2 | 2 |
| Stue 4-0105 | 38.1 m² | 2 | 2 |
| Stue 4-0106 | 38.2 m² | 2 | 2 |
| Stue 4-0107 | 40.3 m² | 2 | 2 |
| Stue 4-0108 | 43.4 m² | 2 | 2 |
| Stue 4-0109 | 37.1 m² | 2 | 2 |
| Stue 4-0110 | 36.2 m² | 2 | 2 |
| Stue 4-0111 | 40.3 m² | 2 | 2 |
| Stue 4-0112 | 43.4 m² | 2 | 2 |
| Soverom 4-0201 | 16.5 m² | 1 | 1 |
| Soverom 4-0202 | 16.5 m² | 1 | 1 |
| Soverom 4-0203 | 16.5 m² | 1 | 1 |
| Soverom 4-0204 | 16.5 m² | 1 | 1 |
| Soverom 4-0205 | 16.5 m² | 1 | 1 |
| Soverom 4-0206 | 16.5 m² | 1 | 1 |
| Soverom 4-0207 | 16.5 m² | 1 | 1 |
| Soverom 4-0208 | 16.5 m² | 1 | 1 |
| Soverom 4-0209 | 16.5 m² | 1 | 1 |
| Soverom 4-0210 | 16.5 m² | 1 | 1 |
| Soverom 4-0211 | 16.5 m² | 1 | 1 |
| Soverom 4-0212 | 16.5 m² | 1 | 1 |
| Bad 4-0310 | 4.7 m² | 0 | 1 |
| Bad 4-0311 | 4.7 m² | 0 | 1 |
| Bad 4-0312 | 4.7 m² | 0 | 1 |
| Kjøkken 4-0401 | 10.5 m² | 1 | 1 |
| Kjøkken 4-0402 | 10.5 m² | 1 | 1 |
| Kjøkken 4-0403 | 10.5 m² | 1 | 1 |
| Kjøkken 4-0404 | 10.5 m² | 1 | 1 |
| Kjøkken 4-0405 | 10.5 m² | 1 | 1 |
| Kjøkken 4-0406 | 10.5 m² | 1 | 1 |
| Kjøkken 4-0407 | 10.5 m² | 1 | 1 |
| Kjøkken 4-0408 | 10.5 m² | 1 | 1 |
| Kjøkken 4-0409 | 10.5 m² | 1 | 1 |
| Kjøkken 4-0410 | 10.5 m² | 1 | 1 |
| Kjøkken 4-0411 | 10.5 m² | 1 | 1 |
| Kjøkken 4-0412 | 10.5 m² | 1 | 1 |
| Gang 4-0501 | 15.0 m² | 0 | 1 |
| Gang 4-0502 | 15.0 m² | 0 | 1 |
| Gang 4-0503 | 15.0 m² | 0 | 1 |
| Gang 4-0504 | 15.0 m² | 0 | 1 |
| Gang 4-0505 | 15.0 m² | 0 | 1 |
| Gang 4-0506 | 15.0 m² | 0 | 1 |
| Gang 4-0507 | 15.0 m² | 0 | 1 |
| Gang 4-0508 | 15.0 m² | 0 | 1 |
| Gang 4-0509 | 15.0 m² | 0 | 1 |
| Gang 4-0510 | 15.0 m² | 0 | 1 |
| Gang 4-0511 | 15.0 m² | 0 | 1 |
| Gang 4-0512 | 15.0 m² | 0 | 1 |
| Vaskerom 4-0601 | 4.5 m² | 1 | 1 |
| Vaskerom 4-0602 | 4.5 m² | 1 | 1 |
| Vaskerom 4-0603 | 4.5 m² | 1 | 1 |
| Vaskerom 4-0604 | 4.5 m² | 1 | 1 |
| Vaskerom 4-0605 | 4.5 m² | 1 | 1 |
| Vaskerom 4-0606 | 4.5 m² | 1 | 1 |
| Vaskerom 4-0607 | 4.5 m² | 1 | 1 |
| Vaskerom 4-0608 | 4.5 m² | 1 | 1 |
| Vaskerom 4-0609 | 4.5 m² | 1 | 1 |
| Vaskerom 4-0610 | 4.5 m² | 1 | 1 |
| Vaskerom 4-0611 | 4.5 m² | 1 | 1 |
| Vaskerom 4-0612 | 4.5 m² | 1 | 1 |
| Teknisk rom 4-0701 | 3.5 m² | 0 | 1 |
| Teknisk rom 4-0702 | 3.5 m² | 0 | 1 |
| Teknisk rom 4-0703 | 3.5 m² | 0 | 1 |
| Teknisk rom 4-0704 | 3.5 m² | 0 | 1 |
| Teknisk rom 4-0705 | 3.5 m² | 0 | 1 |
| Teknisk rom 4-0706 | 3.5 m² | 0 | 1 |
| Teknisk rom 4-0707 | 3.5 m² | 0 | 1 |
| Teknisk rom 4-0708 | 3.5 m² | 0 | 1 |
| Teknisk rom 4-0709 | 3.5 m² | 0 | 1 |
| Teknisk rom 4-0710 | 3.5 m² | 0 | 1 |
| Teknisk rom 4-0711 | 3.5 m² | 0 | 1 |
| Teknisk rom 4-0712 | 3.5 m² | 0 | 1 |
| Bod 4-0801 | 6.2 m² | 1 | 1 |
| Bod 4-0802 | 6.2 m² | 1 | 1 |
| Bod 4-0803 | 6.2 m² | 1 | 1 |
| Bod 4-0804 | 6.2 m² | 1 | 1 |
| Bod 4-0805 | 6.2 m² | 1 | 1 |
| Bod 4-0806 | 6.2 m² | 1 | 1 |
| Bod 4-0807 | 6.2 m² | 1 | 1 |
| Bod 4-0808 | 6.2 m² | 1 | 1 |
| Bod 4-0809 | 6.2 m² | 1 | 1 |
| Bod 4-0810 | 6.2 m² | 1 | 1 |
| Bod 4-0811 | 6.2 m² | 1 | 1 |
| Bod 4-0812 | 6.2 m² | 1 | 1 |
| Gang 4-0901 | 25.2 m² | 0 | 1 |
Etasje 5 403.5 m²
| Rom | Areal | Vinduer | Dører |
|---|---|---|---|
| Stue 4-0401 | 39.2 m² | 1 | 2 |
| Sov 1 4-0402 | 13.6 m² | 1 | 1 |
| Sov 2 4-0403 | 12.5 m² | 1 | 1 |
| Bad 4-0404 | 6.3 m² | 0 | 1 |
| Kjøkken 4-0405 | 14.3 m² | 1 | 1 |
| Gang 4-0406 | 7.8 m² | 0 | 2 |
| Vaskerom 4-0407 | 4.3 m² | 0 | 1 |
| Teknisk 4-0408 | 3.5 m² | 0 | 1 |
| Terrasse 4-0409 | 8.3 m² | 0 | 1 |
Etasje 6 0.0 m²
| Rom | Areal | Vinduer | Dører |
|---|
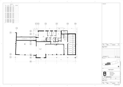
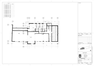
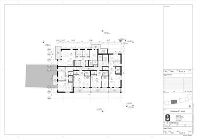
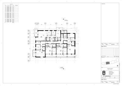
Bygg 3 3,169.5 m²
Etasje 3 1,506.5 m²
| Rom | Areal | Vinduer | Dører |
|---|---|---|---|
| Stue 3A01 | 49.3 m² | 1 | 2 |
| Kjøkken 3A02 | 12.4 m² | 1 | 1 |
| Bad 3A03 | 8.5 m² | 0 | 1 |
| Gang 3A04 | 9.8 m² | 0 | 2 |
| Sov 1 3A05 | 16.0 m² | 1 | 1 |
| Sov 2 3A06 | 11.1 m² | 1 | 1 |
| Balkong 3A07 | 8.5 m² | 0 | 1 |
| Stue 3B01 | 49.3 m² | 1 | 2 |
| Kjøkken 3B02 | 12.4 m² | 1 | 1 |
| Bad 3B03 | 8.5 m² | 0 | 1 |
| Gang 3B04 | 9.8 m² | 0 | 2 |
| Sov 1 3B05 | 16.0 m² | 1 | 1 |
| Sov 2 3B06 | 11.1 m² | 1 | 1 |
| Balkong 3B07 | 8.5 m² | 0 | 1 |
| Stue 3C01 | 49.3 m² | 1 | 2 |
| Kjøkken 3C02 | 12.4 m² | 1 | 1 |
| Bad 3C03 | 8.5 m² | 0 | 1 |
| Gang 3C04 | 9.8 m² | 0 | 2 |
| Sov 1 3C05 | 16.0 m² | 1 | 1 |
| Sov 2 3C06 | 11.1 m² | 1 | 1 |
| Balkong 3C07 | 8.5 m² | 0 | 1 |
| Stue 3D01 | 49.3 m² | 1 | 2 |
| Kjøkken 3D02 | 12.4 m² | 1 | 1 |
| Bad 3D03 | 8.5 m² | 0 | 1 |
| Gang 3D04 | 9.8 m² | 0 | 2 |
| Sov 1 3D05 | 16.0 m² | 1 | 1 |
| Sov 2 3D06 | 11.1 m² | 1 | 1 |
| Balkong 3D07 | 8.5 m² | 0 | 1 |
| Stue 3E01 | 49.3 m² | 1 | 2 |
| Kjøkken 3E02 | 12.4 m² | 1 | 1 |
| Bad 3E03 | 8.5 m² | 0 | 1 |
| Gang 3E04 | 9.8 m² | 0 | 2 |
| Sov 1 3E05 | 16.0 m² | 1 | 1 |
| Sov 2 3E06 | 11.1 m² | 1 | 1 |
| Balkong 3E07 | 8.5 m² | 0 | 1 |
| Stue 3F01 | 49.3 m² | 1 | 2 |
| Kjøkken 3F02 | 12.4 m² | 1 | 1 |
| Bad 3F03 | 8.5 m² | 0 | 1 |
| Gang 3F04 | 9.8 m² | 0 | 2 |
| Sov 1 3F05 | 16.0 m² | 1 | 1 |
| Sov 2 3F06 | 11.1 m² | 1 | 1 |
| Balkong 3F07 | 8.5 m² | 0 | 1 |
| Stue 3G01 | 49.3 m² | 1 | 2 |
| Kjøkken 3G02 | 12.4 m² | 1 | 1 |
| Bad 3G03 | 8.5 m² | 0 | 1 |
| Gang 3G04 | 9.8 m² | 0 | 2 |
| Sov 1 3G05 | 16.0 m² | 1 | 1 |
| Sov 2 3G06 | 11.1 m² | 1 | 1 |
| Balkong 3G07 | 8.5 m² | 0 | 1 |
| Stue 3H01 | 49.3 m² | 1 | 2 |
| Kjøkken 3H02 | 12.4 m² | 1 | 1 |
| Bad 3H03 | 8.5 m² | 0 | 1 |
| Gang 3H04 | 9.8 m² | 0 | 2 |
| Sov 1 3H05 | 16.0 m² | 1 | 1 |
| Sov 2 3H06 | 11.1 m² | 1 | 1 |
| Balkong 3H07 | 8.5 m² | 0 | 1 |
| Apt. 4R 2-3_4R-01a | 0.0 m² | 2 | 3 |
| Apt. 2R 2-3_2R-01 | 0.0 m² | 2 | 3 |
| Apt. 3R 2-3_3R-01 | 0.0 m² | 2 | 3 |
| Apt. 3R 2-3_3R-02a | 0.0 m² | 2 | 3 |
| Apt. 2R 2-3_2R-02a | 0.0 m² | 2 | 3 |
| Apt. 2R 4_2R-01a | 0.0 m² | 2 | 3 |
| Apt. 2R 4_2R-02a | 0.0 m² | 2 | 3 |
| Apt. 2R 4_2R-03a | 0.0 m² | 2 | 3 |
| Apt. 2R 4_2R-04a | 0.0 m² | 2 | 3 |
| Apt. 3R 4_3R-01 | 0.0 m² | 2 | 3 |
| Apt. 3R 4_3R-02a | 0.0 m² | 2 | 3 |
| Apt. 4R 4_4R-01 | 0.0 m² | 2 | 3 |
| Apt. 4R 4_4R-02 | 0.0 m² | 2 | 3 |
| Apt. 4R 4_4R-03 | 0.0 m² | 2 | 3 |
| Apt. 4R 4_4R-04 | 0.0 m² | 2 | 3 |
| Apt. 4R 1_4R-01 | 0.0 m² | 2 | 3 |
| Apt. 2R 1_2R-01 | 0.0 m² | 2 | 3 |
| Apt. 3R 1_3R-01 | 0.0 m² | 2 | 3 |
| Apt. 4R 2-3_4R-01b | 0.0 m² | 2 | 3 |
| Apt. 2R 2-3_2R-01b | 0.0 m² | 2 | 3 |
| Apt. 3R 2-3_3R-01b | 0.0 m² | 2 | 3 |
| Apt. 3R 2-3_3R-02b | 0.0 m² | 2 | 3 |
| Apt. 2R 2-3_2R-02b | 0.0 m² | 2 | 3 |
| Apt. 2R 4_2R-01b | 0.0 m² | 2 | 3 |
| Apt. 2R 4_2R-02b | 0.0 m² | 2 | 3 |
| Apt. 2R 4_2R-03b | 0.0 m² | 2 | 3 |
| Apt. 2R 4_2R-04b | 0.0 m² | 2 | 3 |
| Apt. 3R 4_3R-01b | 0.0 m² | 2 | 3 |
| Apt. 3R 4_3R-02b | 0.0 m² | 2 | 3 |
| Apt. 4R 4_4R-01b | 0.0 m² | 2 | 3 |
| Apt. 4R 4_4R-02b | 0.0 m² | 2 | 3 |
| Apt. 4R 4_4R-03b | 0.0 m² | 2 | 3 |
| Apt. 4R 4_4R-04b | 0.0 m² | 2 | 3 |
| Stue 301 | 150.0 m² | 2 | 1 |
| Gang 302 | 100.0 m² | 0 | 2 |
| Soverom 303 | 120.0 m² | 1 | 1 |
| Soverom 304 | 100.0 m² | 1 | 1 |
| Bad 305 | 20.0 m² | 0 | 1 |
| Kjøkken 306 | 130.5 m² | 1 | 1 |
| Stue 1.04.02 | 19.0 m² | 1 | 2 |
| Sove 1 1.04.03 | 10.0 m² | 1 | 1 |
| Sove 2 1.04.04 | 7.9 m² | 1 | 1 |
| Bad 1.04.05 | 4.8 m² | 0 | 1 |
| Kjøkken 1.04.06 | 4.0 m² | 1 | 1 |
| Gang 1.04.07 | 1.0 m² | 0 | 2 |
| Stue 3A | 43.8 m² | 2 | 2 |
| Kjøkken 3B | 11.4 m² | 0 | 1 |
| Gang 3C | 6.4 m² | 0 | 2 |
| Bad 3D | 5.3 m² | 0 | 1 |
| Sov 1 3E | 10.6 m² | 1 | 1 |
| Sov 2 3F | 4.3 m² | 0 | 1 |
| Bod 3G | 8.0 m² | 0 | 1 |
| Balkong 3H | 5.3 m² | 0 | 1 |
| Trapp 3I | 14.5 m² | 0 | 0 |
| Gang 3J | 10.8 m² | 0 | 2 |
| Sov 1 3K | 14.4 m² | 1 | 1 |
| Sov 2 3L | 2.1 m² | 0 | 1 |
| Kjeller 3M | 3.7 m² | 0 | 1 |
| Gang 3N | 14.5 m² | 0 | 2 |
| Sov 1 3O | 4.2 m² | 0 | 1 |
| Sov 2 3P | 6.1 m² | 1 | 1 |
| Bod 3Q | 5.2 m² | 0 | 1 |
| Balkong 3R | 9.1 m² | 0 | 1 |
| Stue 3S | 49.8 m² | 2 | 2 |
| Kjøkken 3T | 22.2 m² | 0 | 1 |
| Gang 3U | 8.1 m² | 0 | 2 |
| Bad 3V | 9.1 m² | 0 | 1 |
| Sov 1 3W | 22.2 m² | 1 | 1 |
| Sov 2 3X | 4.7 m² | 0 | 1 |
| Bod 3Y | 4.7 m² | 0 | 1 |
| Balkong 3Z | 13.7 m² | 0 | 1 |
| Stue 3AA | 46.8 m² | 2 | 2 |
| Kjøkken 3AB | 22.2 m² | 0 | 1 |
| Gang 3AC | 8.1 m² | 0 | 2 |
| Bad 3AD | 9.1 m² | 0 | 1 |
| Sov 1 3AE | 22.2 m² | 1 | 1 |
| Sov 2 3AF | 4.7 m² | 0 | 1 |
| Bod 3AG | 4.7 m² | 0 | 1 |
| Balkong 3AH | 9.1 m² | 0 | 1 |
| Trapp 3AI | 14.5 m² | 0 | 0 |
| Gang 3AJ | 10.8 m² | 0 | 2 |
| Sov 1 3AK | 14.4 m² | 1 | 1 |
| Sov 2 3AL | 2.1 m² | 0 | 1 |
| Kjeller 3AM | 3.7 m² | 0 | 1 |
| Gang 3AN | 14.5 m² | 0 | 2 |
| Sov 1 3AO | 4.2 m² | 0 | 1 |
| Sov 2 3AP | 6.1 m² | 1 | 1 |
| Bod 3AQ | 5.2 m² | 0 | 1 |
| Balkong 3AR | 9.1 m² | 0 | 1 |
Etasje 1 156.5 m²
| Rom | Areal | Vinduer | Dører |
|---|---|---|---|
| Stue 3A | 106.1 m² | 2 | 1 |
| Kjøkken 3B | 19.3 m² | 1 | 1 |
| Gang 3C | 7.4 m² | 0 | 2 |
| Bad 3D | 5.0 m² | 0 | 1 |
| Vaskerom 3E | 4.7 m² | 0 | 1 |
| Soverom 1 3F | 11.1 m² | 1 | 1 |
| Soverom 2 3G | 10.3 m² | 1 | 1 |
| Soverom 3 3H | 14.0 m² | 1 | 1 |
| Soverom 4 3.1 | 14.0 m² | 1 | 1 |
| Soverom 5 3.2 | 14.0 m² | 1 | 1 |
| Soverom 6 3.3 | 14.0 m² | 1 | 1 |
| Soverom 7 3.4 | 14.0 m² | 1 | 1 |
| Soverom 8 3.5 | 14.0 m² | 1 | 1 |
| Soverom 9 3.6 | 14.0 m² | 1 | 1 |
| Gang 1.1 | 0.0 m² | 0 | 2 |
| Gang 1.2 | 0.0 m² | 0 | 1 |
| Gang 1.3 | 0.0 m² | 0 | 1 |
| Gang 1.4 | 0.0 m² | 0 | 1 |
| Gang 1.5 | 0.0 m² | 0 | 1 |
| Gang 2A | 0.0 m² | 0 | 1 |
| Gang 2B | 0.0 m² | 0 | 1 |
| Gang 2C | 0.0 m² | 0 | 1 |
| Gang 2D | 0.0 m² | 0 | 1 |
| Gang 2E | 0.0 m² | 0 | 1 |
| Gang 2F | 0.0 m² | 0 | 1 |
| Gang 2G | 0.0 m² | 0 | 1 |
| Gang 2H | 0.0 m² | 0 | 1 |
| Gang 2.2 | 0.0 m² | 0 | 1 |
| Gang 2.3 | 0.0 m² | 0 | 1 |
| Gang 2.4 | 0.0 m² | 0 | 1 |
| Gang 2.5 | 0.0 m² | 0 | 1 |
| Gang 2.6 | 0.0 m² | 0 | 1 |
| Gang 4A | 0.0 m² | 0 | 1 |
| Gang 4B | 0.0 m² | 0 | 1 |
| Gang 4C | 0.0 m² | 0 | 1 |
| Gang 4D | 0.0 m² | 0 | 1 |
| Gang 4E | 0.0 m² | 0 | 1 |
| Gang 4.1 | 0.0 m² | 0 | 1 |
| Gang 4.2 | 0.0 m² | 0 | 1 |
| Gang 4.4 | 0.0 m² | 0 | 1 |
| Gang 4.5 | 0.0 m² | 0 | 1 |
| Gang 4.2R_02c | 0.0 m² | 0 | 1 |
| Gang 4.2R_03c | 0.0 m² | 0 | 1 |
| Gang 4.2R_04b | 0.0 m² | 0 | 1 |
| Gang 2-3_4R_01c | 0.0 m² | 0 | 1 |
| Bod 101 | 302.3 m² | 0 | 0 |
| Stue 1.02.02 | 19.0 m² | 1 | 2 |
| Sove 1 1.02.03 | 10.0 m² | 1 | 1 |
| Sove 2 1.02.04 | 7.9 m² | 1 | 1 |
| Bad 1.02.05 | 4.8 m² | 0 | 1 |
| Kjøkken 1.02.06 | 4.0 m² | 1 | 1 |
| Gang 1.02.07 | 1.0 m² | 0 | 2 |
| Teknisk rom Teknisk | 8.4 m² | 0 | 1 |
| Trapp Trapp | 14.5 m² | 0 | 1 |
| Trapp 2.1 | 12.0 m² | 0 | 1 |
Etasje 2 1,506.5 m²
| Rom | Areal | Vinduer | Dører |
|---|---|---|---|
| Bod 2R B2_K | 36.1 m² | 0 | 1 |
| Bod 2R B3_Plan02 | 90.0 m² | 0 | 1 |
| Bod 2R B3_Plan02 | 90.0 m² | 0 | 1 |
| Bod 2R B3_Plan03 | 90.0 m² | 0 | 1 |
| Bod 2R B3_Plan03 | 90.0 m² | 0 | 1 |
| Bod 2R B3_Plan04 | 90.0 m² | 0 | 1 |
| Bod 2R B3_Plan04 | 90.0 m² | 0 | 1 |
| Bod 2R B3_Plan05 | 90.0 m² | 0 | 1 |
| Bod 2R B3_Plan05 | 90.0 m² | 0 | 1 |
| Bod 2R B3_Plan06 | 49.8 m² | 0 | 1 |
| Bod 2R B3_Plan06 | 49.8 m² | 0 | 1 |
| Bod 2R B3_Plan07 | 89.3 m² | 0 | 1 |
| Bod 2R B3_Plan07 | 75.0 m² | 0 | 1 |
| Bod 2R B3_Plan08 | 89.3 m² | 0 | 1 |
| Bod 2R B3_Plan08 | 75.0 m² | 0 | 1 |
| Bod 2R B3_Plan09 | 75.0 m² | 0 | 1 |
| Bod 2R B3_Plan09 | 89.3 m² | 0 | 1 |
| Bod 2R B3_Plan10 | 75.0 m² | 0 | 1 |
| Bod 2R B3_Plan10 | 75.0 m² | 0 | 1 |
| Bod 2R B3_Plan11 | 100.1 m² | 0 | 1 |
| Bod 2R B3_Plan12 | 106.3 m² | 0 | 1 |
| Bod 2R B3_Plan13 | 106.3 m² | 0 | 1 |
| Bod 2R B3_Plan14 | 106.3 m² | 0 | 1 |
| Bod 2R B3_Plan15 | 106.3 m² | 0 | 1 |
| Bod 2R B3_Plan16 | 106.3 m² | 0 | 1 |
| Leilighet 1_4R_01 | 0.0 m² | 2 | 2 |
| Leilighet 1_2R_01 | 0.0 m² | 2 | 2 |
| Leilighet 1_3R_01 | 0.0 m² | 2 | 2 |
| Leilighet 2_3_4R_01d | 0.0 m² | 2 | 2 |
| Leilighet 2_3_3R_02b | 0.0 m² | 2 | 2 |
| Leilighet 2_3_2R_01 | 0.0 m² | 2 | 2 |
| Leilighet 2_3_3R_01 | 0.0 m² | 2 | 2 |
| Leilighet 3_3_2R_02a | 0.0 m² | 2 | 2 |
| Leilighet 3_3_2R_01 | 0.0 m² | 2 | 2 |
| Leilighet 3_3_3R_01 | 0.0 m² | 2 | 2 |
| Leilighet 4_2R_03b | 0.0 m² | 2 | 2 |
| Leilighet 4_2R_04a | 0.0 m² | 2 | 2 |
| Leilighet 4_2R_02b | 0.0 m² | 2 | 2 |
| Leilighet 4_2R_01b | 0.0 m² | 2 | 2 |
| Leilighet 4_3R_02b | 0.0 m² | 2 | 2 |
| Leilighet 4_3R_01 | 0.0 m² | 2 | 2 |
| Leilighet 1_4R-01 | 0.0 m² | 2 | 2 |
| Leilighet 1_2R-01 | 0.0 m² | 2 | 2 |
| Leilighet 1_3R-01 | 0.0 m² | 2 | 2 |
| Leilighet 2-3_4R_01d | 0.0 m² | 2 | 2 |
| Leilighet 2-3_3R_02b | 0.0 m² | 2 | 2 |
| Leilighet 2-3_2R_01 | 0.0 m² | 2 | 2 |
| Leilighet 2-3_3R_01 | 0.0 m² | 2 | 2 |
| Leilighet 3-3_2R_01 | 0.0 m² | 2 | 2 |
| Leilighet 3-3_3R_01 | 0.0 m² | 2 | 2 |
| Leilighet 3-3_4R_01a | 0.0 m² | 2 | 2 |
| Stue 201 | 201.1 m² | 2 | 1 |
| Gang 202 | 150.0 m² | 0 | 2 |
| Soverom 203 | 120.0 m² | 1 | 1 |
| Soverom 204 | 100.0 m² | 1 | 1 |
| Bad 205 | 20.0 m² | 0 | 1 |
| Kjøkken 206 | 100.0 m² | 1 | 1 |
| Stue 1.03.02 | 19.0 m² | 1 | 2 |
| Sove 1 1.03.03 | 10.0 m² | 1 | 1 |
| Sove 2 1.03.04 | 7.9 m² | 1 | 1 |
| Bad 1.03.05 | 4.8 m² | 0 | 1 |
| Kjøkken 1.03.06 | 4.0 m² | 1 | 1 |
| Gang 1.03.07 | 1.0 m² | 0 | 2 |
Etasje 0 0.0 m²
| Rom | Areal | Vinduer | Dører |
|---|
Etasje 4 0.0 m²
| Rom | Areal | Vinduer | Dører |
|---|---|---|---|
| Leilighet 4_2R-01a | 0.0 m² | 2 | 2 |
| Leilighet 4_2R-02a | 0.0 m² | 2 | 2 |
| Leilighet 4_2R-03a | 0.0 m² | 2 | 2 |
| Leilighet 4_3R-01 | 0.0 m² | 2 | 2 |
| Leilighet 4_2R-04a | 0.0 m² | 2 | 2 |
| Stue 401 | 150.0 m² | 2 | 1 |
| Gang 402 | 100.0 m² | 0 | 2 |
| Soverom 403 | 120.0 m² | 1 | 1 |
| Soverom 404 | 100.0 m² | 1 | 1 |
| Bad 405 | 20.0 m² | 0 | 1 |
| Kjøkken 406 | 127.3 m² | 1 | 1 |
| Stue 1.05.02 | 19.0 m² | 1 | 2 |
| Sove 1 1.05.03 | 10.0 m² | 1 | 1 |
| Sove 2 1.05.04 | 7.9 m² | 1 | 1 |
| Bad 1.05.05 | 4.8 m² | 0 | 1 |
| Kjøkken 1.05.06 | 4.0 m² | 1 | 1 |
| Gang 1.05.07 | 1.0 m² | 0 | 2 |
| Leilighet 4R_B2_Plan01 | 106.1 m² | 2 | 2 |
| Leilighet 4R_B2_Plan02 | 106.3 m² | 2 | 2 |
| Leilighet 4R_B2_Plan03 | 106.3 m² | 2 | 2 |
| Leilighet 4R_B2_Plan04 | 106.3 m² | 2 | 2 |
| Leilighet 4R_B2_Plan05 | 106.3 m² | 2 | 2 |
Bygg 1 177.3 m²
Etasje 6 0.0 m²
| Rom | Areal | Vinduer | Dører |
|---|
Etasje 2 46.7 m²
| Rom | Areal | Vinduer | Dører |
|---|---|---|---|
| Plan 02 2R | 46.7 m² | 3 | 2 |
Etasje 3 70.7 m²
| Rom | Areal | Vinduer | Dører |
|---|---|---|---|
| Plan 03 3R | 70.7 m² | 3 | 2 |
Etasje 4 59.9 m²
| Rom | Areal | Vinduer | Dører |
|---|---|---|---|
| Plan 04 4R | 59.9 m² | 3 | 2 |
BRA bygg 1-2-3-4 0.0 m²
Etasje 1 0.0 m²
| Rom | Areal | Vinduer | Dører |
|---|
Hovedbygg 0.0 m²
Etasje 1 0.0 m²
| Rom | Areal | Vinduer | Dører |
|---|
Fasader
Bygg 1
- Materiale
- Betong
- Taktype
- Flatt tak
- Høyde
- 12.0 m
- Mønehøyde
- 12.3 m
- Vinduer
- 12
- Dører
- 1
- Synlige etasjer
- 4
- Materiale
- Betong
- Taktype
- Flatt tak
- Høyde
- 12.0 m
- Mønehøyde
- 12.3 m
- Vinduer
- 12
- Dører
- 1
- Synlige etasjer
- 4
- Materiale
- Betong
- Taktype
- Flatt tak
- Høyde
- 12.5 m
- Mønehøyde
- 12.3 m
- Vinduer
- 12
- Dører
- 1
- Balkonger
- 4
- Synlige etasjer
- 4
- Materiale
- Betong
- Taktype
- Flatt tak
- Høyde
- 12.5 m
- Mønehøyde
- 12.3 m
- Vinduer
- 14
- Dører
- 2
- Balkonger
- 4
- Synlige etasjer
- 4