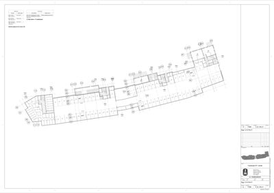
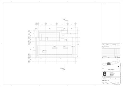
Facade
Bildet viser fire fasadetegninger (nord, syd, vest, øst) for et bygg, inkludert målestokk og tegningsboks.
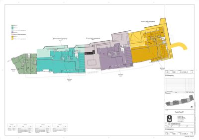
Ny leilighetsbygning med næringsareal i Folabruveien 12-16, Asker
📍 Folabruveien 12, 14 og 16
Nøkkelinfo
- Sakstype
- Nybygg
- Bygningstype
- Leilighetsbygg
- Bruksareal
- 3,337 m²
- Boenheter
- 21
- Kommune
- Asker
- Fylke
- Akershus
- Gnr / Bnr
- 50 / 434
- Saksnummer
- 21/4418
- Fase
- Ferdigattest
Om byggesaken
Arbeidsomfang
Produkter og materialer
🧱 Tre
Tømrerarbeid og montering av trekonstruksjoner, komplettering av panel på fasader og terrasser
Tømrerarbeid for byggets trekonstruksjoner og fasade
Varmepumpe luft som energiforsyning
Varmepumpe for oppvarming
🧱 Glass
Antall: 50
Vinduer i betongfasade, inkludert 12 mot nord, 16 mot sør, 10 mot vest og 6 mot øst fasade på Bygg 3
Fasadevinduer i leilighetsbyggets betongfasade
Ventilasjon og klimainstallasjoner utført av Ingeniørfirmaet LS Solland AS og Andresen Jacobsen og Løyning AS
Ventilasjonssystem for leilighetsbygget
🧱 Betong
Plasstøpte betongkonstruksjoner for bærende konstruksjoner og kjeller
Betongarbeider for bærende konstruksjoner
🧱 Glass og metall
Antall: 8
Glassrekkverk på balkonger for helhetlig fasadeuttrykk
Rekkverk på balkonger
🧱 Glass og beslag
Antall: 8
Balkonger med full innglassing der støykrav krever det, beslag mellom balkongene for helhetlig uttrykk
Innglassede balkonger med glassrekkverk og beslag
Antall: 2
Personheiser levert av Orona Norway AS, sertifisert iht. NS-EN 81-20
Heiser i bygget for tilgjengelighet
Ingen eksplisitt informasjon om solceller i dokumentene
Ingen solcelleanlegg dokumentert
🧱 Glass og metall
Antall: 7
Ytterdører i fasade og glassdører i næringsareal, inkludert dører til balkonger og rømningstrapper
Ytterdører og glassdører til leiligheter og næringslokaler
Veg- og grunnarbeider, landskapsutforming, uteoppholdsarealer, fortau, gang- og sykkelvei, overvannsgrøfter
Utomhusarbeider og grunnarbeider for prosjektet
Maling av innvendige og utvendige flater iht. standard byggeskikk
Maling for ferdigstillelse av bygget
Vannbåren radiator, elektriske varmekabler, varmepumpe luft, sanitærinstallasjoner
Fullt VVS-anlegg for leilighetsbygget
Sprinkleranlegg prosjektert og utført av Sprinkler Prosjekt AS og VEAS Rør AS
Brannslukkingsanlegg
Gulvbelegg i leiligheter og fellesarealer, inkludert parkett og fliser på bad
Innvendige gulvbelegg
Brannalarmanlegg, nødlysanlegg og ledesystem installert av Schneider Electric Norge AS og Irby Elektro AS
Brann- og sikkerhetssystemer
🧱 Teglstein
Murarbeid med teglstein på deler av fasade og rømningstrapp
Murarbeid for fasade og trapper
🧱 Betong, tegl, beslag
Antall: 1
Betongfasade med teglstein på deler av fasade i underetasjen, beslag mellom balkonger
Betongfasade med tegl og beslag for estetikk og funksjon
🧱 Betong og metall
Antall: 6
6 trapper i bygget, inkludert rømningstrapper med platekledning i stående format
Innvendige trapper og rømningstrapper i leilighetsbygget
🧱 Sedum og betong
Antall: 1
Flatt tak med sedumtak og betongkonstruksjon
Tak med sedum og betongkonstruksjon
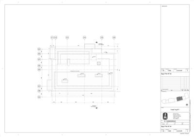
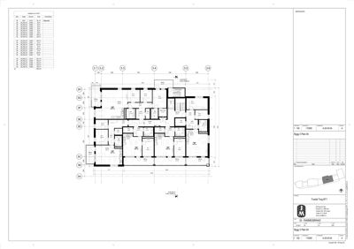
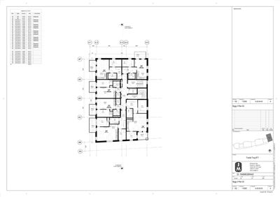
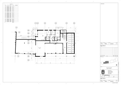
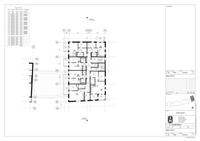
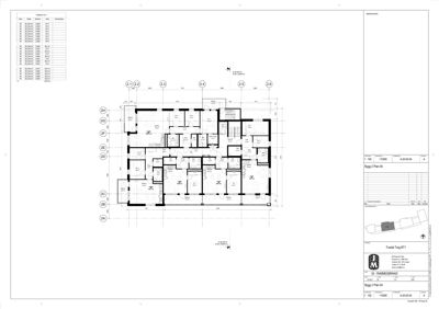
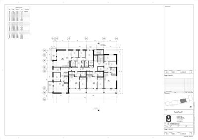
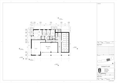
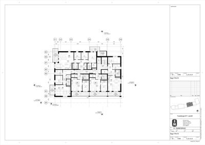
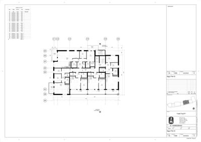
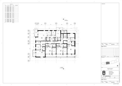
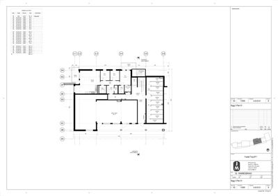
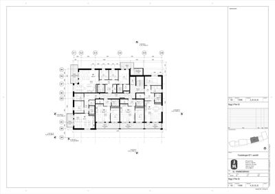
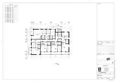
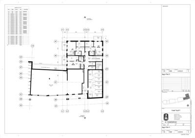
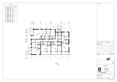
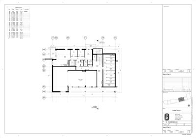
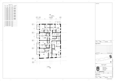
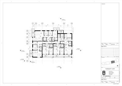
Plantegning
Bygg 3 3,336.8 m²
Etasje 3 1,056.5 m²
| Rom | Areal | Vinduer | Dører |
|---|---|---|---|
| Stue 3A_Plan01 | 27.5 m² | 1 | 1 |
| Kjøkken 3A_Plan02 | 9.7 m² | 0 | 1 |
| Gang 3A_Plan03 | 4.4 m² | 0 | 2 |
| Bad 3A_Plan04 | 4.2 m² | 0 | 1 |
| Sov 1 3A_Plan05 | 10.1 m² | 1 | 1 |
| Sov 2 3A_Plan06 | 10.1 m² | 1 | 1 |
| Stue 3B_Plan01 | 16.2 m² | 1 | 1 |
| Kjøkken 3B_Plan02 | 10.4 m² | 0 | 1 |
| Gang 3B_Plan03 | 4.7 m² | 0 | 2 |
| Bad 3B_Plan04 | 4.7 m² | 0 | 1 |
| Sov 1 3B_Plan05 | 10.1 m² | 1 | 1 |
| Sov 2 3B_Plan06 | 10.1 m² | 1 | 1 |
| Stue 3C_Plan01 | 22.5 m² | 1 | 1 |
| Kjøkken 3C_Plan02 | 9.8 m² | 0 | 1 |
| Gang 3C_Plan03 | 4.7 m² | 0 | 2 |
| Bad 3C_Plan04 | 4.7 m² | 0 | 1 |
| Sov 1 3C_Plan05 | 10.1 m² | 1 | 1 |
| Sov 2 3C_Plan06 | 10.1 m² | 1 | 1 |
| Stue 3D_Plan01 | 22.5 m² | 1 | 1 |
| Kjøkken 3D_Plan02 | 9.8 m² | 0 | 1 |
| Gang 3D_Plan03 | 4.7 m² | 0 | 2 |
| Bad 3D_Plan04 | 4.7 m² | 0 | 1 |
| Sov 1 3D_Plan05 | 10.1 m² | 1 | 1 |
| Sov 2 3D_Plan06 | 10.1 m² | 1 | 1 |
| Stue 3E_Plan01 | 22.5 m² | 1 | 1 |
| Kjøkken 3E_Plan02 | 9.8 m² | 0 | 1 |
| Gang 3E_Plan03 | 4.7 m² | 0 | 2 |
| Bad 3E_Plan04 | 4.7 m² | 0 | 1 |
| Sov 1 3E_Plan05 | 10.1 m² | 1 | 1 |
| Sov 2 3E_Plan06 | 10.1 m² | 1 | 1 |
| Stue 3F_Plan01 | 22.5 m² | 1 | 1 |
| Kjøkken 3F_Plan02 | 9.8 m² | 0 | 1 |
| Gang 3F_Plan03 | 4.7 m² | 0 | 2 |
| Bad 3F_Plan04 | 4.7 m² | 0 | 1 |
| Sov 1 3F_Plan05 | 10.1 m² | 1 | 1 |
| Sov 2 3F_Plan06 | 10.1 m² | 1 | 1 |
| Stue 3G_Plan01 | 22.5 m² | 1 | 1 |
| Kjøkken 3G_Plan02 | 9.8 m² | 0 | 1 |
| Gang 3G_Plan03 | 4.7 m² | 0 | 2 |
| Bad 3G_Plan04 | 4.7 m² | 0 | 1 |
| Sov 1 3G_Plan05 | 10.1 m² | 1 | 1 |
| Sov 2 3G_Plan06 | 10.1 m² | 1 | 1 |
| Stue 3H_Plan01 | 22.5 m² | 1 | 1 |
| Kjøkken 3H_Plan02 | 9.8 m² | 0 | 1 |
| Gang 3H_Plan03 | 4.7 m² | 0 | 2 |
| Bad 3H_Plan04 | 4.7 m² | 0 | 1 |
| Sov 1 3H_Plan05 | 10.1 m² | 1 | 1 |
| Sov 2 3H_Plan06 | 10.1 m² | 1 | 1 |
| Bod 3A | 2.5 m² | 0 | 1 |
| Bod 3B | 2.6 m² | 0 | 1 |
| Bod 3C | 2.6 m² | 0 | 1 |
| Bod 3D | 2.6 m² | 0 | 1 |
| Bod 3E | 2.6 m² | 0 | 1 |
| Bod 3F | 2.6 m² | 0 | 1 |
| Bod 3G | 2.6 m² | 0 | 1 |
| Bod 3H | 2.6 m² | 0 | 1 |
| Gang 3R | 24.9 m² | 0 | 1 |
| Bad 3.1 | 7.3 m² | 0 | 1 |
| Bad 3.2 | 7.3 m² | 0 | 1 |
| Bad 3.3 | 7.3 m² | 0 | 1 |
| Bad 3.4 | 7.3 m² | 0 | 1 |
| Bad 3.5 | 7.3 m² | 0 | 1 |
| Bad 3.6 | 7.3 m² | 0 | 1 |
| Gang 4R | 106.5 m² | 0 | 1 |
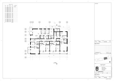
| Soverom 3A_Plan07 | 16.0 m² | 1 | 1 |
| Balkong 3A_Plan08 | 8.5 m² | 0 | 0 |
| Soverom 3B_Plan07 | 16.0 m² | 1 | 1 |
| Balkong 3B_Plan08 | 13.4 m² | 0 | 0 |
| Soverom 3C_Plan07 | 16.0 m² | 1 | 1 |
| Balkong 3C_Plan08 | 13.4 m² | 0 | 0 |
| Soverom 3D_Plan07 | 16.0 m² | 1 | 1 |
| Balkong 3D_Plan08 | 13.4 m² | 0 | 0 |
| Soverom 3E_Plan07 | 16.0 m² | 1 | 1 |
| Balkong 3E_Plan08 | 13.4 m² | 0 | 0 |
| Soverom 3F_Plan07 | 16.0 m² | 1 | 1 |
| Balkong 3F_Plan08 | 13.4 m² | 0 | 0 |
| Soverom 3G_Plan07 | 16.0 m² | 1 | 1 |
| Balkong 3G_Plan08 | 13.4 m² | 0 | 0 |
| Soverom 3H_Plan07 | 16.0 m² | 1 | 1 |
| Balkong 3H_Plan08 | 13.4 m² | 0 | 0 |
| Bod 3_1_01 | 0.0 m² | 0 | 1 |
| Gang 3_1_02 | 0.0 m² | 0 | 2 |
| Stue 3_1_03 | 0.0 m² | 1 | 1 |
| Sove 3_1_04 | 0.0 m² | 1 | 1 |
| Bad 3_1_05 | 0.0 m² | 0 | 1 |
| Vaskerom 3_1_06 | 0.0 m² | 0 | 1 |
| Bod 3_2_01 | 0.0 m² | 0 | 1 |
| Gang 3_2_02 | 0.0 m² | 0 | 2 |
| Stue 3_2_03 | 0.0 m² | 1 | 1 |
| Sove 3_2_04 | 0.0 m² | 1 | 1 |
| Bad 3_2_05 | 0.0 m² | 0 | 1 |
| Vaskerom 3_2_06 | 0.0 m² | 0 | 1 |
| Bod 3_3_01 | 0.0 m² | 0 | 1 |
| Gang 3_3_02 | 0.0 m² | 0 | 2 |
| Stue 3_3_03 | 0.0 m² | 1 | 1 |
| Sove 3_3_04 | 0.0 m² | 1 | 1 |
| Bad 3_3_05 | 0.0 m² | 0 | 1 |
| Vaskerom 3_3_06 | 0.0 m² | 0 | 1 |
| Bod 3_4_01 | 0.0 m² | 0 | 1 |
| Gang 3_4_02 | 0.0 m² | 0 | 2 |
| Stue 3_4_03 | 0.0 m² | 1 | 1 |
| Sove 3_4_04 | 0.0 m² | 1 | 1 |
| Bad 3_4_05 | 0.0 m² | 0 | 1 |
| Vaskerom 3_4_06 | 0.0 m² | 0 | 1 |
| Sove 3_1_07 | 0.0 m² | 1 | 1 |
| Sove 3_1_08 | 0.0 m² | 1 | 1 |
| Kjøkken 3_1_09 | 0.0 m² | 1 | 1 |
| Sove 3_2_07 | 0.0 m² | 1 | 1 |
| Sove 3_2_08 | 0.0 m² | 1 | 1 |
| Kjøkken 3_2_09 | 0.0 m² | 1 | 1 |
| Sove 3_3_07 | 0.0 m² | 1 | 1 |
| Sove 3_3_08 | 0.0 m² | 1 | 1 |
| Kjøkken 3_3_09 | 0.0 m² | 1 | 1 |
| Sove 3_4_07 | 0.0 m² | 1 | 1 |
| Sove 3_4_08 | 0.0 m² | 1 | 1 |
| Kjøkken 3_4_09 | 0.0 m² | 1 | 1 |
| Bod 3_5_01 | 0.0 m² | 0 | 1 |
| Gang 3_5_02 | 0.0 m² | 0 | 2 |
| Bad 3_5_03 | 0.0 m² | 0 | 1 |
| Vaskerom 3_5_04 | 0.0 m² | 0 | 1 |
| Stue 3_5_05 | 0.0 m² | 2 | 1 |
| Sove 3_5_06 | 0.0 m² | 1 | 1 |
| Sove 3_5_07 | 0.0 m² | 1 | 1 |
| Sove 3_5_08 | 0.0 m² | 1 | 1 |
| Kjøkken 3_5_09 | 0.0 m² | 1 | 1 |
| Stue 301 | 150.0 m² | 2 | 1 |
| Kjøkken 302 | 120.0 m² | 1 | 1 |
| Gang 303 | 40.0 m² | 0 | 2 |
| Sovev. 1 304 | 100.0 m² | 1 | 1 |
| Sovev. 2 305 | 80.0 m² | 1 | 1 |
| Bad 306 | 20.0 m² | 0 | 1 |
| Vaskerom 307 | 10.0 m² | 0 | 1 |
| Teknisk 308 | 10.0 m² | 0 | 1 |
| Trapperom 309 | 10.0 m² | 0 | 1 |
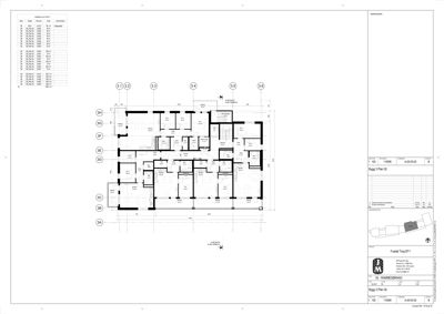
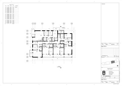
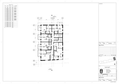
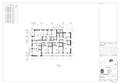
Etasje 2 1,506.5 m²
| Rom | Areal | Vinduer | Dører |
|---|---|---|---|
| Bod 2R B2_K | 36.1 m² | 0 | 1 |
| Bod 2R B3_Plan02 | 90.0 m² | 0 | 1 |
| Bod 2R B3_Plan02 | 90.0 m² | 0 | 1 |
| Bod 2R B3_Plan03 | 90.0 m² | 0 | 1 |
| Bod 2R B3_Plan03 | 90.0 m² | 0 | 1 |
| Bod 2R B3_Plan04 | 90.0 m² | 0 | 1 |
| Bod 2R B3_Plan04 | 90.0 m² | 0 | 1 |
| Bod 2R B3_Plan05 | 90.0 m² | 0 | 1 |
| Bod 2R B3_Plan05 | 90.0 m² | 0 | 1 |
| Bod 2R B3_Plan06 | 49.8 m² | 0 | 1 |
| Bod 2R B3_Plan06 | 49.8 m² | 0 | 1 |
| Leilighet 1_4R-01 | 0.0 m² | 1 | 2 |
| Leilighet 1_2R-01 | 0.0 m² | 1 | 2 |
| Leilighet 1_3R-01 | 0.0 m² | 1 | 2 |
| Leilighet 2-3_4R_01d | 0.0 m² | 1 | 2 |
| Leilighet 2-3_3R_02b | 0.0 m² | 1 | 2 |
| Leilighet 2-3_2R_01 | 0.0 m² | 1 | 2 |
| Leilighet 2-3_3R_01 | 0.0 m² | 1 | 2 |
| Leilighet 2-3_4R_01b | 0.0 m² | 1 | 2 |
| Leilighet 2-3_3R_02a | 0.0 m² | 1 | 2 |
| Leilighet 4_2R_03b | 0.0 m² | 1 | 2 |
| Leilighet 4_2R_04a | 0.0 m² | 1 | 2 |
| Leilighet 4_2R_02b | 0.0 m² | 1 | 2 |
| Leilighet 4_2R_01b | 0.0 m² | 1 | 2 |
| Leilighet 4_3R_02b | 0.0 m² | 1 | 2 |
| Leilighet 4_3R_01 | 0.0 m² | 1 | 2 |
| Stue 201 | 211.1 m² | 2 | 1 |
| Kjøkken 202 | 150.0 m² | 1 | 1 |
| Gang 203 | 50.0 m² | 0 | 2 |
| Sovev. 1 204 | 120.0 m² | 1 | 1 |
| Sovev. 2 205 | 100.0 m² | 1 | 1 |
| Bad 206 | 30.0 m² | 0 | 1 |
| Vaskerom 207 | 20.0 m² | 0 | 1 |
| Teknisk 208 | 10.0 m² | 0 | 1 |
| Trapperom 209 | 10.0 m² | 0 | 1 |
| Rom 3-3_2R_01 | 0.0 m² | 1 | 1 |
| Rom 3-3_3R_02a | 0.0 m² | 1 | 1 |
| Plan 02 2R | 46.7 m² | 3 | 2 |
| Leilighet 2A | 106.3 m² | 3 | 3 |
| Leilighet 2B | 106.3 m² | 3 | 3 |
| Leilighet 2C | 106.3 m² | 3 | 3 |
| Leilighet 2D | 106.3 m² | 3 | 3 |
| Leilighet 2E | 106.3 m² | 3 | 3 |
| Leilighet 2F | 106.3 m² | 3 | 3 |
| Leilighet 2G | 106.3 m² | 3 | 3 |
| Leilighet 2H | 106.3 m² | 3 | 3 |
| Trapp 2.1 | 12.0 m² | 0 | 0 |
| Trapp 2.2 | 12.0 m² | 0 | 0 |
| Trapp 2.3 | 12.0 m² | 0 | 0 |
| Trapp 2.4 | 12.0 m² | 0 | 0 |
| Trapp 2.5 | 12.0 m² | 0 | 0 |
| Trapp 2.6 | 12.0 m² | 0 | 0 |
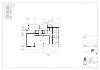
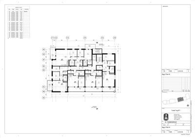
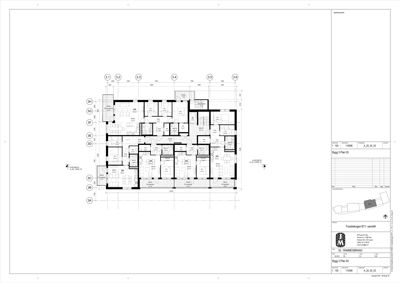
Etasje 1 156.5 m²
| Rom | Areal | Vinduer | Dører |
|---|---|---|---|
| Stue 3A | 106.1 m² | 2 | 1 |
| Kjøkken 3B | 19.3 m² | 1 | 1 |
| Gang 3C | 7.4 m² | 0 | 2 |
| Bad 3D | 5.0 m² | 0 | 1 |
| Vaskerom 3E | 5.0 m² | 0 | 1 |
| Soverom 1 3F | 14.0 m² | 1 | 1 |
| Soverom 2 3G | 14.0 m² | 1 | 1 |
| Soverom 3 3H | 14.0 m² | 1 | 1 |
| Soverom 4 3.1 | 14.0 m² | 1 | 1 |
| Soverom 5 3.2 | 14.0 m² | 1 | 1 |
| Soverom 6 3.3 | 14.0 m² | 1 | 1 |
| Soverom 7 3.4 | 14.0 m² | 1 | 1 |
| Soverom 8 3.5 | 14.0 m² | 1 | 1 |
| Soverom 9 3.6 | 14.0 m² | 1 | 1 |
| Stue 4R | 45.0 m² | 2 | 1 |
| Bod BRA n næring | 10.0 m² | 0 | 1 |
| Gang 1.1 | 0.0 m² | 0 | 2 |
| Gang 1.2 | 0.0 m² | 0 | 1 |
| Gang 1.3 | 0.0 m² | 0 | 1 |
| Gang 1.4 | 0.0 m² | 0 | 1 |
| Gang 1.5 | 0.0 m² | 0 | 1 |
| Gang 2A | 0.0 m² | 0 | 1 |
| Gang 2B | 0.0 m² | 0 | 1 |
| Gang 2C | 0.0 m² | 0 | 1 |
| Gang 2D | 0.0 m² | 0 | 1 |
| Gang 2E | 0.0 m² | 0 | 1 |
| Gang 2F | 0.0 m² | 0 | 1 |
| Gang 2G | 0.0 m² | 0 | 1 |
| Gang 2H | 0.0 m² | 0 | 1 |
| Gang 2.2 | 0.0 m² | 0 | 1 |
| Gang 2.3 | 0.0 m² | 0 | 1 |
| Gang 2.4 | 0.0 m² | 0 | 1 |
| Gang 2.5 | 0.0 m² | 0 | 1 |
| Gang 2.6 | 0.0 m² | 0 | 1 |
| Gang 4A | 0.0 m² | 0 | 1 |
| Gang 4B | 0.0 m² | 0 | 1 |
| Gang 4C | 0.0 m² | 0 | 1 |
| Gang 4D | 0.0 m² | 0 | 1 |
| Gang 4E | 0.0 m² | 0 | 1 |
| Gang 4.1 | 0.0 m² | 0 | 1 |
| Gang 4.2 | 0.0 m² | 0 | 1 |
| Gang 4.4 | 0.0 m² | 0 | 1 |
| Gang 4.5 | 0.0 m² | 0 | 1 |
| Gang 4.2R_02c | 0.0 m² | 0 | 1 |
| Gang 4.2R_03c | 0.0 m² | 0 | 1 |
| Gang 4.2R_04b | 0.0 m² | 0 | 1 |
| Gang 2-3_4R_01c | 0.0 m² | 0 | 1 |
| Gang 4.2R_01c | 0.0 m² | 0 | 1 |
| Gang 2-3_4R_01b | 0.0 m² | 0 | 1 |
| Bod 101 | 302.3 m² | 0 | 0 |
| Soverom 1A | 11.8 m² | 1 | 1 |
| Soverom 1B | 11.8 m² | 1 | 1 |
| Soverom 1C | 11.8 m² | 1 | 1 |
| Soverom 1D | 11.8 m² | 1 | 1 |
| Soverom 1E | 11.8 m² | 1 | 1 |
| Teknisk rom Teknisk | 2.2 m² | 0 | 1 |
| Trapperom Trapp | 4.0 m² | 0 | 1 |
| NÆRING 102 | 0.0 m² | 0 | 0 |
| Bad 103 | 8.5 m² | 0 | 1 |
| Kjøkken 104 | 12.3 m² | 1 | 1 |
| Gang 105 | 5.0 m² | 0 | 2 |
Etasje 0 0.0 m²
| Rom | Areal | Vinduer | Dører |
|---|---|---|---|
| Gang 001 | 0.0 m² | 0 | 0 |
| Teknisk rom 002 | 0.0 m² | 0 | 0 |
| Lift 003 | 0.0 m² | 0 | 0 |
| Trapperom 004 | 0.0 m² | 0 | 0 |
Etasje 6 0.0 m²
| Rom | Areal | Vinduer | Dører |
|---|
Etasje 4 617.3 m²
| Rom | Areal | Vinduer | Dører |
|---|---|---|---|
| Stue 401 | 180.0 m² | 2 | 1 |
| Kjøkken 402 | 140.0 m² | 1 | 1 |
| Gang 403 | 50.0 m² | 0 | 2 |
| Sovev. 1 404 | 110.0 m² | 1 | 1 |
| Sovev. 2 405 | 90.0 m² | 1 | 1 |
| Bad 406 | 25.0 m² | 0 | 1 |
| Vaskerom 407 | 12.0 m² | 0 | 1 |
| Teknisk 408 | 10.0 m² | 0 | 1 |
| Trapperom 409 | 10.0 m² | 0 | 1 |
| Leilighet 4R_B2_Plan01 | 106.1 m² | 3 | 2 |
| Leilighet 4R_B2_Plan02 | 106.3 m² | 3 | 2 |
| Leilighet 4R_B2_Plan03 | 106.3 m² | 3 | 2 |
| Leilighet 4R_B2_Plan04 | 106.3 m² | 3 | 2 |
| Leilighet 4R_B2_Plan05 | 106.3 m² | 3 | 2 |
| Leilighet 4R B3_Plan01 | 100.1 m² | 2 | 2 |
| Leilighet 4R B3_Plan02 | 106.3 m² | 2 | 2 |
| Leilighet 4R B3_Plan03 | 109.3 m² | 2 | 2 |
| Leilighet 4R B3_Plan04 | 109.3 m² | 2 | 2 |
| Leilighet 4R B3_Plan05 | 106.3 m² | 2 | 2 |
Bygg 4 1,908.5 m²
Etasje 4 1,355.0 m²
| Rom | Areal | Vinduer | Dører |
|---|---|---|---|
| Stue 4-0101 | 40.5 m² | 1 | 2 |
| Sov 4-0102 | 19.0 m² | 1 | 1 |
| Bad 4-0103 | 7.8 m² | 0 | 1 |
| Kj 4-0104 | 12.8 m² | 0 | 1 |
| Gang 4-0105 | 6.4 m² | 0 | 2 |
| Stue 4-0201 | 40.5 m² | 1 | 2 |
| Sov 4-0202 | 19.0 m² | 1 | 1 |
| Bad 4-0203 | 7.8 m² | 0 | 1 |
| Kj 4-0204 | 12.8 m² | 0 | 1 |
| Gang 4-0205 | 6.4 m² | 0 | 2 |
| Stue 4-0301 | 40.5 m² | 1 | 2 |
| Sov 4-0302 | 19.0 m² | 1 | 1 |
| Bad 4-0303 | 7.8 m² | 0 | 1 |
| Kj 4-0304 | 12.8 m² | 0 | 1 |
| Gang 4-0305 | 6.4 m² | 0 | 2 |
| Stue 4-0401 | 40.5 m² | 1 | 2 |
| Sov 4-0402 | 19.0 m² | 1 | 1 |
| Bad 4-0403 | 7.8 m² | 0 | 1 |
| Kj 4-0404 | 12.8 m² | 0 | 1 |
| Gang 4-0405 | 6.4 m² | 0 | 2 |
Etasje 2 403.5 m²
| Rom | Areal | Vinduer | Dører |
|---|---|---|---|
| Bod 2R | 40.5 m² | 0 | 1 |
| Bod 2R | 43.5 m² | 0 | 1 |
| Bod 2R | 39.2 m² | 0 | 1 |
| Bod 2R | 42.5 m² | 0 | 1 |
| Bod 2R | 43.5 m² | 0 | 1 |
| Bod 2R | 38.1 m² | 0 | 1 |
| Bod 2R | 39.7 m² | 0 | 1 |
| Bod 2R | 43.5 m² | 0 | 1 |
| Bod 2R | 43.4 m² | 0 | 1 |
| Bod 2R | 39.1 m² | 0 | 1 |
| Bod 2R | 40.3 m² | 0 | 1 |
| Bod 2R | 43.4 m² | 0 | 1 |
| Bod 2R | 38.2 m² | 0 | 1 |
| Bod 2R | 40.3 m² | 0 | 1 |
| Bod 2R | 43.4 m² | 0 | 1 |
| Bod 2R | 38.1 m² | 0 | 1 |
| Bod 2R | 39.2 m² | 0 | 1 |
| Bod 2R | 40.3 m² | 0 | 1 |
| Bod 2R | 43.4 m² | 0 | 1 |
| Bod 2R | 38.1 m² | 0 | 1 |
| Bod 2R | 39.2 m² | 0 | 1 |
| Bod 2R | 40.3 m² | 0 | 1 |
| Bod 2R | 43.4 m² | 0 | 1 |
| Bod 2R | 62.8 m² | 0 | 1 |
| Bod 2R | 64.6 m² | 0 | 1 |
| Bod 2R | 62.5 m² | 0 | 1 |
| Bod 2R | 64.6 m² | 0 | 1 |
| Bod 2R | 62.5 m² | 0 | 1 |
| Bod 2R | 64.6 m² | 0 | 1 |
| Bod 2R | 62.5 m² | 0 | 1 |
| Bod 2R | 64.6 m² | 0 | 1 |
| Bod 2R | 62.5 m² | 0 | 1 |
| Bod 2R | 64.6 m² | 0 | 1 |
| Bod 2R | 135.5 m² | 0 | 1 |
Etasje 6 150.0 m²
| Rom | Areal | Vinduer | Dører |
|---|---|---|---|
| Taketasje 601 | 150.0 m² | 0 | 0 |
Bygg 2 0.0 m²
Etasje 6 0.0 m²
| Rom | Areal | Vinduer | Dører |
|---|
Enebolig 120.5 m²
Etasje 1 120.5 m²
| Rom | Areal | Vinduer | Dører |
|---|---|---|---|
| Stue 101 | 35.2 m² | 3 | 2 |
| Gang 102 | 8.5 m² | 0 | 3 |
| Kjøkken 103 | 12.4 m² | 1 | 1 |
| Vaskerom 104 | 4.2 m² | 0 | 1 |
| Bad 105 | 6.8 m² | 0 | 1 |
| Soverom 1 106 | 14.5 m² | 1 | 1 |
| Soverom 2 107 | 13.8 m² | 1 | 1 |
| Soverom 3 108 | 12.1 m² | 1 | 1 |
| Soverom 4 109 | 11.5 m² | 1 | 1 |
| Soverom 5 110 | 10.9 m² | 1 | 1 |
Kjeller 0.0 m²
Etasje 0 0.0 m²
| Rom | Areal | Vinduer | Dører |
|---|---|---|---|
| Bod 1A | 0.0 m² | 0 | 1 |
| Bod 1B | 0.0 m² | 0 | 1 |
| Bod 1C | 0.0 m² | 0 | 1 |
| Bod 1D | 0.0 m² | 0 | 1 |
| Bod 1E | 0.0 m² | 0 | 1 |
| Bod 1.1 | 0.0 m² | 0 | 1 |
| Bod 1.2 | 0.0 m² | 0 | 1 |
| Bod 1.3 | 0.0 m² | 0 | 1 |
| Bod 1.4 | 0.0 m² | 0 | 1 |
| Bod 1.5 | 0.0 m² | 0 | 1 |
| Bod 2A | 0.0 m² | 0 | 1 |
| Bod 2B | 0.0 m² | 0 | 1 |
| Bod 2C | 0.0 m² | 0 | 1 |
| Bod 2D | 0.0 m² | 0 | 1 |
| Bod 2E | 0.0 m² | 0 | 1 |
| Bod 2F | 0.0 m² | 0 | 1 |
| Bod 2G | 0.0 m² | 0 | 1 |
| Bod 2H | 0.0 m² | 0 | 1 |
| Bod 2.1 | 0.0 m² | 0 | 1 |
| Bod 2.2 | 0.0 m² | 0 | 1 |
| Bod 2.3 | 0.0 m² | 0 | 1 |
| Bod 2.4 | 0.0 m² | 0 | 1 |
| Bod 2.5 | 0.0 m² | 0 | 1 |
| Bod 3A | 0.0 m² | 0 | 1 |
| Bod 3B | 0.0 m² | 0 | 1 |
| Bod 3C | 0.0 m² | 0 | 1 |
| Bod 3D | 0.0 m² | 0 | 1 |
| Bod 3E | 0.0 m² | 0 | 1 |
| Bod 3F | 0.0 m² | 0 | 1 |
| Bod 3G | 0.0 m² | 0 | 1 |
| Bod 3H | 0.0 m² | 0 | 1 |
| Bod 3.1 | 0.0 m² | 0 | 1 |
| Bod 3.2 | 0.0 m² | 0 | 1 |
| Bod 3.3 | 0.0 m² | 0 | 1 |
| Bod 3.4 | 0.0 m² | 0 | 1 |
| Bod 3.5 | 0.0 m² | 0 | 1 |
| Bod 3.6 | 0.0 m² | 0 | 1 |
| Bod 4A | 0.0 m² | 0 | 1 |
| Bod 4B | 0.0 m² | 0 | 1 |
| Bod 4C | 0.0 m² | 0 | 1 |
| Bod 4D | 0.0 m² | 0 | 1 |
| Bod 4E | 0.0 m² | 0 | 1 |
| Bod 4F | 0.0 m² | 0 | 1 |
| Bod 4.1 | 0.0 m² | 0 | 1 |
| Bod 4.2 | 0.0 m² | 0 | 1 |
| Bod 4.3 | 0.0 m² | 0 | 1 |
| Bod 4.4 | 0.0 m² | 0 | 1 |
| Bod 4.5 | 0.0 m² | 0 | 1 |
| Bod 4.6 | 0.0 m² | 0 | 1 |
| Teknisk rom Teknisk | 0.0 m² | 0 | 1 |
| Parkering P.keller | 0.0 m² | 0 | 0 |
| Fellesareal Felles | 0.0 m² | 0 | 0 |
Hovedbygg 0.0 m²
Etasje 1 0.0 m²
| Rom | Areal | Vinduer | Dører |
|---|---|---|---|
| Bolig 1 0 | 0.0 m² | 0 | 0 |
| Bolig 2 0 | 0.0 m² | 0 | 0 |
| Bolig 3 0 | 0.0 m² | 0 | 0 |
| Bolig 4 0 | 0.0 m² | 0 | 0 |
Etasje 0 0.0 m²
| Rom | Areal | Vinduer | Dører |
|---|---|---|---|
| Bolig 3 0 | 0.0 m² | 0 | 0 |
| Bolig 4 0 | 0.0 m² | 0 | 0 |
Fasader
Bygg 3
- Materiale
- Betong
- Taktype
- Flatt tak
- Høyde
- 10.5 m
- Mønehøyde
- 12.3 m
- Vinduer
- 12
- Dører
- 1
- Balkonger
- 1
- Synlige etasjer
- 4
- Materiale
- Betong
- Taktype
- Flatt tak
- Høyde
- 10.5 m
- Mønehøyde
- 12.3 m
- Vinduer
- 16
- Dører
- 1
- Synlige etasjer
- 4
- Materiale
- Betong
- Taktype
- Flatt tak
- Høyde
- 10.5 m
- Mønehøyde
- 12.3 m
- Vinduer
- 10
- Dører
- 1
- Balkonger
- 4
- Synlige etasjer
- 4
- Materiale
- Betong
- Taktype
- Flatt tak
- Høyde
- 10.5 m
- Mønehøyde
- 12.3 m
- Vinduer
- 6
- Dører
- 1
- Synlige etasjer
- 4
Næring 1
- Materiale
- Betong
- Taktype
- Flatt tak
- Høyde
- 4.5 m
- Vinduer
- 0
- Dører
- 2
- Synlige etasjer
- 1