NewConstruction UnderBehandling Leilighetsbygg

Oppføring av boligblokker med garasje i Folabruveien, Asker

📍 Folabruveien 179 , 1384 ASKER

Nøkkelinfo

Sakstype
Nybygg
Bygningstype
Leilighetsbygg
Bruksareal
12,588 m²
Boenheter
147
Kommune
Asker
Fylke
Akershus
Gnr / Bnr
2 / 34
Saksnummer
25/2817
Fase
Under behandling

Om byggesaken

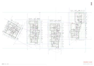
Prosjektet omfatter oppføring av fire boligblokker (B1-B4) med til sammen 147 leiligheter, fordelt på 5-7 etasjer, med en samlet BRA på ca. 12 588 m². Byggene er plassert i skrånende terreng med terrasserte utearealer og felles parkeringskjeller under terreng. Byggene har fasader i hovedsak av bekledningstegl i to farger, med innslag av trekledning og fasadeplater. Takene er flate med tekniske oppbygg og blå tak for overvannshåndtering. Prosjektet inkluderer omfattende utomhusarbeider med grøntarealer, lekeplasser, sykkelparkering, renovasjonssystem med avfallssug, og tilrettelegging for universell utforming. Det er etablert detaljert plan for overvannshåndtering med infiltrasjon, fordrøyning og flomveier, samt miljøoppfølgingsplan og skjøtselsplan for tilgrensende naturområder. Støyforhold er utredet med nødvendige støyskjermingstiltak som innglassing av balkonger og støyskjerm mot vei. Prosjektet har godkjent rammetillatelse og er i igangsettingsfase med ansvarlige foretak for alle fagområder.

Produkter og materialer

Teknisk Ventilasjon

🧱 Balansert ventilasjon med lyddempere og vibrasjonsisolasjon

Ventilasjonsanlegg med krav til lydnivå og vibrasjonsisolasjon

Ventilasjonsanlegg i boligblokker

Utendørs Sykkelparkering

🧱 Sykkelrom med automatiske dører, ladepunkt for el-sykkel, sykkelvask

Antall: 296

Sykkelplasser fordelt med 10% på terreng og resten i sykkelrom i p-kjeller

Sykkelparkering for beboere og gjester

Bygningskomponenter Ytterdører

Antall: 12

Ytterdører med lydreduksjon Rw ≥ 43 dB, to-dørs løsning anbefalt

Ytterdører i boligblokker med lydisolasjon for å oppfylle krav

Bygningskomponenter Innvendige dører

Innvendige dører med lydreduksjon Rw ≥ 38 dB anbefalt, spesielt mellom fellesareal og oppholdsrom

Innvendige dører i boligene

Betong Plasstøpt betong

🧱 Betong i bæresystem, dekker, trapper, balkonger, fundamentering

Plasstøpt betong med lavkarbonklasse B eller bedre

Betongkonstruksjoner i boligblokker og garasje

Fasade Trekledning

🧱 Tre i mørk brun/grå og gyllen sandfarge

Trekledning brukt i nisjer, balkonger og inngangspartier

Fasadematerialer for boligblokker

Bygningskomponenter Balkonger

🧱 Betong og glassrekkverk, med kuldebrobryter og trinnlyddemping

Antall: 175

Balkonger med trinnlydkrav L’n,w ≤ 58 dB, betongdekker med kuldebrobryter eller tremmegulv

Private balkonger i boligblokker B1-B4

Grunnarbeid Geoteknikk

Grunnundersøkelser viser stabile grunnforhold uten kvikkleire, med plasstøpt betong og pelefundamentering

Grunnarbeider og fundamentering for boligblokker og garasje

Tak Blå tak

🧱 Sedum og fordrøyningsløsninger

Takflater opparbeidet som blå tak for overvannshåndtering med restriktor i sluk

Tak på boligblokker B1-B4

Grunnarbeid Bekkeomlegging

🧱 Nytt bekkeløp med naturlig variasjon, steinplastring, terskler og vegetasjon

Omlegging og heving av bekk i naturområde GN2 med krav til biologisk mangfold og erosjonssikring

Bekkeomlegging i naturområde GN2

Gulv Parkett og fliser

🧱 Eikeparkett, fliser på bad og entré med trinnlyddempende underlag

Parkett i oppholdsrom, fliser på bad og entré med krav til trinnlyd

Innvendige gulvbelegg

Teknisk VVS

🧱 Sanitærinstallasjoner, varme- og kuldeinstallasjoner, slukkeinstallasjoner

Sanitær, varme, kulde og slukkeinstallasjoner prosjektert og med ansvarsrett

Tekniske installasjoner i boligblokker

Fasade Bekledningstegl

🧱 Tegl i to farger: mørk grafitt og sandfarge

Bekledningstegl som hovedmateriale på fasader, med mørk tegl på sokkel og sandfarget på øvrige fasader

Fasadematerialer for boligblokker

Teknisk Elektro

🧱 Brannalarmanlegg, ledesystem, ledelys, el-installasjoner

Brannalarmanlegg og elektroinstallasjoner med ansvarsrett

Elektro- og branntekniske installasjoner

Bygningskomponenter Trapper

🧱 Betong med elastisk opplagring

Antall: 2

Innvendige trapper med elastisk opplagret repos og trappeløp for trinnlydreduksjon

Innvendige trapper i boligblokker

Maling Innvendig maling

Innvendig maling i henhold til standard byggteknisk forskrift

Innvendige overflater

Utendørs Renovasjon

🧱 Avfallssug med nedkast for restavfall, komposterbart, plast, papp/papir, returpunkt for glass/metall

Renovasjonsanlegg med universell tilkomst og plassering i uteareal

Avfallshåndtering for boligfeltet

Grunnarbeid Overvannshåndtering

🧱 Infiltrasjonssandfang, regnbed, flomreservoar, grøfter, terskler

Åpen overvannshåndtering med infiltrasjon, fordrøyning og flomveier i utearealer og naturområder

Overvannshåndtering i uteområder og naturområde GN2

Bygningskomponenter Skillevegger

🧱 Betong og gipsvegger med mineralull

Lydskillevegger med R’w ≥ 55 dB mellom boenheter, 60 dB mot tekniske rom og selskapslokaler

Skillevegger mellom boenheter, tekniske rom og fellesarealer

Utendørs Lekearealer

🧱 Naturmaterialer som stokker, steiner, stubber, lekeapparater

Antall: 3675

Felles lekeareal på minimum 25 m² per boenhet, med variert lekemiljø

Lekearealer i uteområder

Stål Stålprofiler og armering

🧱 Stålprofiler i bæresystem, armering i betongkonstruksjoner

Stål med høy andel resirkulert materiale

Stålkonstruksjoner og armering

Utendørs Grøntarealer

🧱 Plantekasser, buskvegetasjon, trær, eng, stauder

Antall: 5880

Felles uteoppholdsareal på minimum 40 m² per boenhet, inkludert naturområde GN2

Grøntarealer og uteoppholdsarealer

Tømrer Tømrerarbeid

🧱 Trekonstruksjoner, montering av trekledning, branntetting

Tømrerarbeid i boligblokker, inkludert branntetting

Tømrerarbeid for boligblokker

Teknisk Garasjeport

Garasjeport med krav til lydnivå

Garasjeport til parkeringskjeller

Teknisk Heis

Heisinstallasjoner med krav til lydisolasjon og vibrasjonsisolasjon

Heis i boligblokker

Utendørs Parkering

🧱 Parkeringsplasser i felles parkeringskjeller, HC-plasser, elbil-ladeinfrastruktur

Antall: 122

Biloppstillingsplasser i p-kjeller med 6 HC-plasser og 100% elbil-lademulighet

Bilparkering for beboere

Bygningskomponenter Vinduer

Antall: 746

Vinduer med lydreduksjon Rw + Ctr ≥ 32 dB for oppholdsrom, høyere krav for vinduer mot fellesarealer og garasje

Vinduer i boligblokker B1-B4, inkludert spesifikke lydkrav

Bygningskomponenter Sjaktvegger

🧱 Gipsplater og mineralull

Sjaktvegger med 2 lag gips og 70 mm mineralull for lydisolasjon

Sjaktvegger for tekniske føringer

Fasader

Enebolig

Nord
Materiale
Tre
Taktype
Flatt tak
Høyde
12.7 m
Mønehøyde
8.2 m
Vinduer
12
Dører
2
Synlige etasjer
4
Øst
Materiale
Tre
Taktype
Flatt tak
Høyde
12.7 m
Mønehøyde
127.5 m
Vinduer
12
Dører
2
Synlige etasjer
4
Vest
Materiale
Tre
Taktype
Flatt tak
Høyde
12.7 m
Mønehøyde
127.5 m
Vinduer
12
Dører
2
Synlige etasjer
4
Sør
Materiale
Tre
Høyde
12.7 m
Mønehøyde
8.2 m
Vinduer
12
Dører
2
Synlige etasjer
4

Hendelser

10.04.2026 2/34 Folabruveien - Landås felt L5 - Boligblokk B4 - Søknad om igangsettingstillatelse
23.02.2026 2/34 Folabruveien - Landåse felt L5 - Boligblokk 4 - Søknad om igangsettingstillatelse 1
07.01.2026 2/34 Folabruveien - Landås Felt L5 - Endring av ansvarlig søker - Boligblokk B4
20.10.2025 2/34 Folabruveien - Landås felt L5 - Boligblokk B4 - Arbeidstilsynet innvilger søknaden om samtykke (kopi)
01.09.2025 2/34 Folabruveien - Landås felt L5 - Rammetillatelse for oppføring av boligblokk B4
26.08.2025 2/34 - Landås L5 - Søknad om rammetillatelse for oppføring av boligblokker med garasje