NewConstruction UnderBehandling Leilighetsbygg

Oppføring av boligblokker med garasje i Folabruveien 179, Asker

📍 Folabruveien 179 , 1384 ASKER

Nøkkelinfo

Sakstype
Nybygg
Bygningstype
Leilighetsbygg
Bruksareal
12,588 m²
Boenheter
147
Kommune
Asker
Fylke
Akershus
Gnr / Bnr
2 / 34
Saksnummer
25/2814
Fase
Under behandling

Om byggesaken

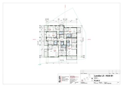
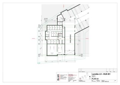
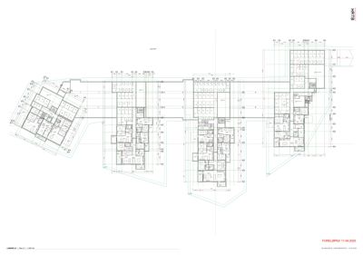
Prosjektet omfatter oppføring av fire boligblokker (B1-B4) med til sammen 147 leiligheter, fordelt på 5-7 etasjer, plassert på et skrånende terreng i Folabruveien 179, Asker. Byggene er sammenbundet med en felles parkeringskjeller under terreng, med totalt 103 parkeringsplasser, inkludert HC-plasser, og sykkelparkering både i kjeller og på terreng. Byggene har bærekonstruksjoner i stål og betong, yttervegger med utfyllende bindingsverk, fasader i hovedsak med bekledningstegl i to farger og noe trekledning, og flate tak med blå tak-løsninger for overvannshåndtering. Det er planlagt heis i alle bygg, og tekniske rom er plassert i kjeller og på tak. Utearealene er opparbeidet med varierte grøntområder, lekeplasser, regnbed og overvannshåndtering i tråd med tretrinnsstrategien. Det er gjennomført omfattende geotekniske undersøkelser som viser stabile grunnforhold uten kvikkleire. Miljø- og kvalitetsprogram ivaretar naturmangfold, støytiltak og universell utforming. Prosjektet har fått rammetillatelse og igangsettingstillatelser for ulike byggetrinn, med ansvarlige foretak for prosjektering, utførelse og kontroll.

Produkter og materialer

Betong Plasstøpte betongkonstruksjoner

Plasstøpte betongkonstruksjoner for bæresystem, trapper, balkonger og dekker

Betongkonstruksjoner i boligblokker

Fasade Bekledningstegl

🧱 Tegl

Bekledningstegl i to farger: mørk grafitt for B1 og sandfarge for B2-B4, med mørke fuger og fasadeplater rundt vinduer

Fasadebekledning i tegl og trekledning i nisjer og inngangspartier

Tak Flatt tak med blå tak

🧱 Sedum, membran

Blå tak med fordrøyningsvolum på ca. 103 m3, restriktor i sluk for vannmagasinering

Flate tak med overvannshåndtering som blå tak

Ventilasjon Balansert ventilasjon

Balansert ventilasjon med eget aggregat i hver boenhet, lydisolert og vibrasjonsisolert

Ventilasjonsanlegg for boligene

VVS Varme- og kuldeinstallasjoner

Vannbåren varme med væske/vann varmepumpe som dekker ca. 95 % av energibehovet

Varme- og kuldeinstallasjoner med varmepumpe

Maling Innvendig maling

Innvendig maling i boligblokker

Innvendig maling

Brannvern Brannkonsept og brannoppstillingsplasser

Brannkonsept utarbeidet, brannoppstillingsplasser planlagt iht. krav

Brannsikkerhetstiltak

Grunnarbeid Riggplan og midlertidig terrengarrondering

Riggplan for byggeperioden, midlertidig terrengarrondering med tilsåing for erosjonskontroll

Grunnarbeid og riggplan

Mur Murarbeider

Murarbeider i prosjektet

Murarbeider

Solceller Solcelleanlegg

Solceller planlagt som del av miljø- og kvalitetsprogram

Solcelleanlegg på tak

Tømrer Tømrerarbeid og branntetting

Tømrerarbeid og branntetting i boligblokk B1

Tømrerarbeid og branntetting

Trapper Innvendig trapp

🧱 Betong

Antall: 2

Elastisk opplagret repos og trappeløp, trinnlydkrav L’n,w ≤ 53 dB

Innvendige trapper i boligblokker med lydisolasjonstiltak

VVS Slukkeinstallasjoner

Sprinkleranlegg i boligblokker og parkeringskjeller

Brannslukkingsanlegg

Riving Rivning og miljøsanering

Rivning og miljøsanering utført av Hermansen Maskin AS

Rivning og miljøsanering

Garasjeport Garasjeport

Garasjeport i parkeringskjeller med krav til lydisolasjon

Garasjeport

Terrasse Privat uteplass, balkonger og takterrasser

Antall: 175

Balkonger og takterrasser med glassrekkverk, noen innglassede balkonger, skjermvegger mellom balkonger

Private uteplasser for leiligheter

Elektro Ledesystem

Ledesystem installert i boligblokk B1

Ledesystem for brannsikkerhet

Grunnarbeid Grunnundersøkelser og fundamentering

Geotekniske grunnundersøkelser viser stabile grunnforhold uten kvikkleire, fundamentering delvis på fjell

Grunnarbeid og fundamentering for boligblokker og garasje

Dører Ytterdør

Ytterdør med lydreduksjon Rw ≥ 43 dB for å oppfylle krav til luftlydisolasjon mellom felles korridor og oppholdsrom

Ytterdører i leiligheter med høy lydisolasjon

Tak Taktekkingsarbeider

Taktekkingsarbeider i boligblokker

Taktekkingsarbeider

Isolasjon Mineralull

🧱 Mineralull

Mineralull i vegger, himlinger og dekker for lydisolasjon og varmeisolasjon

Isolasjon med mineralull

VVS Sanitærinstallasjoner

Sanitærinstallasjoner i boligblokker, inkl. bad og toalett

Sanitærinstallasjoner for boligene

Elektro Brannalarmanlegg

Brannalarmanlegg installert i boligblokk B1

Brannalarmanlegg

Varmepumpe Væske/vann varmepumpe

Varmepumpe som dekker ca. 95 % av energibehovet til romoppvarming og tappevann

Varmepumpe for oppvarming

Betong Prefabrikkerte betong- og stålelementer

Montering av prefabrikkerte stål- og betongelementer levert av Loe Betongelementer AS

Prefabrikkerte elementer for bygningskropp og garasje

Vinduer Fasadevindu

Antall: 175

Gjennomsnittlig U-verdi 0,82 W/m2K, lydreduksjon Rw + Ctr ≥ 32 dB for støyutsatte fasader, lydkrav opp til Rw + Ctr ≥ 38 dB for vinduer nær gangveier og garasjeport

Vinduer i boligblokker med krav til lydisolasjon og energieffektivitet

Gulv Parkett og fliser

Eikeparkett i oppholdsrom, fliser på bad og entré med trinnlyddempende oppbygning

Gulvbelegg i boligene

Renovasjon Avfallssug og renovasjonsplan

To klynger med avfallssug med nedkast for restavfall, komposterbart, plast, papp/papir, glass/metall og tekstil

Renovasjonsanlegg med avfallssug

VVS Vannforsyning og spillvann

Tilknytning til kommunalt vann- og avløpsnett, dimensjonert for 8,56 L/s vannforbruk, sprinkling iht. krav

Vann- og avløpsinstallasjoner for boligblokker

Fasader

HUS B2

Vest
Materiale
Tre
Taktype
Flatt tak
Høyde
126.6 m
Mønehøyde
127.5 m
Vinduer
24
Dører
1
Balkonger
12
Synlige etasjer
5
Nord
Materiale
Tre
Taktype
Flatt tak
Høyde
12.6 m
Mønehøyde
8.2 m
Vinduer
16
Dører
0
Balkonger
8
Synlige etasjer
4
Øst
Materiale
Tre
Taktype
Flatt tak
Høyde
12.6 m
Mønehøyde
127.5 m
Vinduer
18
Dører
3
Balkonger
6
Synlige etasjer
4
Sør
Materiale
Tre
Taktype
Flatt tak
Høyde
126.3 m
Mønehøyde
127.5 m
Vinduer
14
Dører
2
Balkonger
10
Synlige etasjer
6

Hendelser

10.04.2026 2/34 Folabruveien - Landås felt L5 - Boligblokk B1 - Supplering av søknad
09.04.2026 2/34 Folabruveien - Søknad om igangsettingstillatelse 2
20.02.2026 2/34 Folabruveien - Søknad om igangsettingstillatelse
07.01.2026 2/34 Folabruveien - Landås felt L5 - Endring av ansvarlig søker - Boligblokk B1
01.09.2025 2/34 Folabruveien - Landås felt L5 - Rammetillatelse for oppføring av boligblokk B1
26.08.2025 2/34 - Landås L5 - Søknad om rammetillatelse for oppføring av boligblokker med garasje