Rendering
Bildet viser fire 3D-visualiseringer (renderinger) av et boligprosjekt med fasadeanalyse overlagt. Det er en illustrasjon av hvordan bygningene vil se ut i forhold til omgivelsene.
Oppføring av boligblokker med garasje i Folabruveien, Asker
📍 Folabruveien 179 , 1384 ASKER
Nøkkelinfo
- Sakstype
- Nybygg
- Bygningstype
- Leilighetsbygg
- Bruksareal
- 12,588 m²
- Boenheter
- 147
- Kommune
- Asker
- Fylke
- Akershus
- Gnr / Bnr
- 2 / 34
- Saksnummer
- 25/2811
- Fase
- Under behandling
Om byggesaken
Produkter og materialer
Sanitærinstallasjoner i boligblokker og garasjeanlegg
Sanitærinstallasjoner for hele prosjektet
Antall: 14
Takterrasser og balkonger med glassrekkverk og lydabsorberende himlinger
Private uteplasser for leiligheter
Varmepumpe som dekker ca. 95% av energibehov til oppvarming og tappevann
Energisentral med varmepumpe i kjeller
🧱 Mineralull, EPS
Isolasjon i yttervegger, tak, gulv på grunn og himlinger
Isolasjonsmaterialer for energibesparelse og lydisolasjon
Betong i bæresystemer, dekker, trapper, balkonger, med lavkarbonklasse B/A
Betongkonstruksjoner for boligblokker og parkeringskjeller
Geotekniske grunnundersøkelser, pelefundamentering, plasstøpt betong på fjell
Grunnarbeider og fundamentering for boligblokker og parkeringskjeller
Fliser, membraner, sanitærutstyr og våtromsinstallasjoner
Bad og våtrom i leiligheter
Antall: 746
Vinduer med lydreduksjon Rw + Ctr ≥ 32 dB, skjerpede krav for vinduer mot felles gangvei og garasjeport
Vinduer for alle leiligheter, inkludert spesifikke lydkrav for støyutsatte fasader
Antall: 1
Garasjeport med krav til lydisolasjon for å unngå støyplager
Port til parkeringskjeller
Balansert ventilasjon med lyddempere og vibrasjonsisolasjon
Ventilasjonsanlegg for boligblokker og garasje
Vannbåren varme med geovarme, varmesentral i kjeller
Varme- og kuldeinstallasjoner for boligblokker og parkeringskjeller
Solcelleanlegg på tak for energiproduksjon
Solcelleløsninger for energibesparelse
🧱 Naturstein
Støttemurer for terrengterrassering med naturstein og forblending
Terrengmurer i uteområder
🧱 Tegl, tre
Bekledningstegl i sandfarge for B2-B4, mørk grafittfarge for B1 og sokkel, trekledning i nisjer og inngangspartier
Fasadematerialer for boligblokkene med variasjon i farger og materialer
🧱 Glass, tre
Glassrekkverk på balkonger, tett rekkverk og lydabsorbenter på balkonghimling
Rekkverk for balkonger med støydemping
Kjøkkeninnredning med lydisolerte vegger mot soverom
Kjøkkenløsninger i leiligheter
🧱 Betong
Antall: 2
Trapper med elastisk opplagring og lydisolering for trinnlydkrav L’n,w ≤ 58 dB
Innvendige trapper i boligblokkene
Tilknytning til kommunalt vann- og avløpsnett, spillvannsledninger, overvannsledninger med infiltrasjon og fordrøyning
Vann- og avløpssystem for boligfelt og uteområder
🧱 Tre
Trekledning, himlinger, tømrerarbeid i boligblokker og garasjeanlegg
Tømrerarbeid for fasader, balkonger og innvendige konstruksjoner
🧱 Eikeparkett, trinnlydplater
Parkettgulv med trinnlydplater for lydkomfort
Gulvbelegg i boligblokker
Terrengarrondering, massebalanse og midlertidig terrengarrondering i tilstøtende naturområder
Grunnarbeider for terrengtilpasning
Brannalarmanlegg og ledelys i boligblokker og garasjeanlegg
Brannverninstallasjoner
Antall: 4
Blå tak med fordrøyningsløsninger, restriktor i sluk for overvannshåndtering
Takflater på boligblokker med overvannshåndtering
Antall: 2
To klynger med avfallssug med nedkast for restavfall, komposterbart, plast og papp/papir
Avfallshåndtering for boligfeltet
Antall: 80
Ytterdører med lydreduksjon Rw ≥ 43 dB anbefalt, mellomdører med varierende krav
Dører i leiligheter og fellesarealer, inkludert lydisolerte inngangsdører
Hovedfordeling i plan U2, stigeledninger, belysning i uteområder og fellesarealer
Elektroinstallasjoner for boligblokker og uteområder
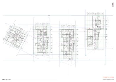
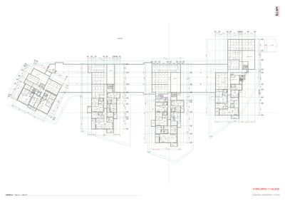
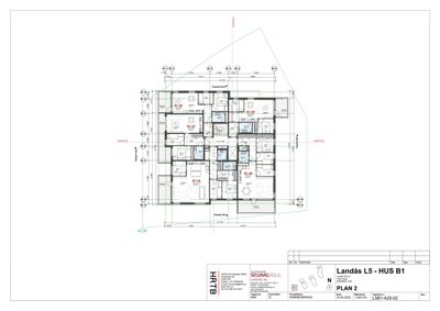
Plantegning
Enebolig 25,711.7 m²
Etasje 1 429.0 m²
| Rom | Areal | Vinduer | Dører |
|---|---|---|---|
| Opholdsrom B4-4A | 42.2 m² | 1 | 2 |
| Spisestue B4-4A | 16.5 m² | 1 | 1 |
| Bad F2a B4-4A | 7.3 m² | 0 | 1 |
| Sov 3 B4-4A | 10.5 m² | 1 | 1 |
| Gjestesrom 02 B4-4A | 21.6 m² | 1 | 1 |
| Bad K2a B4-4A | 2.8 m² | 0 | 1 |
| Gang B4-4A | 5.1 m² | 0 | 3 |
| Sov 2 B4-4A | 7.4 m² | 1 | 1 |
| Sov 1 B4-4A | 10.8 m² | 1 | 1 |
| Bad K B4-4A | 3.4 m² | 0 | 1 |
| Gjestesrom 03 B4-4A | 18.2 m² | 1 | 1 |
| Bad K2b B4-4A | 3.8 m² | 0 | 1 |
| Gang B4-4A | 5.1 m² | 0 | 2 |
| Gjestesrom 01 B4-4A | 22.7 m² | 1 | 1 |
| Vask/SK B4-4A | 4.8 m² | 0 | 1 |
| Metis B4-4A | 14.2 m² | 0 | 1 |
| Gang B4-4A | 11.0 m² | 0 | 2 |
| Stue B4-4A | 34.0 m² | 2 | 1 |
| Pluss B4-4A | 32.0 m² | 1 | 1 |
| Lager selvkup B4-4A | 6.0 m² | 0 | 1 |
| Pluss B4-4A | 32.0 m² | 1 | 1 |
| Sov B4-4A | 7.4 m² | 1 | 1 |
| Bad HCWC B4-4A | 5.0 m² | 0 | 1 |
| Gang B4-4A | 11.0 m² | 0 | 2 |
| Opphold 101 | 0.0 m² | 1 | 2 |
| Sov 1 102 | 0.0 m² | 1 | 1 |
| Sov 2 103 | 0.0 m² | 1 | 1 |
| Sov 3 104 | 0.0 m² | 1 | 1 |
| Gang 105 | 0.0 m² | 0 | 2 |
| Bad K 106 | 0.0 m² | 0 | 1 |
| Bad F2 107 | 0.0 m² | 0 | 1 |
| Teknisk 108 | 0.0 m² | 0 | 1 |
| BRA PLUSS 149 | 404.4 m² | 0 | 0 |
| BRA innglasset 3 | 80.1 m² | 0 | 0 |
| BRA innglasset 16 | 80.1 m² | 0 | 0 |
| BRA Hus B3 7 | 2,763.6 m² | 0 | 0 |
| BRA B4 6 | 3,032.3 m² | 0 | 0 |
| BRA åpent overbygget areal 195 | 501.6 m² | 0 | 0 |
| Teknisk/Bod U01 | 131.2 m² | 0 | 1 |
| Boder-sykkel-teknisk B1-01 | 131.2 m² | 0 | 0 |
| Gang 109 | 15.0 m² | 0 | 2 |
| Teknisk rom 110 | 6.0 m² | 0 | 1 |
| Opphold B4-4B | 43.2 m² | 1 | 1 |
| Opphold B4-2A | 40.5 m² | 1 | 1 |
| Opphold B4-2B | 43.0 m² | 1 | 1 |
| Opphold B4-3A | 47.2 m² | 1 | 1 |
| Opphold B4-3B | 42.2 m² | 1 | 1 |
| Opphold B4-2C | 35.4 m² | 1 | 1 |
| Opphold B2-3A | 55.4 m² | 1 | 1 |
| Stue B4-3C | 16.0 m² | 1 | 2 |
| Stue B4-H0101 | 273.4 m² | 3 | 2 |
| Lager/selvkjøp B4-H0102 | 10.2 m² | 0 | 1 |
| Gym B4-H0103 | 87.1 m² | 0 | 1 |
| Gang B4-H0104 | 7.8 m² | 0 | 3 |
| Sov 1 B4-H0105 | 17.6 m² | 1 | 2 |
| Sov 2 B4-H0106 | 12.2 m² | 1 | 2 |
| Sov 3 B4-H0107 | 9.0 m² | 1 | 2 |
| Sov 4 B4-H0108 | 10.5 m² | 1 | 2 |
| Bad 1 B4-H0109 | 6.3 m² | 0 | 2 |
| Bad 2 B4-H0110 | 5.8 m² | 0 | 2 |
| Bad 3 B4-H0111 | 4.8 m² | 0 | 2 |
| Bad 4 B4-H0112 | 4.3 m² | 0 | 2 |
| Gjestesrom 01 B4-H0113 | 22.7 m² | 1 | 2 |
| Gjestesrom 02 B4-H0114 | 22.0 m² | 1 | 2 |
| Gjestesrom 03 B4-H0115 | 18.5 m² | 1 | 2 |
| Entré B4-H0116 | 6.4 m² | 0 | 3 |
| Vaskerom B4-H0117 | 4.8 m² | 0 | 2 |
| Teknisk rom B4-H0118 | 4.2 m² | 0 | 1 |
| Kjøkken B4-H0119 | 14.2 m² | 1 | 2 |
| Balkong B4-H0120 | 14.1 m² | 0 | 1 |
| Opphold B1-4A | 47.2 m² | 1 | 2 |
| Opphold B1-4B | 36.7 m² | 1 | 2 |
| Opphold B1-4C | 113.4 m² | 1 | 2 |
| Opphold B1-3D | 55.8 m² | 1 | 2 |
| Soverom Sov 1 | 11.4 m² | 1 | 1 |
| Soverom Sov 2 | 10.2 m² | 1 | 1 |
| Soverom Sov 3 | 10.2 m² | 1 | 1 |
| Soverom Sov 4 | 10.2 m² | 1 | 1 |
| Soverom Sov 5 | 10.2 m² | 1 | 1 |
| Soverom Sov 6 | 10.2 m² | 1 | 1 |
| Bad Bad 1 | 4.7 m² | 0 | 1 |
| Bad Bad 2 | 4.7 m² | 0 | 1 |
| Bad Bad 3 | 4.7 m² | 0 | 1 |
| Bad Bad 4 | 4.7 m² | 0 | 1 |
| Bad Bad 5 | 4.7 m² | 0 | 1 |
| Bad Bad 6 | 4.7 m² | 0 | 1 |
| Gang Gang | 11.3 m² | 0 | 0 |
| Balkong Balkong | 10.8 m² | 0 | 1 |
| Opphold B4-4C | 54.7 m² | 1 | 2 |
| Sov 1 B1-3A | 12.4 m² | 1 | 1 |
| Bad Y B1-2A | 5.8 m² | 0 | 1 |
| Opphold B1-3E | 33.6 m² | 1 | 2 |
| Opphold B1-3C | 37.6 m² | 1 | 2 |
| Opphold B1-2C | 41.8 m² | 1 | 2 |
| Terrasse Terrasse | 35.7 m² | 0 | 1 |
| Balcony Balcony | 11.0 m² | 0 | 1 |
Etasje 0 0.0 m²
| Rom | Areal | Vinduer | Dører |
|---|---|---|---|
| Teknisk rom 001 | 0.0 m² | 0 | 1 |
| Sykkelopplag 002 | 0.0 m² | 0 | 1 |
| Teknisk rom 003 | 0.0 m² | 0 | 1 |
| Gang 004 | 0.0 m² | 0 | 2 |
| Teknisk/Bod U01 | 186.0 m² | 0 | 1 |
| P-kjeller P-01 | 2,186.0 m² | 0 | 0 |
| Opphold B1-3A | 37.7 m² | 1 | 2 |
| Opphold B1-2A | 25.3 m² | 1 | 2 |
| Opphold B1-4B | 36.7 m² | 1 | 2 |
| Bod U02 | 0.0 m² | 0 | 0 |
| Bod B01 | 0.0 m² | 0 | 0 |
| Bod B02 | 0.0 m² | 0 | 0 |
| Bod B03 | 0.0 m² | 0 | 0 |
| Bod B04 | 0.0 m² | 0 | 0 |
| Bod B05 | 0.0 m² | 0 | 0 |
| Bod B06 | 0.0 m² | 0 | 0 |
| Bod B07 | 0.0 m² | 0 | 0 |
| Bod B08 | 0.0 m² | 0 | 0 |
| Bod B09 | 0.0 m² | 0 | 0 |
| Bod B10 | 0.0 m² | 0 | 0 |
| Bod B11 | 0.0 m² | 0 | 0 |
| Bod B12 | 0.0 m² | 0 | 0 |
| Bod B13 | 0.0 m² | 0 | 0 |
| Bod B14 | 0.0 m² | 0 | 0 |
| Bod B15 | 0.0 m² | 0 | 0 |
| Bod B16 | 0.0 m² | 0 | 0 |
| Bod B17 | 0.0 m² | 0 | 0 |
| Bod B18 | 0.0 m² | 0 | 0 |
| Bod B19 | 0.0 m² | 0 | 0 |
| Bod B20 | 0.0 m² | 0 | 0 |
Etasje 2 0.0 m²
| Rom | Areal | Vinduer | Dører |
|---|---|---|---|
| Opphold 201 | 0.0 m² | 1 | 2 |
| Sov 1 202 | 0.0 m² | 1 | 1 |
| Sov 2 203 | 0.0 m² | 1 | 1 |
| Sov 3 204 | 0.0 m² | 1 | 1 |
| Gang 205 | 0.0 m² | 0 | 2 |
| Bad K 206 | 0.0 m² | 0 | 1 |
| Bad F2 207 | 0.0 m² | 0 | 1 |
| Teknisk 208 | 0.0 m² | 0 | 1 |
| BRA PLUSS 149 | 404.4 m² | 0 | 0 |
| BRA innglasset 3 | 80.1 m² | 0 | 0 |
| BRA innglasset 16 | 80.1 m² | 0 | 0 |
| BRA Hus B3 7 | 2,763.6 m² | 0 | 0 |
| BRA B4 6 | 3,032.3 m² | 0 | 0 |
| BRA åpent overbygget areal 195 | 501.6 m² | 0 | 0 |
| Teknisk/Bod U01 | 523.8 m² | 0 | 1 |
| Boder-sykkel-teknisk B1-02 | 523.8 m² | 0 | 0 |
| Gang 209 | 15.0 m² | 0 | 2 |
| Teknisk rom 210 | 6.0 m² | 0 | 1 |
| Opphold B2-3A | 24.9 m² | 1 | 2 |
| Opphold B4-4A | 42.2 m² | 1 | 2 |
| Opphold B4-2A | 18.4 m² | 1 | 2 |
| Opphold B4-3A | 32.1 m² | 1 | 2 |
| Opphold B4-2B | 27.2 m² | 1 | 2 |
| Opphold B4-3B | 32.2 m² | 1 | 2 |
| Opphold B4-4B | 45.2 m² | 1 | 2 |
| Opphold B4-3C | 34.8 m² | 1 | 2 |
| Sov 1 B4-2C | 8.2 m² | 1 | 1 |
| Opphold B1-3E | 24.4 m² | 1 | 2 |
| Opphold B1-3C | 27.6 m² | 1 | 2 |
| Opphold B1-3D | 25.8 m² | 1 | 2 |
| Opphold B1-4A | 47.2 m² | 1 | 2 |
| Opphold B1-4B | 36.7 m² | 1 | 2 |
| Sov 1 B1-4C | 11.4 m² | 1 | 1 |
Etasje 3 0.0 m²
| Rom | Areal | Vinduer | Dører |
|---|---|---|---|
| Opphold 301 | 0.0 m² | 1 | 2 |
| Sov 1 302 | 0.0 m² | 1 | 1 |
| Sov 2 303 | 0.0 m² | 1 | 1 |
| Sov 3 304 | 0.0 m² | 1 | 1 |
| Gang 305 | 0.0 m² | 0 | 2 |
| Bad K 306 | 0.0 m² | 0 | 1 |
| Bad F2 307 | 0.0 m² | 0 | 1 |
| Teknisk 308 | 0.0 m² | 0 | 1 |
| BRA PLUSS 149 | 404.4 m² | 0 | 0 |
| BRA innglasset 3 | 80.1 m² | 0 | 0 |
| BRA innglasset 16 | 80.1 m² | 0 | 0 |
| BRA Hus B3 7 | 2,763.6 m² | 0 | 0 |
| BRA B4 6 | 3,032.3 m² | 0 | 0 |
| BRA åpent overbygget areal 195 | 501.6 m² | 0 | 0 |
| Opphold B4-4A | 42.2 m² | 1 | 2 |
| Opphold B4-4B | 43.2 m² | 1 | 2 |
| Opphold B4-2A | 40.5 m² | 1 | 2 |
| Opphold B4-2B | 43.0 m² | 1 | 2 |
| Opphold B4-3A | 67.2 m² | 1 | 2 |
| Opphold B4-3B | 63.0 m² | 1 | 2 |
| Opphold B4-2C | 35.4 m² | 1 | 2 |
| Opphold B2-3A | 55.4 m² | 1 | 2 |
| Opphold B4-3C | 35.4 m² | 1 | 2 |
| Sov 2 B1-4C | 8.7 m² | 1 | 1 |
| Sov 1 B1-3D | 2.8 m² | 1 | 1 |
| Sov 2 B1-4B | 7.1 m² | 1 | 1 |
| Sov 3 B1-4A | 7.1 m² | 1 | 1 |
Etasje 4 0.0 m²
| Rom | Areal | Vinduer | Dører |
|---|---|---|---|
| Opphold 401 | 0.0 m² | 1 | 2 |
| Sov 1 402 | 0.0 m² | 1 | 1 |
| Sov 2 403 | 0.0 m² | 1 | 1 |
| Sov 3 404 | 0.0 m² | 1 | 1 |
| Gang 405 | 0.0 m² | 0 | 2 |
| Bad K 406 | 0.0 m² | 0 | 1 |
| Bad F2 407 | 0.0 m² | 0 | 1 |
| Teknisk 408 | 0.0 m² | 0 | 1 |
| BRA PLUSS 149 | 404.4 m² | 0 | 0 |
| BRA innglasset 3 | 80.1 m² | 0 | 0 |
| BRA innglasset 16 | 80.1 m² | 0 | 0 |
| BRA Hus B3 7 | 2,763.6 m² | 0 | 0 |
| BRA B4 6 | 3,032.3 m² | 0 | 0 |
| BRA åpent overbygget areal 195 | 501.6 m² | 0 | 0 |
| Opphold B4-4A | 42.8 m² | 1 | 2 |
| Opphold B4-4B | 40.2 m² | 1 | 2 |
| Opphold B4-2A | 40.5 m² | 1 | 2 |
| Opphold B4-2B | 43.0 m² | 1 | 2 |
| Opphold B4-3A | 67.2 m² | 1 | 2 |
| Opphold B4-3B | 63.0 m² | 1 | 2 |
| Opphold B4-3C | 35.4 m² | 1 | 2 |
| Opphold B4-2C | 35.4 m² | 1 | 2 |
| Opphold B2-3A | 55.4 m² | 1 | 2 |
Etasje 5 12,587.8 m²
| Rom | Areal | Vinduer | Dører |
|---|---|---|---|
| BRA PLUSS 149 | 404.4 m² | 0 | 0 |
| BRA innglasset 3 | 80.1 m² | 0 | 0 |
| BRA innglasset 16 | 80.1 m² | 0 | 0 |
| BRA Hus B3 7 | 2,763.6 m² | 0 | 0 |
| BRA Hus B2 7 | 2,556.6 m² | 0 | 0 |
| BRA Hus B1 7 | 2,556.6 m² | 0 | 0 |
| BRA B4 6 | 3,032.3 m² | 0 | 0 |
| BRA åpent overbygget areal 195 | 501.6 m² | 0 | 0 |
Etasje 6 12,587.8 m²
| Rom | Areal | Vinduer | Dører |
|---|---|---|---|
| BRA PLUSS 149 | 404.4 m² | 0 | 0 |
| BRA innglasset 3 | 80.1 m² | 0 | 0 |
| BRA innglasset 16 | 80.1 m² | 0 | 0 |
| BRA Hus B3 7 | 2,763.6 m² | 0 | 0 |
| BRA Hus B2 7 | 2,556.6 m² | 0 | 0 |
| BRA Hus B1 7 | 2,556.6 m² | 0 | 0 |
| BRA B4 6 | 3,032.3 m² | 0 | 0 |
| BRA åpent overbygget areal 195 | 501.6 m² | 0 | 0 |
Etasje -1 107.0 m²
| Rom | Areal | Vinduer | Dører |
|---|---|---|---|
| Sykler U01 | 107.0 m² | 0 | 1 |
| Sykkelvask U02 | 7.6 m² | 0 | 1 |
| Teknisk rom U03 | 15.0 m² | 0 | 1 |
| Bod U04 | 2.1 m² | 0 | 1 |
HUS B2 713.8 m²
Etasje -1 169.0 m²
| Rom | Areal | Vinduer | Dører |
|---|---|---|---|
| Teknisk rom B2-1 | 34.2 m² | 0 | 1 |
| Bod B2-2 | 12.0 m² | 0 | 1 |
| Bod B2-3 | 12.0 m² | 0 | 1 |
| Bod B2-4 | 12.0 m² | 0 | 1 |
| Bod B2-5 | 12.0 m² | 0 | 1 |
| Bod B2-6 | 12.0 m² | 0 | 1 |
| Bod B2-7 | 12.0 m² | 0 | 1 |
| Bod B2-8 | 12.0 m² | 0 | 1 |
| Bod B2-9 | 12.0 m² | 0 | 1 |
| Gang B2-10 | 12.0 m² | 0 | 3 |
| Trapperom B2-11 | 12.0 m² | 0 | 2 |
| Innsatsvindu B3-1 | 11.6 m² | 1 | 0 |
| Sykler B3-2 | 38.9 m² | 0 | 1 |
| Bod B3-3 | 5.0 m² | 0 | 1 |
| Bod B3-4 | 5.0 m² | 0 | 1 |
| Bod B3-5 | 5.0 m² | 0 | 1 |
| Bod B3-6 | 5.0 m² | 0 | 1 |
| Bod B3-7 | 5.0 m² | 0 | 1 |
| Bod B3-8 | 5.0 m² | 0 | 1 |
Etasje 0 301.6 m²
| Rom | Areal | Vinduer | Dører |
|---|---|---|---|
| Stue B2-4B | 107.7 m² | 1 | 2 |
| Opphold B2-2D | 36.8 m² | 1 | 2 |
| Opphold B2-3C | 61.9 m² | 1 | 2 |
| Opphold B2-4D | 114.2 m² | 1 | 2 |
| Sov 1 B2-4B | 12.7 m² | 1 | 1 |
| Sov 1 B2-2D | 12.8 m² | 1 | 1 |
| Sov 1 B2-3C | 14.6 m² | 1 | 1 |
| Sov 1 B2-4D | 10.6 m² | 1 | 1 |
| Sov 2 B2-4B | 12.7 m² | 1 | 1 |
| Sov 2 B2-2D | 12.8 m² | 1 | 1 |
| Sov 2 B2-3C | 14.6 m² | 1 | 1 |
| Sov 2 B2-4D | 10.6 m² | 1 | 1 |
| Sov 3 B2-4B | 12.7 m² | 1 | 1 |
| Sov 3 B2-2D | 12.8 m² | 1 | 1 |
| Sov 3 B2-3C | 14.6 m² | 1 | 1 |
| Sov 3 B2-4D | 10.6 m² | 1 | 1 |
| Bad 1 B2-4B | 10.7 m² | 0 | 1 |
| Bad 1 B2-2D | 10.7 m² | 0 | 1 |
| Bad 1 B2-3C | 10.7 m² | 0 | 1 |
| Bad 1 B2-4D | 10.7 m² | 0 | 1 |
| Gang B2-4B | 4.3 m² | 0 | 2 |
| Gang B2-2D | 4.3 m² | 0 | 2 |
| Gang B2-3C | 4.3 m² | 0 | 2 |
| Gang B2-4D | 4.3 m² | 0 | 2 |
| Teknisk B2-4B | 1.4 m² | 0 | 1 |
| Teknisk B2-2D | 1.4 m² | 0 | 1 |
| Teknisk B2-3C | 1.4 m² | 0 | 1 |
| Teknisk B2-4D | 1.4 m² | 0 | 1 |
| Terrasse B2-4B | 11.4 m² | 0 | 1 |
| Terrasse B2-2D | 11.4 m² | 0 | 1 |
| Terrasse B2-3C | 11.4 m² | 0 | 1 |
| Terrasse B2-4D | 11.4 m² | 0 | 1 |
| Opphold B2-2B | 0.0 m² | 0 | 0 |
| Opphold B2-4C | 0.0 m² | 0 | 0 |
| Bod B2-1 | 2.7 m² | 0 | 1 |
| Bod B2-2 | 5.3 m² | 0 | 1 |
| Bod B2-3 | 2.8 m² | 0 | 1 |
| Bod B2-4 | 2.8 m² | 0 | 1 |
| Bod B2-5 | 2.8 m² | 0 | 1 |
| Bod B2-6 | 5.0 m² | 0 | 1 |
| Bod B2-7 | 5.0 m² | 0 | 1 |
| Bod B2-8 | 5.0 m² | 0 | 1 |
| Bod B2-9 | 5.0 m² | 0 | 1 |
| Teknisk rom B2-10 | 40.0 m² | 0 | 1 |
| Gang B2-11 | 11.6 m² | 0 | 2 |
| Opphold B2-3A | 26.3 m² | 1 | 2 |
| Opphold B3-4A | 50.5 m² | 1 | 2 |
| Opphold B3-2A | 36.5 m² | 1 | 2 |
Etasje 1 0.0 m²
| Rom | Areal | Vinduer | Dører |
|---|---|---|---|
| Sov 2 B2-4B | 0.0 m² | 0 | 0 |
| Sov 1 B2-2D | 0.0 m² | 0 | 0 |
| Sov 2 B2-3C | 0.0 m² | 0 | 0 |
| Sov 1 B2-2B | 0.0 m² | 0 | 0 |
| Sov 3 B2-4C | 0.0 m² | 0 | 0 |
| Opphold B2-2A | 36.3 m² | 1 | 2 |
| Opphold B2-3A | 55.5 m² | 1 | 2 |
| Opphold B2-4A | 58.8 m² | 1 | 2 |
| Sov 1 B2-12 | 10.0 m² | 1 | 1 |
| Sov 2 B2-13 | 7.5 m² | 1 | 1 |
| Sov 3 B2-14 | 8.0 m² | 1 | 1 |
| Sov 4 B2-15 | 8.7 m² | 1 | 1 |
| Sov 5 B2-16 | 8.8 m² | 1 | 1 |
| Sov 6 B2-17 | 8.7 m² | 1 | 1 |
| Sov 7 B2-18 | 8.7 m² | 1 | 1 |
| Gang B2-19 | 13.0 m² | 0 | 2 |
| Gang B2-20 | 12.0 m² | 0 | 2 |
| Gang B2-21 | 12.0 m² | 0 | 2 |
| Gang B2-22 | 12.0 m² | 0 | 2 |
| Gang B2-23 | 12.0 m² | 0 | 2 |
| Gang B2-24 | 12.0 m² | 0 | 2 |
| Balkong B2-25 | 3.2 m² | 0 | 1 |
| Balkong B2-26 | 7.4 m² | 0 | 1 |
| Balkong B2-27 | 7.4 m² | 0 | 1 |
| Terrasse B2-28 | 12.0 m² | 0 | 1 |
| Opphold B2-4D | 32.7 m² | 1 | 2 |
| Opphold B3-4A | 50.5 m² | 1 | 1 |
| Opphold B3-4B | 27.5 m² | 1 | 1 |
| Opphold B3-3B | 27.5 m² | 1 | 1 |
| Opphold B3-3C | 21.4 m² | 1 | 1 |
| Opphold B3-2C | 16.7 m² | 1 | 1 |
| Opphold B3-2A | 16.0 m² | 1 | 1 |
| Leilighet B3-3A | 100.0 m² | 2 | 2 |
| Leilighet B3-2B | 42.2 m² | 2 | 2 |
| Stue/kjeller B3-1C | 39.5 m² | 1 | 2 |
| Stue/kjeller B3-4C | 36.3 m² | 1 | 2 |
| Stue B3-4D | 42.6 m² | 1 | 2 |
| Stue B3-3D | 29.8 m² | 1 | 2 |
| Opphold B3-2D | 30.7 m² | 1 | 2 |
Etasje 2 0.0 m²
| Rom | Areal | Vinduer | Dører |
|---|---|---|---|
| Sov 3 B2-4B | 0.0 m² | 0 | 0 |
| Sov 2 B2-2D | 0.0 m² | 0 | 0 |
| Sov 1 B2-3C | 0.0 m² | 0 | 0 |
| Sov 2 B2-2B | 0.0 m² | 0 | 0 |
| Sov 1 B2-4C | 0.0 m² | 0 | 0 |
| Opphold B2-4A | 36.3 m² | 1 | 2 |
| Opphold B2-3A | 55.5 m² | 1 | 2 |
| Opphold B2-3B | 51.1 m² | 1 | 2 |
| Opphold B2-2A | 42.5 m² | 1 | 2 |
| Opphold B2-1A | 36.8 m² | 1 | 2 |
| Opphold B2-1B | 36.8 m² | 1 | 2 |
| Sov B2-4A_Sov | 8.8 m² | 1 | 1 |
| Sov B2-4B_Sov | 8.8 m² | 1 | 1 |
| Sov B2-3A_Sov | 7.5 m² | 1 | 1 |
| Sov B2-3B_Sov | 7.5 m² | 1 | 1 |
| Sov B2-2A_Sov | 8.7 m² | 1 | 1 |
| Sov B2-2B_Sov | 8.5 m² | 1 | 1 |
| Sov B2-1A_Sov | 8.8 m² | 1 | 1 |
| Sov B2-1B_Sov | 8.8 m² | 1 | 1 |
| Bad B2-4A_Bad | 4.1 m² | 0 | 1 |
| Bad B2-4B_Bad | 4.3 m² | 0 | 1 |
| Bad B2-3A_Bad | 4.1 m² | 0 | 1 |
| Bad B2-3B_Bad | 4.3 m² | 0 | 1 |
| Bad B2-2A_Bad | 4.3 m² | 0 | 1 |
| Bad B2-2B_Bad | 4.3 m² | 0 | 1 |
| Bad B2-1A_Bad | 4.3 m² | 0 | 1 |
| Bad B2-1B_Bad | 4.3 m² | 0 | 1 |
| Gang B2-4A_Gang | 12.0 m² | 0 | 2 |
| Gang B2-4B_Gang | 12.0 m² | 0 | 2 |
| Gang B2-3A_Gang | 12.0 m² | 0 | 2 |
| Gang B2-3B_Gang | 12.0 m² | 0 | 2 |
| Gang B2-2A_Gang | 12.0 m² | 0 | 2 |
| Gang B2-2B_Gang | 12.0 m² | 0 | 2 |
| Gang B2-1A_Gang | 12.0 m² | 0 | 2 |
| Gang B2-1B_Gang | 12.0 m² | 0 | 2 |
| Balkong B2-4A_Balkong | 7.4 m² | 1 | 1 |
| Balkong B2-4B_Balkong | 7.4 m² | 1 | 1 |
| Balkong B2-3A_Balkong | 6.4 m² | 1 | 1 |
| Balkong B2-3B_Balkong | 6.4 m² | 1 | 1 |
| Balkong B2-2A_Balkong | 6.1 m² | 1 | 1 |
| Balkong B2-2B_Balkong | 6.1 m² | 1 | 1 |
| Balkong B2-1A_Balkong | 6.4 m² | 1 | 1 |
| Balkong B2-1B_Balkong | 6.4 m² | 1 | 1 |
| Opphold B2-4BA | 105.4 m² | 1 | 2 |
| Opphold B2-3D | 50.1 m² | 1 | 2 |
| Stue/kjkken B3-4A | 113.9 m² | 2 | 2 |
| Stue/kjkken B3-4B | 91.3 m² | 2 | 2 |
| Stue/kjkken B3-3A | 94.7 m² | 2 | 2 |
| Stue/kjkken B3-3B | 67.0 m² | 2 | 2 |
| Stue/kjkken B3-2A | 98.5 m² | 2 | 2 |
| Stue/kjkken B3-2B | 42.2 m² | 2 | 2 |
| Stue/kjkken B3-1A | 94.7 m² | 2 | 2 |
| Stue/kjkken B3-1B | 67.0 m² | 2 | 2 |
Etasje 3 50.1 m²
| Rom | Areal | Vinduer | Dører |
|---|---|---|---|
| Opphold B2-3D | 22.5 m² | 1 | 2 |
| Sov 1 B2-3D | 10.0 m² | 1 | 1 |
| Sov 2 B2-3D | 7.5 m² | 1 | 1 |
| Bad 1 B2-3D | 10.2 m² | 1 | 1 |
| Gang B2-3D | 0.0 m² | 0 | 2 |
| Balkong B2-3D | 8.4 m² | 1 | 1 |
| Opphold B2-4A | 36.8 m² | 1 | 1 |
| Opphold B2-4B | 35.8 m² | 1 | 1 |
| Opphold B2-3A | 34.8 m² | 1 | 1 |
| Opphold B2-2A | 36.3 m² | 1 | 1 |
| Opphold B2-2B | 42.5 m² | 1 | 1 |
| Opphold B2-2D | 36.8 m² | 1 | 1 |
| Opphold B3-4A | 50.5 m² | 1 | 2 |
| Opphold B3-4B | 89.7 m² | 1 | 2 |
| Opphold B3-3A | 55.5 m² | 1 | 2 |
| Opphold B3-3B | 67.0 m² | 1 | 2 |
| Opphold B3-3C | 49.8 m² | 1 | 2 |
| Opphold B3-2C | 39.5 m² | 1 | 2 |
| Opphold B3-2A | 38.5 m² | 1 | 2 |
| Stue/kjeller B3-2B | 0.0 m² | 1 | 2 |
Etasje 4 42.5 m²
| Rom | Areal | Vinduer | Dører |
|---|---|---|---|
| Opphold B2-2B | 21.2 m² | 1 | 2 |
| Sov 1 B2-2B | 7.5 m² | 1 | 1 |
| Sov 2 B2-2B | 7.5 m² | 1 | 1 |
| Bad 1 B2-2B | 4.3 m² | 0 | 1 |
| Gang B2-2B | 2.0 m² | 0 | 2 |
| Balkong B2-2B | 0.0 m² | 0 | 0 |
Etasje 5 55.5 m²
| Rom | Areal | Vinduer | Dører |
|---|---|---|---|
| Opphold B2-3A | 24.4 m² | 1 | 2 |
| Sov 1 B2-3A | 7.5 m² | 1 | 1 |
| Sov 2 B2-3A | 7.5 m² | 1 | 1 |
| Bad 1 B2-3A | 4.1 m² | 0 | 1 |
| Gang B2-3A | 12.6 m² | 0 | 2 |
| Balkong B2-3A | 9.0 m² | 1 | 1 |
Etasje 6 36.3 m²
| Rom | Areal | Vinduer | Dører |
|---|---|---|---|
| Opphold B2-2A | 17.8 m² | 1 | 2 |
| Sov 1 B2-2A | 8.7 m² | 1 | 1 |
| Sov 2 B2-2A | 8.7 m² | 1 | 1 |
| Bad 1 B2-2A | 1.3 m² | 0 | 1 |
| Gang B2-2A | 0.0 m² | 0 | 2 |
| Balkong B2-2A | 0.0 m² | 0 | 0 |
Etasje 7 58.8 m²
| Rom | Areal | Vinduer | Dører |
|---|---|---|---|
| Opphold B2-4A | 35.2 m² | 1 | 2 |
| Sov 1 B2-4A | 8.8 m² | 1 | 1 |
| Sov 2 B2-4A | 8.8 m² | 1 | 1 |
| Bad 1 B2-4A | 4.1 m² | 0 | 1 |
| Gang B2-4A | 1.5 m² | 0 | 2 |
| Balkong B2-4A | 11.2 m² | 1 | 1 |
Plan parkering 0.0 m²
Etasje -1 0.0 m²
| Rom | Areal | Vinduer | Dører |
|---|---|---|---|
| Parkering 001 | 0.0 m² | 0 | 0 |
BRA P-kjeller 3,866.2 m²
Etasje -1 3,866.2 m²
| Rom | Areal | Vinduer | Dører |
|---|---|---|---|
| Bod P-01 | 213.8 m² | 0 | 1 |
| Sykkelrom P-02 | 176.9 m² | 0 | 1 |
| Teknisk rom P-03 | 135.6 m² | 0 | 1 |
| Bod P-04 | 150.5 m² | 0 | 1 |
| Sykkelrom P-05 | 131.2 m² | 0 | 1 |
| Teknisk rom P-06 | 120.0 m² | 0 | 1 |
| Bod P-07 | 100.0 m² | 0 | 1 |
| Sykkelrom P-08 | 90.0 m² | 0 | 1 |
| Teknisk rom P-09 | 80.0 m² | 0 | 1 |
| Bod P-10 | 70.0 m² | 0 | 1 |
| Sykkelrom P-11 | 60.0 m² | 0 | 1 |
| Teknisk rom P-12 | 50.0 m² | 0 | 1 |
| Bod P-13 | 40.0 m² | 0 | 1 |
| Sykkelrom P-14 | 30.0 m² | 0 | 1 |
| Teknisk rom P-15 | 20.0 m² | 0 | 1 |
| Bod P-16 | 10.0 m² | 0 | 1 |
Landås L5-KJELLER 0.0 m²
Etasje 0 0.0 m²
| Rom | Areal | Vinduer | Dører |
|---|---|---|---|
| Parkering U101 | 0.0 m² | 0 | 0 |
| Teknisk rom U102 | 0.0 m² | 0 | 0 |
| Gang U103 | 0.0 m² | 0 | 0 |
| Lift U104 | 0.0 m² | 0 | 0 |
| Trapperom U105 | 0.0 m² | 0 | 0 |
Leiligheter 0.0 m²
Etasje 1 0.0 m²
| Rom | Areal | Vinduer | Dører |
|---|---|---|---|
| Leilighet 0 | 0.0 m² | 0 | 0 |
Etasje 2 0.0 m²
| Rom | Areal | Vinduer | Dører |
|---|---|---|---|
| Leilighet 0 | 0.0 m² | 0 | 0 |
Etasje 3 0.0 m²
| Rom | Areal | Vinduer | Dører |
|---|---|---|---|
| Leilighet 0 | 0.0 m² | 0 | 0 |
Etasje 4 0.0 m²
| Rom | Areal | Vinduer | Dører |
|---|---|---|---|
| Leilighet 0 | 0.0 m² | 0 | 0 |
Fasader
HUS B4
- Materiale
- Tre
- Taktype
- Flatt tak
- Høyde
- 127.0 m
- Mønehøyde
- 128.2 m
- Vinduer
- 24
- Dører
- 1
- Balkonger
- 12
- Synlige etasjer
- 4
- Materiale
- Tre
- Taktype
- Flatt tak
- Høyde
- 127.0 m
- Mønehøyde
- 128.2 m
- Vinduer
- 24
- Dører
- 2
- Balkonger
- 10
- Synlige etasjer
- 4
- Materiale
- Tre
- Taktype
- Flatt tak
- Høyde
- 127.0 m
- Mønehøyde
- 127.5 m
- Vinduer
- 14
- Dører
- 1
- Balkonger
- 6
- Synlige etasjer
- 6
- Materiale
- Tre
- Taktype
- Flatt tak
- Høyde
- 127.0 m
- Mønehøyde
- 127.5 m
- Vinduer
- 14
- Dører
- 2
- Balkonger
- 12
- Synlige etasjer
- 4
Hus B1
- Materiale
- Tre
- Taktype
- Flatt tak
- Høyde
- 127.0 m
- Vinduer
- 18
- Dører
- 1
- Balkonger
- 8
- Synlige etasjer
- 6
LANDÅS L5 - HUS B3
- Materiale
- Mur
- Taktype
- Flatt tak
- Høyde
- 126.3 m
- Vinduer
- 36
- Dører
- 2
- Balkonger
- 12
- Synlige etasjer
- 5