NewConstruction Ferdigattest Leilighetsbygg

Ny leilighetsbygg med næringsareal i Folabruveien 2-4-6, Asker

📍 Folabruveien 2-4-6

Nøkkelinfo

Sakstype
Nybygg
Bygningstype
Leilighetsbygg
Bruksareal
25,779 m²
Boenheter
12
Kommune
Asker
Fylke
Akershus
Gnr / Bnr
50 / 434
Saksnummer
21/4415
Fase
Ferdigattest

Om byggesaken

Prosjektet omfatter oppføring av fire leilighetsbygg med tilhørende næringsareal og uteoppholdsarealer i Fusdalskogen, Folabruveien 2-4-6 i Asker. Byggene har flere etasjer med totalt bruksareal på ca. 25 779 m², inkludert boliger, næringslokaler, boder, parkeringskjeller og tekniske rom. Byggene har heis, trapper, balkonger med innglassing der det er nødvendig, og fasader med glasskonstruksjoner og beslag. Utomhusanlegg inkluderer gang- og sykkelveier, torg, beplantning, belysning, overvannshåndtering og avfallssug. Bygget er oppført med betongkonstruksjoner, trekonstruksjoner, murarbeid, taktekking med sedum, og tekniske installasjoner som VVS, elektro, ventilasjon, brannalarm, slukkeanlegg og varmepumper. Prosjektet er ferdigstilt med godkjent ferdigattest og overtakelsesprotokoller for vei, VA og bygg.

Arbeidsomfang

Oppføring av nytt leilighetsbygg med næringsareal (Fusdalskogen BT1 Bygg 1).

Produkter og materialer

Terrasse Markterrasse og ramper

🧱 Tre og marktegl

Markterrasser med maksimal høyde 25 mm under terskel, ramper i Kebony character treverk

Terrasser og ramper for uteopphold

VVS Slukkeinstallasjoner

Slukkeinstallasjoner prosjektert og utført av Sprinkler Prosjekt AS og VEAS Rør AS

Brannslukkeanlegg i bygget

Gulv Marktegl og tremmegulv

🧱 Marktegl, Kebony character treverk

Marktegl lagt i fiskebeinsmønster, tremmegulv av Kebony character i uteområder

Utegulv og terrasser

Fasade Montering av glasskonstruksjoner og fasadekledning

🧱 Glass og fasadekledning

Montering utført av Sagstuen AS

Glassfasader og fasadekledning

Løfteinnretninger Heis

Antall: 2

Personheiser levert av Orona Norway AS, sertifisert og kontrollert

Heiser i bygget for adkomst mellom etasjer

Grunnarbeid Vannforsynings- og avløpsanlegg

VA-anlegg med vann, spillvann, overvann og avfallssug, godkjent og overtatt av kommunen

Vann- og avløpsinfrastruktur for prosjektet

VVS Varme- og kuldeinstallasjoner

Varme- og kuldeinstallasjoner med varmepumpe og vannbåren radiator

Varme- og kuldeinstallasjoner for bygget

Dører Inngangsdører og balkongdører

Inngangsdører til leiligheter og næringsareal, balkongdører med innglassing

Ytterdører og balkongdører med innglassing

Grunnarbeid Veg- og grunnarbeider

Veg- og grunnarbeider utført av Kongsberg Entreprenør AS

Grunnarbeid for bygg og uteområder

Tak Taktekkingsarbeid

🧱 Takmaterialer

Taktekkingsarbeid utført av Icopal Tak AS

Taktekking med sedum og takmaterialer

Rekkverk Glassrekkverk og stålrekkverk

🧱 Glass og stål

Glassrekkverk på balkonger, stålrekkverk på trapper og uteområder

Sikring og estetikk på balkonger og trapper

Mur Murarbeid

🧱 Mur

Murarbeid utført av Mjøndalen Mur og Puss AS

Murarbeid i bygget og uteområder

Tak Sedumtak

🧱 Sedum vegetasjon

Sedum på tak med takoppbygg

Grønne tak med sedum vegetasjon

Vinduer Fasadevindu

Glassfelt og glassdører i næringsareal, glassrekkverk på balkonger

Fasadevinduer og glassdører med glassrekkverk for balkonger

Tømrer Tømrerarbeid og montering av trekonstruksjoner

🧱 Tre

Tømrerarbeid og trekonstruksjoner utført av JM Norge AS

Trekonstruksjoner og tømrerarbeid i bygget

Annet Avfallshåndtering

Avfallssug med nedkast, renovasjonsløsning godkjent og overtatt

Avfallshåndtering for bolig- og næringsareal

Elektro Brannalarmanlegg og ledesystem

Brannalarm og nødlysanlegg prosjektert og utført av Schneider Electric Norge AS og Irby Elektro AS

Brannalarmanlegg og ledesystem for nødlys

Ventilasjon Ventilasjon- og klimainstallasjoner

Ventilasjon og klimainstallasjoner prosjektert og utført av Andresen, Jacobsen og Løyning AS og LS Solland AS

Ventilasjon og klimaanlegg for bygget

VVS Sanitærinstallasjoner

Sanitærinstallasjoner prosjektert og utført av Andresen, Jacobsen og Løyning AS og VEAS Rør AS

Sanitærinstallasjoner for leiligheter og næringsareal

Landskapsutforming Utomhusanlegg

Landskapsutforming og utearealer utført av Kongsberg Entreprenør AS og JM Norge AS

Opparbeidelse av uteområder, torg, gang- og sykkelveier, beplantning, belysning og overvannshåndtering

Trapper Innvendige trapper

🧱 Betong og tre

Antall: 1

Rømningstrapper innkledd og lukket med dør, trapper i betong og treverk

Innvendige trapper for rømningsveier og adkomst

Betong Plasstøpte betongkonstruksjoner

🧱 Betong

Plasstøpte betongkonstruksjoner utført av JM Norge AS

Betongkonstruksjoner for bygg og fundamenter

Fasade Glasskonstruksjoner og beslag

🧱 Glass og beslag

Glasskonstruksjoner og beslag mellom balkonger, glassrekkverk

Fasadeelementer med glass og beslag for balkonger og fasade

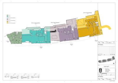
Plantegning

Fusdal Torg BT1 302.3 m²

Etasje 1 302.3 m²

Rom Areal Vinduer Dører
Bod 101 302.3 m² 0 0

BRA bygg 1-2-3-4 1,234.5 m²

Etasje 1 1,234.5 m²

Rom Areal Vinduer Dører
Bod 101 12.5 m² 0 1
Stue 102 45.2 m² 2 1
Kjøkken 103 22.1 m² 1 1
Gang 104 15.3 m² 0 2
Sovegang 105 18.4 m² 1 1
Sovegang 106 14.2 m² 1 1
Bad 107 8.5 m² 0 1
Vaskerom 108 6.2 m² 0 1
Teknisk rom 109 4.1 m² 0 1

Hovedbygg 0.0 m²

Etasje 1 0.0 m²

Rom Areal Vinduer Dører
Hus 1 0 0.0 m² 0 0

Etasje 0 0.0 m²

Rom Areal Vinduer Dører
Hus 3 0 0.0 m² 0 0
Hus 4 0 0.0 m² 0 0

Hendelser

08.04.2026 50/434 Folabruveien 2, 4, 6 - Bygg 1 - Spørsmål om avklaring knyttet til innglassing av balkonger
16.08.2025 50/434 Folabruveien 2, 4 og 6 - Ferdigattest - Bygg 1 - Nybygg - Leilighetsbygg med næring ferdigattest
11.08.2025 50/434 Folabruveien 2-4-6 - Bygg 1 - Supplering av søknad om ferdigattest ferdigattest
23.07.2025 50/434 Folabruveien 2 - Bygg 1 - Ufullstendig søknad om ferdigattest - Nybygg - Leilighetsbygg med næring vedtak
02.07.2025 50/434 Folabruveien 2 - Søknad om ferdigattest ferdigattest
12.08.2024 50/434 Folabruveien 2-4-6 Midlertidig brukstillatelse - Nybygg - Bygg 1 - Leilighetsbygg med næring midlertidig_brukstillatelse
18.06.2024 50/434 Fusdalskogen (nordsiden av Askerveien) - Supplering av søknad søknad
18.06.2024 50/434 - Søknad om midlertidig brukstillatelse midlertidig_brukstillatelse
01.06.2023 50/434 Igangsettingstillatelse - nybygg - Bygg 1 - Leilighetsbygg med næring igangsettingstillatelse
02.05.2023 50/434 Søknad om igangsettingstillatelse 1 - Nybygg - Bygg 1 - Leilighetsbygg med næring igangsettingstillatelse
28.04.2023 50/434 Godkjent endring - Nybygg - Bygg 1 - Leilighetsbygg med næring
13.04.2023 50/434 Status om endringssøknad
24.02.2023 50/434 Søknad om endring av gitt tillatelse - Nybygg - Bygg 1 - Leilighetsbygg med næring søknad
12.11.2021 50/434 Rammetillatelse til nybygg - Bygg 1 - Leilighetsbygg med næring rammetillatelse
01.11.2021 50/434 Søknad om nybygg - Bygg 1 - Leilighetsbygg med næring søknad