NewConstruction UnderBehandling Leilighetsbygg

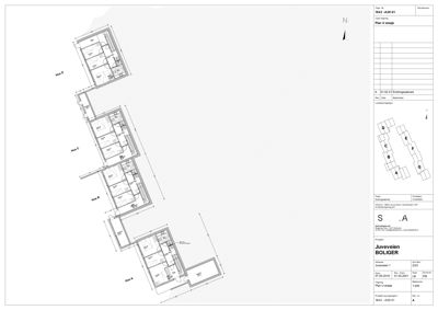
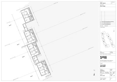
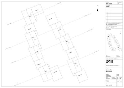
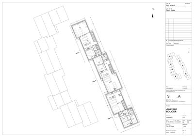
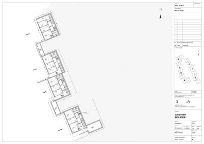
Nybygg med 7 boenheter i kjede i Juveveien 1, Svelvik

📍 Juveveien 1A , 3060 SVELVIK

Nøkkelinfo

Sakstype
Nybygg
Bygningstype
Leilighetsbygg
Bruksareal
766 m²
Boenheter
7
Kommune
Drammen
Fylke
Buskerud
Gnr / Bnr
323 / 3
Saksnummer
21/23479
Fase
Under behandling

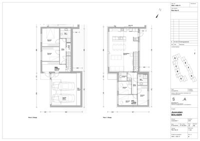
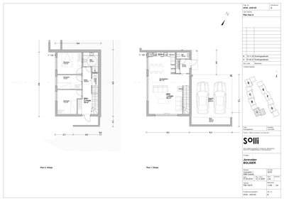
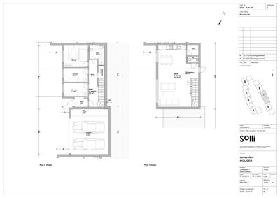
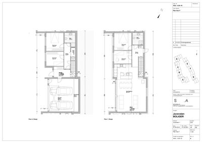
Om byggesaken

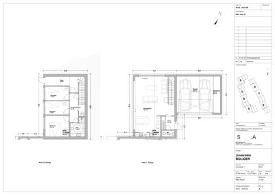
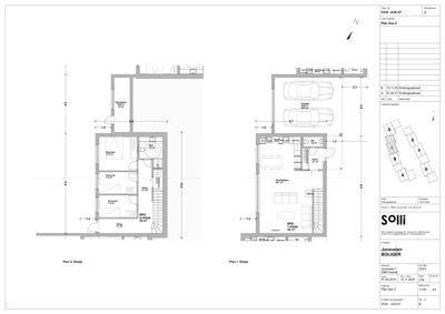
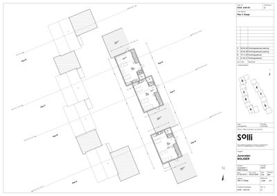
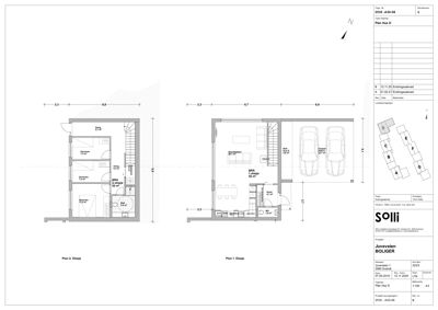
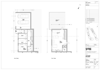
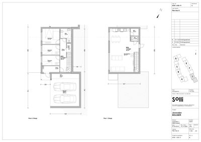
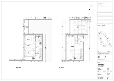
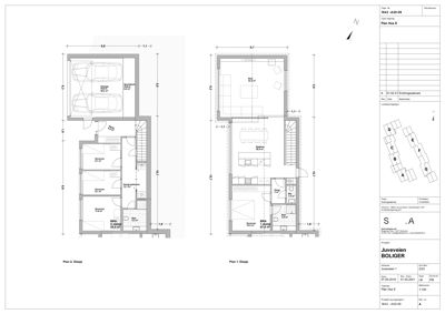
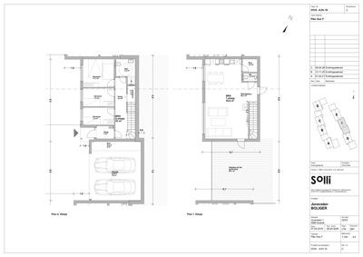
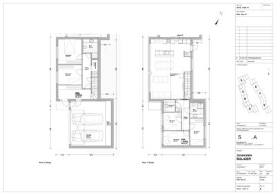
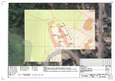
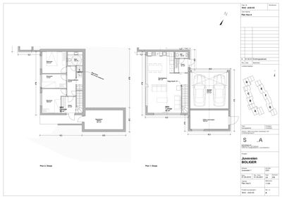
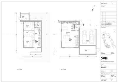
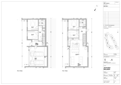
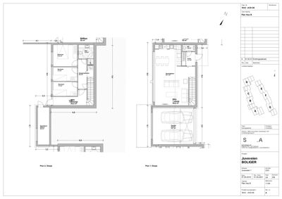
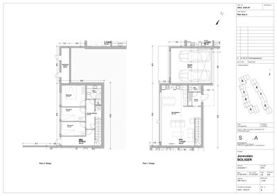
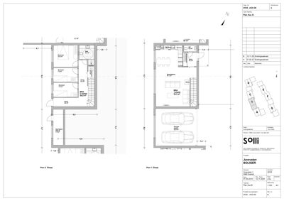
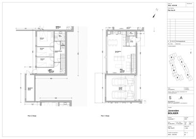
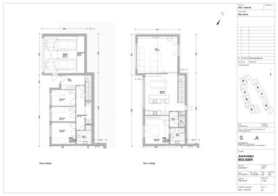
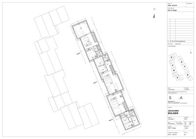
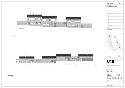
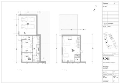
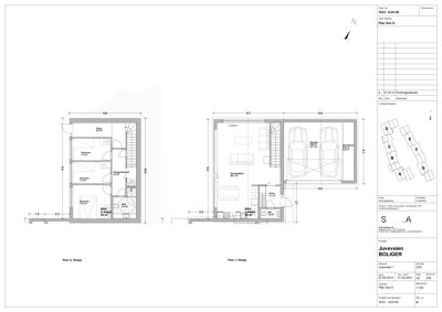
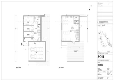
Prosjektet omfatter oppføring av 7 nye boenheter i kjede på eiendommen Juveveien 1 i Svelvik. Byggene er to-etasjes boligrekker med tilhørende garasjer og carporter, sportsboder og felles renovasjonsløsning. Totalt BRA for boligene er ca. 766 m² etter endringer, med tilhørende garasje/carportareal på ca. 199 m² og boder på ca. 60 m². Byggene har saltak, mens garasjer/carporter har flate tak med fall. Grunnarbeider, riving av eksisterende bebyggelse og utvendig vann- og avløpsanlegg er utført. Terrenget er bratt med store terrenginngrep, inkludert kulvertering av bekk. Utomhusplan med MUA-arealer og adkomst er oppdatert. Prosjektet har godkjent rammetillatelse, igangsettingstillatelse for grunnarbeider og pågående behandling av endringssøknader for justeringer i planløsning, takform og utomhus. Det er etablert avtaler for vann, avløp og transformatorstasjon. Prosjektet har ansvarlige foretak for arkitektur, geoteknikk, VA, grunnarbeider og riving, med tiltaksklasse 2 for utførelse.

Produkter og materialer

Betong Fundamentering

🧱 Betong

Fundamentering på sand- og siltmasser, delvis på fjell, iht geoteknisk rapport

Fundamentering av boligene på grunnlag av geoteknisk vurdering med kvalitetsfyllinger

Fasade Tre kledning

🧱 Tre

Tre kledning på fasader

Tre kledning på boligene

Garasjeport Garasjeport i tre

🧱 Tre

Antall: 7

Garasjeporter for 7 garasjer

Tak Saltak bolig

🧱 Takstein eller lignende

Antall: 7

Saltak på boligene, flate tak med fall på garasjer/carporter

Saltak på boligene, flate tak med fall min. 1:40 på garasjer og carporter

VVS Vann- og avløpsanlegg

Nytt utvendig vann- og avløpsanlegg med PE rør Ø180 mm, privat overvannsledning

Vann- og avløpsanlegg med tilkobling til kommunalt nett, overvann håndteres på egen eiendom

Vinduer Garasjevindu

🧱 Tre

Antall: 12

Vinduer i garasjer og carporter

Elektro Transformatorstasjon

Antall: 1

Ny transformatorstasjon plassert 1 m fra grense, godkjent plassering

Transformatorstasjon for strømforsyning til boligfeltet

Ventilasjon Brannkum

Antall: 1

Brannkum ved innkjørsel med kapasitet 17 l/s

Brannkum for slokkevann ved innkjørsel til boligfeltet

Vinduer Fasadevindu

🧱 Tre

Antall: 14

Fasadevindu i tre for boligene

Dører Ytterdører

🧱 Tre

Antall: 21

Ytterdører til boligene, sportsboder og renovasjonsrom

Garasjeport Carport

🧱 Tre

Antall: 4

Carporter med flate tak med fall min. 1:40

Carporter for hus A, B, C og D med flate tak

Tømrer Sportsbod

🧱 Tre

Antall: 7

Sportsboder flyttet under garasjer eller mot vegg, med pulttak eller flatt tak

Sportsboder tilknyttet hver bolig, delvis under garasje/carport

Grunnarbeid Terrengbearbeidelse og grunnarbeid

Omfattende terrenginngrep med oppfylling, utsprengning, kulvertering av bekk

Grunnarbeider med terrengbearbeidelse, kulvertering av bekk, oppfylling og utsprengning

Utendørs Utomhusplan

Opparbeidelse av utearealer med MUA, beplantning, renovasjon, adkomst og fortau

Utomhusplan med uteoppholdsarealer, renovasjonsløsning og adkomst

Fasader

Hus A

Vest
Materiale
Tre
Taktype
Saltak
Vinduer
5
Dører
1
Synlige etasjer
2
Sør
Materiale
Tre
Taktype
Saltak
Vinduer
2
Dører
1
Synlige etasjer
2
Øst
Materiale
Tre
Taktype
Saltak
Vinduer
0
Dører
2
Synlige etasjer
1
Nord
Materiale
Tre
Taktype
Saltak
Vinduer
0
Dører
1
Synlige etasjer
2

Hus B

Vest
Materiale
Tre
Taktype
Saltak
Vinduer
5
Dører
1
Synlige etasjer
2
Sør
Materiale
Tre
Taktype
Saltak
Vinduer
0
Dører
0
Synlige etasjer
2
Øst
Materiale
Tre
Taktype
Saltak
Vinduer
0
Dører
1
Synlige etasjer
2
Nord
Materiale
Tre
Taktype
Saltak
Vinduer
0
Dører
0
Synlige etasjer
2

Hendelser

13.04.2026 Juveveien 1, ytterligere dokumentasjon til søknad om endring av gitt tillatelse
19.03.2026 Juveveien 1A-1G, tilbakemelding om mottatt dokumentasjon av 06.03.2026
05.03.2026 Juveveien 1A-1G, redegjørelsen F-1 fra 15.01.2026
04.03.2026 Juveveien 1A-1G, spørsmål om endret takform
26.02.2026 Juveveien 1A-1G, oppdaterte tegninger med følgebrev
29.01.2026 Juveveien 1A - 1G, vi trenger flere opplysninger for å behandle din søknad
16.01.2026 Juveveien 1A-1G, søknad om endring av gitt tillatelse
02.06.2023 Juveveien 1 A - 1 G, Henvendelse vedr usikret byggeplass
22.09.2021 Juveveien 1 - tillatelse til endring, orientering om vedtak
14.09.2021 Juveveien 1A - 1G, tillatelse til endring
01.07.2021 Juveveien 1 A - 1 G, melding om mottatt søknad
30.06.2021 Juveveien 1 A, Søknad om endring av gitt tillatelse
22.06.2021 Juveveien 1 A - 1 G, igangsettingstillatelse 1, nybygg 7 eneboliger i kjede
21.06.2021 323/3 - Juveveien 1 - IG1 - oppdatert ansvarsrett/gjennomføringsplan.
18.06.2021 SV: 20043 Juveveien 1 - om ansvar for terrengarbeider og overvannsledning
16.06.2021 SV: 20043 Juveveien 1 - spørsmål om ansvar for grunnarbeider
15.06.2021 Juveveien 1, svar på spørsmål om overvannsledning og slokkevannskapasitet
15.06.2021 Juveveien 1 - forhåndsgodkjenning VA tegninger
29.05.2021 Juveveien 1 A - 1 G, melding om mottatt søknad
29.05.2021 Juveveien 1 A - 1 G, melding om mottatt søknad
28.05.2021 Juveveien 1 A - 1 G, Søknad om igangsettingstillatelse IG 1