NewConstruction UnderBehandling Leilighetsbygg

Ny boligbebyggelse med parkeringskjeller på Landfalløya 37-41, Drammen

📍 Landfalløya 37 , 3023 DRAMMEN

Nøkkelinfo

Sakstype
Nybygg
Bygningstype
Leilighetsbygg
Bruksareal
3,200 m²
Boenheter
28
Kommune
Drammen
Fylke
Buskerud
Gnr / Bnr
115 / 508
Saksnummer
24/43189
Fase
Under behandling

Om byggesaken

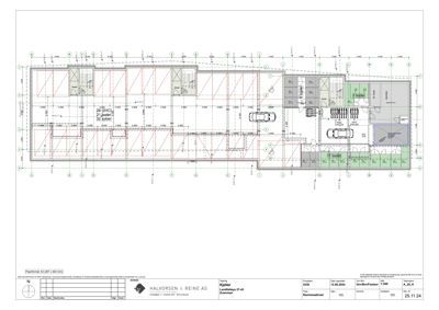
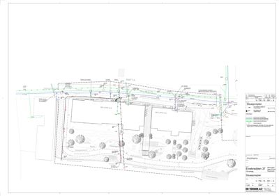
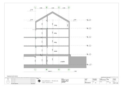
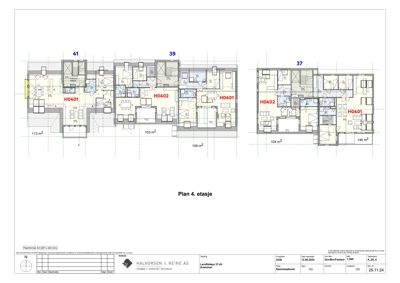
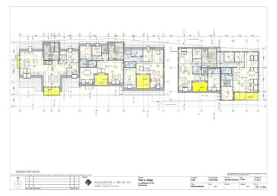
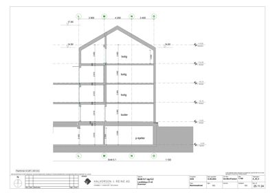
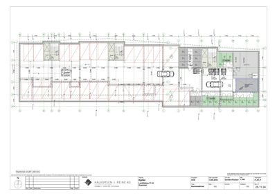
Prosjektet omfatter riving av eksisterende bebyggelse på Landfalløya 37, 41 og 43 i Drammen og oppføring av ny boligbebyggelse i 4 etasjer med totalt 28 leiligheter. Det etableres felles underjordisk parkeringskjeller med tilhørende teknisk infrastruktur. Byggeområdet er på ca. 3200 m², hvorav ca. 1700 m² utgjør spuntgrop for utgraving ned ca. 3 meter. Området mot elva opparbeides med oppfylling og utearealer, inkludert forlengelse av elvepromenaden og grøntområder. Miljøtekniske grunnundersøkelser har påvist forurensede masser med overskridelser av normverdier for arsen, tungmetaller, PAH og benzen, og det er utarbeidet og godkjent tiltaksplan for håndtering av disse massene. Prosjektet inkluderer også omfattende miljøkartlegging og avfallsplaner for riving, samt støyutredning som viser tilfredsstillende støynivåer. Renovasjonsløsning med nedgravde containere er godkjent med dispensasjon fra reguleringsplan. Det er etablert nødvendige ansvarsretter for prosjektering, utførelse og kontroll, og det foreligger igangsettingstillatelser for riving og grunnarbeider.

Produkter og materialer

Terrasse Privat uteoppholdsareal og fellesareal

🧱 Betong, gressarmering, grus, tre

Oppholdsarealer med betongdekker, gressarmering, lekeplass med sand og sandlek, pergola med klatreplanter

Uteområder for beboere

Tak Saltak og flatt tak

🧱 Takstein, asfaltpapp

Saltak på tre fasader, flatt tak på østfasade, takpapp på eldre bygg

Taktekking for boligbygg

Fasade Tegl og stående panelkledning

🧱 Tegl, trepanel

Fasade med tegl og stående panelkledning i historiske farger

Fasadeutforming

Dører Ytterdører og balkongdører

🧱 Tre og glass

Ytterdører og balkongdører i boligene

Dører til leiligheter

Garasjeport Ikke nevnt

Ingen informasjon om garasjeport i dokumentene

Trapper Innvendige trapper

🧱 Tre og betong

Antall: 2

Innvendige trapper i boligblokkene

Trapper mellom etasjer

Grunnarbeid Spuntgrop og utgraving

Antall: 1700

Utgraving ned ca. 3 meter i spuntgrop på ca. 1700 m²

Grunnarbeid for parkeringskjeller og fundamentering

Solceller Ikke nevnt

Ingen informasjon om solceller i dokumentene

Miljøsanering Håndtering av forurensede masser

Fjerning av masser i tilstandsklasse 4 og 5, håndtering og disponering i henhold til tiltaksplan

Miljøsanering av forurenset grunn

Varmepumpe Ikke nevnt

Ingen informasjon om varmepumpe i dokumentene

Tømrer Trevirke til fasade og innvendig konstruksjon

🧱 Tre

Stående panelkledning i hvitt, gult og grønt, bærende stenderverk i stål og trevirke innvendig

Fasade- og innvendige konstruksjoner

Betong Parkeringskjeller og fundamenter

🧱 Betong

Betongdekker og fundamenter i kjeller

Bygningens bærende konstruksjoner i kjeller

Vinduer Isolerglassvinduer

🧱 Glass og tre/aluminium rammer

Antall: 28

Isolerglassvinduer med dokumentert PCB og klorparafiner i eldre vinduer, nyere vinduer uten farlige stoffer

Vinduer til leiligheter

VVS Vann- og avløpsanlegg

🧱 Rør og kummer

Nye vann- og avløpsledninger, brannkum, spillvannsuttrekk, overvannsledning med omlegging

Teknisk infrastruktur for vann og avløp

Avfall Sortering og håndtering av avfall

Avfallsplan med sortering av farlig og ordinært avfall, inkludert farlig avfall som asbest, PCB, ftalater, impregnert trevirke, EE-avfall, maling, lim, lakk, fugemasser, gasser i trykkbeholdere

Avfallshåndtering under riving og bygging

Elektro El-installasjoner og belysning

El-tavler, belysning med LED, energimålere, brannalarmanlegg, ledesystem

Elektriske installasjoner i bygget

Fasader

Enebolig

Nord
Materiale
Tre
Taktype
Saltak
Høyde
14.5 m
Mønehøyde
18.4 m
Vinduer
10
Dører
1
Balkonger
1
Synlige etasjer
3
Vest
Materiale
Tre
Taktype
Saltak
Høyde
14.5 m
Mønehøyde
18.4 m
Vinduer
10
Dører
1
Balkonger
1
Synlige etasjer
3
Sør
Materiale
Tre
Taktype
Saltak
Høyde
14.5 m
Mønehøyde
17.9 m
Vinduer
12
Dører
1
Balkonger
1
Synlige etasjer
3
Øst
Materiale
Tre
Taktype
Flatt tak
Høyde
14.5 m
Mønehøyde
16.1 m
Vinduer
6
Dører
1
Synlige etasjer
3

Hendelser

15.04.2026 Landfalløya 37, 39 og 41, kopi av gravetillatelse
09.04.2026 Landfalløya 37, 39 og 41 - bekreftelse gravesøknad for omlegging av overvannsledning
20.03.2026 Landfalløya 37, 39 og 41, godkjent tiltaksplan
19.03.2026 Landfalløya 37, 39 og 41, revidert miljøoppfølgingsplan
04.03.2026 Landfalløya 37, 39 og 41, oppdatert miljøoppfølgingsplan
03.03.2026 Landfalløya 37, 41 og 43, søknad om IG2, tilbakemelding på miljøoppfølgingsplan og tiltaksplan
03.03.2026 Landfalløya 37, 39 og 41, oppdatert tiltaksplan for forurenset grunn
25.02.2026 Landfalløya 37, 41 og 43 - tilleggsopplysninger til søknad om IG2
18.02.2026 Landfalløya 37, 41, 43 & 43B, søknad om igangsettingstillatelse - IG av grunn- og VA-arbeider
05.01.2026 Landfalløya 37, 39 og 41, igangsettingstillatelse nr. 1. for riving av eksisterende bygg og oppføring av ny boligbebyggelse i 4 etasjer og parkeringskjeller
22.12.2025 Landfalløya 37-39-41, søknad om igangsettingstillatelse for riving av eksisterende bebyggelse
12.12.2025 115/508, Landfalløya 37-43, bygging av nye blokker, adressering
10.12.2025 Landfalløya 37, 41 og 43, rammetillatelse for riving av eksisterende bygg og oppføring av ny boligbebyggelse i 4 etasjer og parkeringskjeller med dispensasjon
14.11.2025 Landfalløya 37, 41 og 43 tilbakemelding på henvendelse om godkjenning av renovasjonsløsning
14.11.2025 Landfalløya 37, 41 og 43, tilleggsopplysninger til renovasjonsløsning
16.10.2025 Landfalløya 37, 41 og 43, bekreftelse fra RfD på godkjent renovasjonsløsning
08.10.2025 Landfalløya 37, 41 og 43 - revidert tilleggsdokumentasjon til søknad om dispensasjon for plassering av renovasjonsanlegg
08.10.2025 Landfalløya 37, 41 og 43 - tilleggsdokumentasjon til søknad om dispensasjon for plassering av renovasjonsanlegg
19.09.2025 Landfalløya 37, 41 og 43, kopi av brev fra Buskerud fylkeskommune - Svar på spørsmål om godkjenning av byggeplaner for boligprosjekt
02.07.2025 Landfalløya 37, 41 og 43, tilleggskommentarer til tilbakemelding
02.07.2025 Landfalløya 37, 41 og 43- Godkjenning av byggeplaner
05.06.2025 Landfalløya 37, 41 og 43, kommentarer til foreløpig tilbakemelding på søknad
27.05.2025 Landfalløya 37, 41 og 43, kopi av brev fra Buskerud fylkeskommune
20.05.2025 Landfalløya 37, 41 og 43, kopi av brev fra Buskerud fylkeskommune
07.05.2025 Landfalløya 37, 41 og 43, foreløpig tilbakemelding på søknad om rammetillatelse - ytterligere kommentarer
25.03.2025 Landfalløya 37, 41 og 43 - oppsummering av foreløpig saksgang og avholdt møte i sakens anledning
24.02.2025 Landfalløya 37, 41 og 43, tilsvar til foreløpig tilbakemelding på søknad om rammetillatelse
10.02.2025 Landfalløya 37, 41 og 43, foreløpig tilbakemelding på søknad om rammetillatelse
15.01.2025 Landfalløya 37 og 41 og 43, svar på spørsmål om vegeiers godkjenning av tekniske planer
12.12.2024 Landfalløya 37, 41 og 43, tilleggsopplysninger til søknaden
28.11.2024 Landfalløya 37, 41 og 43, melding om mottatt søknad
26.11.2024 Landfalløya 37,41 & 43, Søknad om rammetillatelse