NewConstruction UnderBehandling Leilighetsbygg

Oppføring av leilighetsbygg og næringslokale på Møvika 29, Øygarden

📍 Møvika 25 , 5357 FJELL

Nøkkelinfo

Sakstype
Nybygg
Bygningstype
Leilighetsbygg
Bruksareal
6,143 m²
Boenheter
36
Kommune
Øygarden
Fylke
Vestland
Gnr / Bnr
11 / 116
Saksnummer
21/2214
Fase
Under behandling

Om byggesaken

Prosjektet omfatter oppføring av to boligblokker, hus A og B, med til sammen 36 leiligheter fordelt på fire og tre etasjer, samt et sammenhengende plan 1 med parkering, boder og næringslokale. Byggene har gesimshøyder opp til 18,5 meter og benytter materialer som trekledning og Equitone fasadeplater i røde og beige farger. Det er etablert universelt utformede uteområder med lekeplasser, terrasser, ramper og trapper, samt grønt tak og parkeringsanlegg med 69 plasser inkludert HC-plasser. Prosjektet inkluderer også riving av eksisterende bygg og opparbeidelse av tilhørende infrastruktur som vei, vann- og avløpsanlegg, overvannshåndtering og renovasjon. Det er gitt rammetillatelse, igangsettingstillatelser for deler av tiltaket, og midlertidige brukstillatelser. Prosjektet er under sluttføring med søknad om ferdigattest planlagt.

Produkter og materialer

Gulv Gulvbeleggsarbeid

Gulvbelegg utført av Byggtapetsermester Stigen & Kronheim AS

Gulvbelegg i bolig og næringsdel

Tak Flatt tak med grønt tak og takterrasser

🧱 Sedum, urte- og staudevegetasjon

Grønt tak på boligblokker, takterrasser med plantekasser

Tak med grønt dekke og takterrasser

Grunnarbeid Veg- og grunnarbeider, fjellsikring

Grunnarbeider og fjellsikring utført av Sartor og Drange AS

Grunnarbeid og sikring av terreng

Riving Riving av industribygg

Antall: 1

Riving utført av Sartor og Drange AS

Riving av eksisterende bygg

Tømrer Montering av trekonstruksjoner og vinduer/dører

🧱 Tre, vinduer, dører

Tømrerarbeid utført av Lars Jønsson AS og Bergen Prosjekt og Sotra Entreprenør AS

Tømrerarbeid for byggkonstruksjoner og montering av vinduer og dører

Maling Innvendig og utvendig malerarbeid

Malerarbeid utført av Malermester Christensen og Heimdal AS

Malerarbeid for bolig og næringsdel

Elektro Brannalarmanlegg og nødlys

Brannalarm og nødlys installert av Monsen Elektro AS

Elektroinstallasjoner for brannsikkerhet

Fasade Trekledning og Equitone fasadeplater

🧱 Trelast, Equitone Tectiva TE 40 rød, Equitone Linea LT 20

Trekledning malm 100, Equitone Tectiva TE 40 rød, Equitone Linea LT 20

Fasadematerialer for boligblokker

Betong Plasstøpte betongkonstruksjoner

🧱 Betong

Betongkonstruksjoner for fundamenter, bærende elementer og parkeringsplan

Betongarbeider for bygg og infrastruktur

Heis Løfteinnretninger, heis

Antall: 2

Heisinstallasjoner utført av Alt Heis AS

Heis for boligblokker

Vinduer Store vertikale vinduer

🧱 3-lags energiglass

Antall: 24

Store vertikale vinduer mot vest i boligblokkene

Vinduer for boligblokker med god lysinnslipp

Dører Ytterdører bolig og næring

🧱 Glass og tre

Antall: 10

Ytterdører i boligblokker og næringslokale

Dører for adkomst til bolig og næringslokale

Rekkverk Spilerekkverk og glassrekkverk

🧱 Tre, glass, stål

Spilerekkverk på takterrasser og svalganger, glassrekkverk på private balkonger

Rekkverk for balkonger, terrasser og trapper

Ventilasjon Ventilasjon- og klimainstallasjoner

Ventilasjon og klimaanlegg utført av Venty AS

Ventilasjons- og klimaanlegg

VVS Sanitærinstallasjoner, varme- og kuldeinstallasjoner, sprinkleranlegg

Sanitær, varme/kulde, sprinkler installasjoner utført av Straume Rør AS og Venty AS

VVS-installasjoner for bolig og næring

Trapper Utendørs trapper i betong og stål

🧱 Betong, stål

Antall: 5

Trapper til uteområder, terrasse og tilkomst

Trapper for adkomst og uteområder

Terrasse Terrassedekke og uteområder

🧱 Belegningsstein, treterrassebord

Terrasse med belegningsstein og treterrassebord, universelt utformet uteområde

Uteområder og terrasser for bolig

Grunnarbeid Fylling i sjø for snuhammer

Fylling i sjø for etablering av snuhammer (f_SKV6), krever eget løyve etter hamne- og farvasslova

Grunnarbeid i sjø for veiutvidelse

Vinduer Fasadevindu næringslokale

🧱 3-lags glass

Antall: 10

Vinduer i næringslokale, flatt tak

Vinduer for næringslokale

Utendørs Lekeutstyr og beplantning

Lekeapparater, beplantning med busker, trær og stauder, grønn grøft for overvann

Utendørs leke- og oppholdsarealer

Mur Membran våtrom og murerarbeid

🧱 Membran, murstein

Membran og murarbeid i våtrom

Våtromsarbeider

Plantegning

Næringsareal 19.8 m²

Etasje 1 19.8 m²

Rom Areal Vinduer Dører
Kontor 101 19.8 m² 1 1

Næringsdel 56.8 m²

Etasje 1 56.8 m²

Rom Areal Vinduer Dører
Arbeidsplass 101 22.0 m² 3 1
Spisestue/Møterom 102 13.5 m² 0 1
Toalett 103 5.8 m² 0 1
Garderobe 104 4.9 m² 0 1
Gang 105 9.2 m² 0 0

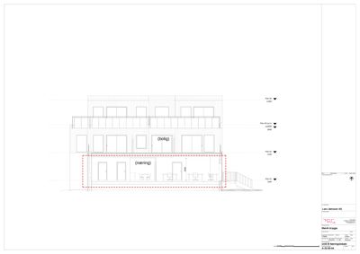
Fasader

Bygg B

Vest
Materiale
Platemontasje
Høyde
11.2 m
Vinduer
0
Dører
0
Synlige etasjer
1

Hovedbygg

Øst
Materiale
Betong
Høyde
18.5 m
Vinduer
24
Dører
10
Balkonger
10
Synlige etasjer
4

Hus B

Nord
Materiale
Tre
Taktype
Flatt tak
Høyde
11.9 m
Mønehøyde
18.5 m
Vinduer
6
Dører
2
Balkonger
1
Synlige etasjer
3

Næringslokale

Ukjent
Materiale
Betong
Taktype
Flatt tak
Høyde
11.9 m
Vinduer
10
Dører
3
Synlige etasjer
4

Hendelser

17.11.2025 GBNR 11/116 - Spørsmål om rullestolheis
25.09.2025 GBNR 11/116 Supplering til endringssøknad
23.09.2025 GBNR 11/116 - Svar på spørsmål
18.09.2025 GBNR 11/116 - Førespurnad om ansvarsrett
15.09.2025 GBNR 11/116 - Vedtak om endring av løyve i eitt
15.09.2025 GBNR 11/116 - Tilleggsopplysningar
29.08.2025 GBNR 11/116 - Søknad om endring av gitt løyve
07.07.2025 GBNR 11/116 - Oppsummering
20.06.2025 GBNR 11/116 - Tilbakemelding om manglar
18.06.2025 GBNR 11/116 - Søknad om ferdigattest
10.12.2024 GBNR 11/116 - Mellombels bruksløyve - tiltak med ansvarsrett
05.12.2024 GBNR 11/116 - Søknad om mellombels bruksløyve
29.11.2024 GBNR 11/116 - Supplering av søknad
29.11.2024 GBNR 11/116 - Supplering av søknad
07.11.2024 GBNR 11/116 - Mellombels bruksløyve - tiltak med ansvarsrett
07.11.2024 GBNR 11/116 - Igangsetjingsløyve innreiing næringsdel
07.11.2024 GBNR 11/116 -Stadfesting på ferdigstilt arbeid
04.11.2024 GBNR 11/116 - Søknad om igangsettingløyve
01.11.2024 GBNR 11/116 - Tilbakemelding om manglar
01.11.2024 GBNR 11/116 - Tilbakemelding på manglar i saka
29.10.2024 GBNR 11/116 - Spørsmål om innsending av dokument
24.10.2024 GBNR 11/116 - Søknad om mellombels bruksløyve
12.09.2024 GBNR 11/116 - Svar på naboklage
04.09.2024 GBNR 11/116 - Klage på fasade
26.08.2024 GBNR 11/116 - Svar på spørsmål
22.08.2024 GBNR 11/116 - Spørsmål om endring
22.08.2024 GBNR 11/116 - Spørsmål om endring
27.06.2023 GBNR 11/116 - Løyve til endring av delegert vedtak 988/21 datert 10.09.2021
26.06.2023 GBNR 11/116 - Tilleggsdokumentasjon
22.06.2023 GBNR 11/116 - Tilbakemelding
13.06.2023 GBNR 11/116 - Informasjon til saka
06.06.2023 GBNR 11/116 - Søknad om endring av løyve
12.05.2023 GBNR 11/116 - Informasjon til matrikkelføring
03.05.2023 GBNR 11/116 - Svar på spørsmål i saka
28.04.2023 GBNR 11/116 - Spørsmål i saka
19.04.2023 GBNR 11/116 - Spørsmål ang feilmelding fra Norkart ifm. nabovarsel
17.04.2023 GBNR 11/116 - Svar på spørsmål ang feilmelding fra Norkart ifm. nabovarsel
28.03.2023 GBNR 11/116 - Svar på spørsmål i saka
17.03.2023 GBNR 11/116 - Spørsmål i saka
23.02.2023 GBNR 11/116 - Igangsetjingsløyve for delar av tiltaket
22.02.2023 GBNR 11/116 - Tilbakemelding på svar om manglar på IG søknad
21.02.2023 GBNR 11/116 - Svar på status
20.02.2023 GBNR 11/116 - Spørsmål om status
17.02.2023 GBNR 11/116 - Tilbakemelding om manglar
06.02.2023 GBNR 11/116 - Tilleggsopplysningar