NewConstruction UnderBehandling Leilighetsbygg

Nye boliger med personalbase i Bekkefaret, Kristiansund

📍 Naustveien 26 , 6518 KRISTIANSUND N

Nøkkelinfo

Sakstype
Nybygg
Bygningstype
Leilighetsbygg
Bruksareal
763 m²
Boenheter
2
Kommune
Kristiansund
Fylke
Møre og Romsdal
Gnr / Bnr
31 / 365
Saksnummer
24/05218
Fase
Under behandling

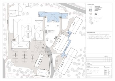
Om byggesaken

Nybygg bestående av omsorgsboliger for voksne utviklingshemmede med tilhørende personalbase, plassert på Bekkefaret i Kristiansund kommune. Bygget er planlagt i ett byggetrinn med to boliger og personalbase, med mulighet for senere utvidelse med ytterligere boliger. Bygget har en etasje, med trekledning og skråtak med sedumtak for overvannshåndtering, mens personalbasen har flatt tak. Boligene har egne private uteplasser skjermet med vegetasjon, og det er lagt vekt på universell utforming og tilpasning til eksisterende bebyggelse og grøntområder. Overvann håndteres lokalt med åpne fordrøyningsløsninger og lukket magasin, og det er etablert parkeringsplasser for sykkel, mens bilparkering benytter eksisterende anlegg. Bygget har et samlet areal på ca. 323 m² for omsorgsboligen og 440 m² for personalbase og tilknyttede funksjoner, med godkjent utnyttelsesgrad innenfor reguleringsplanens rammer.

Produkter og materialer

Annet Avfallshåndtering

Felles renovasjonspunkt med bunntømte containere og dunker på hjul

Avfallshåndtering for nye og eksisterende bygg

Isolasjon Bygningsisolasjon

Isolasjon iht. TEK17 for energikrav

Isolasjon i vegger, tak og gulv for energibesparelse

Grunnarbeid Overvannshåndtering

Åpne fordrøyningsarealer, lukket fordrøyningsmagasin, sandfang og drensledninger

Lokal overvannshåndtering i tråd med kommunens krav

Garasjeport Garasje uterullestol

Antall: 1

Garasje for uterullestol på 7.9 m²

Garasje for oppbevaring og lading av uterullestoler

Ventilasjon Ventilasjonsanlegg

Ventilasjonsanlegg prosjektert iht. krav, med samtykke fra Arbeidstilsynet

Ventilasjon for inneklima og luftkvalitet

Grunnarbeid Sprengning og fundamentering

Sprengning for fundamenter på berggrunn nord på tomta

Grunnarbeid med sprengning og fundamentering på berggrunn

Terrasse Private terrasser og uteplasser

Antall: 4

Terrasser på ca. 12-16 m², skjermet med vegetasjon og takoverbygg

Private uteplasser tilknyttet hver bolig

Vinduer Standard vinduer i tre

🧱 Tre med isolerglass

Antall: 38

Vinduer i omsorgsboliger og personalbase, inkludert lyd- og brannkrav

Vinduer for dagslys, utsyn og ventilasjon i boligene

Fasade Trekledning

🧱 Malt eller beiset tre

Trekledning som øvrige bygg på tomta, farge ikke bestemt

Fasade med malt eller beiset trekledning for omsorgsboliger og personalbase

Parkering Bilparkering

Antall: 47

Eksisterende 47 bilparkeringsplasser, inkludert 3 HC-plasser, benyttes

Bilparkering for området, ingen nye plasser etablert

Gulv Innvendige gulv

Gulv i boenheter og personalbase, tilpasset funksjonskrav

Innvendige gulvflater

Parkering Sykkelparkering

Antall: 8

8 nye sykkelparkeringsplasser tilknyttet de nye boenhetene

Sykkelparkering for beboere og ansatte

Rekkverk Skjermvegger og hekk

🧱 Vegetasjon og klatreplanter

Skjerming av uteplasser med hekk og klatreplanter

Rekkverk og skjerming for privatliv og vindbeskyttelse

Dører Ytterdører og innerdører

🧱 Tre og glass, brannklassifiserte dører

Antall: 30

Dører med brann- og lydkrav, inkludert HCWC og personalbase

Dører for adkomst, rom og brannskiller

Tak Flatt tak

🧱 Stålplate

Personalbase med flatt tak tekket med plane stålplater med profiltopper, avstand 450-600 mm

Flatt tak på personalbase med stålplatetekking

Betong Fundament og støttemurer

Fundamentering og støttemurer iht. prosjektering

Betongarbeider for fundament og støttemurer

VVS Vann, avløp og sanitærinstallasjoner

Tilknytning til offentlig vann- og avløpsnett, sanitærinstallasjoner i bygg

VVS-installasjoner for vann, avløp og sanitær

Tak Skråtak med sedum

🧱 Sedumtak på skråtak

Sedumtak på ca. 42 % av takflatene i byggetrinn 1, økende til 62 % ved full utbygging

Grønne tak med sedum for overvannshåndtering og estetikk

Elektro El-installasjoner og belysning

El-installasjoner i bygg, inkludert belysning og nødutganger

Elektroarbeider for bygget

Bad Sanitærrom og bad

Bad og HCWC med dusj, tilpasset universell utforming

Sanitærrom for beboere og ansatte

Plantegning

Omsorgsbolig 322.6 m²

Etasje 1 322.6 m²

Rom Areal Vinduer Dører
Garasje Garasje 12.8 m² 0 1
WC D WC D 3.5 m² 0 1
HCWC, dusj HCWC, dusj 5.8 m² 0 1
Gang, felles Gard., felles 11.0 m² 0 2
WC H WC H 3.4 m² 0 1
Rengjørings/vaskerom Ren/vask 5.6 m² 0 1
Teknisk rom Tekn. 7.9 m² 0 1
Kontor / hvile Kontor / hvile 10.1 m² 1 1
Vaktrom Vaktrom 4 pers 24.0 m² 1 1
Gang Gang 25.5 m² 0 4
Kjøkken Kjøkken 9.6 m² 1 1
Gang Gang 6.9 m² 0 1
Bod Bod 5.3 m² 0 1
Kjøkken Kjøkken 9.6 m² 1 1
Gang Gang 6.9 m² 0 1
Bod Bod 5.3 m² 0 1
Bad Bad 11.2 m² 0 1
Soverom Sov 15.1 m² 1 1
Stue/aktivitetsrom Stue/aktivitetsrom 32.0 m² 1 1
Bad Bad 11.2 m² 0 1
Soverom Sov 15.1 m² 1 1
Stue/aktivitetsrom Stue/aktivitetsrom 32.0 m² 1 1

Enebolig 439.6 m²

Etasje 1 439.6 m²

Rom Areal Vinduer Dører
Stue/aktivitetsrom 101 32.0 m² 1 1
Kjøkken 102 9.3 m² 0 1
Sov 103 15.1 m² 1 1
Bad 104 11.2 m² 0 1
Gang 105 6.4 m² 0 2
Bod 106 5.0 m² 0 1
Utebod 107 5.0 m² 0 1
Terrasse 108 12.7 m² 0 0
Gang 109 35.9 m² 0 3
Tek. 110 14.5 m² 0 0
Renholdsrom 111 6.1 m² 0 1
Bod 112 4.7 m² 0 1
Bad 113 11.2 m² 0 1
Sov 114 15.1 m² 1 1
Gang 115 6.7 m² 0 2
Kjøkken 116 9.3 m² 0 1
Stue/aktivitetsrom 117 32.0 m² 1 1
Terrasse 118 12.7 m² 0 0
Kontor 119 11.4 m² 0 1
Vaktrom 4 pers 120 18.7 m² 0 1
Personalrom 6 pers 121 29.4 m² 0 1
Gang 122 3.1 m² 0 1
Sov pers. 123 8.7 m² 0 1
HCWC 124 4.9 m² 0 1
WC H 125 1.7 m² 0 1
Dusj H 126 1.5 m² 0 1
WC D 127 1.8 m² 0 1
Gard H 128 6.2 m² 0 1
Gard D 129 6.4 m² 0 1
Garasje uterullestol 130 7.9 m² 0 1

Fasader

Omsorgsbolig

Sørvest
Materiale
Tre
Taktype
Saltak
Vinduer
4
Dører
2
Synlige etasjer
1
Nordøst
Materiale
Tre
Taktype
Saltak
Vinduer
4
Dører
0
Synlige etasjer
1
Nordvest
Materiale
Tre
Taktype
Saltak
Vinduer
2
Dører
1
Synlige etasjer
1
Sør
Materiale
Tre
Taktype
Saltak
Vinduer
2
Dører
1
Synlige etasjer
1
SV
Materiale
Tre
Taktype
Saltak
Vinduer
5
Dører
1
Synlige etasjer
1
Materiale
Tre
Taktype
Saltak
Vinduer
3
Dører
0
Synlige etasjer
1
NV
Materiale
Tre
Taktype
Saltak
Vinduer
2
Dører
1
Synlige etasjer
1
Materiale
Tre
Taktype
Saltak
Vinduer
3
Dører
1
Synlige etasjer
1
Ukjent
Materiale
Tre
Taktype
Saltak
Takmat.
Stål
Vinduer
5
Dører
2
Synlige etasjer
1

Hendelser

22.04.2026 24/05218-8 Bekkefaret 18 Søknad om endring av gitt tillatelse eller godkjenning 31/365
16.10.2025 24/05218-7 Gnr 31 Bnr 365 Bekkefaret - Godkjent søknad om endring av gitt rammetillatelse til oppføring av nye boliger
19.09.2025 24/05218-6 Bekkefaret Søknad om endring av gitt tillatelse eller godkjenning 31/365
15.01.2025 24/05218-5 Gnr 31 Bnr 365 Bekkefaret - Vi innvilger søknaden om samtykke etter automatisk saksbehandling
24.10.2024 24/05218-4 Gnr 31 Bnr 365 Bekkefaret - Rammetillatelse til oppføring av boliger ved bekkefaret
23.10.2024 24/05218-3 Gnr 31 Bnr 365 Bekkefaret - Behov for supplerende dokumentasjon til søknad om rammetillatelse for oppføring av nye boliger ved bekkefaret
04.10.2024 24/05218-2 Gnr. 31 Bnr 365 - Bekkefaret - Ber om uttalelse til søknad om oppføring av nye boliger
27.09.2024 24/05218-1 Bekkefaret Søknad om rammetillatelse 31/365