NewConstruction UnderBehandling Leilighetsbygg

Ny leilighetsblokk med 14 enheter og riving i Undelstadveien 72, Asker

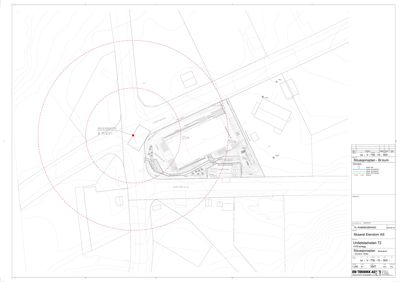
📍 Nedre Båstad vei 59 , 1387 ASKER

Nøkkelinfo

Sakstype
Nybygg
Bygningstype
Leilighetsbygg
Bruksareal
2,218 m²
Boenheter
14
Kommune
Asker
Fylke
Akershus
Gnr / Bnr
49 / 62
Saksnummer
23/3696
Fase
Under behandling

Om byggesaken

Ny blokkbebyggelse med 14 leiligheter fordelt på tre etasjer oppføres i Undelstadveien 72 i Asker. Bygget har flatt tak med gesimshøyde på 9 meter og inkluderer parkeringskjeller med 18 bilplasser, boder, sykkelparkering og felles treningsrom. Leilighetene varierer i størrelse fra 61 til 121 m², med private balkonger på minimum 12 m². Utomhusarealene omfatter felles lekeplass, grøntarealer og renovasjonsanlegg med nedgravde avfallscontainere. Prosjektet inkluderer også støttemur, terrengendringer, ny felles avkjørsel og tilknytning til offentlig vann- og avløpsnett. Bygget er universelt utformet med heis og tilfredsstiller krav til brannsikkerhet, ventilasjon, energiberegning og lydforhold. Renovasjonsløsningen er tilpasset gjeldende renovasjonsnorm med plassering for kranbil på vei. Trafikksikkerhet og frisikt er ivaretatt i henhold til kommunale krav. Prosjektet har mottatt rammetillatelse, igangsettingstillatelser og søker nå midlertidig brukstillatelse for de fleste leilighetene og fellesarealene.

Produkter og materialer

VVS Sanitærinstallasjoner

Sanitærinstallasjoner for 14 leiligheter, inkludert vannforsyning og avløp

VVS-installasjoner for boligbygg

Solceller Solcelleanlegg

Ingen eksplisitt opplysning om solceller i dokumentene

Ingen solcelleanlegg oppgitt

Terrasse Private balkonger og felles utearealer

Antall: 14

Private balkonger på minimum 12 m² per leilighet, felles lekeplass og uteoppholdsareal

Terrasser og utearealer

Betong Bærende metall- og betongkonstruksjoner

Bærende metall- og betongkonstruksjoner i byggets hovedbæresystem

Bærekonstruksjoner

Dører Balkongdører og ytterdører

🧱 Tre

Antall: 27

Dører i tre, inkludert balkongdører og inngangsdører, fordelt på fasader

Dører til leiligheter og balkonger

Tømrer Tømrerarbeid og trekonstruksjoner

🧱 Tre

Tømrerarbeid og montering av trekonstruksjoner i yttervegger og innvendig

Tømrerarbeid

Kjøkken Kjøkkeninnredning

Antall: 14

Kjøkkeninnredning i alle 14 leiligheter, inkludert tilkobling av kjøkkenkraner

Kjøkkeninnredning og installasjon

VVS Sprinkling

Sprinkleranlegg i bygget, inkludert sentral og sprinkling i leiligheter

Brannsikkerhetsinstallasjon

Garasjeport Garasjeport til parkeringskjeller

Antall: 1

Garasjeport til parkeringskjeller under bygget

Port til parkeringskjeller

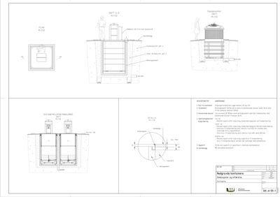
Grunnarbeid Fundamentering og grunnarbeider

🧱 Betong

Fundamentering med plasstøpte betongkonstruksjoner inkl. radontiltak

Grunnarbeid og fundamentering

Varmepumpe Varmepumpeanlegg

Ingen eksplisitt opplysning om varmepumpe i dokumentene

Ingen varmepumpe oppgitt

Tak Flatt tak

🧱 Membran og isolasjon

Antall: 1

Flatt tak med membran og isolasjon, gesimshøyde 9 m

Tak med membran og isolasjon

Trapper Innvendig trapp

🧱 Tre/Betong

Antall: 1

Innvendig trapp i bygget, 11.3 m²

Trapp mellom etasjer i leilighetsbygg

Ventilasjon Ventilasjon og klimainstallasjoner

Ventilasjon og klimainstallasjoner for leilighetsbygg

Ventilasjonssystem

Elektro Brannalarmanlegg og nødlys

Brannalarmanlegg, nødlys og ledesystem installert i bygget

Brannsikkerhet elektroinstallasjoner

Maling Innvendig og utvendig maling

Maling av fasader og innvendige flater

Maling og overflatebehandling

Fasade Trepanel

🧱 Tre

Trepanel på fasader nord, vest, sør og øst

Fasadebekledning i tre

Gulv Flytesparkling og trinnlyd

Flytesparkling og trinnlyd i våtrom og øvrige gulvflater

Gulvbehandling og lydisolasjon

Vinduer Fasadevindu

🧱 Tre

Antall: 42

Vinduer i tre, fordelt på fasader nord (14), vest (10), sør (12), øst (6)

Fasadevinduer i tre for leilighetsbygg

Bad Bad og våtrom

Antall: 14

Bad og våtrom med membran, flislegging og sanitærutstyr i alle leiligheter

Bad og våtromsinnredning

Rekkverk Balkongrekkverk og trapper

🧱 Corten stål

Flatt stålrekkverk montert på støttemur og balkonger

Rekkverk for balkonger og uteområder

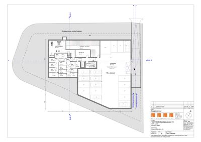
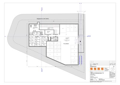
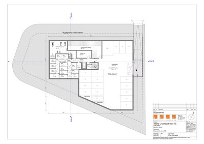
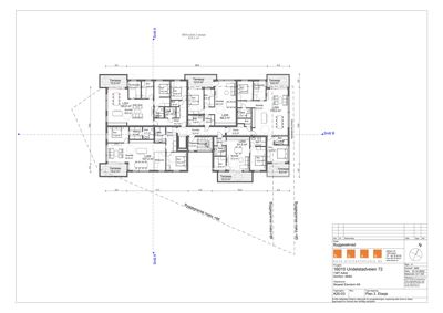
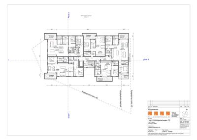
Plantegning

Enebolig 1,451.1 m²

Etasje 1 507.5 m²

Rom Areal Vinduer Dører
Stue/kjøkken BRA L101 104.4 m² 2 3
Soverom Sov 3 16.9 m² 0 1
Bad Bad 2 4.7 m² 0 1
Soverom Sov 2 11.2 m² 0 1
Bad Bad 1 4.1 m² 0 1
Soverom Sov 1 10.1 m² 0 1
Entré Entre 12.7 m² 0 1
Stue/kjøkken BRA L105 62.0 m² 3 4
Soverom Sov 1 11.1 m² 0 1
Bad Bad 2 5.9 m² 0 1
Soverom Sov 1 11.1 m² 0 1
Bad Bad 1 4.7 m² 0 1
Entré Entre 4.1 m² 0 1
Stue/kjøkken BRA L104 54.8 m² 2 3
Soverom Sov 2 9.0 m² 0 1
Bad Bad 2 3.8 m² 0 1
Soverom Sov 1 13.9 m² 0 1
Stue/kjøkken BRA L102 53.5 m² 2 3
Soverom Sov 1 11.7 m² 0 1
Vaskerom Vaskerom 5.3 m² 0 1
Soverom Bed 1 4.2 m² 0 1
Bad Bad 2 3.6 m² 0 1
Soverom Bed 2 7.7 m² 0 1
Soverom Sov 3 13.7 m² 0 1
Stue/kjøkken BRA L103 51.9 m² 2 3
Soverom Sov 2 6.1 m² 0 1
Entré Entre 3.6 m² 0 1
Soverom Sov 1 5.7 m² 0 1
Bad Bad 2 4.0 m² 0 1
Entré Entre 8.6 m² 0 1
Stue/kj L101 49.4 m² 2 1
Stue/kj L102 51.2 m² 2 1
Stue/kj L103 27.2 m² 1 1
Stue/kj L104 57.4 m² 2 1
Stue/kj L105 36.9 m² 1 1
Sov Sov 11.1 m² 1 1
Sov/kontor Sov/kontor 6.6 m² 1 1
Bad Bad 4.1 m² 0 1
Walk-in Walk-in 5.5 m² 0 1
Gang Gang 12.5 m² 0 1
Korridor Korridor 14.4 m² 0 1
Terrasse Terrasse 15.0 m² 0 0
Trapp Trapp 11.3 m² 0 1

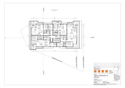
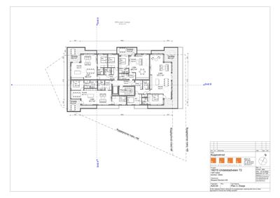
Etasje 2 524.2 m²

Rom Areal Vinduer Dører
Stue/kjøkken L201 120.0 m² 3 2
Stue/kjøkken L202 107.2 m² 3 2
Stue/kjøkken L203 61.5 m² 3 2
Stue/kjøkken L204 115.0 m² 3 2
Stue/kjøkken L205 68.2 m² 3 2
Soverom Sov1 14.5 m² 1 1
Soverom Sov2 10.6 m² 1 1
Soverom Sov3 13.7 m² 1 1
Soverom Sov4 10.4 m² 1 1
Soverom Sov5 13.2 m² 1 1
Soverom Sov6 14.9 m² 1 1
Soverom Sov7 12.9 m² 1 1
Bad Bad1 4.7 m² 0 1
Bad Bad2 5.8 m² 0 1
Bad Bad3 4.9 m² 0 1
Bad Bad4 4.7 m² 0 1
Bad Bad5 3.8 m² 0 1
Bad Bad6 4.0 m² 0 1
Gang Gang1 8.9 m² 0 2
Gang Gang2 13.7 m² 0 2
Gang Gang3 8.2 m² 0 2
Gang Gang4 3.6 m² 0 1
Korridor Korridor 14.4 m² 0 2
Trapperom Trapperom 11.3 m² 0 1
Bod Bod1 1.8 m² 0 1
Soverom/kontor Sovkontor1 7.5 m² 1 1
Soverom/kontor Sovkontor2 8.2 m² 1 1
Walk-in skap Walk-in1 5.5 m² 0 1
Terrasse Terrasse1 12.0 m² 0 1
Terrasse Terrasse2 12.0 m² 0 1
Terrasse Terrasse3 9.5 m² 0 1
Terrasse Terrasse4 12.2 m² 0 1
Terrasse Terrasse5 12.0 m² 0 1
Terrasse Terrasse6 9.6 m² 0 1
Sov Sov 14.2 m² 1 1
Bad Bad 4.1 m² 0 1
Gang Gang 13.7 m² 0 2
Terrasse Terrasse 12.0 m² 0 1

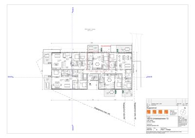
Etasje 3 419.4 m²

Rom Areal Vinduer Dører
Stue/kj L301 96.3 m² 2 1
Stue/kj L302 91.7 m² 2 1
Stue/kj L303 121.1 m² 2 1
Stue/kj L304 64.2 m² 2 1
Terrasse Terrasse 26.5 m² 0 1
Terrasse Terrasse 23.2 m² 0 1
Terrasse Terrasse 56.3 m² 0 1
Terrasse Terrasse 13.2 m² 0 1
Sov Sov 11.5 m² 1 1
Sov Sov 10.2 m² 1 1
Sov Sov 11.5 m² 1 1
Sov Sov 10.7 m² 1 1
Sov Sov 10.2 m² 1 1
Sov Sov 11.7 m² 1 1
Sov Sov 13.9 m² 1 1
Bad Bad 4.7 m² 0 1
Bad Bad 5.8 m² 0 1
Bad Bad 4.9 m² 0 1
Bad Bad 5.4 m² 0 1
Walk-in Walk-in 3.9 m² 0 1
Gang Gang 5.6 m² 0 1
Gang Gang 3.8 m² 0 1
Gang Gang 12.0 m² 0 1
Korridor Korridor 10.6 m² 0 2
Trapperom Trapperom 11.3 m² 0 1
Bod Bod 1.5 m² 0 1

Garasje 768.0 m²

Etasje 0 768.0 m²

Rom Areal Vinduer Dører
Hovedkorridor HC 0.0 m² 0 0
Felles treningsrom 101 48.1 m² 0 0
Sykkelbod 102 64.9 m² 0 0
Teknisk rom 103 18.6 m² 0 0
WC 104 2.0 m² 0 0
Gang 105 26.0 m² 0 0
Korridor 106 15.0 m² 0 0
Bod 107 5.0 m² 0 0
Bod 108 5.0 m² 0 0
Bod 109 5.0 m² 0 0
Bod 110 5.0 m² 0 0
Bod 111 5.0 m² 0 0
Bod 112 5.0 m² 0 0
Bod 113 7.1 m² 0 0
Bod 114 5.0 m² 0 0
Bod 115 5.2 m² 0 0
Bod 116 5.4 m² 0 0
Bod 117 5.4 m² 0 0
Bod 118 5.5 m² 0 0
Trapperom 119 11.4 m² 0 0

Fasader

Enebolig

Nord
Materiale
Tre
Taktype
Flatt tak
Høyde
9.0 m
Vinduer
14
Dører
3
Balkonger
5
Synlige etasjer
3
Vest
Materiale
Tre
Taktype
Flatt tak
Høyde
9.0 m
Vinduer
10
Dører
3
Balkonger
4
Synlige etasjer
3
Sør
Materiale
Tre
Taktype
Flatt tak
Høyde
9.0 m
Vinduer
12
Dører
3
Balkonger
4
Synlige etasjer
3
Øst
Materiale
Tre
Taktype
Flatt tak
Høyde
9.0 m
Vinduer
6
Dører
1
Synlige etasjer
3
Ukjent
Vinduer
0
Dører
0
Synlige etasjer
0

Standplass

Nord
Vinduer
0
Dører
0
Synlige etasjer
0

Hendelser

15.04.2026 49/62 Nedre Båstad vei 59 - Supplering av søknad
07.04.2026 49/62 Nedre Båstad vei 59 - Søknad om midlertidig brukstillatelse
30.03.2026 49/62 Nedre Båstad vei 59 - Gjennomføringsplan og ansvarsretter
19.11.2025 49/62 Nedre Båstad vei 59 - Søknad om endring av gitt tillatelse - Avsluttes
17.11.2025 49/62 Nedre Båstad vei 59 (tidl. Undelstadveien 72) - Reguleringsendring ifm ulike vindretninger
17.10.2025 49/62 Nedre Båstad vei 59 - frist for innsendelse av dokumentasjon er utgått
07.08.2025 49/62 Nedre Båstads vei 59 - Varsel om avslag - Ufullstendig søknad - Endring av planløsning
09.05.2025 49/62 Nedre Båstad vei 59 - Søknad om endring av gitt tillatelse
23.01.2025 49/62 Undelstadveien 72 - Igangsettingstillatelse nr 2 - Nybygg med 14 leiligheter og riving av eksisterende bygg
20.01.2025 49/62 Nedre Båstads vei 59 (tidl. Undelstadveien 72) - Oppfølging av renovasjonsløsning
20.01.2025 49/62 Nedre Båstads vei 59 (tidl. Undelstadveien 72) - Godkjenner renovasjonsløsning
28.11.2024 49/62 Undelstadveien 72 - Renovasjon
01.10.2024 49/62 Undelstadveien 72 - Søknad om igangsettingstillatelse del 2
14.08.2024 49/62 Undelstadveien 72 - Vedrørende nye synspunkter fra Samferdsel om inngangssti
13.08.2024 49/62 Undelstadveien 72 - Svar på oppfølgingsspørsmål - Sti ut i kryss
19.07.2024 49/62 Undelstadveien 72 - Igangsettingstillatelse 1 - Nybygg med 14 leiligheter og riving av eksisterende bygg
15.07.2024 49/62 Undelstadveien 72 - Søknad om igangsettingstillatelse
06.05.2024 49/62 Undelstadveien 72 - Rammetillatelse - Nybygg med 14 leiligheter og riving av eksisterende bygg
25.04.2024 49/62 Undelstadveien 72 - Oppfølging av spørsmål fra PBA ifm byggesak
22.04.2024 49/62 Undelstadveien 72 - Avklaring renovasjon
19.04.2024 49/62 Undelstadveien 72 - Oppfølging av spørsmål fra PBA i forbindelse med byggesak
17.04.2024 49/62 Undelstadveien 72 - Oppfølging av spørsmål fra PBA
18.03.2024 49/62 Undelstadveien 72 - Svar på e-post av 110324
12.03.2024 49/62 Undelstadveien 72 - Ber om ytterligere informasjon 2
01.03.2024 49/62 Undelstadveien 72 - Ber om ytterligere informasjon
02.02.2024 49/62 Undelstadveien 72 - Svar på søknad om reguleringsendring
23.11.2023 49/62 Undelstadveien 72 - Supplering til søknad
16.11.2023 49/62 Undelstadveien 72 - Søknad om nybygg med 14 leiligheter og riving av eksisterende bygg