NewConstruction UnderBehandling Leilighetsbygg

Nytt leilighetsbygg med rekkehus i Olaf Scheas vei, Lillestrøm

📍 Olaf Scheas vei 10 , 1923 SØRUM

Nøkkelinfo

Sakstype
Nybygg
Bygningstype
Leilighetsbygg
Boenheter
10
Kommune
Lillestrøm
Fylke
Akershus
Gnr / Bnr
232 / 68
Saksnummer
22/22267
Fase
Under behandling

Om byggesaken

Prosjektet omfatter oppføring av flere leilighetsbygg og rekkehus i Olaf Scheas vei, Lillestrøm, fordelt på flere husnummer (bl.a. hus 42-47, 70-78). Byggene har 2-3 etasjer, med trekledning, flate og saltak, og inkluderer balkonger, piper for vedfyring og garasjeporter. Det er etablert uteoppholdsarealer, parkeringsplasser og adkomstveier. Byggene har innvendige sanitærinstallasjoner, ventilasjon, betongkonstruksjoner, tømrerarbeider og landskapsforming. Prosjektet er i sluttfasen med midlertidige brukstillatelser gitt for flere deler, og gjenstående arbeider som ferdigplenlegging, asfaltering og mindre kompletteringer skal fullføres innen august 2026.

Produkter og materialer

Grunnarbeid Utvendig VA innenfor tomtegrense

Utvendig vann- og avløpsanlegg innenfor tomtegrense utført av Arealtek AS

Vann- og avløpsinstallasjoner utvendig

Maling Innvendig og utvendig maling

Innvendig og utvendig maling av treflater og overflater

Maling av fasader og innvendige flater

Fasade Trekledning

🧱 Tre

Fasader i tre på alle bygg, inkludert balkonger

Trekledning for fasader på leilighetsbygg og rekkehus

Gulv Ferdig gulvbelegg

Innvendige gulv med ferdigbelegg, ikke detaljert spesifisert

Innvendige gulvflater

Balkong Balkong med rekkverk

🧱 Tre

Antall: 4

Balkonger med trerekkverk på hus 46, 47 og 76-78

Balkonger med trerekkverk

Pipe Skorstein for vedfyring

Antall: 5

Skorsteiner for vedfyring på flere bygg

Piper for vedfyring

Vinduer Fasadevindu

Antall: 33

Vinduer i tre, antall ca. 33 fordelt på hus 42-47 og 70-78

Fasadevinduer i tre for leilighetsbygg

Garasjeport Garasjeport

Antall: 2

Garasjeporter på hus 46 og 47

Garasjeporter for leilighetsbygg

VVS Innvendige sanitærinstallasjoner

Innvendige sanitærinstallasjoner fordelt på flere entreprenører (Sørumsand Rør AS, Borgen Rørleggerbedrift AS)

Sanitærinstallasjoner for leilighetene

Betong Plasstøpte betongkonstruksjoner

🧱 Betong

Plasstøpte betongkonstruksjoner for fundamentering og bærende konstruksjoner

Betongkonstruksjoner for byggene

Grunnarbeid Utskjøting og grunnarbeider

Utskjøting, grunnarbeider og landskapsforming utført av Nordby Maskin AS

Grunnarbeider og landskapsforming for tomteområdet

Dører Ytterdør

Antall: 14

Ytterdører i tre, inkludert balkongdører

Ytterdører og balkongdører i tre

Terrasse Uteoppholdsareal og ferdigplen

Uteoppholdsarealer med ferdigplen og asfaltering, opparbeidet i henhold til rekkefølgekrav

Uteområder med plen og asfalterte parkeringsplasser

Tømrer Montering av trekonstruksjoner

🧱 Tre

Tømrerarbeider og montering av trekonstruksjoner

Tømrerarbeider for byggkonstruksjon og innredning

Elektro El-installasjoner

El-installasjoner inngår i prosjektet, utført av ansvarlige foretak

Elektriske installasjoner i byggene

Ventilasjon Ventilasjonssystem

Ventilasjon installert i byggene, ansvarlig prosjekterende og utførende Bakke AS

Ventilasjonssystem for leilighetsbygg

Fasader

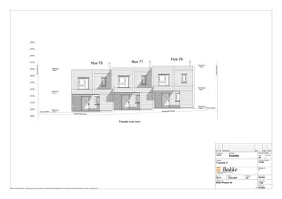
Hus 76

Sør
Materiale
Tre
Høyde
6.5 m
Mønehøyde
8.2 m
Vinduer
4
Dører
1
Synlige etasjer
2

Hus 77

Sør
Materiale
Tre
Høyde
6.5 m
Mønehøyde
8.2 m
Vinduer
4
Dører
1
Synlige etasjer
2

Hus 46

Sør
Materiale
Tre
Høyde
6.5 m
Mønehøyde
8.0 m
Vinduer
5
Dører
1
Balkonger
1
Synlige etasjer
3
Nord
Materiale
Tre
Høyde
6.5 m
Mønehøyde
8.0 m
Vinduer
3
Dører
1
Balkonger
1
Synlige etasjer
3

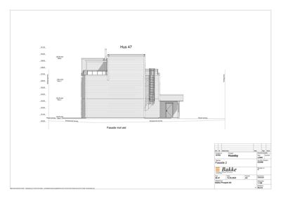
Hus 47

Sør
Materiale
Tre
Høyde
6.2 m
Mønehøyde
7.8 m
Vinduer
5
Dører
1
Balkonger
1
Synlige etasjer
3
Øst
Materiale
Tre
Taktype
Flatt tak
Høyde
6.5 m
Mønehøyde
8.2 m
Vinduer
3
Dører
1
Synlige etasjer
3
Nord
Materiale
Tre
Høyde
6.5 m
Mønehøyde
8.0 m
Vinduer
3
Dører
1
Balkonger
1
Synlige etasjer
3

Hendelser

09.04.2026 22/22267-51 232/68, Olaf Scheas vei 26 og 30, midlertidig brukstillatelse for boliger
07.04.2026 22/22267-48 232/68 Søknad om midlertidig brukstillatelse for Olaf Scheas vei 30 og 26 - Hus 42 og 44
13.03.2026 22/22267-47 232/68 Supplering av søknad
01.10.2025 22/22267-45 232/68, Olaf Scheas vei 16 og 18, midlertidig brukstillatelse for boliger
30.09.2025 22/22267-44 232/68, Olaf Scheas vei 16 og 18, bekreftet uteoppholdsareal
18.09.2025 22/22267-43 232/68 MB for deler av tiltaket - Hus 76 og 77 - Olaf Scheas vei 18 og 16
05.06.2025 22/22267-42 232/68 Oppdaterte fasadetegninger
14.05.2025 22/22267-35 232/68, Olaf Scheas vei, oppdaterte fasadetegninger
14.05.2025 22/22267-36 232/68, Olaf scheas vei, oppdatert situasjonplan
14.05.2025 22/22267-41 232/68, Olaf Scheas vei 14, 20 og 22, midlertidig brukstillatelse for boliger