NewConstruction UnderBehandling Leilighetsbygg

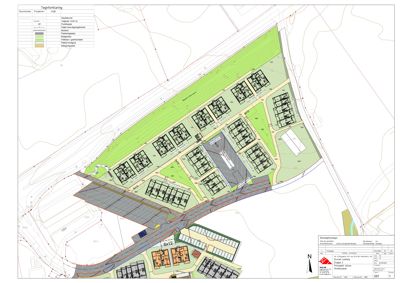
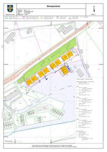
Nytt leilighetsbygg, rekkehus og parkeringsanlegg i Orstadvegen 203

📍 Orstadvegen 203 , 4353 KLEPP STASJON

Nøkkelinfo

Sakstype
Nybygg
Bygningstype
Leilighetsbygg
Bruksareal
4,129 m²
Boenheter
48
Kommune
Klepp
Fylke
Rogaland
Gnr / Bnr
9 / 22
Saksnummer
26/00951
Fase
Under behandling

Om byggesaken

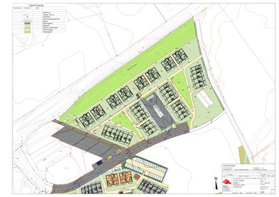
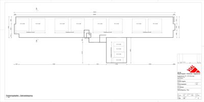
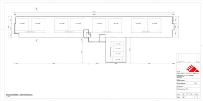
Prosjektet omfatter oppføring av fire leilighetsblokker (BBB1-4) med totalt 48 leiligheter, fire rekkehus (BKS4) og en underjordisk parkeringskjeller (f_BG) med ca. 112 parkeringsplasser og sportsboder. Leilighetsbyggene er treetasjes med saltak og tre som hovedmateriale, uten heis eller løfteinnretning, og rekkehusene er 2,5 etasjer med saltak og trekledning. Parkeringskjelleren er integrert under boligfeltene og tilpasset terrenget med adkomst via rampe. Byggene oppføres med brannseksjoner og brannceller i henhold til gjeldende forskrifter, med sprinkleranlegg i boligblokker og parkeringskjeller. Utomhusarealer og støyskjerming er planlagt i tråd med reguleringsplan og støyanalyser. Prosjektet inkluderer omfattende tekniske installasjoner for vann, avløp, ventilasjon og brannsikkerhet.

Produkter og materialer

Vinduer Luftevinduer med lydreduksjon

Schüco AWS 90 AC.SI med dokumentert lydisolasjon R’w = 31 dB i lufteposisjon

Lydreduserende luftevinduer for soveromsvinduer i leiligheter som krever avbøtende tiltak for støy

Garasje Parkeringskjeller

🧱 Betong og tekniske installasjoner

Antall: 112

Underjordisk parkeringskjeller med 112 parkeringsplasser og sportsboder

Felles parkeringsanlegg under boligfeltene

Vinduer Brannklassifiserte vinduer

Vinduer i branncellebegrensende konstruksjoner med klasse EI 30 [B 30] eller uklassifisert der avstand > 6 m

Vinduer med brannmotstand i boligblokker og rekkehus iht. brannrapport

Ventilasjon Brannsikret ventilasjonsanlegg

Ventilasjonskanaler i boligblokker med brannmotstand og brannspjeld, eller røykdeteksjon og stoppfunksjon

Brannsikring av ventilasjonsanlegg i boligblokker og rekkehus

Fasade Trekledning

🧱 Trekledning, brannimpregnert der nødvendig

Kledning med brannklasse K210 D-s2,d0 eller A2-s1,d0 iht. brannrapport

Trekledning på boligblokker og rekkehus med brannmotstand

Betong Betongarbeider for parkeringskjeller

Betongarbeider utført av AS BETONG

Betongarbeid for parkeringskjeller og tilhørende bygg

Tak Saltak med brannmotstand

🧱 Teglstein, betongtakstein, skifertak, metallplater

Tak med brannmotstand BROOF(t2) [Ta], takkonstruksjon med W-takstoler iht. Rockwool EI 30

Saltak med brannmotstand for boligblokker og rekkehus

Elektro Brannalarmanlegg

Brannalarmanlegg kategori 2 med seriekoblede røykvarslere og akustiske alarmorganer iht. NS 3960 og NS-EN 54

Brannvarsling i boligblokker, rekkehus og parkeringskjeller

Maling Overflatebehandling

Overflater i brannceller med brannklasse D-s2,d0 eller bedre

Maling og overflatebehandling i henhold til brannkrav

Grunnarbeid Grunnarbeider for parkeringskjeller

Grunnarbeider utført av STANGELAND MASKIN AS

Grunnarbeid for parkeringskjeller og tilhørende bygg

Isolasjon Brannsikker isolasjon

🧱 Glava/Rockwool eller tilsvarende A2-s1,d0

Isolasjon i takkonstruksjon og bygningsdeler med brannmotstand A2-s1,d0

Isolasjon med brannsikkerhet i boligblokker og rekkehus

Dører Brannklassifiserte dører

Dører med brannmotstand EI2 30-CSa, EI2 30-Sa, EI2 60-Sa, EI2 60-CSa iht. brannrapport

Brannklassifiserte dører mellom brannceller, trapperom, tekniske rom og parkeringskjeller

Betong Parkeringskjeller konstruksjon

🧱 Betong med brannmotstand REI 90 A2-s1,d0

Betongkonstruksjon for parkeringskjeller og trapperom med brannmotstand REI 90

Brannmotstandskrav for parkeringskjeller og tilhørende konstruksjoner

Utendørs Støyvoll

Støyvoll langs fylkesvei for å redusere trafikkstøy ved boligene og uteoppholdsarealer

Støyreduserende tiltak i uteområder

Tømrer Bindingsverk

🧱 Tre

Hovedmateriale i boligblokker og rekkehus er bindingsverk

Tømrerarbeid for boligblokker og rekkehus

VVS Sprinkleranlegg

Automatisk sprinkleranlegg i boligblokker og parkeringskjeller iht. NS-EN 12845 og NS-EN 16925

Brannsikkerhet med automatisk sprinkleranlegg

Oppmåling Innmåling og utskilling

Innmåling og utskilling utført av PRO DOK 3D AS

Oppmåling og utskilling for prosjektet

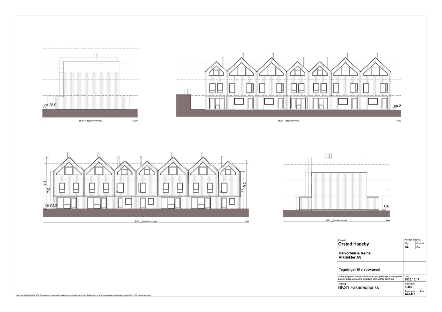
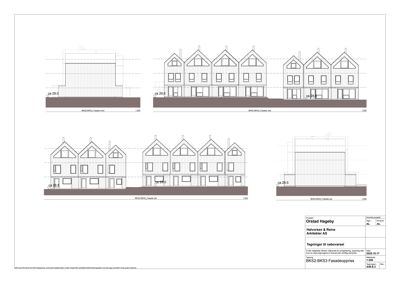
Fasader

Enebolig

Nordvest
Materiale
Tre
Taktype
Saltak
Høyde
7.0 m
Mønehøyde
9.8 m
Vinduer
2
Dører
0
Synlige etasjer
2
Sørvest
Materiale
Tre
Taktype
Saltak
Høyde
7.0 m
Mønehøyde
9.2 m
Vinduer
14
Dører
7
Synlige etasjer
2
Nordøst
Materiale
Tre
Taktype
Saltak
Høyde
7.0 m
Mønehøyde
9.8 m
Vinduer
14
Dører
7
Synlige etasjer
2
Sørøst
Materiale
Tre
Taktype
Saltak
Høyde
8.7 m
Mønehøyde
12.5 m
Vinduer
0
Dører
0
Synlige etasjer
1
Nord
Materiale
Tre
Taktype
Saltak
Høyde
2.5 m
Mønehøyde
8.5 m
Vinduer
0
Dører
0
Synlige etasjer
1
Vest
Materiale
Tre
Taktype
Saltak
Høyde
6.5 m
Mønehøyde
8.5 m
Vinduer
12
Dører
4
Synlige etasjer
2
Øst
Materiale
Tre
Taktype
Saltak
Høyde
6.5 m
Mønehøyde
8.5 m
Vinduer
12
Dører
4
Synlige etasjer
2
Sør
Materiale
Tre
Taktype
Saltak
Høyde
2.5 m
Mønehøyde
8.5 m
Vinduer
0
Dører
0
Synlige etasjer
1

Hendelser

20.04.2026 26/00951-13 Kommunalteknisk avdeling ved samferdsel - etablering av parkeringsanlegg - gnr/bnr 9/22 - uttale
16.04.2026 26/00951-12 Tilleggsopplysning - etablering av parkeringsanlegg - gnr/bnr 9/22
16.04.2026 26/00951-11 Ber om uttale - Rammesøknad - etablering av parkeringsanlegg - gnr/bnr 9/22
16.04.2026 26/00951-10 Ber om tilleggsopplysninger - Oppføring av parkeringsanlegg - F_BG - gnr/bnr 9/22 - rammetillatelse
16.04.2026 26/00951-9 Ber om tilleggsopplysninger - Oppføring av parkeringsanlegg - F_BG - gnr/bnr 9/22 ig 2
16.04.2026 26/00951-8 Ber om tilleggsopplysninger - Oppføring av parkeringanlegg - F_BG - gnr/bnr 9/22 - ig del 1
14.04.2026 26/00951-7 Tilleggsopplysning - oppføring av parkeringsanlegg - gnr/bnr 9/22
14.04.2026 26/00951-5 Ber om tilleggsopplysninger - Oppføring av parkeringanlegg - F_BG - gnr/bnr 9/22
09.04.2026 26/00951-4 Tilleggsopplysninger - parkeringsanlegg - gnr/bnr 9/22
07.04.2026 26/00951-3 Søknad om igangsettelse - gnr/bnr 9/22 søknad
07.04.2026 26/00951-2 Søknad om igangsettelse - gnr/bnr 9/22 søknad
07.04.2026 26/00951-1 Rammesøknad - Nytt bygg - boligformål,Nytt anlegg - parkeringsplass - gnr/bnr 9/22