Rendering
3D-visualisering (rendering) av etasjeplaner med omgivende terreng og vei.
1 / 28
NewConstruction
Unknown
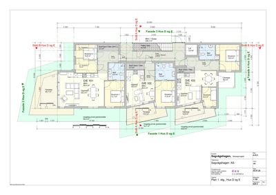
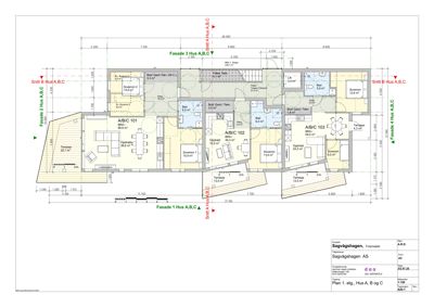
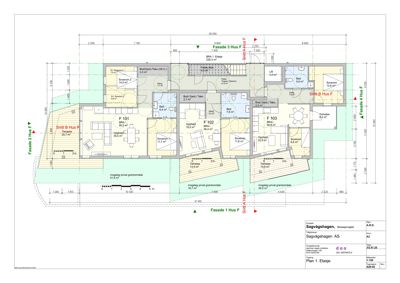
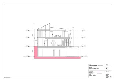
Leilighetsbygg
Oppføring av seks bustadblokker
📍 Sagvågshagen
Nøkkelinfo
- Sakstype
- Nybygg
- Bygningstype
- Leilighetsbygg
- Kommune
- Stord
- Fylke
- Vestland
- Gnr / Bnr
- 55 / 33
- Saksnummer
- 2025/12466
- Fase
- Unknown
Om byggesaken
Saken gjelder søknad om rammeløyve for oppføring av seks nye boligblokker i Sagvågshagen, inkludert detaljplanlegging, VA-rammeplan og energiberegninger.
Hendelser
21.04.2026
Brev kopi fra Stord Vatn og Avløp AS
30.09.2025
Matrikkelføring rammeløyve seks bustadblokkker, Sagvågsbrekko 3A, 3B, 3C, 3D, 3E og 3F - 55/33 m.fl.
29.09.2025
Rammeløyve - 55/33 m.fl.,- Oppføring av seks bustadblokker m.m., Sagvågshagen
11.08.2025
Tilleggsinformasjon - 55/33 mfl. Oppføring av seks bustadblokker m.m., Sagvågshagen
16.07.2025
Førebels svar - 55/33 - Oppføring av seks bustadblokker m.m., Sagvågshagen
08.07.2025
Stadfesting av motteken søknad - 55/33 mfl. - Oppføring av seks bustadblokker m.m., Sagvågshagen
08.07.2025
Søknad om rammeløyve - 55/33, Sagvågshagen