NewConstruction UnderBehandling Leilighetsbygg

Ny boligblokk C med parkeringskjeller i Storøykilen, Fornebu

📍 Storøykilen

Nøkkelinfo

Sakstype
Nybygg
Bygningstype
Leilighetsbygg
Bruksareal
256 m²
Boenheter
3
Kommune
Bærum
Fylke
Akershus
Saksnummer
2024/23171
Fase
Under behandling

Om byggesaken

Boligblokk C i Storøykilen, Fornebu, oppføres med fem etasjer over bakken og parkeringskjeller under. Bygget har et samlet areal på ca. 255,7 m² per etasje, med flere boenheter i ulike størrelser. Fasaden er i tre med flatt tak, og det er planlagt grønne tak på 50 % av takarealet, inkludert intensive og ekstensive grønne tak. Parkeringskjelleren har 74 plasser inkludert HC-plasser og ladepunkter for elbil. Utomhusarealene inkluderer reetablering av parkarm GP20 i Nansenparken med tilpasset vegetasjon og overvannshåndtering. Anleggsveier og riggplasser er midlertidig etablert med dispensasjon, og det er omfattende planer for sikring av vegetasjon, overvann, og miljøhensyn. Prosjektet har godkjente planer for fasader, utomhus, tekniske installasjoner, og miljøoppfølging, med flere ansvarlige foretak involvert i prosjektering og utførelse.

Produkter og materialer

Rekkverk Glassrekkverk og balkongrekkverk

🧱 Glass og tre

Glassrekkverk og balkongrekkverk i tre, detaljert utførelse med Bergene Holm kledning

Rekkverk for balkonger og terrasser

Trapper Innvendig trapp

🧱 Betong og stål

Antall: 2

Innvendige trapper i blokk C og i underetasje

Innvendige trapper i boligblokk C

Grunnarbeid Massehåndtering og riggplan

Masseuttak, massedeponi, riggplan med midlertidige anleggsveier og lagringsplasser, sikring av vegetasjon

Grunnarbeider og anleggsfasetiltak for boligblokk C og kvartal 5 & 6

Gulv Parkett

🧱 15 mm parkett

Parkettgulv med 15 mm tykkelse i boligene

Parkettgulv i boligene i blokk C

Betong Parkeringskjeller og fundamentering

🧱 Betong

Parkeringskjeller med betongkonstruksjoner, fundamentering med borede peler

Betongkonstruksjoner for parkeringskjeller og fundamentering

Tak Grønne tak

🧱 Intensive og ekstensive grønne tak

Intensive grønne tak 539 m2, ekstensive grønne tak 1077 m2, totalt 1616 m2 grønne tak på kvartal 5 og 6

Grønne tak på boligblokk C og tilhørende bygg

Terrasse Terrasse og platting

🧱 Tredekke og granittheller

Terrasser med tredekke og plattinger med granittheller i utearealene

Terrasser og uteplasser for boligene

VVS Sanitær, varme, slukkeinstallasjoner

Sanitærinstallasjoner, varme- og kuldeinstallasjoner, slukkeinstallasjoner utføres av VVS Kontakten AS

Tekniske VVS-installasjoner for boligblokk C

Avfall Avfallssug og nedgravde containere

Avfallssug med nedkast og to nedgravde containere for glass- og metallemballasje

Avfallshåndtering for boligblokk C og kvartal 5 & 6

Elektro Brannalarmanlegg og ledesystem

Brannalarmanlegg og ledesystem prosjekteres og installeres av Elektro-Kontakten AS

Brann- og sikkerhetssystemer for boligblokk C

Mur Tørrmur av granitt

🧱 Granitt

Tørrmur langs Forneburingen med granitt, høyde ca. 0,8-1,15 m

Tørrmur som avgrensning mot Forneburingen

Sykkelparkering Overdekket sykkelparkering og sykkelpaviljong

🧱 Tre og metall

Overdekket sykkelparkering i en og to etasjer, sykkelpaviljong med plass til 54 sykler

Sykkelparkering og sykkelpaviljong for beboere

Fasade Trekledning

🧱 Bergene Holm ædel-serien, dobbeltfals tett og dobbeltfals rett med spor

Fasade i tre med Bergene Holm ædel-serien i flere farger, med spilekledning og uten hjørnekasser

Trekledning for boligblokk C og rekkehus i kvartal 5 og 6

Vinduer Fasadevindu

🧱 Tre

Antall: 66

Tre vinduer i blokk C, totalt 66 vinduer fordelt på fasader nord, vest, sør og øst

Fasadevindu i tre for boligblokk C

Ventilasjon Luftbehandlingsanlegg

Luftbehandlingsanlegg prosjektert av AFRY Norway AS

Ventilasjons- og klimainstallasjoner for boligblokk C

Varmepumpe Fjernvarmetilknytning

Fjernvarmetilknytning for oppvarming, inkludert under byggefasen

Energiforsyning via fjernvarme for boligblokk C

Dører Ytterdør og balkongdør

🧱 Tre

Antall: 20

Ytterdører og balkongdører i tre i blokk C, inkludert 2 dører på sørfasade og flere balkongdører

Ytterdører og balkongdører i tre for boligblokk C

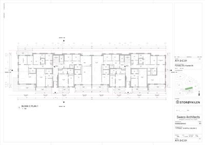
Plantegning

Blokk C 255.7 m²

Etasje 5 255.7 m²

Rom Areal Vinduer Dører
Bosted KV1 105.0 m² 3 1
Bosted KV2 105.0 m² 3 1
Bosted KV3 45.7 m² 2 1

Blokkeleilighet 120.8 m²

Etasje 1 120.8 m²

Rom Areal Vinduer Dører
Stue 101 47.2 m² 2 1
Sove 102 12.3 m² 1 1
Sove 103 11.5 m² 1 1
Bad 104 6.4 m² 0 1
Kjøkken 105 10.9 m² 1 1
Gang 106 4.3 m² 0 0
Terrasse 107 12.2 m² 0 1

Underetasje 0.0 m²

Etasje 0 0.0 m²

Rom Areal Vinduer Dører
Parkering 0 0.0 m² 0 0

Hovedbygg 0.0 m²

Etasje 0 0.0 m²

Rom Areal Vinduer Dører

Fasader

Sykkelparkering

Ukjent
Taktype
Flatt tak
Høyde
2.4 m
Vinduer
0
Dører
0
Synlige etasjer
1

Sykkelpaviljong

Ukjent
Materiale
Tre
Taktype
Saltak
Høyde
3.0 m
Vinduer
1
Dører
0
Synlige etasjer
1

BLOKK A

Sør
Materiale
Platemontasje
Taktype
Flatt tak
Høyde
29.0 m
Vinduer
14
Dører
0
Balkonger
14
Synlige etasjer
6

Blokk C

Nord
Materiale
Tre
Høyde
12.3 m
Vinduer
24
Dører
0
Synlige etasjer
4
Vest
Materiale
Tre
Høyde
12.3 m
Vinduer
12
Dører
0
Synlige etasjer
4
Sør
Materiale
Tre
Taktype
Flatt tak
Høyde
18.0 m
Vinduer
18
Dører
2
Balkonger
12
Synlige etasjer
5
Øst
Materiale
Tre
Taktype
Flatt tak
Høyde
18.0 m
Vinduer
12
Dører
0
Balkonger
4
Synlige etasjer
5

Hendelser

15.04.2026 Uttalelse Vann og avløp - igangsettingssøknad 5 - Fornebu felt B9.6 - Storøykilen kvartal 5 og 6
09.04.2026 Intern oversendelse - igangsettingssøknad 5 - Fornebu felt B9.6 - Storøykilen kvartal 5 og 6
07.04.2026 Igangsettingssøknad 5 - Fornebu felt B9.6 - Storøykilen Kvartal 5 & 6 – boligblokk C - parkeringskjeller og utomhus for KV 5 og 6
02.02.2026 Omhandlende oppfølging av kommunens tilbakemelding om reetablering parkarm GP20- Fornebu felt B9.6 - Storøykilen Kvartal 5 & 6 – boligblokk C - parkeringskjeller og utomhus for KV 5 og 6
14.01.2026 Tilbakemelding på forespørsel om reetablering av parkarm GP20 Nansenparken - Fornebu felt B9.6 - Storøykilen kvartal 5 og 6
30.12.2025 Supplering igangsettingssøknad for komplett bygg - Storøykilen kvartal 6
23.12.2025 Igangsettingstillatelse 4 - for komplett bygg - Fornebu felt B9.6 - Storøykilen kvartal 5 og 6 - boligblokk C - parkeringskjeller og utomhus for KV 5 og 6
15.12.2025 Forespørsel om avklaring av reetableringsløsning for parkarm GP20 i Nansenparken
10.12.2025 Supplering igangsettingssøknad 4 - Fornebu felt B9.6 - Storøykilen Kvartal 5 & 6 – boligblokk C - parkeringskjeller og utomhus for KV 5 og 6
28.11.2025 Igangsettingssøknad 4 - Fornebu felt B9.6 - Storøykilen Kvartal 5 & 6 – boligblokk C - parkeringskjeller og utomhus for KV 5 og 6
28.11.2025 Oppdaterte ansvarsretter for KV 5 og 6 - Fornebu felt B9.6 - Storøykilen Kvartal 5 & 6 – boligblokk C - parkeringskjeller og utomhus for KV 5 og 6
29.09.2025 Igangsettingstillatelse 3 - Fornebu felt B9.6 - Storøykilen kvartal 5 og 6 - boligblokk C - parkeringskjeller og utomhus for KV 5 og 6
25.09.2025 Supplering igangsettingssøknader råbygg - KV 5 & 6 blokker A, B og C
18.09.2025 Sjekkliste - Fornebu felt B9.6 - Storøykilen kvartal 5 og 6 - boligblokk C - parkeringskjeller og utomhus for KV 5 og 6
17.09.2025 Igangsettingssøknad 3 - Fornebu felt B9.6 - Storøykilen Kvartal 5 & 6 – boligblokk C - parkeringskjeller og utomhus for KV 5 og 6
01.07.2025 Midlertidig dispensasjon for lagringsplass i Nansenparken - Fornebu felt B9.6 - Storøykilen kvartal 5 og 6 - boligblokk C - parkeringskjeller og utomhus for KV 5 og 6
16.06.2025 Midlertidig dispensasjon for anleggsvei langs kvartal 5 & 6 - Fornebu felt B9.6 - Storøykilen kvartal 5 og 6 - boligblokk C mm.
13.06.2025 Igangsettingstillatelse 2 - Fornebu felt B9.6 - Storøykilen kvartal 5 og 6 - boligblokk C - parkeringskjeller og utomhus for KV 5 og 6
12.06.2025 Supplering søknader om midlertidig dispensasjon for anleggsvei langs KV5&6 og lagringsplass - Fornebu felt B9.6 - Storøykilen Kvartal 5 & 6 – boligblokk C - parkeringskjeller og utomhus for KV 5 og 6
11.06.2025 Uttalelse fra Vei og trafikk - reviderte riggplaner til søknader om midlertidig dispensasjon og igangsettingssøknad graving - Fornebu felt B9.6 - Storøykilen kvartal 5 og 6 - boligblokk C - parkeringskjeller og utomhus for KV 5 og 6
05.06.2025 Intern oversendelse - reviderte riggplaner til søknader om midlertidig dispensasjon og igangsettingssøknad graving - Fornebu felt B9.6 - Storøykilen kvartal 5 og 6 - boligblokk C - parkeringskjeller og utomhus for KV 5 og 6
30.05.2025 Supplering søknad om igangsettingstillatelse 2 - Storøykilen kvartal 5&6
16.05.2025 Igangsettingssøknad 2 - Fornebu felt B9.6 - Storøykilen Kvartal 5 & 6 – boligblokk C - parkeringskjeller og utomhus for KV 5 og 6
30.04.2025 Melding om ansvarsrett - Fornebu felt B9.6 - Storøykilen Kvartal 5 & 6 – boligblokk C - parkeringskjeller og utomhus for KV 5 og 6
28.04.2025 Igangsettingstillatelse 1 - Fornebu felt B9.6 - Storøykilen kvartal 5 og 6 - boligblokk C - parkeringskjeller og utomhus for KV 5 og 6
25.04.2025 Igangsettingssøknad 1 - Fornebu felt B9.6 - Storøykilen Kvartal 5 & 6 – boligblokk C - parkeringskjeller og utomhus for KV 5 og 6