NewConstruction Igangsettingstillatelse Leilighetsbygg

Oppføring av 3 leilighetsbygg i Sundlandveien, Drammen

📍 Sundlandveien

Nøkkelinfo

Sakstype
Nybygg
Bygningstype
Leilighetsbygg
Bruksareal
4,353 m²
Boenheter
43
Kommune
Drammen
Fylke
Buskerud
Saksnummer
23/46843
Fase
Igangsettingstillatelse

Om byggesaken

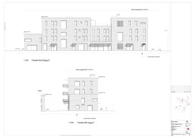
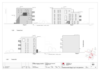
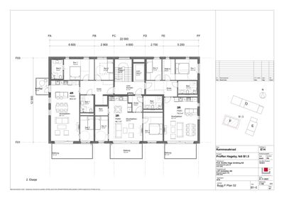
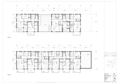
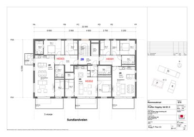
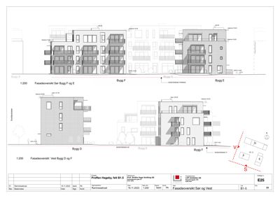
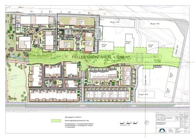
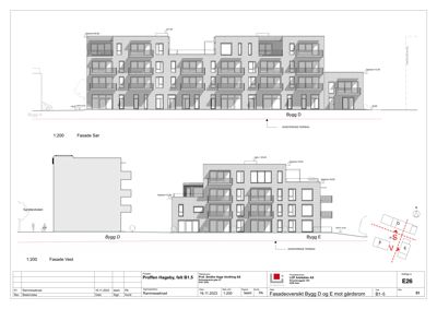
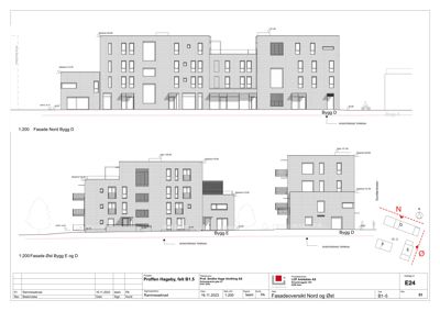
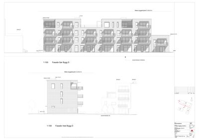
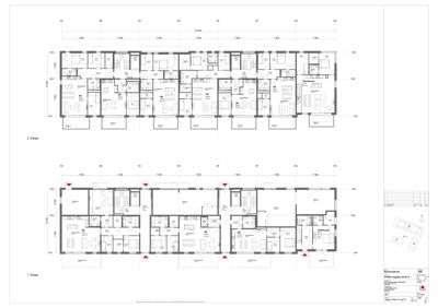
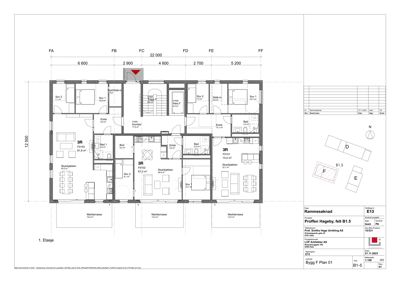
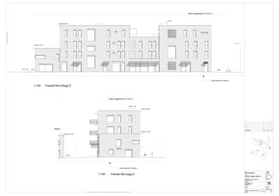
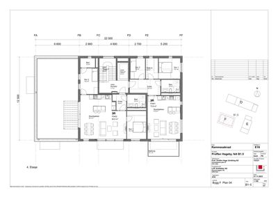
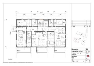
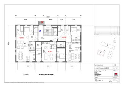
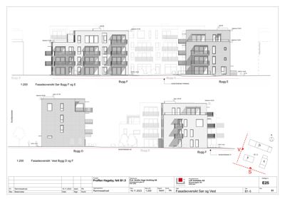
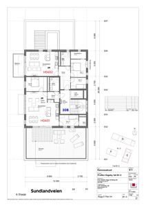
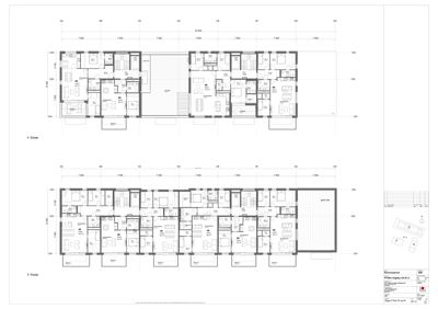
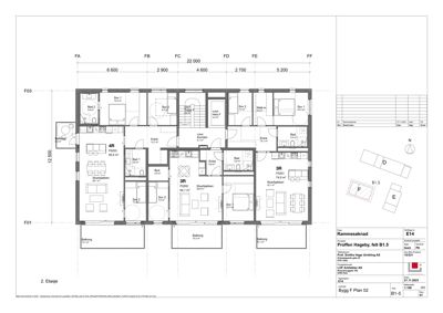
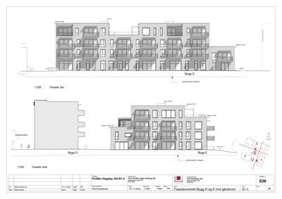
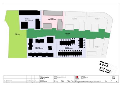
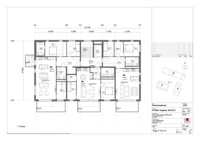
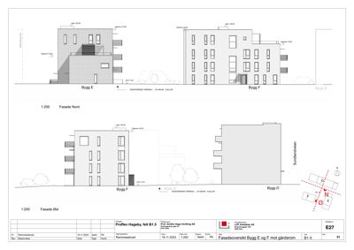
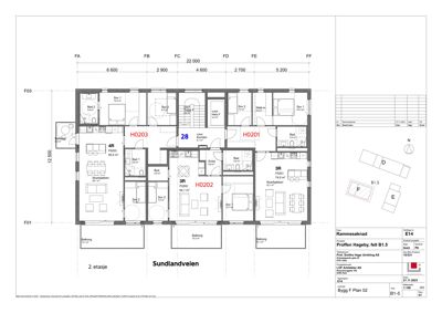
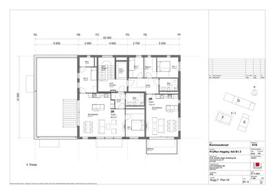
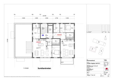
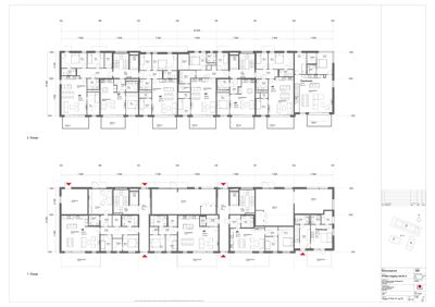
Prosjektet omfatter oppføring av tre leilighetsbygg (bygg D, E og F) i felt B1.5 på Sundlandveien i Drammen, med totalt 43 boenheter fordelt på 20 i bygg D, 12 i bygg E og 11 i bygg F. Byggene er 3-4 etasjer høye og oppføres på en eksisterende parkeringskjeller. Bygg D inneholder også næringslokaler i 1. etasje. Leilighetene varierer fra 2-roms til 4-roms med private balkonger, terrasser eller uteoppholdsarealer. Fasader består av tegl i rustikk mørk farge på bygg D og E, og stående trekledning av jernvitriolbehandlet malmfuru på bygg F. Takene er flate med grønne tak og takterrasser. Utomhusarealene inkluderer bilfrie tun, lekeplasser, gangveier og grøntdrag, med universell utforming og overvannshåndtering. Prosjektet har omfattende tekniske installasjoner som brannalarm, sprinkleranlegg, heis, ventilasjon, sanitær, varme og kjøling, samt glasskonstruksjoner og balkongrekkverk. Det er etablert godkjente løsninger for brannsikkerhet, støy, energi og miljø.

Arbeidsomfang

- Oppføring av 3 sammenbygde leilighetsbygg på 3 og 4 etasjer. - Bygging av 43 leiligheter fordelt på de 3 byggene. - Ny adkomst til området via kommunal vei. - Tilslutning til offentlig vannverk og avløpsanlegg. - Oppføring av heis i bygningene. - Utforming av overvannsledninger (takvann/overvann ført til terreng). - Fasadebehandling og kledning iht. arkitektoniske retningslinjer. - Takkonstruksjon og takdekk.

Produkter og materialer

Rekkverk Balkongrekkverk og glassrekkverk

Montering av balkongrekkverk, glassrekkverk og glassbaldakiner

Rekkverk på balkonger og uteområder

Trapper Innvendige trapper

Antall: 2

Innvendige trapper i leilighetsbyggene

Ventilasjon Balansert ventilasjon med varmegjenvinning

Ventilasjonsanlegg med balansert luftmengde, kjøkkenavtrekk med fettfilter

Ventilasjonsanlegg i leiligheter og fellesarealer

Heis Personheis

Antall: 6

Heiser i byggene, 4 stk per bygg, inkl. heisoppbygg på takplan

Heiser for persontransport i leilighetsbyggene

Fasade Tegl

🧱 Rustikk mørk farge

Teglfasade på bygg D og E med mørk fugefarge

Fasade med tegl på bygg D og E

Garasjeport Parkeringskjeller

Underjordisk parkeringskjeller under byggene, felles for felt B1-4 og B1-5

Parkeringskjeller under leilighetsbyggene

Gulv Parkett og fliser

Gulv med eikeparkett og fliser i våtrom

Gulvbelegg i leiligheter

Annet Utomhusanlegg og landskapsforming

Utomhusanlegg med gangveier, lekeplasser, beplantning, belysning og møblering

Utomhusanlegg og landskapsarbeider

Tømrer Innvendige vegger og himlinger

Innvendige vegger og himlinger med brannmotstand og isolasjon iht. TEK17

Innvendige tømrerarbeider

Balkong Balkonger og terrasser

Antall: 4

Balkonger og terrasser til leilighetene

Maling Innvendige overflater

Innvendige overflater med maling og overflatebehandling iht. standard

Innvendige malingsarbeider

Vinduer Fransk balkong

Antall: 6

Franske balkonger i bygg E

Varmepumpe Varmepumpeanlegg

Varmepumpe for oppvarming og kjøling

Varmepumpeanlegg i bygget

Vinduer Fasadevindu

Antall: 14

Fasadevinduer i leilighetsbyggene, varierende antall per fasade

Kjøkken Kjøkkeninnredning

Antall: 43

Kjøkken i alle leiligheter

Kjøkkeninnredning til alle boenheter

Bad Baderomsinnredning og fliser

Antall: 43

Bad med standard baderomsinnredning og fliser i alle leiligheter

Baderomsinnredning til alle boenheter

Tak Flatt tak med grønne tak

🧱 Sedum og lignende

Minst 50% av takflatene er grønne tak, takterrasser på 4. og 5. etasje

Flate tak med grønne tak og takterrasser

Dører Ytterdører og balkongdører

Antall: 90

Ytterdører og balkongdører til leiligheter og næringslokaler

VVS Sanitær, varme, sprinkel og ventilasjon

VVS-installasjoner med vannbåren varme, fjernvarmetilknytning, sprinkleranlegg, ventilasjon med balansert anlegg og kjøkkenavtrekk

Tekniske installasjoner for sanitær, varme, sprinkler og ventilasjon

Elektro Brannalarm og nødlys

Brannalarmanlegg kategori 2, nødlys i rømningsveier, ledesystem

Brannalarm, nødlys og ledesystem i bygget

Fasade Trekledning

🧱 Jernvitriolbehandlet malmfuru

Stående kledning med variasjon i dimensjoner på bygg F

Fasade med stående trekledning på bygg F

Solceller Solcelleanlegg på tak

Mulighet for solcelleanlegg på flate tak

Solcelleanlegg for energiproduksjon

Annet Riggplan og midlertidig renovasjon

Riggplan med midlertidig renovasjon under byggeperioden

Rigg- og byggeplassutstyr

Grunnarbeid Fundamentering og parkeringskjeller

Parkeringskjeller etablert i tidligere byggetrinn, fundamentering for leilighetsbygg på dekke over kjeller

Grunnarbeid og fundamentering for byggene

Mur Tegl og betongkonstruksjoner

Betong og tegl i bærende konstruksjoner og fasader

Bærende konstruksjoner i betong og tegl

Isolasjon Brannsikker isolasjon

🧱 A2-s1,d0 eller tilsvarende

Isolasjon i konstruksjoner med brannmotstand og tildekking

Isolasjon med brannmotstand i vegger og tak

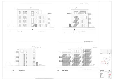
Fasader

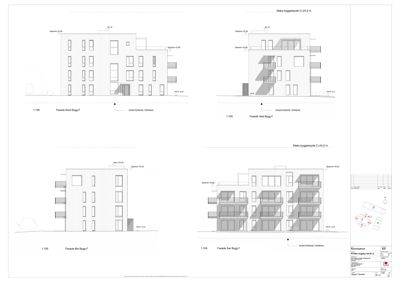
Bygg F

Nord
Materiale
Tre
Taktype
Flatt tak
Høyde
19.4 m
Mønehøyde
20.1 m
Vinduer
13
Dører
1
Synlige etasjer
4
Vest
Materiale
Tre
Taktype
Flatt tak
Høyde
19.4 m
Mønehøyde
20.1 m
Vinduer
11
Dører
1
Balkonger
3
Synlige etasjer
4
Øst
Materiale
Tre
Taktype
Flatt tak
Høyde
19.2 m
Mønehøyde
20.2 m
Vinduer
6
Dører
1
Balkonger
3
Synlige etasjer
4
Sør
Materiale
Tre
Taktype
Flatt tak
Høyde
19.4 m
Mønehøyde
20.1 m
Vinduer
14
Dører
1
Balkonger
6
Synlige etasjer
4

Hendelser

08.04.2026 Sundlandveien 26-30, Proffen Hageby, felt B1.5, søknad om igangsettingstillatelse 15/331 igangsettingstillatelse
08.01.2026 Sundlandveien 26, 28 og 30 - Proffen Hageby felt B1.5, igangsettingstillatelse nr. 2 for 3 leilighetsbygg igangsettingstillatelse
22.12.2025 Søknad om igangsettingstillatelse 15/331 igangsettingstillatelse
14.10.2025 Sundlandveien - Proffen Hageby felt B1.5, igangsettingstillatelse nr. 1 for 3 leilighetsbygg igangsettingstillatelse
25.09.2025 Sundlandveien 26-30, Søknad om igangsettingstillatelse 15/331 igangsettingstillatelse
14.03.2024 15/331, utbygging av B1.5, nye adresser i Sundlandveien
05.03.2024 Sundlandveien - Proffen Hageby felt B1.5, rammetillatelse for 3 leilighetsbygg rammetillatelse
21.02.2024 Sundlandveien - Supplering av søknad søknad
05.02.2024 Sundlandveien - Proffen hageby felt B1.5, vi trenger flere opplysninger for å behandle søknaden din søknad
05.12.2023 Sundlandveien, melding om mottatt søknad søknad
04.12.2023 Sundlandveien, Proffen Hageby felt B1.5 - Søknad om rammetillatelse rammetillatelse