NewConstruction UnderBehandling Leilighetsbygg

Nybygg leilighetsbygg på Trillingen 6, Drammen

📍 Trillingen 6 , 3036 DRAMMEN

Nøkkelinfo

Sakstype
Nybygg
Bygningstype
Leilighetsbygg
Bruksareal
347 m²
Boenheter
3
Kommune
Drammen
Fylke
Buskerud
Gnr / Bnr
32 / 31
Saksnummer
26/01134
Fase
Under behandling

Om byggesaken

Nybygg av leilighetsbygg på eiendommen Trillingen 6 i Drammen med et samlet areal på ca. 347 m². Prosjektet omfatter oppføring av nytt boligbygg med flere boenheter, inkludert bruksendring av deler av underetasjen fra tilleggsdel til hoveddel, riving av eksisterende garasje og oppføring av ny garasje på ny plassering. Bygget har saltak og trekledning, med store oppholdsrom, flere soverom, bad, omkledningsrom og terrasse på 45,4 m² orientert mot sør for gode solforhold. Prosjektet inkluderer også tilpasning til områdets karakter og krav til naturfare, støy og blågrønn faktor.

Produkter og materialer

VVS Sanitærinstallasjoner

Sanitærinstallasjoner i bad og vaskerom, utføres av STJERNERØR OG BYGG AS

VVS-installasjoner for bolig

Fasade Trekledning

🧱 Tre

Trekledning på alle fasader, saltak med gesimshøyde 3.8m og mønehøyde 8.5m

Fasademateriale i tre som matcher eksisterende bebyggelse

Maling Innvendig og utvendig maling

Maling av fasade og innvendige flater

Overflatebehandling for beskyttelse og estetikk

Betong Fundament og dekker

Betongfundament og dekker for bolig og garasje

Betongarbeider for bygg og garasje

Vinduer Fasadevindu

Antall: 11

Vinduer fordelt på fasader: Vest 3, Øst 4, Nord 2, Sør 2

Fasadevinduer i trebygget

Gulv Innvendige gulv

Gulv i oppholdsrom, soverom og bad

Innvendige gulvflater med egnet overflate

Ventilasjon Ventilasjonsanlegg

Ventilasjonsløsninger for bolig

Ventilasjon for inneklima og luftkvalitet

Garasje Frittstående garasje

Antall: 1

Ny garasje på ca. 40 m², ny plassering på tomten

Garasje for parkering med bedre adkomst

Terrasse Uteplass

Antall: 1

Terrasse på 45,4 m² orientert mot sør

Stor terrasse for uteopphold med gode solforhold

Tømrer Bærekonstruksjon og innvendige arbeider

🧱 Tre

Tømrerarbeid for bærekonstruksjon, vegger, tak og innvendige rom

Tømrerarbeid i bolig og garasje

Elektro Elektriske installasjoner

Elektriske installasjoner for bolig og garasje

El-installasjoner iht. gjeldende forskrifter

Dører Ytterdører

Antall: 5

Dører fordelt på fasader: Vest 1, Øst 1, Nord 1, Sør 1, samt dør til garasje

Ytterdører til bolig og garasje

Tak Saltak

Saltak på hele bygget

Tak med saltak konstruksjon

Grunnarbeid Tomtearbeid

Grunnarbeid for nybygg og garasje, inkludert riving av eksisterende garasje

Grunnarbeid og fundamentering

Isolasjon Bygningsisolasjon

Isolasjon i vegger, tak og gulv for energikrav

Isolasjon for varme- og lydisolering

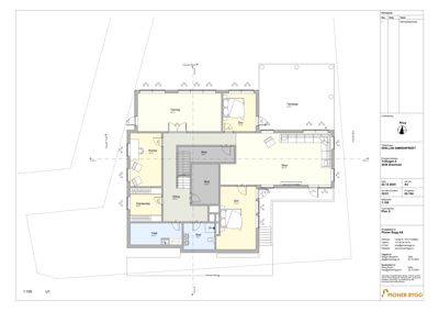
Plantegning

Enebolig 241.8 m²

Etasje 1 241.8 m²

Rom Areal Vinduer Dører
Stue 101 52.5 m² 3 2
TV-Stue 102 11.7 m² 0 2
Kjøkken 103 8.9 m² 0 1
Gang 104 15.9 m² 0 2
Gang 105 15.2 m² 0 2
Bad 106 11.0 m² 0 1
Bad 107 6.6 m² 0 1
Sov 108 12.0 m² 1 1
Sov 109 11.0 m² 1 1
Omk 110 9.9 m² 0 1
Omk 111 6.8 m² 0 1
Terrasse 112 45.4 m² 0 0

Fasader

Enebolig

Vest
Materiale
Tre
Taktype
Saltak
Vinduer
3
Dører
1
Synlige etasjer
1
Øst
Materiale
Tre
Taktype
Saltak
Vinduer
4
Dører
1
Synlige etasjer
1
Nord
Materiale
Tre
Taktype
Saltak
Høyde
3.8 m
Mønehøyde
8.5 m
Vinduer
2
Dører
1
Synlige etasjer
1
Sør
Materiale
Tre
Taktype
Saltak
Høyde
3.8 m
Mønehøyde
8.5 m
Vinduer
2
Dører
1
Synlige etasjer
1

Hendelser

10.04.2026 Trillingen 6, ber om utsatt frist i en måned
09.03.2026 Trillingen 6, bekreftelse på utsatt svarfrist
06.03.2026 Trillingen 6, ber om utsettelse av frist
05.02.2026 Trillingen 6, vi trenger flere opplysninger for å behandle søknaden din
13.01.2026 Trillingen 6 Søknad om tillatelse i ett trinn 32/31