Rehabilitation Soeknad Leilighetsbygg

Rehabilitering av leilighetsbygg etter brann på Øvre Hamna 28A, Finnsnes

📍 Øvre Hamna 28A , 9300 FINNSNES

Nøkkelinfo

Sakstype
Rehabilitering
Bygningstype
Leilighetsbygg
Bruksareal
100 m²
Boenheter
4
Kommune
Senja
Fylke
Troms - Romsa - Tromssa
Gnr / Bnr
44 / 699
Saksnummer
2026/2885
Fase
Søknad

Om byggesaken

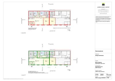
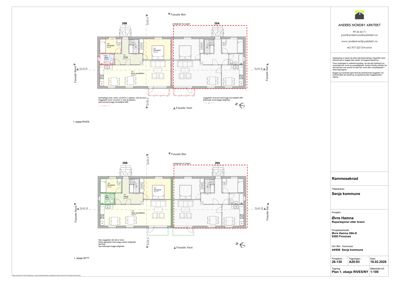
Rehabilitering av et eksisterende leilighetsbygg med fire leiligheter på Øvre Hamna 28A-D i Finnsnes etter brannskade. Tiltaket omfatter omfattende reparasjoner innvendig, inkludert reetablering av brannskiller, lydskiller og våtrom, samt utvendige arbeider som tilbakeføring av fasade og balkonger med nye fundamenter. Leilighet C, som er totalskadet, tilbakeføres med naturlig ventilasjon. Arbeidene inkluderer riving av gulvbelegg, veggplater og balkonger i berørte leiligheter, og oppføring av nye veggplater, doble gipsplater på brannvegger, nye søyler for balkonger og nye balkonger. Arealet som berøres er ca. 100 m² inkludert balkonger. Bygget opprettholder sin plassering og størrelse, og tiltaket anses som vesentlig reparasjon med relevante TEK17-krav der det er aktuelt.

Produkter og materialer

Ventilasjon Naturlig ventilasjon

Leilighet C tilbakeføres med naturlig ventilasjon som øvrige leiligheter

Ventilasjonssystem for rehabilitert leilighet

Brannvern Lydskille vegger

🧱 Veggsystem med lydisolasjon og gipsplater

Lydskille vegger i leilighetene i forbindelse med rehabilitering

Oppgradering av lydskiller i bygget

Grunnarbeid Fundamenter for balkonger

🧱 Betong

Antall: 2

Nye fundamenter for balkonger

Grunnarbeid for balkonger etter brannskade

Tømrer Vegger og gulv

🧱 Gipsplater, treverk, søyler

Riving av veggplater og gulvbelegg, oppføring av nye veggplater og søyler for balkonger

Innvendig tømrerarbeid i leilighetene

Fasade Fasadeplater og kledning

🧱 Tre

Tilbakeføring av hovedfasade i tre, basert på eldre tegningsunderlag og fotografier

Rehabilitering og reparasjon av fasade etter brannskade

Bad Våtromsrehabilitering

🧱 Nye våtromsvegger og gulvbelegg

Nytt bad i leilighetene, riving av gamle veggplater og gulvbelegg, oppføring av nye våtrom

Rehabilitering av våtrom etter brannskade

Fasade Balkonger

🧱 Tre og betong fundamenter

Antall: 2

Nye balkonger med nye fundamenter, tilbakeføring av hovedfasade

Reetablering av to balkonger med nye fundamenter og søyler

Brannvern Brannskille vegger

🧱 Doble gipsplater på begge sider av brannvegg

Nye doble gipsplater på brannvegger mellom leiligheter, foring og brannveggsreparasjon

Reetablering av brannskiller i leilighetene

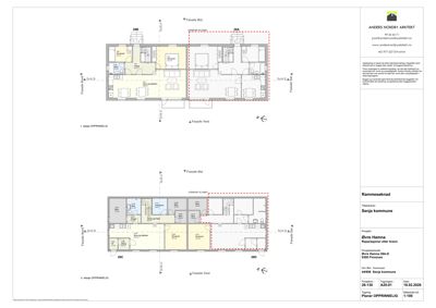
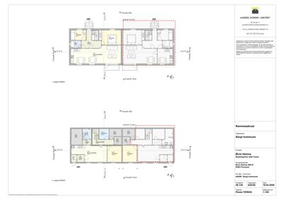
Plantegning

Enebolig 220.5 m²

Etasje 1 120.5 m²

Rom Areal Vinduer Dører
Gang 101 8.7 m² 0 2
Soverom 102 13.7 m² 1 1
Stue og kjøkken 103 35.9 m² 2 2
Bad 104 3.3 m² 0 1
Soverom 105 11.7 m² 1 1
Soverom 106 6.7 m² 1 1

Etasje 0 100.0 m²

Rom Areal Vinduer Dører
VF U01 1.7 m² 0 1
Gang U02 2.3 m² 0 1
Stue og kjøkken U03 21.2 m² 2 2
Soverom U04 10.3 m² 1 1
Gang U05 2.1 m² 0 1
Bad U06 4.1 m² 0 1
Bod U07 7.7 m² 0 1
Bod U08 2.8 m² 0 1
Bod U09 4.8 m² 0 1
Vaskerom U10 4.4 m² 0 1
Gang og trapp U11 8.2 m² 0 1
Soverom U12 10.5 m² 1 1
Bod U13 2.8 m² 0 1
Bod U14 4.8 m² 0 1
VF U101 1.7 m² 0 1
Gang U102 2.3 m² 0 1
Stue og kjøkken U103 21.2 m² 2 1
Soverom U104 10.3 m² 1 1
Gang U105 2.1 m² 0 1
Bad U106 4.1 m² 0 1
Bod U107 7.7 m² 0 1
Bod U108 2.6 m² 0 1
Bod U109 4.6 m² 0 1
Vaskerom U110 4.4 m² 0 1
Gang og trapp U111 8.2 m² 0 1
Soverom U112 10.5 m² 1 1
Bod U113 2.6 m² 0 1
Bod U114 4.8 m² 0 1

Fasader

Enebolig

Sør
Materiale
Tre
Taktype
Saltak
Vinduer
2
Dører
1
Balkonger
1
Synlige etasjer
2
Øst
Materiale
Tre
Taktype
Flatt tak
Vinduer
4
Dører
2
Synlige etasjer
1
Nord
Materiale
Tre
Taktype
Saltak
Vinduer
2
Dører
1
Balkonger
1
Synlige etasjer
2
Vest
Materiale
Tre
Taktype
Flatt tak
Vinduer
10
Dører
2
Balkonger
2
Synlige etasjer
2

Hendelser

13.04.2026 Bekreftelse på mottatt søknad - rammesøknad - endring av bygg - brannskille, lydskille, våtrom og fasade - Øvre Hamna 28A - gbnr. 44/699
09.04.2026 Rammesøknad - endring av bygg - brannskille, lydskille, våtrom og fasade - Øvre Hamna 28A - gbnr. 44/699