Extension Ferdigattest Leilighetsbygg

Tilbygg med bi-leilighet og bruksendring i Fembøringsveien 3, Bodø

📍 Fembøringveien 3

Nøkkelinfo

Sakstype
Tilbygg
Bygningstype
Leilighetsbygg
Bruksareal
278 m²
Boenheter
2
Kommune
Bodø
Fylke
Nordland - Nordlánnda
Gnr / Bnr
2018 / 778
Saksnummer
2026/16356
Fase
Ferdigattest

Om byggesaken

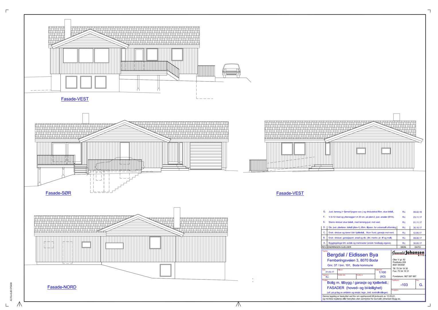
Ny tilbygg på eksisterende enebolig i Fembøringsveien 3, Bodø, med samlet areal på 277,5 m² fordelt på to etasjer. Tilbygget inkluderer en bi-leilighet i kjelleretasjen på 64,5 m² med stue, kjøkken, bad, soverom og bod, samt hovedleilighet med tilbygg og garasje i 1. etasje på 213 m². Bygget har trekledning, saltak, og inkluderer en balkong/terrasse på 20 m². Det er installert elektriske panelovner for varme, og det er gjennomført kontroll av våtrom og lufttetthet. Fasader har flere vinduer og dører i tre, med garasjeport på sørfasaden. Prosjektet omfatter også bruksendring i forbindelse med bi-leiligheten.

Produkter og materialer

Fasade Trekledning

🧱 Tre

Trekledning på alle fasader

Trekledning som ytterkledning på bygget

VVS Varmesystem

Elektriske panelovner for varmefordeling

Elektriske panelovner som varmesystem i bygget

Grunnarbeid Ringmur og fundament

🧱 Betong

Ringmur og fundament for tilbygg og garasje, delvis på fjellgrunn

Betongfundament og ringmur for tilbygg og garasje

Elektro Elektrisk anlegg

Elektrisk anlegg for belysning og varme

Elektrisk installasjon for panelovner og øvrig strømforsyning

Tak Saltak

🧱 Tre, isolert

Saltak med trekledning og isolasjon

Saltak med isolert trekonstruksjon

Terrasse Balkong/terrasse

🧱 Tre

Antall: 1

Balkong/terrasse på 20 m² med tilhørende dør

Utendørs balkong/terrasse i tre til hovedleilighet

Bad Våtromsinnredning

Antall: 3

Bad og vaskerom i hovedleilighet og bi-leilighet med kontrollert våtrom

Innredning og materialer for bad og vaskerom i begge boenheter

Isolasjon Vegger og tak

Isolasjon i vegger (20 cm tykkelse) og tak

Isolasjon for varme- og lydisolering i vegger og tak

Garasjeport Garasjeport i tre eller metall

Antall: 1

Garasjeport på sørfasade

Garasjeport til garasje på 26,5 m²

Gulv Lydgulv mellom etasjer

Nytt lydgulv mellom etasjer i tilbygg

Lydisolert gulvkonstruksjon mellom etasjer

Vinduer Fasadevindu

🧱 Tre

Antall: 13

Flere vinduer i fasader vest, sør og nord, inkludert større vinduer i stue bi-leilighet

Fasadevinduer i tre til hoved- og bi-leilighet

Trapper Innvendig trapp og utvendig terrassetrappe

Antall: 1

Innvendig trapp mellom etasjer og utvendig trapp til bi-leilighet

Trapper for intern adkomst og utvendig adkomst til bi-leilighet

Dører Ytterdører og balkongdører

🧱 Tre

Antall: 10

Ytterdører og balkongdører i tre, inkludert dører til bi-leilighet, garasje og balkong

Ytterdører og balkongdører i tre til bolig og bi-leilighet

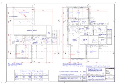
Plantegning

Enebolig 277.5 m²

Etasje 0 64.5 m²

Rom Areal Vinduer Dører
Stue 101 18.0 m² 3 1
Gang, entré 102 7.0 m² 0 2
Kjøk., spis. 103 5.5 m² 0 1
Sov. 1 104 10.5 m² 1 1
Bad, vask 105 4.1 m² 0 1
Gard. (vf.) 106 3.8 m² 0 1
Adk. leil. 107 4.0 m² 0 1
Bod 108 7.5 m² 0 1

Etasje 1 213.0 m²

Rom Areal Vinduer Dører
Stue 201 24.5 m² 3 1
Spisestue 202 13.6 m² 0 1
Kontor, div. 203 8.6 m² 0 1
Gang 204 7.3 m² 0 2
Kjøkken 205 9.6 m² 0 1
Gang, gard. 206 4.7 m² 0 1
Bad, wc. 207 7.1 m² 0 1
Sov. 1 208 10.8 m² 1 1
Sov. 2 209 10.2 m² 1 1
Sov. 3 210 6.6 m² 1 1
Gang, lek 211 7.2 m² 0 1
Entré, vf. 212 7.4 m² 0 1
Vask, bad 213 7.2 m² 0 1
Garasje 214 26.5 m² 0 1
Repo 215 3.3 m² 0 1
Balk., terrasse 216 20.0 m² 0 1

Fasader

Enebolig

Vest
Materiale
Tre
Taktype
Saltak
Vinduer
6
Dører
1
Balkonger
1
Synlige etasjer
2
Sør
Materiale
Tre
Taktype
Saltak
Vinduer
3
Dører
2
Balkonger
1
Synlige etasjer
2
Nord
Materiale
Tre
Taktype
Saltak
Vinduer
3
Dører
1
Synlige etasjer
2

Hendelser

20.04.2026 Endring av ansvarlig søker - Fembøringveien
15.04.2026 Supplering av søknad - Fembøringsveien 3
15.04.2026 Søknad om ferdigattest - Fembøringsveien 3