Extension Igangsettingstillatelse Leilighetsbygg

Tilbygg og fasadeendring på leilighetsbygg i Haukedalsbotn 37, Bergen

📍 Haukedalsbotn 37 , 5113 TERTNES

Nøkkelinfo

Sakstype
Tilbygg
Bygningstype
Leilighetsbygg
Bruksareal
54 m²
Boenheter
2
Kommune
Bergen
Fylke
Vestland
Gnr / Bnr
187 / 120
Saksnummer
BYGG-2025/14774
Fase
Igangsettingstillatelse

Om byggesaken

Prosjektet omfatter et tilbygg på ca. 54 m² på sørøstlig side av et eksisterende leilighetsbygg i Haukedalsbotn 37, Bergen. Bygget er en to-etasjes enebolig med to boenheter, hvor kjelleren har egen boenhet med separat inngang. Tiltaket inkluderer også fasadeendringer som lukking og innsetting av nye vinduer og dører, riving av pipe, terrengfylling og oppføring av støttemur. Det utføres bruksendring fra tilleggsdel til hoveddel i kjelleren, samt oppføring av nye brannvegger og branndører mellom boenhetene. Tilbygget har samme byggehøyde som eksisterende bygg og ligger nærmere nabogrensen enn 4 meter, med innhentede nabosamtykker. Terrenginngrep og støttemur utføres sørvest på eiendommen. Prosjektet er i igangsettingsfasen med godkjente tiltaksklasser og ansvarlige foretak.

Produkter og materialer

Fasade Trepanel

🧱 Tre

Fasade i trepanel på alle sider, inkludert tilbygg og fasadeendring

Trepanel til fasade på eksisterende bygg og tilbygg

Tak Saltak med tegl

🧱 Teglstein

Eksisterende saltak med tegl på sør- og nordfasade, tilbygg har samme byggehøyde

Saltak med teglstein som takmateriale

Bygningskomponenter Dører

🧱 Tre

Antall: 6

Nye ytterdører og branndører i fasadeendring og bruksendring, inkludert lukking av dør og innsetting av nye dører i fasade

Ytterdører og branndører i tre til fasadeendring og bruksendring

Brannvern Brannvegger og branndører

Oppføring av nye brannvegger og branndører mellom boenhetene i kjeller

Brannsikring mellom boenheter

Mur Støttemur

🧱 Betong eller stein

Oppføring av støttemur sørvest på eiendommen, nærmere nabogrense enn 4 meter med nabosamtykke

Støttemur for terrenginngrep

Tømrer Trekonstruksjoner

🧱 Tre

Oppføring av tilbygg i trekonstruksjoner, inkludert bærende konstruksjoner og innsetting av vinduer og dører

Tømrerarbeid for tilbygg og fasadeendring

Betong Fundament og gulv

🧱 Betong

Støpt gulv under 1. etasje og fundamentering for tilbygg

Betongfundament og gulvstøp

Bygningskomponenter Vinduer

🧱 Tre

Antall: 14

Nye vinduer i fasadeendring, lukking og innsetting av vinduer i tre, inkludert 1 vindu på østfasade, 8 på sørfasade, 1 på nordfasade, 4 på vestfasade

Fasadevindu i tre til fasadeendring og tilbygg

Grunnarbeid Terrenginngrep og fylling

Terrengfylling sørvest for huset i forbindelse med tilbygg og støttemur

Terrengarbeid for tilpassing av tomt og fundamentering

Bygningskomponenter Trapp

🧱 Tre

Antall: 1

Eksisterende interntrapp mellom kjeller og 1. etasje beholdes, ikke del av søknaden

Intern trapp i tre, eksisterende

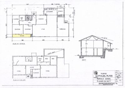
Plantegning

Enebolig 111.0 m²

Etasje 1 66.0 m²

Rom Areal Vinduer Dører
Stue 101 31.5 m² 1 1
Kjøkken 102 12.0 m² 1 1
Soverom 103 12.0 m² 1 1
Soverom 104 10.0 m² 1 1
Soverom 105 10.0 m² 1 1
Hall 106 2.5 m² 0 1
Bad WC 107 4.0 m² 0 1
Terrasse 108 15.0 m² 0 0
Altan 109 6.0 m² 0 0
Grovkjøkken 110 3.0 m² 0 0
Tørkerom 111 2.0 m² 0 0
Kjølerom 112 1.5 m² 0 0

Etasje 0 45.0 m²

Rom Areal Vinduer Dører
Entré 001 5.0 m² 0 1
Kjøkken 002 10.0 m² 1 1
Hybel 003 15.0 m² 1 1
Hybel 004 10.0 m² 1 1
Dusj WC 005 3.0 m² 0 1
Bod 006 5.0 m² 0 1
Bod 007 5.0 m² 0 1
Dusj/WC 008 0.0 m² 0 1
Bod 009 0.0 m² 0 1
Bod 010 0.0 m² 0 1

Etasje 2 0.0 m²

Rom Areal Vinduer Dører
Sov 201 0.0 m² 0 0
Sov 202 0.0 m² 0 0
Sov 203 0.0 m² 0 0
Kjøkken/stue 204 0.0 m² 0 0
Gang 205 0.0 m² 0 0
Bad 206 0.0 m² 0 0
Bad 207 0.0 m² 0 0
Bod 208 0.0 m² 0 0
Bod 209 0.0 m² 0 0

Fasader

Enebolig

Øst
Materiale
Tre
Taktype
Saltak
Høyde
1.4 m
Vinduer
1
Dører
0
Balkonger
1
Synlige etasjer
2
Sør
Materiale
Tre
Taktype
Saltak
Takmat.
Tegl
Høyde
1.6 m
Vinduer
8
Dører
3
Balkonger
1
Synlige etasjer
2
Nord
Materiale
Tre
Taktype
Saltak
Takmat.
Tegl
Vinduer
1
Dører
1
Synlige etasjer
1
Vest
Materiale
Tre
Taktype
Flatt tak
Vinduer
4
Dører
1
Synlige etasjer
1

Hendelser

30.03.2026 Igangsettingstillatelse
27.03.2026 Haukedalsbotn 37 Søknad om igangsettingstillatelse 187/120
18.09.2025 Fakturagrunnlag 2025
18.09.2025 Ubw ordre 20677156
02.09.2025 Rammetillatelse Haukedalsbotn 37 187/120
29.08.2025 Tilleggsopplysninger
27.08.2025 Purring på mangler i sak
21.08.2025 Mangler meddelt - 187/120/0/0 Haukedalsbotn 37, bruksendring fra tilleggsdel til hoveddel
01.08.2025 Orientering, ber om tilbakemelding- 187/120/0/0 Haukedalsbotn 37, bruksendring fra tilleggsdel til hoveddel
25.07.2025 Bekreftelse på mottatt søknadBekreftelse på mottatt søknad
24.07.2025 Haukedalsbotn 37 Søknad om rammetillatelse 187/120