Extension UnderBehandling Leilighetsbygg

Tilbygg og fasadeendring på leilighetsbygg med carport i Manger

📍 Radøyvegen 1673A , 5936 MANGER

Nøkkelinfo

Sakstype
Tilbygg
Bygningstype
Leilighetsbygg
Bruksareal
1,700 m²
Boenheter
18
Kommune
Alver
Fylke
Vestland
Gnr / Bnr
445 / 506
Saksnummer
2024/12509
Fase
Under behandling

Om byggesaken

Prosjektet omfatter tilbygg og fasadeendring på et eksisterende leilighetsbygg bestående av to bygg med til sammen 18 leiligheter. Byggene har flere etasjer med tilhørende balkonger med pergola, sportsboder, og terrasser. Det oppføres også tre carporter med flate tak og trepanel som fasademateriale. Totalt areal for carportene er ca. 293 m², mens leilighetsbyggene har et samlet bruksareal på over 1700 m². Byggene har saltak og flate tak, stålpipe tilpasses taket, og det er planlagt trapper og bæring som må prosjekteres. Utomhusplan viser beplantning, lekeareal og sykkelparkering på tomten.

Produkter og materialer

Utendørs Terrasse og balkong med pergola

🧱 Tre

Terrasser og balkonger med pergola på leilighetsbygg

Utendørs oppholdsarealer med pergola

Brannvern Brannprosjektering

Brann må prosjekteres i sin helhet

Brannsikring og prosjektering for bygg

Tak Saltak og flatt tak

Saltak på leilighetsbygg, flatt tak på carport

Taktype for bygg og carport

Trapper Innvendige trapper

Antall: 2

Trapper må prosjekteres

Innvendige trapper i leilighetsbygg

Utendørs Sykkelparkering

Antall: 18

Sykkelpullert Loop 12 stk og 6 stk

Sykkelparkering på tomt

Utendørs Lekeareal og beplantning

Lekeareal, busker, trær og beplantning i utomhusplan

Lekeareal og beplantning på tomt

Tømrer Takstoler

Takstoler må prosjekteres

Takstoler for bygg og carport

Vinduer Fasadevindu

Antall: 54

Vinduer i leiligheter, inkludert balkongdører og skyvedørsløsninger

Fasadevinduer og balkongdører i leilighetsbygg

Mur Betongmur

🧱 Betong

Betongmur i utomhusplan

Betongmur for terreng og byggegrense

Garasjeport Carport med garasjeport

Antall: 3

Trecarport med garasjeport, flatt tak

Tre carporter med garasjeporter

Pipe Stålpipe

🧱 Stål

Stålpipe tilpasses ferdig prosjektert tak

Stålpipe for leilighetsbygg

Grunnarbeid Tomtearbeid og fundamentering

Grunnarbeid for bygg og carport, inkludert sprenging

Grunnarbeid og fundamentering for bygg og carport

Fasade Trepanel fasade

🧱 Tre

Trepanel på carport og leilighetsbygg

Fasademateriale i tre for carport og leilighetsbygg

Dører Ytterdører og balkongdører

Antall: 54

Ytterdører og balkongdører i leiligheter

Dører til leiligheter og balkonger

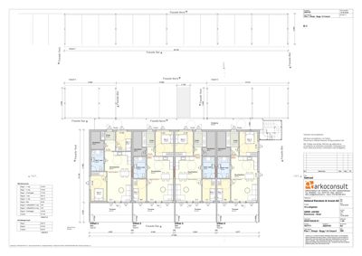
Plantegning

Carport 293.1 m²

Etasje 1 293.1 m²

Rom Areal Vinduer Dører
Carport 1 C1 293.1 m² 0 0

Enebolig 310.5 m²

Etasje 1 310.5 m²

Rom Areal Vinduer Dører
Stue/Kjøkken 901 41.4 m² 1 1
Sov 3 902 12.1 m² 1 1
Sov 2 903 7.5 m² 1 1
Sov 1 904 7.6 m² 1 1
Gang 905 4.1 m² 0 2
Entré 906 4.7 m² 0 1
Bad/vask 907 7.2 m² 0 1
Sportsbod 908 5.1 m² 1 1
Terrasse 909 15.3 m² 0 1
Stue/Kjøkken 1001 34.9 m² 1 1
Sov 2 1002 11.7 m² 1 1
Sov 1 1003 8.4 m² 1 1
Gang 1004 4.0 m² 0 2
Entré/Gang 1005 5.6 m² 0 1
Bad/vask 1006 6.8 m² 0 1
Sportsbod 1007 5.1 m² 1 1
Terrasse 1008 14.9 m² 0 1
Stue/Kjøkken 1101 31.8 m² 1 1
Sov 1 1102 6.4 m² 1 1
Gang 1103 4.0 m² 0 2
Entré 1104 2.8 m² 0 1
Bad/vask 1105 6.7 m² 0 1
Sportsbod 1106 5.1 m² 1 1
Terrasse 1107 14.9 m² 0 1
Stue/Kjøkken 1201 36.4 m² 1 1
Sov 2 1202 11.3 m² 1 1
Sov 3 1203 12.1 m² 1 1
Gang 1204 6.1 m² 0 2
Entré 1205 4.7 m² 0 1
Bad/vask 1206 6.6 m² 0 1
Sportsbod 1207 5.1 m² 1 1
Terrasse 1208 15.1 m² 0 1
Stue/Kjøkken 1301 41.4 m² 1 1
Sov 2 1302 7.5 m² 1 1
Sov 1 1303 7.6 m² 1 1
Gang 1304 4.1 m² 0 2
Entré 1305 4.7 m² 0 1
Bad/vask 1306 7.2 m² 0 1
Sportsbod 1307 5.1 m² 1 1
Terrasse 1308 15.3 m² 0 1

Fasader

Carport

Nord
Materiale
Tre
Taktype
Saltak
Vinduer
0
Dører
0
Synlige etasjer
1
Vest
Materiale
Tre
Taktype
Flatt tak
Vinduer
0
Dører
0
Synlige etasjer
1
Sør
Materiale
Tre
Taktype
Flatt tak
Vinduer
0
Dører
0
Synlige etasjer
1
Øst
Materiale
Tre
Taktype
Flatt tak
Vinduer
0
Dører
0
Synlige etasjer
1

Hendelser

14.04.2026 Melding om arbeid ved gbnr. 445/506 på Manger - arbeidet der er spredt seg vidare og det foregår no sprenging på nabotomten gbnr. 445/177
10.06.2025 Svar på mottatt merknad til søknad frå Manger handelseiendom AS - gbnr. 445/506
16.05.2025 Ettersending av nabo merknad til sak - gbnr. 445/506