Extension UnderBehandling Leilighetsbygg

Tilbygg og rehabilitering i leilighetsbygg, Tordenskiolds gate 101, Drammen

📍 Tordenskiolds gate 101

Nøkkelinfo

Sakstype
Tilbygg
Bygningstype
Leilighetsbygg
Bruksareal
70 m²
Kommune
Drammen
Fylke
Buskerud
Saksnummer
25/41115
Fase
Under behandling

Om byggesaken

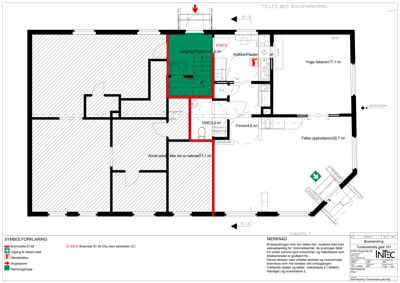
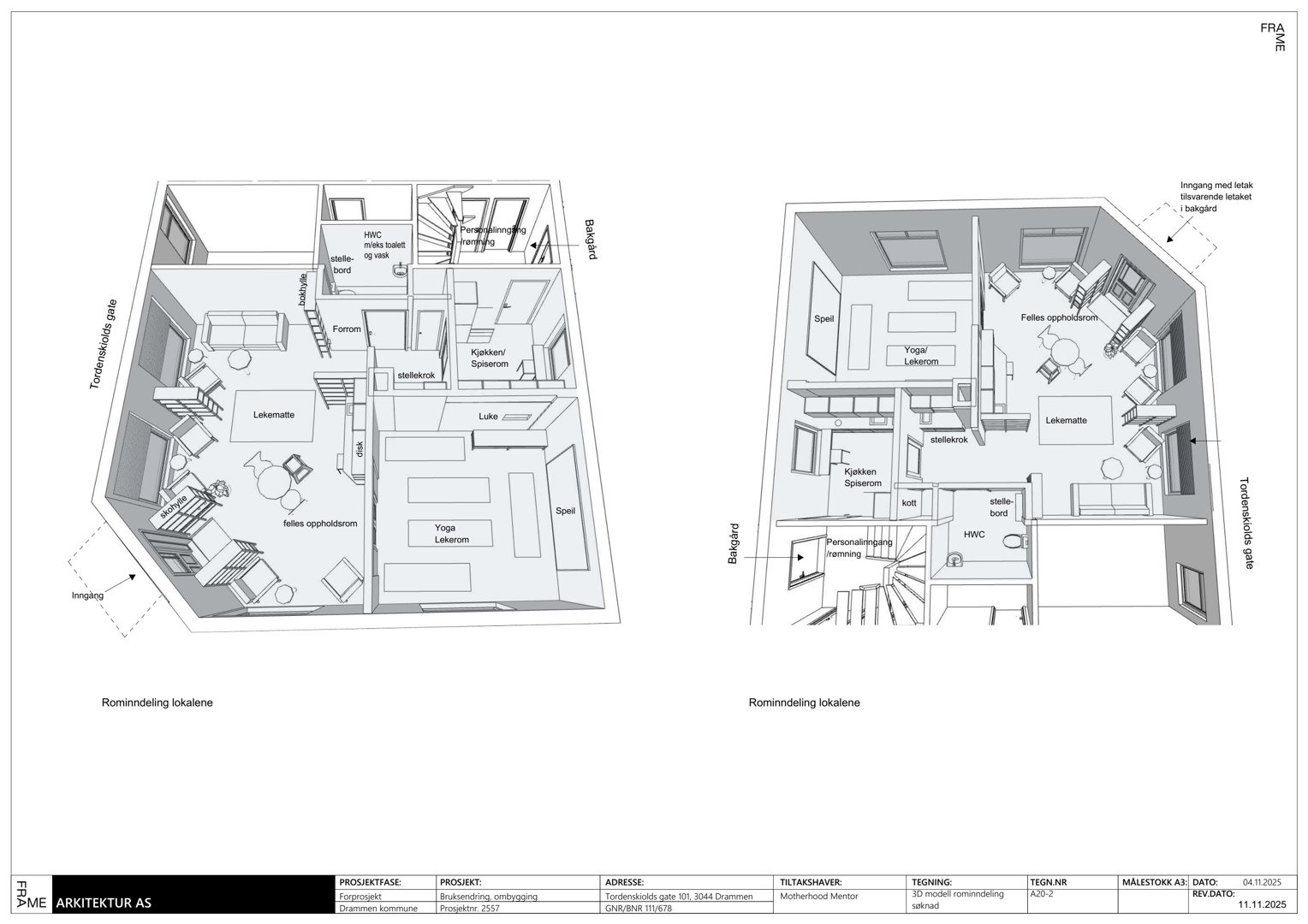
Prosjektet omfatter bruksendring og ombygging av en seksjon i et eksisterende leilighetsbygg i Tordenskiolds gate 101, Drammen. Bygget er et eldre trebygget leilighetsbygg med seksjoner, hvor seksjon 1 tidligere har vært butikk og nå skal omgjøres til et foreldreressurssenter med funksjoner som yoga/lekerom, felles oppholdsrom, kjøkken, pauserom og handikaptoalett. Det er planlagt installasjon av vegghengt ventilasjonsaggregat, og det er gjort vurderinger av støy og flomfare i henhold til gjeldende forskrifter. Fasadeendringer er minimale og omfatter blant annet utkraging over inngangsparti som eventuelt kan trekkes tilbake for å unngå søknadsplikt. Bygget ligger innenfor hensynssoner for flom og kulturmiljø, og det er utarbeidet nødvendige utredninger og erklæringer om ansvarsrett. Det foreligger samtykke fra Arbeidstilsynet for arbeidsmiljøet i lokalene. Prosjektet er i søknadsfase med pågående dialog om plankrav og fasadeendringer.

Arbeidsomfang

- Tilbygg: Nytt inngangsparti/foreldreressurssenter til leilighetsbygget. - Fasadeendring: Innsetting av nytt vindu i fasaden (tilbake til tidligere utforming for å unngå plankrav). - Installasjon: Montering av vegghengt ventilasjonsaggregat (Vito). - Teknisk utredning: Levering av støy- og flomutredning samt erklæringer om ansvarsrett for ventilasjonsanlegget.

Produkter og materialer

Gulv Lekematte

Antall: 1

Lekematte 2,1 x 1,4 m i yoga/lekerom

Mykt gulvbelegg for lekerom og yoga

Bad Handikaptoalett

Antall: 1

Utvidet handikaptoalett i lokalene

Toalett tilpasset funksjonshemmede

Tømrer Innvendige vegger og dører

🧱 Tre og gips

Riving av to veggpartier, utvidelse av toalett, flytting av kjøkken, nye vegger og dører i lokalene

Innvendige ombygginger for tilpasning til ny bruk

Brannvern Branntegninger og EI 30 dører

Branntegninger viser branncelle EI 60, branndør EI 30-CSa med selvlukker, håndslukker og angrepsvei

Brannsikringstiltak i lokalene

Vinduer Varevinduer med lydisolering

Antall: 2

Vinduer mot Tordenskiolds gate skal ha lydisolering Rw+Ctr = 38 dB, monteres varevinduer på innsiden av eksisterende vinduer

Lydisolerte vinduer for å tilfredsstille krav til støy i felles oppholdsrom

Grunnarbeid Ingen nye grunnarbeider

Ingen nye grunnarbeider da tiltaket gjelder bruksendring og ombygging i eksisterende bygg

Ingen grunnarbeider nødvendig

Fasade Utkraging/letak over inngangsparti

🧱 Tre

Antall: 1

Utkraging på 0,9 m over inngangsparti på hjørnet, 3 m over gateplan, delvis skjerming på hver side, ikke undertøttet

Letak over inngangsparti, kan eventuelt fjernes for å unngå søknadsplikt

Kjøkken Kjøkken med enkel servering

Antall: 1

Kjøkken/pauserom med mulighet for enkel servering og selvbetjening, med krav til avtrekk ved matlaging

Kjøkken for ansatte og besøkende i foreldreressurssenteret

Ventilasjon Vegghengt ventilasjonsaggregat

Antall: 1

Vegghengt ventilasjonsaggregat installeres av VITO TEKNISK ENTREPRENØR AS, luftmengdeberegning utført av FREMJE VVS AS

Ventilasjonsanlegg for å sikre tilfredsstillende inneklima i foreldreressurssenteret

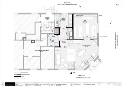
Plantegning

Enebolig 120.5 m²

Etasje 1 120.5 m²

Rom Areal Vinduer Dører
Stue 101 21.0 m² 1 1
Soverom 102 6.3 m² 1 1
Kjøkken 103 14.5 m² 1 1
Spisestue 104 12.4 m² 1 1
WC 105 2.5 m² 0 1
Vaskerom 106 2.5 m² 0 1
Trapperom 107 7.8 m² 0 1
Butikk 108 33.6 m² 1 1
Butikk 109 12.6 m² 1 1
Butikk 110 19.4 m² 1 1

Foreldreressursenter 142.0 m²

Etasje 1 142.0 m²

Rom Areal Vinduer Dører
Inngang Inngang 7.4 m² 0 1
Kjøkken Kjøkken 7.4 m² 0 1
Yoga / lekerom Yoga 17.1 m² 0 1
Felles oppholdsrom Felles 30.7 m² 1 1
HWC HWC 3.9 m² 0 1
Forrom Forrom 4.6 m² 0 1
U01 U01 77.1 m² 1 1
Trapperom Trapperom 7.4 m² 0 1
Pause Pause 7.4 m² 0 1
Bryggeri/Kjøkken B.K 3.9 m² 0 1
Lekematte Lekematte 2.8 m² 0 0
Felles oppholdsrom Felles oppholdsrom 30.7 m² 0 0
Yoga / lekerom Yoga / lekerom 17.1 m² 0 0

Fasader

Enebolig

Sør
Materiale
Tre
Taktype
Saltak
Høyde
3.3 m
Vinduer
8
Dører
1
Synlige etasjer
2
Øst
Materiale
Tre
Taktype
Saltak
Høyde
3.3 m
Vinduer
3
Dører
1
Synlige etasjer
2
Nord
Materiale
Tre
Taktype
Saltak
Høyde
3.3 m
Vinduer
5
Dører
1
Synlige etasjer
2
Vest
Materiale
Tre
Taktype
Saltak
Vinduer
3
Dører
1
Synlige etasjer
2

Eksisterende bygg

Nordvest
Materiale
Tre
Taktype
Saltak
Vinduer
11
Dører
1
Synlige etasjer
2

Hendelser

08.04.2026 Tordenskiolds gate 101, Suppleringer til søknad søknad
08.04.2026 Tordenskiolds gate 101, vi trenger flere opplysninger for å behandle søknaden din klage
10.03.2026 Tordenskiolds gate 101, etterspør status på saken
20.02.2026 Tordenskiolds gate 101 Gjennomføringsplan 111/678
20.02.2026 Tordenskiolds gate 101, Oversendelse av supplerende opplysninger
23.01.2026 Tordenskiolds gate 101, vi trenger flere opplysninger for å behandle søknaden din søknad
23.01.2026 Tordenskiolds gate 101 Gjennomføringsplan 111/678
23.01.2026 Tordenskiolds gate 101, spørsmål om sakens status
22.01.2026 Tordenskiolds gate 101 Gjennomføringsplan 111/678
15.01.2026 Tordenskiolds gate 101, vi innvilger søknaden om samtykke søknad
27.11.2025 Tordenskiolds gate 101, kopi:Vi trenger flere opplysninger for å behandle søknaden - varsel om avslag på søknad avslag
26.11.2025 Tordenskiolds gate 101, søknad om tillatelse i ett trinn søknad