Rendering
3D-visualiseringer (renderinger) av en planlagt bygning, inkludert bakgård og gavlfasade.
Tilbygg og rehabilitering av leilighetsbygg i Webergs gate 7-9, Drammen
📍 Webergs gate 7-9
Nøkkelinfo
- Sakstype
- Tilbygg
- Bygningstype
- Leilighetsbygg
- Bruksareal
- 1,946 m²
- Boenheter
- 33
- Kommune
- Drammen
- Fylke
- Buskerud
- Gnr / Bnr
- 45 / 5176
- Saksnummer
- 25/42316
- Fase
- Rammetillatelse
Om byggesaken
Produkter og materialer
🧱 REI 120-M A2-s1,d0 brannvegger, EI60 brannglass/gardiner
Brannvegger mot nabobygg, brannglass i vinduer i brannvegger, brannmotstand på dører
Brannskiller og brannmotstand for å hindre brannspredning
Antall: 6
Brannmotstand EI30CSa for trapperomsdører, EI60CSa for tekniske rom og avfallsrom
Brannklassifiserte ytterdører og dører til tekniske rom og trapperom
🧱 Teglstein, treverk, mur, puss
Fasade med variasjon i farge og oppdeling, tilpasset historiske byggeskikk
Fasadeuttrykk som ivaretar kulturmiljø og historiske linjer
Antall: 16
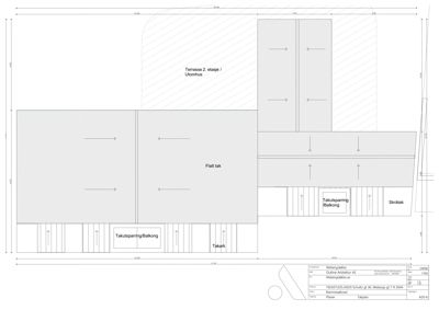
Felles terrasse på 1396 m² i 2. etasje, balkonger i fasader øst og sør
Felles uteoppholdsareal og private balkonger for beboere
🧱 Kanaler i A2-s1,d0 materiale
Separate ventilasjonsanlegg for bolig og næring, branntetting og røykventilasjon
Ventilasjonsanlegg med brannsikker utførelse
🧱 Teglstein, armert gress, gress
Opparbeidede utearealer med teglstein og armert gress, felles terrasse i 2. etasje
Utearealer med slitesterke og estetiske gulvflater
🧱 Ubrennbare materialer A2-s1,d0
Antall: 4
3 stk innvendige trapper (Tr2) og 1 stk utvendig spiraltrapp, røykventilasjon med røykluker 1m2
Trapper med brannmotstand og røykventilasjon for sikker rømning
Overbygd parkeringsareal med sprinkleranlegg, 7 parkeringsplasser, frikjøp av 6 plasser
Parkering for beboere og næringslokaler med tilhørende brannsikring
🧱 Teglstein, betongtakstein, metallplater, taktekking klasse BROOF(t2)
Takfarge sort eller grå, takarkene nedskalert, ikke grønt tak
Tak tilpasset byens taklandskap og kulturmiljø
Antall: 2
Heis i byggverket med brannmotstand EI60 for heissjakt
Heis for tilgjengelighet og universell utforming
Brannalarmanlegg NS3960:2019, nødlys NS-EN 1838, direkte varsling til 110-sentral
Brannalarm og nødlys for sikkerhet og rømningsveier
Overvann håndteres på egen grunn, tilknytning til offentlig vann og avløp
System for overvannshåndtering og sanitærinstallasjoner
🧱 3-lags energiglass, lydisolerende glass for gul støysone
Antall: 14
Vinduer i fasader med krav til brannmotstand EI60 eller branngardin, lydisolerende glass i gul støysone
Fasadevindu med god isolasjon og lydreduksjon, tilpasset brannkrav
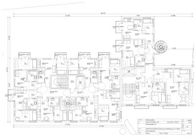
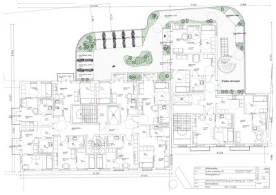
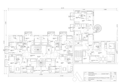
Plantegning
Enebolig 1,946.2 m²
Etasje 2 1,396.0 m²
| Rom | Areal | Vinduer | Dører |
|---|---|---|---|
| Kjøkken/Stue U01 | 11.4 m² | 2 | 1 |
| Sov U02 | 7.1 m² | 1 | 1 |
| Kjøkken/Stue U03 | 11.4 m² | 2 | 1 |
| Sov U04 | 7.1 m² | 1 | 1 |
| Kjøkken/Stue U05 | 16.4 m² | 2 | 1 |
| Sov U06 | 7.2 m² | 1 | 1 |
| Kjøkken/Stue U07 | 29.6 m² | 2 | 1 |
| Sov U08 | 8.4 m² | 1 | 1 |
| Kjøkken/Stue U09 | 34.7 m² | 2 | 1 |
| Sov U10 | 9.3 m² | 1 | 1 |
| Kjøkken/Stue U11 | 28.8 m² | 2 | 1 |
| Sov U12 | 7.4 m² | 1 | 1 |
| Kjøkken/Stue U13 | 30.8 m² | 2 | 1 |
| Sov U14 | 9.8 m² | 1 | 1 |
| Kjøkken/Stue U15 | 29.6 m² | 2 | 1 |
| Sov U16 | 7.0 m² | 1 | 1 |
| Kjøkken/Stue U17 | 26.6 m² | 2 | 1 |
| Sov U18 | 7.0 m² | 1 | 1 |
| Kjøkken/Stue U19 | 27.0 m² | 2 | 1 |
| Sov U20 | 7.0 m² | 1 | 1 |
| Kjøkken/Stue U21 | 14.0 m² | 2 | 1 |
| Sov U22 | 7.0 m² | 1 | 1 |
| Kjøkken/Stue U23 | 10.6 m² | 2 | 1 |
| Sov U24 | 9.8 m² | 1 | 1 |
| Kjøkken/Stue U25 | 10.6 m² | 2 | 1 |
| Sov U26 | 9.8 m² | 1 | 1 |
| Kjøkken/Stue U27 | 24.7 m² | 2 | 1 |
| Sov U28 | 7.1 m² | 1 | 1 |
| Kjøkken/Stue U29 | 24.7 m² | 2 | 1 |
| Sov U30 | 7.2 m² | 1 | 1 |
| Kjøkken/Stue U31 | 18.3 m² | 2 | 1 |
| Sov U32 | 9.0 m² | 1 | 1 |
| Kjøkken/Stue U33 | 12.4 m² | 2 | 1 |
| Bad U34 | 4.3 m² | 0 | 1 |
| Entre U35 | 2.7 m² | 0 | 1 |
| Bad U36 | 4.3 m² | 0 | 1 |
| Entre U37 | 2.9 m² | 0 | 1 |
| Bad U38 | 4.4 m² | 0 | 1 |
| Entre U39 | 2.7 m² | 0 | 1 |
| Bad U40 | 3.9 m² | 0 | 1 |
| Entre U41 | 3.2 m² | 0 | 1 |
| Bad U42 | 4.2 m² | 0 | 1 |
| Entre U43 | 3.9 m² | 0 | 1 |
| Bad U44 | 3.6 m² | 0 | 1 |
| Entre U45 | 3.9 m² | 0 | 1 |
| Bad U46 | 2.8 m² | 0 | 1 |
| Entre U47 | 1.8 m² | 0 | 1 |
| Bad U48 | 2.7 m² | 0 | 1 |
| Entre U49 | 3.0 m² | 0 | 1 |
| Bad U50 | 4.7 m² | 0 | 1 |
| Entre U51 | 4.9 m² | 0 | 1 |
| Stue/Kjøkken U52 | 12.2 m² | 2 | 1 |
| Sov U53 | 7.4 m² | 1 | 1 |
| Stue/Kjøkken U54 | 30.8 m² | 2 | 1 |
| Sov U55 | 9.3 m² | 1 | 1 |
| Kjøkken/Stue U56 | 27.7 m² | 2 | 1 |
| Sov U57 | 8.4 m² | 1 | 1 |
| Kjøkken/Stue U58 | 12.4 m² | 2 | 1 |
| Bad U59 | 4.3 m² | 0 | 1 |
| Entre U60 | 2.7 m² | 0 | 1 |
| Bad U61 | 4.3 m² | 0 | 1 |
| Entre U62 | 2.9 m² | 0 | 1 |
| Bad U63 | 4.4 m² | 0 | 1 |
| Entre U64 | 2.7 m² | 0 | 1 |
| Bad U65 | 3.9 m² | 0 | 1 |
| Entre U66 | 3.2 m² | 0 | 1 |
| Bad U67 | 4.2 m² | 0 | 1 |
| Entre U68 | 3.9 m² | 0 | 1 |
| Bad U69 | 3.6 m² | 0 | 1 |
| Entre U70 | 3.9 m² | 0 | 1 |
| Bad U71 | 2.8 m² | 0 | 1 |
| Entre U72 | 1.8 m² | 0 | 1 |
| Bad U73 | 2.7 m² | 0 | 1 |
| Entre U74 | 3.0 m² | 0 | 1 |
| Bad U75 | 4.7 m² | 0 | 1 |
| Entre U76 | 4.9 m² | 0 | 1 |
| Felles terrasse U77 | 1,396.0 m² | 0 | 0 |
| Terrasse BTA UTOMHUS - PRIVAT | 3.0 m² | 0 | 0 |
| Kjøkken/Stue Kjøkken/Stue | 12.4 m² | 1 | 1 |
| Bad Bad | 4.3 m² | 0 | 1 |
| Soverom Sov | 9.0 m² | 1 | 1 |
| Leilighet LEILIGHET | 27.7 m² | 0 | 0 |
Etasje 1 458.6 m²
| Rom | Areal | Vinduer | Dører |
|---|---|---|---|
| Teknisk rom TEKNSISK | 13.5 m² | 0 | 1 |
| Teknisk rom TEKNSISK | 3.6 m² | 0 | 1 |
| Næring NÆRING | 24.4 m² | 3 | 0 |
| Næring NÆRING | 25.0 m² | 1 | 0 |
| Rømningsvei RØMNINGSVEI | 19.9 m² | 0 | 0 |
| Hus A BTA - HUS A | 82.3 m² | 1 | 1 |
| Næring NÆRING | 25.0 m² | 0 | 0 |
| Hus A BTA - HUS A | 148.4 m² | 2 | 1 |
| Trapp TRAPP | 19.5 m² | 0 | 0 |
| Hus HUS | 2.3 m² | 0 | 1 |
| Søppelrom SØPPELROM | 59.8 m² | 0 | 0 |
| Næring NÆRING | 29.7 m² | 1 | 0 |
| Hus B BTA - HUS B | 35.3 m² | 2 | 1 |
| Trapp TRAPP | 20.0 m² | 0 | 0 |
| Hus HUS | 2.3 m² | 0 | 1 |
| Hus A BT-A-HUS A | 141.1 m² | 3 | 2 |
| Hus B BT-A-HUS B | 38.3 m² | 2 | 1 |
| Gang 101 | 0.0 m² | 0 | 0 |
| Vaskerom 102 | 0.0 m² | 0 | 0 |
| Bod 103 | 0.0 m² | 0 | 0 |
| Teknisk rom 104 | 0.0 m² | 0 | 0 |
| Garasje 105 | 0.0 m² | 0 | 0 |
Etasje 0 91.6 m²
| Rom | Areal | Vinduer | Dører |
|---|---|---|---|
| Teknisk rom BTA-HUS B | 91.6 m² | 0 | 0 |
| Heis HEIS | 2.3 m² | 0 | 1 |
| Bod BOD | 6.9 m² | 0 | 1 |
| Boder BODER | 54.9 m² | 0 | 7 |
| Teknisk rom TEKNSISK | 13.5 m² | 0 | 1 |
| Rømningsvei RØMNINGSVEI | 19.9 m² | 0 | 0 |
| Næring NÆRING | 24.4 m² | 1 | 1 |
| Hus A BTA - HUS A | 82.3 m² | 0 | 1 |
| Trapp TRAPP | 19.5 m² | 0 | 0 |
| Hus HUS | 2.3 m² | 0 | 1 |
| Hus B BTA - HUS B | 35.3 m² | 0 | 1 |
| Søppelrom SØPPELROM | 59.8 m² | 0 | 1 |
Etasje 3 0.0 m²
| Rom | Areal | Vinduer | Dører |
|---|---|---|---|
| Stue 301 | 45.5 m² | 2 | 2 |
| Kjøkken 302 | 18.0 m² | 1 | 1 |
| Bad 303 | 6.5 m² | 0 | 2 |
| Gang 304 | 12.0 m² | 0 | 3 |
| Soverom 305 | 14.0 m² | 1 | 2 |
| Soverom 306 | 15.5 m² | 1 | 2 |
| Sovegang 307 | 18.0 m² | 1 | 2 |
| Bad 308 | 7.5 m² | 0 | 2 |
| Sovegang 309 | 16.0 m² | 1 | 2 |
| Bad 310 | 8.0 m² | 0 | 2 |
| Sovegang 311 | 17.5 m² | 1 | 2 |
| Bad 312 | 9.0 m² | 0 | 2 |
Leilighet 1,046.5 m²
Etasje 3 1,046.5 m²
| Rom | Areal | Vinduer | Dører |
|---|---|---|---|
| Sov A-1 | 9.8 m² | 0 | 1 |
| Bad A-2 | 4.2 m² | 0 | 1 |
| Kjøkken/Stue A-3 | 10.6 m² | 2 | 1 |
| Entre A-4 | 3.2 m² | 0 | 1 |
| Sov A-5 | 9.8 m² | 0 | 1 |
| Kjøkken/Stue A-6 | 24.7 m² | 2 | 1 |
| Sov A-7 | 7.1 m² | 0 | 1 |
| Kjøkken/Stue A-8 | 24.7 m² | 2 | 1 |
| Sov A-9 | 7.1 m² | 0 | 1 |
| Kjøkken/Stue A-10 | 11.4 m² | 2 | 1 |
| Sov A-11 | 7.2 m² | 0 | 1 |
| Kjøkken/Stue A-12 | 6.4 m² | 1 | 1 |
| Bad A-13 | 4.3 m² | 0 | 1 |
| Entre A-14 | 1.8 m² | 0 | 1 |
| Trapp A-15 | 21.1 m² | 0 | 0 |
| Heis A-16 | 2.3 m² | 0 | 0 |
| Inngang Bolig A-17 | 27.1 m² | 0 | 1 |
| Sov B-1 | 8.0 m² | 0 | 1 |
| Kjøkken/Stue B-2 | 13.0 m² | 1 | 1 |
| Entre B-3 | 2.7 m² | 0 | 1 |
| Kjøkken/Stue B-4 | 15.6 m² | 2 | 1 |
| Bad B-5 | 3.6 m² | 0 | 1 |
| Sov B-6 | 7.0 m² | 0 | 1 |
| Inngang Bolig B-7 | 11.7 m² | 0 | 1 |
| Entre B-8 | 4.9 m² | 0 | 1 |
| Sov B-9 | 9.3 m² | 0 | 1 |
| Stue/Kjøkken B-10 | 28.7 m² | 2 | 1 |
| Bad B-11 | 4.7 m² | 0 | 1 |
| Leilighet B-12 | 44.1 m² | 0 | 0 |
| Entre B-13 | 2.9 m² | 0 | 1 |
| Bad B-14 | 4.4 m² | 0 | 1 |
| Stue/Kjøkken B-15 | 12.2 m² | 1 | 1 |
| Leilighet B-16 | 28.8 m² | 0 | 0 |
| Sov B-17 | 7.4 m² | 0 | 1 |
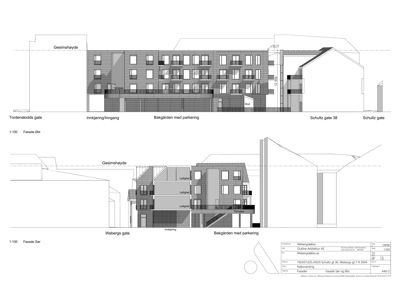
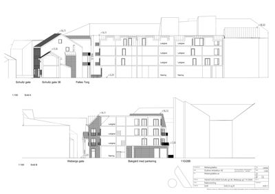
Fasader
Enebolig
- Materiale
- Tre
- Taktype
- Saltak
- Høyde
- 6.5 m
- Mønehøyde
- 8.2 m
- Vinduer
- 5
- Dører
- 1
- Balkonger
- 1
- Synlige etasjer
- 2
- Materiale
- Tre
- Taktype
- Saltak
- Høyde
- 6.5 m
- Mønehøyde
- 8.2 m
- Vinduer
- 4
- Dører
- 1
- Synlige etasjer
- 2
Leilighetshus
- Materiale
- Betong
- Taktype
- Flatt tak
- Høyde
- 16.1 m
- Vinduer
- 14
- Dører
- 2
- Balkonger
- 10
- Synlige etasjer
- 4
- Materiale
- Betong
- Taktype
- Flatt tak
- Høyde
- 16.1 m
- Vinduer
- 10
- Dører
- 1
- Balkonger
- 6
- Synlige etasjer
- 4