ChangeOfUse UnderBehandling Naeringsbygg

Bruksendring til dyreklinikk i Bjørnsons gate 35, Lillestrøm

📍 Bjørnsons gate 35 , 2003 LILLESTRØM

Nøkkelinfo

Sakstype
Bruksendring
Bygningstype
Naeringsbygg
Bruksareal
860 m²
Kommune
Lillestrøm
Fylke
Akershus
Gnr / Bnr
81 / 1603
Saksnummer
25/09751
Fase
Under behandling

Om byggesaken

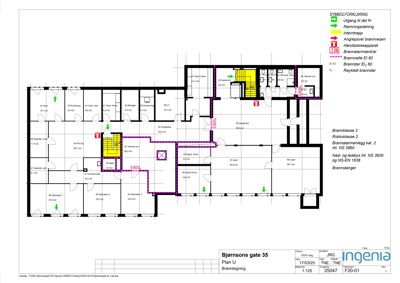
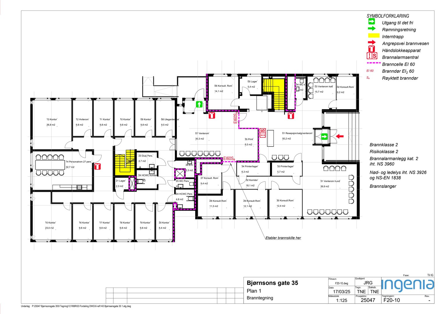
Bruksendring av eksisterende kontorbygg på 860,5 m² i Bjørnsons gate 35 til dyreklinikk med privat tjenesteyting. Tiltaket omfatter ombygging av to etasjer (underetasje og 1. etasje) med rom for konsultasjoner, operasjon, venterom for hund og katt, tekniske rom, personalrom, lager, og tilhørende funksjoner. Bygget har to trapper og er tilpasset brann- og sikkerhetskrav for risikoklasse 2, med branncelleinndeling, brannalarmanlegg, nødlys og ledesystem. Det er installert løfteplattform som del av tiltaket. Bygget har eksisterende ventilasjonsanlegg som tilpasses ny bruk, og det er søkt om unntak fra enkelte energikrav og kommunikasjonsveier grunnet byggets alder og midlertidig bruk. Parkeringssituasjonen er dokumentert og ikke endret. Det er gjennomført omfattende branntekniske vurderinger og tilpasninger i henhold til TEK17. Det foreligger midlertidig brukstillatelse med vilkår om ferdigattest.

Produkter og materialer

Trapper Innvendige trapper

Antall: 2

Trapper med brannmotstand R30, tilrettelagt for rømning

To innvendige trapper som rømningsveier

VVS Løfteplattform

Antall: 1

Løfteplattform montert og godkjent, levert av TKS Heis AS

Løfteplattform for tilgjengelighet og universell utforming

Elektro Brannalarmanlegg og ledesystem

Brannalarmanlegg kategori II med direkte varsling, ledesystem iht. NS 3926

Brannalarmanlegg og nødlys for sikker rømning

VVS Sanitærinstallasjoner

Sanitærinstallasjoner prosjektert og utført av Laukas Elektriske AS

Sanitærinstallasjoner tilpasset dyreklinikkens behov

Dører Brann- og rømningsdører

Dører med brannmotstand EI2 60-Sa i branncellebegrensende vegger

Brannklassifiserte dører i brannceller og rømningsveier

Vinduer Energiglassvinduer

🧱 To-lags lavenergiglass, karm av tre

Vinduer fra 1949 på vestfasade byttes ut med vinduer etter dagens krav

Utskifting av eldre vinduer til moderne energiglassvinduer for bedre isolasjon

Ventilasjon Ventilasjonsanlegg

Eksisterende ventilasjonsaggregat gjenbrukes, tilpasses ny bruk og krav

Ventilasjonsanlegg prosjektert for å hindre brann- og røykspredning

Mur Branncellebegrensende konstruksjoner

Branncellevegger med EI 60 og brannmotstand i henhold til TEK17

Branncelleinndeling for å begrense brannspredning

Fasade Betong- og bindingsverksvegger med isolasjon

🧱 Betongvegger med 70-100 mm isolasjon, bindingsverk med 150-200 mm isolasjon

Vegger fra 1954 og 1995 med ulik isolasjonstykkelse, delvis påforing

Eksisterende yttervegger med isolasjon i henhold til byggeår

Tømrer Innvendige vegger og himlinger

Oppføring av lette vegger og himlinger ved ombygging

Innvendige konstruksjoner tilpasset ny rominndeling og funksjon

Tak Flatt tak med isolasjon

🧱 Betong med 100 mm isolasjon

Taktekking tilfredsstiller klasse BROOF(t2)

Eksisterende flatt tak med isolasjon i henhold til byggeår

Grunnarbeid Parkeringsareal

Antall: 20

Eksisterende parkeringsplasser dokumentert, ingen endring i antall

Parkeringsplasser i tråd med godkjent situasjon og reguleringsplan

Brannvern Håndslokkeapparater

Pulverapparater min 6 kg ABC-pulver eller skum/vannapparater min 9 liter

Slokkeutstyr plassert med maks 30 m avstand i alle deler av bygget

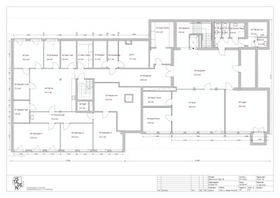
Plantegning

Kontorbygg 860.5 m²

Etasje 1 860.5 m²

Rom Areal Vinduer Dører
Resepsjon/salg/venterom 01 50.2 m² 0 3
Konsult.Rom 02 9.2 m² 1 1
Venterom katt 03 15.7 m² 0 2
WC k 04 3.8 m² 0 1
Lager 05 5.4 m² 0 1
Konsult. Rom 06 14.1 m² 1 1
Venterom 07 39.3 m² 0 2
Utegardsrom 08 9.5 m² 1 1
Kontor 09 9.8 m² 1 1
Kontor 10 9.8 m² 1 1
Kontor 11 9.8 m² 1 1
Hvilerom 12 9.8 m² 1 1
Kontor 13 26.8 m² 1 1
Personalrom 14 32.7 m² 0 1
Kontor 15 23.0 m² 1 1
Kontor 16 9.8 m² 1 1
Kontor 17 9.8 m² 1 1
Kontor 18 9.8 m² 1 1
Kontor 19 9.8 m² 1 1
Kontor 20 8.4 m² 1 1
Lager 21 2.3 m² 0 1
Dusj Pers. 23 4.7 m² 0 1
HCWC kunder 24 3.5 m² 0 1
WC Pers. 25 2.9 m² 0 1
B.K. 26 3.3 m² 0 1
Konsult. Rom 27 9.4 m² 1 1
Konsult.Rom 28 11.5 m² 1 1
Konsult.Rom 29 12.1 m² 1 1
Konsult.Rom 30 12.4 m² 1 1
Venterom hund 31 39.9 m² 0 2
Korridor 32 18.1 m² 0 4
Printer/lager 33 5.7 m² 0 1
Printer/lager 34 6.3 m² 0 1
Print 35 8.5 m² 0 1

Hendelser

09.04.2026 25/09751-16 81/1603 Søknad om ferdigattest
13.03.2026 25/09751-15 81/1603 Utsatt frist for innsendelse av ferdigattest innvilges - Ny frist er 27.03.2026
26.02.2026 25/09751-14 81/1603 Anmodning om utsatt frist for søknad om ferdigattest
10.02.2026 25/09751-13 81/1603 Utsatt frist for innsendelse av ferdigattest innvilges - Ny frist er 01.03.2026
10.02.2026 25/09751-12 81/1603 Anmodning om utsatt frist for søknad om ferdigattest
27.01.2026 25/09751-9 81/1603, Bjørnsons gate 35 - Midlertidig brukstillatelse - midlertidig bruksendring til dyreklinikk
26.01.2026 25/09751-8 81/1603/0/0 Gjennomføringsplan
26.05.2025 25/09751-6 81/1603, Bjørnsons gate 35 - Godkjent midlertidig bruksendring til dyreklinikk
22.05.2025 25/09751-5 81/1603 Tilsvar til mangelbrev - Situasjonskart og parkering
12.05.2025 25/09751-4 81/1603, Bjørnsons gate 35 - mangelbrev til søknad om bruksendring til dyreklinikk