ChangeOfUse Ferdigattest Naeringsbygg

Innredning av fast-food restaurant i Folabruveien 2, Asker

📍 Folabruveien 10 , 1384 ASKER

Nøkkelinfo

Sakstype
Bruksendring
Bygningstype
Naeringsbygg
Bruksareal
224 m²
Kommune
Asker
Fylke
Akershus
Gnr / Bnr
50 / 434
Saksnummer
25/2733
Fase
Ferdigattest

Om byggesaken

Innredning av en fast-food restaurant i eksisterende næringslokale på 224 m² i Folabruveien 2, Asker. Lokalet omfatter serveringsareal, anretning, oppvask, personalrom, lager og WC, med tekniske installasjoner som klimaanlegg og avtrekkskanal for frityr/grill ført ut på fasade og over tak. Avtrekkskanalen er kledd med samme materiale som fasaden for estetisk tilpasning. Det er etablert to uavhengige rømningsveier til terreng, og tekniske anlegg for vann, avløp og sprinkler er ført inn i lokalet. Tiltaket inkluderer montering av trekonstruksjoner, sanitærinstallasjoner og ventilasjon. Arbeidet er utført i henhold til gjeldende forskrifter og med godkjenning fra relevante myndigheter, inkludert samtykke fra sameiets styre og Arbeidstilsynet. Ferdigattest er gitt, og tiltaket er i bruk som fast-food restaurant.

Arbeidsomfang

- Innredning av serveringslokale til fast-food restaurant - Tømrerarbeid og montering av trekonstruksjoner (innvendig) - Utførelse av innvendig sanitærarbeid (vann og avløp) - Installasjon av klimaanlegg og avtrekk fra serveringslokale

Produkter og materialer

Tømrer Montering av trekonstruksjoner

🧱 Tre

Tømrerarbeid og montering av trekonstruksjoner i innredning

Bygningsmessige arbeider for innredning av restaurant

Dører Rømningsdører

Antall: 2

To uavhengige rømningsveier med dører direkte til terreng

Rømningsdører i serveringslokalet

Grunnarbeid Tekniske anlegg tilført lokalet

Vann, avløp, sprinkleranlegg og tekniske føringer etablert i lokalet

Tekniske installasjoner for brannslukking og sanitær

Fasade Fasadeoverflate for avtrekkskanal

🧱 Trepanel

Antall: 1

Avtrekkskanal kledd med samme overflate som eksisterende trefasade

Estetisk tilpasning av ny avtrekkskanal på fasade

Ventilasjon Klimaanlegg for serveringslokale

Antall: 1

Montering av prosjektert klimaanlegg i serveringslokalet

Klimaanlegg for ventilasjon og inneklima i restaurantlokalet

Ventilasjon Avtrekkskanal for frityr/grill

🧱 Kledd med samme overflate som fasaden

Antall: 1

Ny avtrekkskanal ført på utvendig fasade til over tak, med fett- og luktfilter, UV-teknologi og syklonvifte/jet-hette

Avtrekkskanal for fett og lukt fra frityr og grill, med støy- og brannsikring

VVS Innvendig sanitærinstallasjon

Utførelse av innvendig sanitærarbeid i restaurantlokalet

Vann- og avløpsinstallasjoner for kjøkken og personalrom

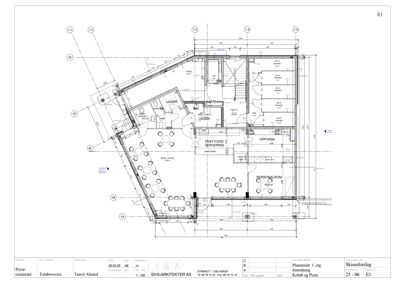
Plantegning

Pizza/restaurant 224.0 m²

Etasje 1 224.0 m²

Rom Areal Vinduer Dører
Inngang 101 22.4 m² 0 2
Heis 102 4.0 m² 0 1
Lager 103 14.0 m² 0 1
Lager 104 14.0 m² 0 1
Gang 105 7.6 m² 0 2
Bod 49 106 6.3 m² 0 1
Bod 50 107 5.0 m² 0 1
Bod 51 108 5.0 m² 0 1
Bod 52 109 4.7 m² 0 1
Bod 53 110 4.7 m² 0 1
Næring - servering 111 145.9 m² 0 1
Anretning 112 14.0 m² 0 1
Oppvask 113 4.8 m² 0 1
Personalrom 114 16.9 m² 0 1
Gard (personal) 115 4.0 m² 0 1
WC-HC 116 4.0 m² 0 1
Gard 117 4.0 m² 0 1
Trapp 101 118 21.1 m² 0 0
Pizza 119 0.0 m² 0 1

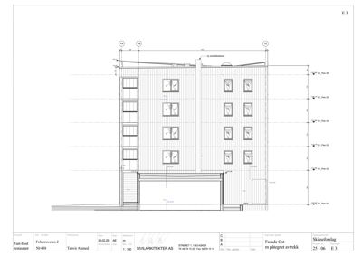
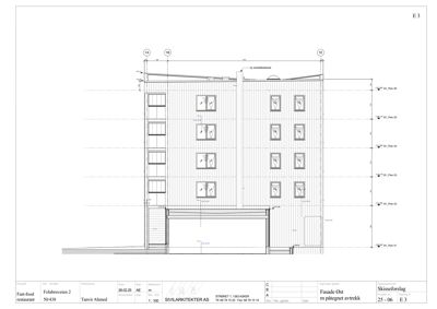
Fasader

Fast-food restaurant

Sør
Materiale
Tre
Taktype
Pulttak
Høyde
10.8 m
Mønehøyde
12.5 m
Vinduer
20
Dører
1
Balkonger
4
Synlige etasjer
4
Øst
Materiale
Tre
Taktype
Flatt tak
Høyde
4.0 m
Mønehøyde
4.0 m
Vinduer
14
Dører
1
Synlige etasjer
4
Syd
Materiale
Tre
Taktype
Flatt tak
Høyde
12.4 m
Vinduer
23
Dører
1
Balkonger
5
Synlige etasjer
4

Hendelser

21.04.2026 50/434 Folabruveien 2 - Ferdigattest for innredning av fast-food restaurant
08.04.2026 50/434 Folabruveien 2 - Søknad om ferdigattest rammetillatelse
02.03.2026 50/434 Folabruveien 2 - Supplering av søknad supplering
15.09.2025 50/434 Folabruveien 2 - Tillatelse til tiltak i ett trinn for innredning av fast-food restaurant byggetillatelse
12.09.2025 50/434 Folabruveien 2 - Komplettering av søknad søknad
12.09.2025 50/434 Folabruveien 2 - Ufullstendig søknad om innredning av fast-food restaurant søknad
22.08.2025 50/434 Folabruveien 2 - Søknad om innredning av fast-food restaurant søknad