ChangeOfUse Rammetillatelse Naeringsbygg

Bruksendring til lager og verksted i Gudbrandsdalsvegen 2552

📍 Gudbrandsdalsvegen 2552 , 2660 DOMBÅS

Nøkkelinfo

Sakstype
Bruksendring
Bygningstype
Naeringsbygg
Bruksareal
418 m²
Kommune
Dovre
Fylke
Innlandet
Gnr / Bnr
8 / 53
Saksnummer
2026/43
Fase
Rammetillatelse

Om byggesaken

Eksisterende bygning tidligere brukt som bensinstasjon og brannstasjon endres til lager og verksted for Felleskjøpet. Bygget har et totalt areal på 418,4 m² fordelt på to etasjer, med kaldtlager i underetasjen og skruflate/verksted i hovedetasjen. Fasadeendringer inkluderer tetting av port og montering av nye mørke plater. Utomhusarealet disponeres til parkering, inngjerdet utendørs lagring med maks høyde 3 meter, samt varelevering og kundetrafikk. Det planlegges ikke nye bygg eller endret adkomst. Tiltaket inkluderer også midlertidig bruk av byggegjerder som inngjerding frem til 2027, med krav om permanent løsning senere.

Produkter og materialer

Dører Port og dører

Antall: 4

Tetting av en eksisterende port, 3 nye dører i portområdet, 1 dør i kaldtlager, 1 dør i gang

Dører og porter i bygget som skal tettes eller beholdes

VVS Oljeutskiller

Vurdering av behov for oljeutskiller i underetasjen som skruflate/verksted iht. forurensningsforskriften

Teknisk installasjon for håndtering av oljeholdig avløp ved verkstedbruk

Parkering Parkeringsplasser

Antall: 9

Eksisterende 9 parkeringsplasser, 2 HC-plasser, mulighet for 5 flere oppmerkede plasser

Kunde- og ansattparkering på uteareal

Tømrer Innvendige ombygginger

Eventuelle innvendige ombygginger ikke vurdert i bruksendringen, kan være søknadspliktige

Innvendige tilpasninger for ny bruk som lager og verksted

Fasade Fasadeplater

🧱 Mørke plater, RAL 7024

Nye plater monteres på fasade for å gi bygget mørk farge som tidligere Felleskjøpet-lokalisering

Fasadeendring med nye plater og tetting av eksisterende port

Grunnarbeid Utomhusplan og inngjerding

🧱 Byggegjerder midlertidig, permanent gjerde planlegges

Inngjerding av utendørs lagringsområde med byggegjerder midlertidig til 01.08.2027, senere permanent inngjerding med visuelle hensyn

Inngjerding av uteareal for lagring og varehåndtering

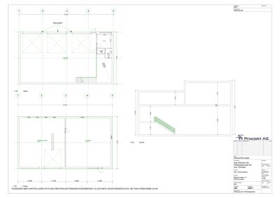
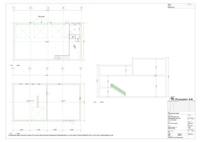
Plantegning

Eks. bensinstasjon 418.4 m²

Etasje 0 198.4 m²

Rom Areal Vinduer Dører
Kaldt lager høydel 001 99.8 m² 0 1
Kaldt lager 002 98.6 m² 0 1

Etasje 1 220.0 m²

Rom Areal Vinduer Dører
Skruflate 101 191.2 m² 0 0
gang 102 1.4 m² 0 1
wc 103 2.8 m² 0 1
Mekanisk 104 24.6 m² 0 0
Nye porter 105 102.0 m² 0 3

Fasader

Eks. bensinstasjon

Nord
Materiale
Betong
Vinduer
1
Dører
1
Synlige etasjer
1
Sør
Materiale
Betong
Vinduer
1
Dører
1
Synlige etasjer
1
Vest
Materiale
Betong
Vinduer
0
Dører
0
Synlige etasjer
1
Øst
Materiale
Betong
Vinduer
0
Dører
0
Synlige etasjer
1

Hendelser

13.04.2026 8/53 - Utomhusplan - bruk av utearealer m.m
07.04.2026 Vedr. 26-9632-4 - Tilbakemelding til utomhusplan - Dombås - gnr. 8 bnr. 53 - Dovre kommune
19.03.2026 8/53 - Utomhusplan - Felleskjøpet Dombås - Uttale
11.02.2026 8/53 - Søknad om bruksendring av tidligere bensinstasjon
16.01.2026 Tilbakemelding til nabovarsel - endring av bygg - Gudbrandsdalsvegen 2552 - gnr. 8 bnr. 53 - Dovre
14.01.2026 Bekreftelse på mottatt søknad - Gnr. - 8/53 - Gudbrandsdalsvegen 2552 - Ett-trinns søknad
09.01.2026 Gnr- 8/53 Gudbrandsdalsvegen 2552 Ett-trinns søknad