ChangeOfUse Rammetillatelse Naeringsbygg

Bruksendring til bofellesskap og overnatting i Nygårdveien 105

📍 Nygårdveien 105 , 8120 NYGÅRDSJØEN

Nøkkelinfo

Sakstype
Bruksendring
Bygningstype
Naeringsbygg
Bruksareal
706 m²
Boenheter
3
Kommune
Gildeskål
Fylke
Nordland - Nordlánnda
Gnr / Bnr
53 / 51
Saksnummer
2025/85
Fase
Rammetillatelse

Om byggesaken

Tidligere eldresenter på 706 m² bruksareal i Nygårdveien 105 omgjøres til en bygning for bofellesskap og overnatting. Bygningen inneholder 2 leiligheter i underetasjen, 1 leilighet i 1. etasje, samt 8 rom med eget bad og tilgang til fellesrom og kjøkken. Bygget har 12 parkeringsplasser og er tilknyttet privat vann- og avløpsanlegg. Brannsikkerhet er dokumentert med rømningsveier fra alle oppholdsrom og installert brannvarslings- og nødlysanlegg med alarmoverføring. Bygningen benyttes hovedsakelig til langtidsutleie, men korttidsutleie forekommer når det er ledig. Det foreligger naboklager knyttet til korttidsutleie, trafikk og støy, men kommunen har gitt tillatelse til bruksendringen med vilkår om skilting av adkomst og parkeringsplasser. Bygningen er oppført i 1985 og ligger ca. 1,5 meter fra nabogrense, uten dispensasjon for dette.

Produkter og materialer

Dører Ytterdør

🧱 Tre

Antall: 2

Fasade sør, tredører

Ytterdører i tre på sørfasade

Dører Ytterdør

🧱 Tre

Antall: 1

Fasade nord, tredør

Ytterdør i tre på nordfasade

Dører Ytterdør

🧱 Tre

Antall: 4

Fasade øst, tredører

Ytterdører i tre på østfasade

Trapper Innvendig trapp

Antall: 2

Innvendige trapper i bygningen

Vinduer Fasadevindu

🧱 Tre ramme

Antall: 12

Fasade vest, trevinduer

Fasadevindu i tre på vestfasade

Vinduer Fasadevindu

🧱 Tre ramme

Antall: 4

Fasade nord, trevinduer

Fasadevindu i tre på nordfasade

Dører Ytterdør

🧱 Tre

Antall: 2

Fasade vest, tredører

Ytterdører i tre på vestfasade

Grunnarbeid Privat vann- og avløpsanlegg

Bygningen tilknyttet privat vannverk og privat avløpsanlegg

Privat vann- og avløpsanlegg til bygningen

Skilting Adkomst- og parkeringsskilt

Skilting av adkomst og parkeringsplasser på eiendommen pålagt som vilkår

Skilting for adkomst og parkeringsplasser

VVS Brannvarslings- og nødlysanlegg

Installert med alarmoverføring og varsling til Salten Brann, årlig kontroll dokumentert

Brannvarslings- og nødlysanlegg med alarmoverføring

Rekkverk Veranda rekkverk

Rømningsveier via veranda med rekkverk

Rekkverk på veranda som del av rømningsvei

Vinduer Fasadevindu

🧱 Tre ramme

Antall: 5

Fasade sør, trevinduer

Fasadevindu i tre på sørfasade

Vinduer Fasadevindu

🧱 Tre ramme

Antall: 10

Fasade øst, trevinduer

Fasadevindu i tre på østfasade

Fasade Kledning

🧱 Tre

Tre kledning på alle fasader

Tre kledning på bygningens fasader

Tak Saltak

Saltak på bygningen

Saltak på bygningen

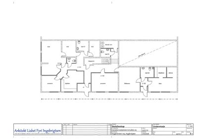
Plantegning

Underetasje 0.0 m²

Etasje 0 0.0 m²

Rom Areal Vinduer Dører
Stue U 101 0.0 m² 0 2
Soverom U 101 0.0 m² 0 1
Kjøkken U 101 0.0 m² 0 1
Vaskerom U 101 0.0 m² 0 1
Bod U 101 0.0 m² 0 1
Bad U 101 0.0 m² 0 1
WC U 101 0.0 m² 0 1
Trapperom U 101 0.0 m² 0 2
Teknisk rom U 101 0.0 m² 0 1
Bad U 101 0.0 m² 0 1
Fellesrom U 102 0.0 m² 0 1
Stue U 102 0.0 m² 0 1
Tekjøkken U 102 0.0 m² 0 1
Alkove U 102 0.0 m² 0 1
Bad U 102 0.0 m² 0 1

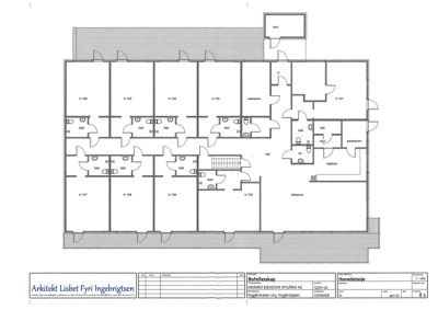
Bofellesskap 0.0 m²

Etasje 1 0.0 m²

Rom Areal Vinduer Dører
Soverom H 106 0.0 m² 1 1
Soverom H 105 0.0 m² 1 1
Soverom H 104 0.0 m² 1 1
Soverom H 103 0.0 m² 1 1
Soverom H 107 0.0 m² 1 1
Soverom H 108 0.0 m² 1 1
Soverom H 109 0.0 m² 1 1
Soverom H 102 0.0 m² 1 1
Soverom 101 0.0 m² 1 1
Vaskerom vaskerom 0.0 m² 0 1
Kjøkken kjøkken 0.0 m² 1 1
Arbeidsrom arbeidsrom 0.0 m² 1 1
Fellesrom fellesrom 0.0 m² 1 1
Hall hall 0.0 m² 0 0
Bad bad 0.0 m² 0 1
Bad bad 0.0 m² 0 1
Bad bad 0.0 m² 0 1
Bad bad 0.0 m² 0 1
Bad bad 0.0 m² 0 1
Bad bad 0.0 m² 0 1
Bad bad 0.0 m² 0 1
Bad bad 0.0 m² 0 1
WC wc 0.0 m² 0 1
Kjølerom kjøl 0.0 m² 0 1
Bod bod 0.0 m² 0 1
Vannfall vf 0.0 m² 0 1
Bod bod 0.0 m² 0 1

Fasader

Enebolig

Øst
Materiale
Tre
Taktype
Saltak
Vinduer
10
Dører
4
Synlige etasjer
1
Vest
Materiale
Tre
Taktype
Saltak
Vinduer
12
Dører
2
Balkonger
1
Synlige etasjer
2
Sør
Materiale
Tre
Taktype
Saltak
Vinduer
5
Dører
2
Balkonger
1
Synlige etasjer
2
Nord
Materiale
Tre
Taktype
Saltak
Vinduer
4
Dører
1
Balkonger
1
Synlige etasjer
2

Hendelser

21.04.2026 Ber om tilsendt møtereferat fra 14.04.26
13.04.2026 Vårt standpunkt i sak om bruksendring - anmodning om opplesning i møte 14.04.2026
13.04.2026 Tilbakemelding på 'Oversendelse av begjæring om utsatt iverksettelse - bruksendring Nygårdveien 105 gnr.53 bnr.51 og 52'
13.04.2026 Oversendelse av begjæring om utsatt iverksettelse - bruksendring Nygårdveien 105 gnr.53 bnr.51 og 52
07.04.2026 Svar på begjæring om utsatt iverksettelse - bruksendring Nygårdveien 105 gnr.53 bnr.51 og 52
07.04.2026 Fw: Begjæring om utsatt iverksettelse – bruksendring Nygårdveien 105 Gnr. 53 bnr. 51 og 52
07.04.2026 Presisering av begjæring om utsatt iverksettelse - Nygårdveien 105 gnr 53 bnr 51 og 52
31.03.2026 Presisering av begjæring om utsatt iverksettelse – Nygårdveien 105 (gnr. 53 bnr. 51 og 52)
27.03.2026 Vs:Begjæring om utsatt iverksettelse – bruksendring Nygårdveien 105 Gnr. 53 bnr. 51 og 52
23.03.2026 Begjæring om utsatt iverksettelse – bruksendring Nygårdveien 105 Gnr. 53 bnr. 51 og 52
16.02.2026 Viser til sak 2025/85 – klage på vedtak om bruksendring, Nygårdveien 105 - informasjon
13.02.2026 Viser til sak 2025/85 – klage på vedtak om bruksendring, Nygårdveien 105
12.02.2026 Forespørsel om oversendelse av klage - forvaltningsloven - Gildeskål - håndtering av bruksendring
21.01.2026 Ikke mottatt brev
21.01.2026 VS: Viser til sak 2025/85 – klage på vedtak om bruksendring, Nygårdveien 105
18.12.2025 SV: Viser til sak 2025/85 – klage på vedtak om bruksendring, Nygårdveien 105
18.12.2025 Viser til sak 2025/85 – klage på vedtak om bruksendring, Nygårdveien 105
08.12.2025 Bruksendring av bygning
04.12.2025 Dokumentasjon brannalarmanlegg
26.11.2025 Vedtak - Tillatelse til bruksendring av tidligere eldresenter til bygning for bofellesskap og overnatting, Nygårdveien 105, Nygårdsjøen, gnr.53 bnr.51,52
06.08.2025 Auto-svar
04.08.2025 Nabovarsel
21.07.2025 Vedrørende brev av 01.07.25
21.07.2025 Ansvarserklæring
17.07.2025 Nabomerknader ikke registrert
02.07.2025 2025/85 Nabomerknader ikke registrert
26.05.2025 Nabovarsel
16.05.2025 Søknad om bruksendring G/B 53/51+52
05.05.2025 Klage - forvaltningsloven - Gildeskål - håndtering av bruksendring
07.02.2025 Informasjon om søknad om bruksendring av tidligere Nygårdsjøen Eldresenter, Nygårdsjøen gnr.53 bnr.51