FloorPlan
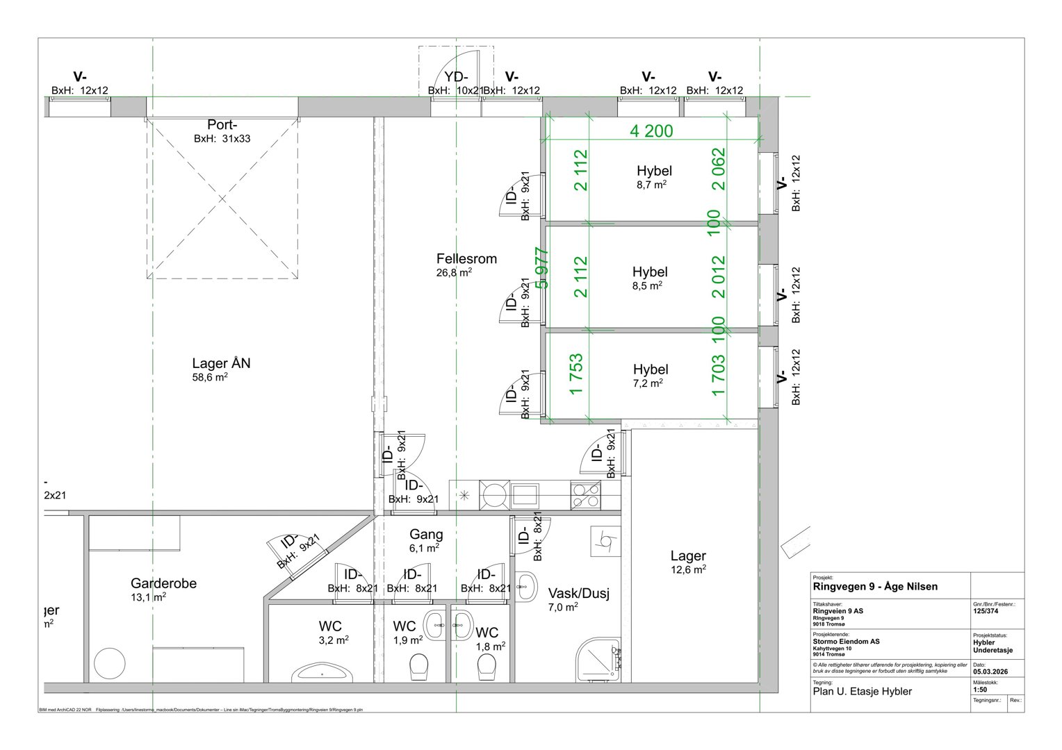
Etasjeplan (etasjeteegning) som viser romfordeling for hybler og fellesrom. Tegningen inneholder mål på rom, dører og veggtykkelse.
1 / 3
ChangeOfUse
Soeknad
Naeringsbygg
Bruksendring med innredning av hybler i Ringvegen 9
📍 Ringvegen 9 , 6630 TINGVOLL
Nøkkelinfo
- Sakstype
- Bruksendring
- Bygningstype
- Naeringsbygg
- Bruksareal
- 223 m²
- Kommune
- Tromsø
- Fylke
- Troms - Romsa - Tromssa
- Gnr / Bnr
- 125 / 374
- Saksnummer
- 26/04746
- Fase
- Søknad
Om byggesaken
Bruksendring i underetasjen av næringsbygg i Ringvegen 9 med innredning av tre hybler på henholdsvis 8,7 m², 8,5 m² og 7,2 m². Hyblene er tiltenkt overnatting for langtreisende sjåfører og inkluderer fellesrom, vask/dusj, garderobe og flere WC. Totalt areal for underetasjen er 222,9 m². Bygget har en trapp og flere dører, og det er lagt vekt på oppdatering av brannplan og -konsept for å ivareta sikkerheten. Endringen påvirker en del av kantine/fellesrom som omdisponeres til fellesrom og hybler uten vesentlige ytre endringer.
Arbeidsomfang
- Bruksendring av underetasje fra kantine/fellesrom til fellesrom/hybler
- Innredning av 3 hybler for overnatting (primært for langtreisende sjåfører)
- Oppdatering av brannplan og brannkonsept i samsvar med nye bruksformål
- Eventuell innretning av nødvendige installasjoner (lys, strøm) for de nye rommene
Produkter og materialer
Elektro
Belysning og strøm til hybler
Elektriske installasjoner for belysning og strøm i hybler og fellesrom
Maling
Innvendig overflatebehandling
Maling og overflatebehandling av vegger og tak i hybler og fellesrom
Brannvern
Brannplan og -konsept
Oppdatert brannplan og brannkonsept for bruksendring med hybler
Brannsikringstiltak tilpasset ny bruk av underetasjen
Tømrer
Innredning og vegger
Innredning av hybler, fellesrom og tilpasning av eksisterende rom
Vinduer
Fasadevindu
Antall: 3
1 vindu i hver hybel (8,7 m², 8,5 m², 7,2 m²)
Vinduer til tre hybler i underetasjen for naturlig lys og ventilasjon
Dører
Innvendige dører
Antall: 15
Dører til hybler, WC, garderobe, vask/dusj, fellesrom og lager
Innvendige dører for romavgrensning i underetasjen
VVS
Vask/Dusj installasjoner
Antall: 1
Vask/dusj rom på 7 m² til hyblene
Sanitærinstallasjoner for vask og dusj til hyblene
Plantegning
Hybler 222.9 m²
Etasje 0 222.9 m²
| Rom | Areal | Vinduer | Dører |
|---|---|---|---|
| Lager ÅN 001 | 58.6 m² | 0 | 1 |
| Garderobe 002 | 13.1 m² | 0 | 1 |
| WC 003 | 3.2 m² | 0 | 1 |
| WC 004 | 1.9 m² | 0 | 1 |
| WC 005 | 1.8 m² | 0 | 1 |
| Gang 006 | 6.1 m² | 0 | 4 |
| Fellesrom 007 | 26.8 m² | 0 | 3 |
| Hybel 008 | 8.7 m² | 1 | 1 |
| Hybel 009 | 8.5 m² | 1 | 1 |
| Hybel 010 | 7.2 m² | 1 | 1 |
| Lager 011 | 12.6 m² | 0 | 0 |
| Vask/Dusj 012 | 7.0 m² | 0 | 1 |
| Lager ÅN U01 | 58.6 m² | 0 | 1 |
| Garderobe U02 | 13.1 m² | 0 | 1 |
| WC U03 | 3.2 m² | 0 | 1 |
| WC U04 | 1.9 m² | 0 | 1 |
| WC U05 | 1.8 m² | 0 | 1 |
| Gang U06 | 6.1 m² | 0 | 4 |
| Fellesrom U07 | 26.8 m² | 0 | 2 |
| Hybel U08 | 8.7 m² | 1 | 1 |
| Hybel U09 | 8.5 m² | 1 | 1 |
| Hybel U10 | 7.2 m² | 1 | 1 |
| Vask/Dusj U11 | 7.0 m² | 0 | 1 |
| Lager U12 | 12.6 m² | 0 | 0 |
| Vaskerom/lager U13 | 7.0 m² | 0 | 1 |
| Gang U14 | 6.1 m² | 0 | 2 |
| Kantine/fellesrom U15 | 52.7 m² | 1 | 1 |
Hendelser
01.04.2026
125/374/0/0 Ringvegen 9 - Svar på henvendelse om dokumentasjon ved søknad om bruksendring
søknad
09.03.2026
125/374/0/0 Ringvegen 9 - henvendelse om dokumentasjon ved søknad om bruksendring
søknad