ChangeOfUse Rammetillatelse Naeringsbygg

Bruksendring til bilverksted i Rosenkrantzgata 85, Drammen

📍 Rosenkrantzgata 85 , 3018 DRAMMEN

Nøkkelinfo

Sakstype
Bruksendring
Bygningstype
Naeringsbygg
Bruksareal
585 m²
Kommune
Drammen
Fylke
Buskerud
Gnr / Bnr
115 / 576
Saksnummer
25/35291
Fase
Rammetillatelse

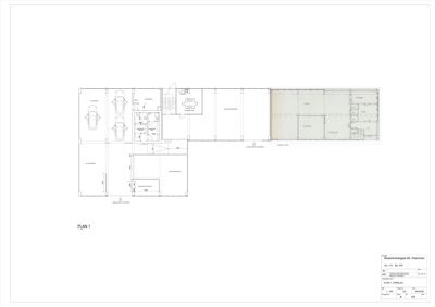
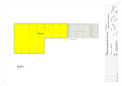
Om byggesaken

Bruksendring av deler av første etasje i eksisterende næringsbygg på Rosenkrantzgata 85 fra verksted til bilverksted. Bygget har et bruksareal på 585 m² i første etasje som tilpasses bilverkstedformål uten endring i fotavtrykk eller byggehøyde. Tiltaket inkluderer oppgradering av ventilasjon, tekniske installasjoner, og tilrettelegging for arbeidsmiljøkrav. Det er installert oljeutskiller for vaskeanlegg, og det er etablert garderober, vaskerom og personalrom. Eiendommen ligger i et område under regulering, og det er gitt midlertidig dispensasjon fra plankrav. Arbeidstilsynet har stilt vilkår knyttet til ventilasjon, sikkerhet, og arbeidsmiljø som er delvis oppfylt. Prosjektet omfatter også tilrettelegging for sikkerhet ved renhold, løfteinnretninger, lasteramper og varemottak, samt ergonomiske forhold.

Produkter og materialer

Grunnarbeid Parkeringsplass og kjøreveier

Eksisterende parkeringsplasser og kjøreveier dokumentert, 16 plasser på eiendommen, under maksimalnormen.

Parkerings- og adkomstløsninger for bilverkstedet.

Tømrer Innvendige ombygginger og tilpasninger

Innvendig bruksendring med tilpasning av rom for bilverksted, garderober, vaskerom, personalrom og tekniske rom.

Innvendige bygningsarbeider for tilpasning til bilverkstedformål uten endring i byggets fotavtrykk.

Elektro Brannalarmanlegg og ledesystem

Prosjektering og installasjon av brannalarmanlegg og ledesystem i henhold til forskrifter.

Brann- og sikkerhetssystemer for bilverkstedet.

VVS Sanitærinstallasjoner og våtrom

Etablering av våtrom, garderober, vaskerom og tilhørende sanitærinstallasjoner i henhold til gjeldende forskrifter.

Sanitærinstallasjoner i tilknytning til personalrom og bilverkstedfunksjoner.

Grunnarbeid Oljeutskiller

🧱 Sepko-3/600 R med sandfangvolum 0,6 m3 og våtvolum 0,91 m3

Antall: 1

Dimensjonert for 3 l/s, plassert utvendig vest for bygget, med prøvetakningskum og alarmsensor.

Oljeutskiller for vaskeanlegg til kjøretøy for å hindre utslipp av olje og forurensning til avløpsnettet.

Isolasjon Materialbruk med lav emisjon

Materialer med dokumentert lav emisjon for å oppfylle krav til inneklima og luftkvalitet.

Bruk av lavemitterende materialer i ombyggingen for å sikre godt arbeidsmiljø.

Trapper Innvendige trapper

Antall: 2

To trapper i bygget, tilrettelegging for trinnfri atkomst vurderes i henhold til arbeidsmiljøkrav.

Trapper mellom etasjer i eksisterende bygg, med krav til tilrettelegging for funksjonshemmede.

Rekkverk Sikkerhetsrekkverk ved trapper og arbeidsområder

Rekkverk for å sikre trygg ferdsel i trapper og ved arbeidsplasser i bilverkstedet.

Sikkerhetsrekkverk i trappeløp og arbeidsområder.

Fasade Vinduer og dører

🧱 Glassfasade med 10 vinduer og 1 dør på vestfasade, 6 vinduer og 1 dør på østfasade

Antall: 17

Eksisterende fasader opprettholdes uten ytre endringer.

Vinduer og dører i eksisterende bygg som ikke endres i forbindelse med bruksendringen.

Gulv Slitesterke gulvbelegg

Gulvbelegg egnet for bilverksted med krav til slitestyrke og kjemikaliebestandighet.

Gulv i verksted og personalområder tilpasset bilverkstedets behov.

Maling Innvendig overflatebehandling

Overflatebehandling tilpasset verkstedsmiljø med hensyn til slitestyrke og kjemikaliebestandighet.

Maling og overflatebehandling i bilverksted og personalrom.

Ventilasjon Mekanisk ventilasjon og prosesstilpasset avsug

Ventilasjonsanlegg skal sikre tilfredsstillende inneklima og luftkvalitet, inkludert avsug for kjemikalier og forurensning i arbeidsatmosfæren i bilverkstedet. Dokumentasjon av luftmengder og ventilasjonsløsning må samsvare med romarealer og bruksområder.

Mekanisk balansert ventilasjon med prosesstilpasset avsug for å håndtere forurensning fra bilverkstedaktiviteter som lakkering, eksos og kjemikalier.

Fasader

Hovedbygg

Vest
Materiale
Glass
Vinduer
10
Dører
1
Balkonger
1
Synlige etasjer
3
Øst
Materiale
Glass
Vinduer
6
Dører
1
Synlige etasjer
2

Bygg

Nord
Materiale
Betong
Taktype
Flatt tak
Vinduer
24
Dører
1
Synlige etasjer
2
Sør
Materiale
Betong
Taktype
Flatt tak
Vinduer
24
Dører
1
Synlige etasjer
2

Hendelser

15.04.2026 Rosenkrantzgata 85, Kopi: Bekreftelse: vilkårene for samtykke er oppfylt
18.03.2026 Kopi: Rosenkrantzgata 85 - Bekreftelse: vilkårene for samtykke er delvis oppfylt
04.02.2026 Rosenkrantzgata 85, tillatelse til bruksendring fra verksted til bilverksted med dispensasjon fra plankrav
29.01.2026 Rosenkrantzgata 85, bekrefter at midlertidig dispensasjon er i orden
17.12.2025 Rosenkrantzgata 85 Supplering av søknad 115/576
17.12.2025 Rosenkrantzgata 85 Supplering av søknad 115/576
02.12.2025 Rosenkrantzgata 85, vi trenger flere opplysninger for å behandle søknaden din
28.11.2025 Rosenkrantzgata 85, Etterkontroll – omgjøring av vedtaket om samtykke til «vedtak om samtykke med vilkår»
17.11.2025 Rosenkrantzgata 85, etterkontroll – planene oppfyller fortsatt ikke kravene i regelverket
06.11.2025 Rosenkrantzgata 85, Vi har foretatt etterkontroll av planene for tiltaket
31.10.2025 Rosenkrantzgata 85 Søknad om tillatelse i ett trinn 115/576
09.10.2025 Rosenkrantzgata 85, Kopi: Vi innvilger søknaden om samtykke etter automatisk saksbehandling
23.09.2025 Rosenkrantzgata 85, svar på nabovarsel