ChangeOfUse Ferdigattest Naeringsbygg

Bruksendring og rehabilitering med nytt torg i Røykenveien 142, Asker

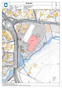
📍 Røykenveien 140 , 1386 ASKER

Nøkkelinfo

Sakstype
Bruksendring
Bygningstype
Naeringsbygg
Bruksareal
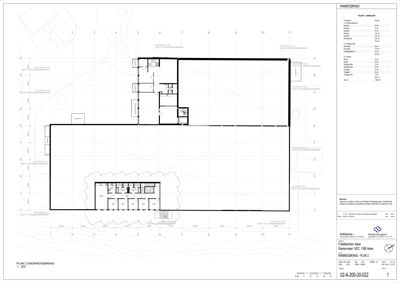
5,400 m²
Kommune
Asker
Fylke
Akershus
Gnr / Bnr
51 / 4
Saksnummer
22/4504
Fase
Ferdigattest

Om byggesaken

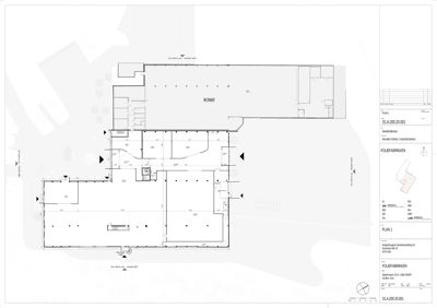
Prosjektet omfatter bruksendring og omfattende rehabilitering av eksisterende bygningsmasse på eiendommen Røykenveien 142 i Asker. Det etableres et nytt publikumsrettet torg på eiendommens sørvestside, samtidig som en gammel trafo rives. Bygningen består av flere etasjer med butikker, kontorer, personalrom og fellesarealer, med totalt forretningsareal på ca. 5400 m². Parkeringsarealet er omstrukturert og utvidet på nordsiden med 118 plasser, inkludert 7 HC-plasser, og 90 sykkelplasser hvorav 50 % er under tak. Varemottaket flyttes fra nordøstfasade til sørvestfasade for bedre logistikk og redusert nabostøy. Fasadeendringer inkluderer samordning av inngangspartier og oppgradering av fasader med bevaring av kulturhistoriske elementer. Prosjektet er i tråd med kommuneplanens sentrumsformål og prioriterte vekstområder, og det er gitt dispensasjon fra reguleringsplanens industri/kontorformål. Det er dokumentert at tiltaket ivaretar trafikksikkerhet, universell utforming og estetikk, med godkjente løsninger for tekniske installasjoner, brannsikkerhet og utomhusplan.

Produkter og materialer

Annet Sykkeltak STRUCTURE

🧱 Varmforsinket stål, resirkulert polykarbonat

Antall: 1

STRUCTURE sykkeltak, dimensjonert for snølast 400 kg/m2, pulverlakk C5, LED-belysning som tilvalg

Sykkeltak for sykkelparkering

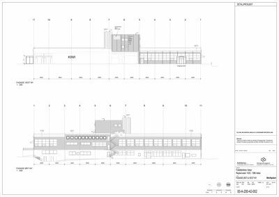
Fasade Fasade med tegl og glass, saltak og flatt tak

🧱 Tegl, glass, aluminiumsrammer

Fasader mot sør og nord med saltak, fasader mot øst og vest med flatt tak, aluminium inndekning malt i RAL farge, bevaring av kulturhistoriske elementer

Fasadeoppgradering med bevaring av kulturmiljø, nye inngangspartier og samordning av fasader

Annet Skilt og belysning

Fasadeskilt, utvendig belysning med LED, klokke på fasade

Skilt og fasadebelysning

Rekkverk Rekkverk ved trapper og uteområder

Rekkverk ved trapper og uteområder for sikkerhet

Sikkerhetsrekkverk

Ventilasjon Ventilasjonsanlegg

Ventilasjonsanlegg for bygget

Ventilasjon for inneklima

Trapper Innvendig og utvendig trapp

Antall: 1

Eksisterende trapp skiftes ut, ny trapp i L-form

Trapp for adkomst og rømningsvei

Pipe Eksisterende pipe beholdes

Eksisterende pipe i bygget

Pipe for ventilasjon/varme

Elektro Brannalarm, nødlys, hovedtavle

Brannalarm, nødlys, hovedtavle, belysning

Elektriske installasjoner for sikkerhet og drift

Garasjeport Port til varemottak og avfallsrom

Porter til varemottak og avfallsrom

Porter for varelevering og avfallshåndtering

Tak Saltak og flatt tak

Saltak på nord og sør, flatt tak på øst og vest, tak for tekniske installasjoner

Takoppgradering med plassering av tekniske installasjoner

Grunnarbeid Parkeringsareal, gangveier, grøntområder

🧱 Asfalt, grus, kantstein, betongstein, marktegl

118 parkeringsplasser inkl. 7 HC-plasser, 90 sykkelplasser (50% under tak), gangveier, grøntområder, regnbed, beplantning

Opparbeidelse av utearealer med parkering, gangveier og grøntområder

Vinduer Fasadevindu i glass og aluminium

🧱 Glass, aluminium

Antall: 46

12 vinduer på øst og vest, 11 vinduer på nord og sør fasade

Nye og rehabiliterte fasadevinduer i glass og aluminium

Terrasse Uteservering ved kafé

Uteservering ved kafé på torget

Utendørs serveringsareal

Dører Ytterdører i glass og aluminium

🧱 Glass, aluminium

Antall: 7

Inngangsdører til butikker, kontorer og personalrom

Nye ytterdører i glass og aluminium

Maling Maling av fasader og innvendige flater

Maling av aluminium inndekning, fasader og innvendige flater

Overflatebehandling og maling

VVS Varme- og kjøleanlegg, sanitæranlegg

Varmeanlegg, ventilasjon, sanitærinstallasjoner, energianlegg

Tekniske anlegg for varme, kjøling, sanitær og ventilasjon

Fasader

Tiltak

Vest
Materiale
Glass
Taktype
Flatt tak
Høyde
10.5 m
Mønehøyde
12.3 m
Vinduer
12
Dører
1
Synlige etasjer
2
Øst
Materiale
Glass
Taktype
Flatt tak
Høyde
10.5 m
Mønehøyde
12.3 m
Vinduer
12
Dører
1
Synlige etasjer
2
Nord
Materiale
Platemontasje
Taktype
Saltak
Høyde
10.0 m
Mønehøyde
12.0 m
Vinduer
11
Dører
2
Synlige etasjer
3
Sør
Materiale
Platemontasje
Taktype
Saltak
Høyde
10.0 m
Mønehøyde
12.0 m
Vinduer
11
Dører
2
Synlige etasjer
3

Hendelser

14.04.2026 51/4 Røykenveien 142 - Statsforvalterens vedtak om dekning av sakskostnader - Innvilger dekning av sakskostnader
29.03.2026 51/4 Røykenveien - Svar på spørsmål om status i saken (kopi)
18.02.2026 51/4 Røykenveien 142 - Søknad om endring av gitt tillatelse
30.01.2026 5/14 Røykenveien 142 - Uttalelse til krav om dekning av sakskostnader
23.01.2026 51/4 Røykenveien 142 - Foreløpig svar i klagesak på Statsforvalterens omgjøringsvedtak av 291125 (kopi)
07.01.2026 51/4 Røykenveien 142 - E-postkorrespondanse om belysning på Foliefabrikken
07.01.2026 51/4 Røykenveien 142 - Statsforvalteren ber om uttalelse - Sakskostnader
22.12.2025 51/4 Røykenveien 142 - Merknader til nabovarsel
17.12.2025 51/4 Røykenveien 142A - Midlertidig brukstillatelse - Bruksendring og rehabilitering av bygningsmasse, etablering av nytt torg samt riving av trafo
16.12.2025 51/4 Røykenveien 142A - Igangsettingstillatelse 1 - Bruksendring og rehabilitering av bygningsmasse, etablering av nytt torg samt riving av trafo
10.12.2025 51/4 Røykenveien 142A - Behov for presisering av søknad om midlertidig brukstillatelse
10.12.2025 51/4 Røykenveien 142 - Status på søknad om igangsettingstillatelse
09.12.2025 51/4 Røykenveien 142 - Søknad om igangsettingstillatelse
09.12.2025 51/4 Røykenveien 142 - Statsforvalterens oversendelse av klage på omgjøringsvedtak - Statsforvalteren anbefaler at klagen ikke tas til følge (kopi)
09.12.2025 51/4 Røykenveien 142A - Behov for søknad om igangsettingstillatelse
08.12.2025 51/4 Røykenveien 142A - Presisering av søknad om midlertidig brukstillatelse
04.12.2025 51/4 Røykenveien 142 - Statsforvalterens svar på merknader - midlertidig brukstillatelse (kopi)
04.12.2025 51/4 Røykenveien 142 - Søknad om midlertidig brukstillatelse
01.12.2025 51/4 Røykenveien 142 - Statsforvalterens vedtak i klagesak - Tar omgjøringsbegjæringen til følge - Endringstillatelsen av 060224 oppheves
17.11.2025 51/4 Røykenveien 142 - Fasadebelysning
13.11.2025 51/4 Røykenveien 142 - E-postkorrespondanse om belysning på Foliefabrikken
12.11.2025 51/4 Røykenveien 142 - Svar på purring på tilbakemelding - Fasadeskilt
12.11.2025 51/4 Røykenveien 142 - Svar på klage på kraftig fasadebelysning nattestid
12.11.2025 51/4 Røykenveien 142 - Klage på lysforurensning - Foliefabrikken
12.11.2025 51/4 Røykenveien 142 - Korrespondanse om belysning og anmodning om innsendelse av dokumentasjon - Søknad om fasadeskilt
11.11.2025 51/4 Røykenveien 142 - Etterlyser tilbakemelding på klage datert 110625
08.10.2025 51/4 Røykenveien 142 - Statsforvalterens melding om saksbehandlingstid
06.10.2025 51/4 Røykenveien 142 - Dialog om belysning på Foliefabrikken - Fasadeskilt
23.09.2025 51/4 Røykenveien 142 - Klage på kraftig fasadebelysning nattestid
10.09.2025 51/4 Røykenveien 142 - Oversendelse av klage til statsforvalteren
29.08.2025 51/4 Røykenveien 142 - Kommunen opphever ikke vedtak datert 06.02.2024
28.08.2025 51/4 Røykenveien 142 - Supplerende anførsler
25.08.2025 51/4 Røykenveien 142 - Ber om utsatt frist
09.08.2025 51/4 Røykenveien 142 - Tilsvar til klage
05.08.2025 51/4 Røykenveien 142 – Etterlyser svar på klage om midlertidig brukstillatelse av 17.02.25
01.08.2025 51/4 Røykenveien 142A - Ferdigattest - Bruksendring og rehabilitering av bygningsmasse, etablering av nytt torg samt riving av trafo
29.07.2025 51/4 Røykenveien 142 - Supplerende dokumentasjon til søknad om ferdigattest
24.07.2025 51/4 Røykenveien 142A - Ufullstendig søknad om ferdigattest
23.07.2025 51/4 Røykenveien 142 - Kvittering på mottatt klage
23.07.2025 51/4 Røykenveien 142 - Kommunen ber om tilsvar til klage
30.06.2025 51/4 Røykenveien 142 - Purring på tilbakemelding - Klage på midlertidig brukstillatelse
27.06.2025 51/4 Røykenveien 142 - Søknad om ferdigattest
18.06.2025 51/4 Røykenveien 142 - Klage på sjenerende lys
13.05.2025 51/4 Røykenveien 142 - Klage på midlertidig brukstillatelse / begjæring om omgjøring av endringsvedtak
18.02.2025 51/4 Røykenveien 142A - Midlertidig brukstillatelse - Bruksendring og rehabilitering av bygningsmasse, etablering av nytt torg samt riving av trafo
17.02.2025 51/4 Røykenveien 142 - Midlertidig brukstillatelse på tiltak
14.02.2025 51/4 Røykenveien 142 - Oppdatert gjennomføringsplan
13.02.2025 51/4 Røykenveien 142A - Ufullstendig søknad
12.02.2025 51/4 Røykenveien 142 - Bekrefter sikkerhet
27.01.2025 51/4 Røykenveien 142 - Ufullstendig søknad om igangsettingstillatelse - Bruksendring og rehabilitering av bygningsmasse