ChangeOfUse Rammetillatelse Naeringsbygg

Bruksendring til tomannsbolig på Tonerroa 9, Gardvik

📍 Tonerroa 11 , 2133 GARDVIK

Nøkkelinfo

Sakstype
Bruksendring
Bygningstype
Naeringsbygg
Bruksareal
215 m²
Boenheter
2
Kommune
Nord-Odal
Fylke
Innlandet
Gnr / Bnr
40 / 1
Saksnummer
25/725
Fase
Rammetillatelse

Om byggesaken

Eksisterende forretningsbygg fra 1979 på Tonerroa 9 i Gardvik ombygges til tomannsbolig med 2 boenheter. Bygningen har et bruksareal på ca. 215 m² og ligger i et LNF-område. Ombyggingen inkluderer etablering av brannmur mellom leilighetene, etterisolering av vegger og tak med minimum 30 cm isolasjon, utskifting av vinduer til 3-lags energiglass, balansert ventilasjon, og tiltak for radonsikring. Planløsningen omfatter blant annet stuer, kjøkken, bad, soverom og flere boder. Det er også gjennomført tiltak for universell utforming med trinnfri adkomst og tilgjengelige rømningsveier. Avkjørsel og uteområder er tilpasset med godkjent endret brukstillatelse. Det foreligger dispensasjon fra kommuneplanens arealdel og fravik fra enkelte tekniske krav i TEK17.

Produkter og materialer

Vinduer Energivindu med 3-lags glass

🧱 Tre/kompositt med 3-lags energiglass

Antall: 14

Utskifting av de fleste originale vinduene til nye vinduer med 3-lags glass for bedre isolasjon

Nye energieffektive vinduer for å oppfylle krav til isolasjon og energieffektivitet

Isolasjon Vegger og tak

🧱 Mineralull eller tilsvarende

Etterisolering av vegger med 15 cm isolasjon og tak med 30 cm isolasjon

Isolasjon for å oppgradere byggets energistandard

Grunnarbeid Avløpsanlegg og avkjørsel

Nytt infiltrasjonsanlegg for avløp, godkjent endret bruk av avkjørsel med frisikt og stikkrenne

Oppgradering av avløpsanlegg og tilpasning av avkjørsel til fylkesveg

Dører Ytterdører og innerdører

🧱 Tre/kompositt

Antall: 10

Dører til leiligheter, boder og tekniske rom, inkludert trinnfri adkomstsdør

Dører for bolig og tekniske rom, inkludert brannmur og rømningsveier

Tak Saltak med isolasjon

🧱 Tak med minimum 30 cm isolasjon

Antall: 1

Etterisolering av tak for bedre energiklasse

Isolasjon og taktekking for energieffektivitet

Tømrer Ombygging og tilpasning

🧱 Treverk, gipsplater, isolasjon

Ombygging fra forretningslokaler til bolig, inkludert vegger, tak og innvendige rom

Tømrerarbeid for ombygging og tilpasning til boligstandard

Elektro Utendørs belysning

Utebelysning som del av universell utforming

Belysning ved inngangspartier og uteområder

VVS Radonsikring og balansert ventilasjon

Radonmåling og eventuelt radonbrønn med vifte, balansert ventilasjon for bedre inneklima

Tiltak for radonsikring og ventilasjon i boligene

Bad Universelt utformet bad og WC

Antall: 2

Bad og WC med trinnfri adkomst og tilpasset for handikap

Bad og WC tilpasset universell utforming

Brannvern Brannmur og brannslukkingsapparater

🧱 Ubrennbar isolasjon og gipsplater

Antall: 1

Brannmur mellom leilighetene med to lag gips på hver side, manuelt brannslukkingsapparat i hver leilighet

Brannsikring mellom boenheter

Gulv Standard boliggulv

🧱 Eikeparkett eller tilsvarende

Standard gulv i stue, kjøkken og soverom

Innvendige gulvflater i boligene

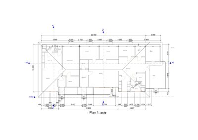
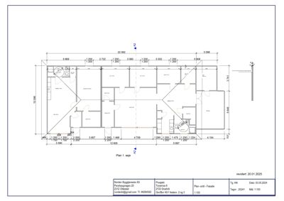
Plantegning

Enebolig 126.0 m²

Etasje 1 126.0 m²

Rom Areal Vinduer Dører
Stue 101 36.0 m² 2 1
Gang 102 6.8 m² 0 0
Kjøkken 103 14.0 m² 1 1
Bad 104 6.0 m² 0 1
Soverom 105 23.5 m² 1 1
Soverom 106 12.0 m² 1 1
Soverom 107 12.0 m² 1 1
Tek. rom 108 1.4 m² 0 1
Bod 109 3.5 m² 0 1
Bod 110 6.5 m² 0 1
Bod 111 7.5 m² 0 1
Tek. rom 112 5.0 m² 0 1
Bod 113 6.7 m² 0 1
Bad 114 4.0 m² 0 1
Bod 115 4.0 m² 1 1
Bad 116 6.0 m² 0 1
Terrasse 117 0.0 m² 0 1

Fasader

Hovedbygg

Nordøst
Materiale
Tre
Taktype
Saltak
Vinduer
4
Dører
0
Synlige etasjer
1

Enebolig

Sør-Vest
Materiale
Tre
Taktype
Saltak
Vinduer
6
Dører
2
Balkonger
1
Synlige etasjer
1
Sørvest
Materiale
Tre
Taktype
Saltak
Vinduer
6
Dører
3
Balkonger
1
Synlige etasjer
1
Nordvest
Materiale
Tre
Taktype
Saltak
Vinduer
0
Dører
0
Synlige etasjer
1

Hendelser

14.04.2026 Eiendommen 40/1 - Søknad om Byggetillatelse festenummer 2 og 3
16.09.2025 Eiendommen 40/1/2 og 40/1/3 - Adressetildeling
16.09.2025 Eiendommen 40/1/2 og 40/1/3 - Dispensasjon og tillatelse til tiltak - Bruksendring fra forretningsbygning til 2 boligenheter
14.07.2025 Eiendommen 40/1/2 og 40/1/3 - Tillatelse til endret bruk av avkjørsel - FV 1928 Tonerroa
07.07.2025 Eiendommen 40/1 - Tilbakemelding
01.07.2025 Eiendommen 40/1 - Fortsatt mangler ved søknaden - Bruksendring fra bedrift til bolig
12.05.2025 Eiendommen 40/1 - Manglende dokumenter til Torrroan 9
11.04.2025 Eiendommen 40/1 - Manglede dokumentasjon
17.03.2025 Eiendommen 40/1 - Svarbrev på spørsmål om manglende tegningsgrunnlag vedr tilgjengelig boenhet
14.03.2025 Eiendommen 40/1 - Spørsmål -1 til mangelbrev - Bruksendring fra forretningsbygning til bolig
14.03.2025 Eiendommen 40/1 - Spørsmål -2 til mangelbrev - Bruksendring fra forretningsbygning til bolig
13.03.2025 Eiendommen 40/1 - Fortsatt behov for ytterligere dokumentasjon i byggesak - Bruksendring fra forretningsbygning til bolig
06.03.2025 Eiendommen 40/1 - Ytterligere dokumentasjon til Tonerra 9, 2133 Gardvik
25.02.2025 Eiendommen 40/1 - Behov for ytterligere dokumentasjon i byggesak - Bruksendring fra forretningsbygg til bolig