ChangeOfUse UnderBehandling Naeringsbygg

Midlertidig dispensasjon og sjøfylling ved Vikeveien 523, Kvæfjord

📍 Vikeveien 523 , 9475 BORKENES

Nøkkelinfo

Sakstype
Bruksendring
Bygningstype
Naeringsbygg
Bruksareal
680 m²
Kommune
Kvæfjord
Fylke
Troms - Romsa - Tromssa
Gnr / Bnr
47 / 25
Saksnummer
2025/1006
Fase
Under behandling

Om byggesaken

Prosjektet omfatter midlertidig dispensasjon for bruksendring av eksisterende industribygg på 213,8 m² og 466,1 m² til lager- og verkstedsformål, samt etablering av sjøfylling med rene steinmasser innenfor regulert område på eiendommen Vikeveien 523 i Kvæfjord. Utfyllingen inkluderer terrenginngrep med uttak og bearbeiding av fjellmasser, tilpasning til eksisterende infrastruktur som kommunal vannledning, og planlegges utført med hensyn til høyeste beregnede springflo med fremtidig gulvnivå på kote +3,5 (NN2000). Bygningene har tidligere godkjente kontor- og støttefasiliteter, og det planlegges ingen vesentlige bygningsmessige endringer. Tiltaket krever samordning med forurensningsmyndigheter og vurdering av byggtekniske krav ved bruksendring.

Produkter og materialer

Grunnarbeid Drenering og sikring

Nødvendige sikringstiltak ved terrenginngrep og utfylling i sjø

Sikringstiltak ved terrenginngrep og sjøfylling

Byggematerialer Tak

🧱 Saltak og flatt tak

Eksisterende saltak på industribygg og flatt tak på hovedbygg

Eksisterende takkonstruksjoner

Tømrer Ombygging/bruksendring

Eventuelle ombygginger for tilpasning til lager/verksted, inkl. bruksendring iht. TEK17 og brannsikkerhet

Ombygging og bruksendring av eksisterende industribygg

Bygningskomponenter Vinduer

🧱 Standard industrivinduer

Eksisterende vinduer i industribygg, noen med lydkrav, ikke nødvendigvis EI60

Eksisterende vinduer i industribygg

Teknisk VVS

Eksisterende sanitærinstallasjoner med toaletter, dusj og vaskerom

Sanitærinstallasjoner i eksisterende bygg

Bygningskomponenter Dører

🧱 Stål og brannklassifiserte dører

Brannklassifiserte dører med EI60 krav i eksisterende industribygg

Eksisterende dører i industribygg med brannkrav

Teknisk Ventilasjon

Eksisterende ventilasjonsanlegg i industribygg, inkl. varmluftsanlegg

Ventilasjon og varmluftsanlegg i eksisterende bygg

Teknisk Avløpssystem

Eksisterende avløpsanlegg med utslipp via slamavskiller til sjø, vurderes i forbindelse med bruksendring

Avløpssystem med utslippstillatelse under vurdering

Grunnarbeid Sjøfylling

🧱 Rene, dokumenterbare steinmasser

Utfylling i sjø innenfor regulert område, tilpasset høyeste beregnede springflo, fremtidig gulvnivå kote +3,5 (NN2000)

Etablering av sjøfylling med rene steinmasser

Grunnarbeid Terrenginngrep og fjelluttak

🧱 Steinmasser fra lokal eiendom

Uttak og bearbeiding av fjellmasser for bruk i sjøfylling, sprengning ned til ca. kote +3,5 (NN2000)

Terrenginngrep med uttak av fjellmasser til sjøfylling

Byggematerialer Betong

🧱 Betongkonstruksjoner

Eksisterende betongbygg med saltak og flatt tak, gesimshøyde ca. 6 m, mønehøyde ca. 8,5 m

Eksisterende betongkonstruksjoner i industribygg

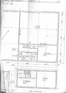
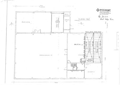
Plantegning

Velferdsfløy 213.8 m²

Etasje 2 213.8 m²

Rom Areal Vinduer Dører
Lager 20 120.8 m² 0 1
Spiserom 21 31.0 m² 0 1
Skift/Vaskerom H 22 11.3 m² 0 1
WC 23 0.0 m² 0 1
WC 24 0.0 m² 0 1
S/V D 25 4.6 m² 0 1
Rekv. 26 0.0 m² 0 1
WC 27 0.0 m² 0 1
Disponibelt 28 16.2 m² 0 1
Kontor 29 31.0 m² 0 1

Produksjonshall 466.1 m²

Etasje 1 466.1 m²

Rom Areal Vinduer Dører
Råvarelager RÅVARELAGER 85.0 m² 0 1
Prefabrikat PREFABR 0.0 m² 0 1
Varmluft VARMLUFT 11.8 m² 0 1
Kompressor KOMPRESSOR 0.0 m² 0 1
Produksjonshall PRODUKSJONSHALL 277.0 m² 0 1
Verksted VERKSTED 120.8 m² 0 1
WC H WC H 0.0 m² 0 1
WC D WC D 0.0 m² 0 1
Dusj DUSJ 0.0 m² 0 1
Skift/Vask SKIFT-VASK 11.3 m² 0 1
S/V S/V 4.6 m² 0 1
Spiserom SPISEROM 31.0 m² 0 1

Tilbygg 138.0 m²

Etasje 1 138.0 m²

Rom Areal Vinduer Dører
Råvarelager 101 85.0 m² 0 1
Produksjonshall 102 277.0 m² 0 1
Verksted 103 68.0 m² 0 1
Spiserom 104 31.0 m² 0 1
WC 105 0.0 m² 0 1
Lakk 24 106 0.0 m² 0 0
Varmluft 107 0.0 m² 0 0
Kompressor 108 0.0 m² 0 0

Produksjonsbygg 0.0 m²

Etasje 0 0.0 m²

Rom Areal Vinduer Dører
Produksjonshall 277 0.0 m² 0 0
Verksted 1208 0.0 m² 0 0
Spiserom 31 0.0 m² 0 0
Skiftvask 113 0.0 m² 0 0
Lager 24 0.0 m² 0 0
Varmluft 118 0.0 m² 0 0
Råvarelager 85 0.0 m² 0 0

Råvarelager 138.0 m²

Etasje 1 138.0 m²

Rom Areal Vinduer Dører
Råvarelager 101 138.0 m² 0 1

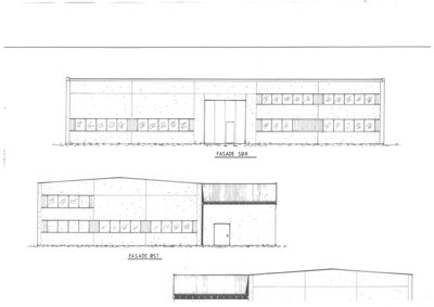
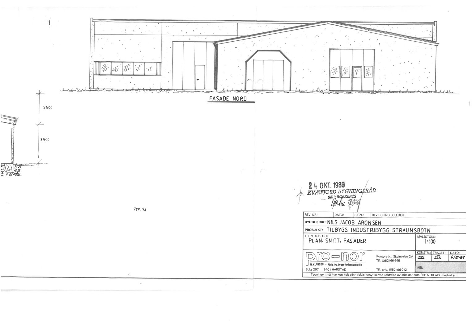
Fasader

Industribygget

Nord
Materiale
Betong
Taktype
Saltak
Høyde
6.0 m
Mønehøyde
8.5 m
Vinduer
8
Dører
1
Synlige etasjer
1

Hovedbygg

Sør
Materiale
Betong
Taktype
Flatt tak
Vinduer
18
Dører
1
Synlige etasjer
2
Øst
Materiale
Betong
Taktype
Saltak
Vinduer
10
Dører
1
Synlige etasjer
2

Hendelser

16.04.2026 Om søknad om midlertidig dispensasjon
25.03.2026 Sv: Anmodning om forhåndskonferanse – gnr. 47, bnr. 25, Vikeveien 523
25.03.2026 Sv: Sv: Anmodning om forhåndskonferanse – gnr. 47, bnr. 25, Vikeveien 523
23.03.2026 Søknad om midlertidig dispensasjon etter plan- og bygningsloven
23.03.2026 Sv Anmodning om forhåndskonferanse – gnr 47, bnr 25, Vikeveien 523 (MIDLERTIDIG SVAR)
23.03.2026 Anmodning om forhåndskonferanse – gnr. 47, bnr. 25, Vikeveien 523
25.02.2026 Gbnr 47 25 Vikeveien 523 - Om planer om innsending søknad dispensasjon og utfylling i sjø
25.02.2026 Gbnr 47 25 Vikeveien 523 - Midlertidig svar
25.02.2026 Gbnr 47 25 Vikeveien 523 - Om planer om søknad
19.01.2026 Gbnr 47/25 Vikeveien 523 - Tilleggsinformasjon i forbindelse med tidligere møte
02.01.2026 Om mulig bruk av eiendommen Gbnr 47/25 i Straumen for bedriften Solnes Maskin AS
02.01.2026 Gbnr 47/25 Vikeveien 523 - OPPSUMMERING ETTER MØTE 18.12.2025 (Om muligheter for midlertidig bruk av deler av eiendommen i strid med reguleringsformål)