Rendering
Illustrasjon av planlagt ny situasjon med bygning og parkering
1 / 9
ChangeOfUse
UnderBehandling
Naeringsbygg
Midlertidig dagligvareforretning og verksted i Vollsveien 13D, Bærum
📍 Vollsveien 13D , 1366 LYSAKER
Nøkkelinfo
- Sakstype
- Bruksendring
- Bygningstype
- Naeringsbygg
- Bruksareal
- 1,385 m²
- Kommune
- Bærum
- Fylke
- Akershus
- Gnr / Bnr
- 40 / 328
- Saksnummer
- 2025/8133
- Fase
- Under behandling
Om byggesaken
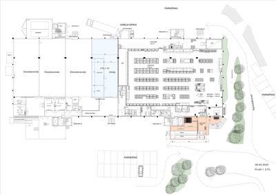
Eksisterende næringsbygg i Vollsveien 13D på Granfoss transformeres midlertidig til en dagligvareforretning (Rema 1000) med et bruksareal på 1165,8 m² og et verksted/utsalg for vinterutstyr på 219,1 m². Tiltaket inkluderer mindre bygningsmessige endringer som rampe og trapp, og utnytter eksisterende parkeringsplasser. Bruksendringen er tidsbegrenset i påvente av en ny reguleringsplan og transformasjon av området til bymessig bebyggelse med blandet formål. Trafikkanalyser viser en moderat trafikkøkning på under 5 %, med akseptabel trafikkavvikling i adkomstkrysset. Tiltaket skal aktivisere området og støtte eksisterende virksomheter, men er omstridt pga. avvik fra gjeldende reguleringsplan som begrenser forretningsareal til 400 m². Flere offentlige instanser fraråder dispensasjon, mens tiltakshaver argumenterer for midlertidighet og samfunnsøkonomiske fordeler.
Produkter og materialer
Parkering
Biloppstillingsplasser
Antall: 9
9 parkeringsplasser avsatt til dagligvareforretningen, totalt 89 plasser på eiendommen
Parkering for kunder og ansatte
Fasade
Rullestolrampe og trapp
Antall: 1
Ny rampe og trapp som utvidelse av inngangsparti, delvis innenfor naturvernområde
Bygningsmessige tilpasninger for tilgjengelighet og rømningsvei
Trafikk
Trafikkavvikling og analyse
Trafikkanalyse med kapasitetsberegninger for adkomst, vurdering av trafikkøkning under 5 %
Trafikkvurdering for tiltakets påvirkning på vegnett og kryss
Bygg
Bruksendring av eksisterende næringsbygg
Dagligvareforretning på 1165,8 m² BRA og verksted/utsalg vinterutstyr på 219,1 m² BRA
Ombygging og bruksendring av eksisterende bygg til ny forretningsvirksomhet
Hendelser
17.04.2026
Vollsveien 13D – søknad om dispensasjon fra maksimalt tillatt kvadratmeter forretning
17.03.2026
Tilbakemelding - Vollsveien 13D - dispensasjon fra maksimalt kvadratmeter tillatt forretning
18.02.2026
Bekreftelse fra kommunen på å stille saken i bero inntil tilvar fra søker er mottatt - Vollsveien 13D
13.02.2026
Tilleggsinformasjon - Vollsveien 13 D - dispensasjon fra maksimalt kvadratmeter tillatt forretning
02.02.2026
Uttalelse fra Akershus fylkeskommune - Vollsveien 13D - dispensasjon fra maksimalt kvadratmeter tillatt forretning
02.02.2026
Uttalelse fra Asker og Bærum handels- og servicebedrifters forening - Vollsveien 13D - dispensasjon fra maksimalt kvadratmeter tillatt forretning
29.01.2026
Uttalelse fra Statsforvalteren i Østfold, Buskerud, Oslo og Akershus - Vollsveien 13D - dispensasjon fra maksimalt kvadratmeter tillatt forretning
08.01.2026
Innspill fra Lysaker Vel - Vollsveien 13D - dispensasjon fra maksimalt kvadratmeter tillatt forretning
06.01.2026
Søknad om dispensasjon til etablering av dagligvareforretning – til uttalelse – Vollsveien 13D i Bærum kommune
23.10.2025
Svar på ønske om møte etter avslag på søknad - Vollsveien 13 D
23.10.2025
Etterlyser svar på forhold knyttet virksomheten for vinterutstyr – Vollsveien 13 D
25.08.2025
Underretning om vedtak - Vollsveien 13 D - dispensasjon fra reguleringsplan for Granfoss næringspark
08.07.2025
Revidert notat med supplerende opplysninger av parkering og forholdet til virksomheten for vinterutstyr – Vollsveien 13 D
30.06.2025
Tilleggsopplysninger - Vollsveien 13 D - dispensasjon fra maksimalt kvadratmeter tillatt forretning
11.06.2025
Foreløpig svar - Vollsveien 13 D - dispensasjon fra maksimalt kvadratmeter tillatt forretning
28.05.2025
Behov for tilleggsopplysninger – søknad om dispensasjon for etablering av dagligvareforretning og forretning for vinterutstyr – Vollsveien 13 D
02.05.2025
Supplering - Vollsveien 13 D