NewConstruction Avslatt Naeringsbygg

Nytt industribygg for krabbefabrikk på Årabrotholmen 13

📍 Årabrotholmen 13 , 4270 ÅKREHAMN

Nøkkelinfo

Sakstype
Nybygg
Bygningstype
Naeringsbygg
Bruksareal
1,224 m²
Kommune
Karmøy
Fylke
Rogaland
Gnr / Bnr
15 / 1042
Saksnummer
2023/460
Fase
Avslått

Om byggesaken

Nytt industribygg på 1224 m² med flatt tak og gesimshøyde 6 meter over terreng, oppført i betong-sandwichelementer med robust og holdbar fasade i lys grå eller hvit farge. Bygget inneholder produksjonslokaler for oppforing av villkrabbe, vanninntak, vannbehandling, pumpekum under terreng, samt frittstående vanntank (ca. 25,5 m²) og nettstasjon/trafo (ca. 7,5 m²). Bygningen er plassert minimum 3 meter fra kaikant, med gulvnivå på kote 2,0 moh for å tilpasses eksisterende kai og logistikk. Parkeringsareal for 15 biler er etablert på tomten. Bygget er dimensjonert for 50 års brukstid og plassert i sikkerhetsklasse F2. Det er gitt dispensasjoner for høydeplassering, parkeringsdekning og byggegrenser. Teknisk plan for vann og avløp er godkjent, og det foreligger tillatelse etter forurensningsloven for krabbeoppfôringsanlegget.

Produkter og materialer

Dører Ytterdører

Antall: 2

Dører til vanninntak og vannbehandling rom

Ytterdører til tekniske rom

Vinduer Ingen vinduer

Antall: 0

Ingen vinduer i bygget

Tak Flatt tak

🧱 Takmembran

Flatt tak med gesimshøyde 6 m over terreng, mulighet for solcellepaneler montert bak gesims

Tak med membran og mulighet for solcellepaneler

Brannvern Brannseksjon og brannprosjektering

Brannklasse 1, risikoklasse 2, tiltaksklasse 1, 1 brannseksjon

Branntekniske tiltak og prosjektering

Annet Pumpe-kum under terreng

🧱 Betong

Antall: 1

Pumpe-kum for sjøvannsinntak under terreng i sørvestre hjørne

Teknisk installasjon for vanninntak

Fasade Betong-sandwichelementer

🧱 Betong, sandwichpanel

Fasadekledning i lys grå eller hvit farge, robust og holdbar

Fasadeelementer for industribyggets yttervegger

Elektro Nettstasjon/trafo

Antall: 1

Frittstående trafostasjon med gesimshøyde ca. 5,35 m, plassert minimum 4 m fra VA-ledninger

Elektrisk nettstasjon for forsyning

Isolasjon Bygningsisolasjon

Isolasjon som ikke trekker til seg vann, tilpasset temperatur under 15 grader

Isolasjon i vegger og gulv for temperaturkontroll

Grunnarbeid Tomtearbeid og fundamentering

Grunnarbeid for industribygg, inkludert fundamentering og utstikking

Grunnarbeid og fundamentering for bygg og tekniske installasjoner

Parkering Asfalt parkeringsplass

🧱 Asfalt

Antall: 15

Parkeringsareal for 15 biler på tomten, areal ca. 188 m²

Parkeringsplasser for ansatte og besøkende

VVS Vanninntak og vannbehandling

Pumpe-kum under terreng for sjøvannsinntak, vannbehandlingsanlegg og renseanlegg

Tekniske installasjoner for vannbehandling

Betong Fundamenter og yttervegger

🧱 Betong

Fundamenter, gulv og yttervegger i betong for å tåle sjøvannsinntrengning

Betongkonstruksjoner for robust bygg

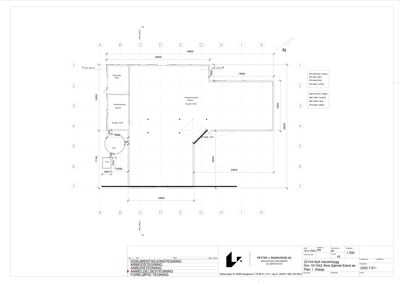
Plantegning

Industribygget 1,224.0 m²

Etasje 1 1,224.0 m²

Rom Areal Vinduer Dører
Vanninntak 101 52.0 m² 0 1
Vannbehandling 102 63.5 m² 0 1
Tank 103 100.0 m² 0 0
Trafo 104 28.0 m² 0 0
Produksjonslokale 105 1,043.0 m² 0 0

Hendelser

14.04.2026 Tillatelsen er utgått, sak avsluttes - Nytt industribygg, krabbefabrik - gnr. 15, bnr. 1042 - Årabrotholmen
14.04.2023 Gnr. 15, bnr. 1042 - Svar på spørsmål om manglende nabovarsel
13.04.2023 Gnr. 15, bnr. 1042 - Spørsmål om manglende nabovarsel
20.02.2023 Vedtak om rammetillatelse - Nytt industribygg - krabbefabrikk, tank og trafo - gnr. 15 bnr. 1042 - Årabrotholmen 13
14.02.2023 Gnr. 15, bnr. 1042 - Søknad om rammetillatelse
18.01.2023 Gnr. 15, bnr. 1042 - Nytt industribygg - krabbefabrikk, tank og trafo - Årabrotholmen 13