NewConstruction Igangsettingstillatelse Naeringsbygg

Nytt næringsbygg med mesanin på Gamle Hobølvei 13, Vestby

📍 Gamle Hobølvei 13 , 1550 HØLEN

Nøkkelinfo

Sakstype
Nybygg
Bygningstype
Naeringsbygg
Bruksareal
1,108 m²
Kommune
Vestby
Fylke
Akershus
Gnr / Bnr
116 / 10
Saksnummer
25/03980
Fase
Igangsettingstillatelse

Om byggesaken

Nytt næringsbygg i to etasjer med mesanin oppføres på Gamle Hobølvei 13 i Vestby kommune. Bygget har et bebygd areal (BYA) på 790 m² og et bruksareal (BRA) på 1005,2 m², med produksjonshall, kontor, treningsrom, konferanserom og vaktmesterleilighet. Bygget har flatt betongtak og fasader i betong med grå farge. Høyden på bygget er ca. 8,8 m i gesims og 9,63 m i møne. Bygget inneholder tekniske rom, toaletter, dusjrom, løfteplattform og trapper. Det er etablert parkeringsplasser og tilknytning til privat vann- og avløpsanlegg. Overvann håndteres lokalt med regnbed/vadigrøfter. Tiltaket har fått dispensasjon for mindre overskridelser i utnyttelsesgrad og høyder, samt dispensasjon fra plikt til tilfluktsrom. Arbeidstilsynet har gitt samtykke for arbeidsmiljøet. Igangsettingstillatelse er gitt, og byggeprosessen kan starte.

Produkter og materialer

Gulv Industri- og kontorgulv

Gulv i produksjonshall, kontor og leilighet

Slitesterke gulv for næringsbygg

Tak Flatt tak

🧱 Betong

Flatt betongtak med gesimshøyde 8,8 m og mønehøyde 9,63 m

Tak med flatt betongdekke

Vinduer Fasadevindu

Antall: 43

Vinduer fordelt på fasader, totalt 43 stk

Vinduer i fasader for kontor, leilighet og fellesarealer

Dører Ytterdører og garasjeporter

Antall: 7

Ytterdører og garasjeporter i fasader

Dører for inngang, tekniske rom og garasjeporter

Betong Plasstøpte betongkonstruksjoner

🧱 Betong

Bærende betongkonstruksjoner for produksjonshall og øvrige deler

Betongkonstruksjoner for bærekraftig og stabilt bygg

VVS Varme- og kuldeinstallasjoner

Varme- og kuldeinstallasjoner for bygget

Oppvarming og kjøling av næringsbygget

VVS Sanitærinstallasjoner

Sanitærinstallasjoner innvendig, inkludert toaletter, dusjrom og vaskerom

VVS-installasjoner for sanitær og vannforsyning

Elektro Brannalarmanlegg og ledesystem

Brannalarmanlegg og høytsittende ledesystem

Brannsikkerhetssystemer

Grunnarbeid VA-anlegg og overvannshåndtering

Tilknytning til privat vann- og avløpsanlegg, etablering av brannvannstank, regnbed/vadigrøfter for overvann

Grunnarbeid for vann, avløp og overvannshåndtering

Maling Innvendig maling og overflater

Innvendige overflater i produksjonshall, kontor og leilighet

Maling og overflatebehandling

Fasade Betongfasade

🧱 Betong

Fasader i betong med grå farge, flatt tak

Fasadeelementer i betong for hele bygget

Annet Parkering og utearealer

Opparbeidelse av parkeringsplasser og utearealer i henhold til reguleringsplan

Utearealer og parkeringsplasser

Ventilasjon Ventilasjons- og klimainstallasjoner

Ventilasjon og klimaanlegg for produksjonshall og kontor

Luftbehandling og inneklima

Tømrer Sandwichelementer

🧱 Tre og isolasjon

Montering av trekonstruksjoner og sandwichelementer

Tømrerarbeid for vegger og tak i produksjonshall

Trapper Innvendig trapp

Antall: 1

Innvendig trapp mellom etasjer

Trapp for intern kommunikasjon i bygget

Løfteinnretninger Løfteplattform

Antall: 1

Løfteplattform for tilgjengelighet til alle nivåer

Løfteinnretning for funksjonshemmede

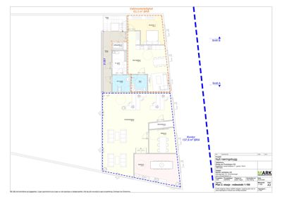
Plantegning

Næringsbygg 1,108.5 m²

Etasje 1 861.3 m²

Rom Areal Vinduer Dører
Produksjonshall 101 823.8 m² 0 0
Teknisk rom 102 15.0 m² 0 1
Toalett 103 4.5 m² 0 1
Dusjrom 104 3.0 m² 0 1

Etasje 2 247.2 m²

Rom Areal Vinduer Dører
Kontor 201 137.9 m² 2 1
Vaktmesterleilighet 202 63.3 m² 2 1
Gang 203 0.0 m² 0 0
Toalett 204 0.0 m² 0 0
Bad 205 0.0 m² 0 0
Kjøkken 206 0.0 m² 0 0
Stue 207 0.0 m² 0 0
Sove 1 208 0.0 m² 0 0
Sove 2 209 0.0 m² 0 0
Bad 210 0.0 m² 0 0
Vaskerom 211 0.0 m² 0 0
Trapp 212 0.0 m² 0 0

Fasader

Næringsbygg

Nord
Materiale
Betong
Taktype
Flatt tak
Vinduer
16
Dører
1
Synlige etasjer
1
Sør
Materiale
Betong
Taktype
Flatt tak
Vinduer
10
Dører
1
Synlige etasjer
1
Øst
Materiale
Betong
Taktype
Flatt tak
Høyde
8.7 m
Vinduer
10
Dører
1
Synlige etasjer
2
Vest
Materiale
Betong
Taktype
Flatt tak
Høyde
8.7 m
Vinduer
7
Dører
1
Synlige etasjer
2

Hendelser

31.03.2026 25/03980-10 Igangsettingstillatelse - 116/10/0/0 - Gamle Hobølvei 13 - Oppføring av næringsbygg
26.03.2026 25/03980-9 Søknad om igangsettingstillatelse - 116/10/0/0 - Gamle Hobølvei 13 - Oppføring av næringsbygg
15.01.2026 25/03980-7 Rammetillatelse med dispensasjon - 116/10/0/0 - Gamle Hobølvei 13 - Oppføring av næringsbygg
06.01.2026 25/03980-6 Supplerende opplysninger - Plantegning - 116/10/0/0 - Gamle Hobølvei 13 - Oppføring av næringsbygg
10.12.2025 25/03980-5 Supplering av søknad - 116/10/0/0 - Gamle Hobølvei 13 - Oppføring av næringsbygg
09.12.2025 25/03980-4 Varsel om avslag - 116/10/0/0 - Gamle Hobølvei 13 - Oppføring av næringsbygg
05.11.2025 25/03980-2 Arbeidstilsynet innvilger søknaden om samtykke - 116/10/0/0 - Gamle Hobølvei 13 - Oppføring av næringsbygg
05.11.2025 25/03980-1 Søknad om rammetillatelse - 116/10/0/0 - Gamle Hobølvei 13 - Oppføring av næringsbygg