NewConstruction UnderBehandling Naeringsbygg

Nytt forretningsbygg med riving i Graftåsvegen 5-11, Ålen

📍 Graftåsvegen 11 , 7380 ÅLEN

Nøkkelinfo

Sakstype
Nybygg
Bygningstype
Naeringsbygg
Bruksareal
1,235 m²
Kommune
Holtålen
Fylke
Trøndelag - Trööndelage
Gnr / Bnr
26 / 20
Saksnummer
2025/1412
Fase
Under behandling

Om byggesaken

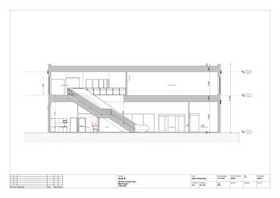
Nytt forretningsbygg i to etasjer oppføres på eiendommene Gnr 26 Bnr 20 m.fl. i Ålen sentrum, med riving av eksisterende butikksenter. Bygget skal inneholde dagligvarebutikk i 1. etasje, samt bibliotek, kafé og utleielokaler i 2. etasje. Bygget har flatt tak og trekledning, med et samlet areal på ca. 1235 m² fordelt på to etasjer. Parkeringsarealer, gang- og sykkelveier og grøntarealer omdisponeres i forhold til reguleringsplanen. Gulvnivå i 1. etasje planlegges på kote 374,2 moh, noe lavere enn anbefalt flomsikkerhetsnivå. Det søkes dispensasjon fra flere reguleringsbestemmelser, inkludert byggegrense og takform. Prosjektet krever dokumentasjon av flomsikkerhet før tillatelse kan gis.

Produkter og materialer

Rekkverk Rømningstrapper og ramper

Rømningstrapper og ramper med rekkverk iht. forskrift

Sikkerhetsrekkverk på rømningstrapper og ramper

VVS Sanitærinstallasjoner og varme/kulde

Sanitærinstallasjoner, varme- og kuldeinstallasjoner iht. ansvarlig prosjektering

VVS-installasjoner for nytt forretningsbygg

Grunnarbeid Terrengarbeid og fundamentering

Terrengtilpasning i flomsone, fundamentering iht. sikkerhetsklasse F2

Grunnarbeid og fundamentering for nytt bygg i flomsone

Fasade Trekledning

🧱 Tre

Fasader i tre med flatt tak

Fasadebekledning i tre for nytt forretningsbygg

Terrasse Utearealer og gangveier

Omlegging av gang- og sykkelveier, parkeringsarealer og grøntarealer

Utomhusanlegg med gangveier, parkering og grøntarealer

Tak Flatt tak

Flatt tak, dispensasjon fra saltak i reguleringsplan

Taktekking for nytt forretningsbygg med flatt tak

Dører Ytterdører og rømningsdører

Antall: 5

Låsbare dører, rømningsdører med min. fri bredde 1,16 m

Ytterdører og rømningsdører i bygget

Grunnarbeid Riving og miljøsanering

Riving av eksisterende butikksenter på tomta

Riving av eksisterende bygg før nybygg

Trapper Innvendig trapp og rulletrapp

Antall: 3

Innvendig trapp, rulletrapp i 1. og 2. etasje

Trapper for intern kommunikasjon i bygget

Elektro Strømfordeling og belysning

Strømfordeling, belysning og elbil-lading i parkeringsareal

Elektroinstallasjoner for bygget og uteområder

Gulv Betong og overflatebehandling

Gulv på kote 374,2 moh, tilpasset flomsone

Gulv i 1. etasje med flomsikkerhetsvurdering

Ventilasjon Ventilasjons- og klimainstallasjoner

Ventilasjons- og klimainstallasjoner iht. ansvarlig prosjektering

Ventilasjon og klima for nytt forretningsbygg

Vinduer Fasadevindu

🧱 Tre

Antall: 32

Vinduer som kan åpnes og skyves til siden, fordelt på fasader

Vinduer i fasader for dagslys og ventilasjon

Plantegning

Enebolig 1,235.4 m²

Etasje 2 650.8 m²

Rom Areal Vinduer Dører
Utegang 1 U1 89.8 m² 2 1
Utegang 2 U2 40.5 m² 1 1
Gang Gang 23.2 m² 0 4
Trapp Trapp 11.8 m² 0 0
Hus Hus 4.4 m² 0 0
Korridor Korridor 67.8 m² 1 2
Lager Lager 9.0 m² 0 1
Korridor Korridor 68.5 m² 0 2
Utegang 3 Utegang 3 104.4 m² 1 1
Innredet rom Innredet rom 16.3 m² 0 1
Innredet rom Innredet rom 16.3 m² 0 1
Badkar BK 8.2 m² 0 1
WC WC 5.2 m² 0 1
Dusj Dusj 5.4 m² 0 1
WC WC 5.2 m² 0 1
Dusj Dusj 5.4 m² 0 1
Rommet smelte Rommet smelte 7.6 m² 0 2
Dør Dør 5.3 m² 0 1
Utegang 4 Utegang 4 652.9 m² 3 0
Korridor Korridor 11.7 m² 0 1
Spisestue Spisestue 13.7 m² 0 1
Kjøkken Kjøkken 11.7 m² 0 1
Utegang 5 Utegang 5 78.8 m² 2 0
Innredet rom Innredet rom 51.1 m² 0 1
Utegang 6 Utegang 6 328.4 m² 2 0
Utegang 1 U01 89.8 m² 0 2
Utegang 2 U02 46.5 m² 0 1
Utegang 3 U03 328.4 m² 0 1
Utegang 4 U04 650.9 m² 0 0
Utegang 5 U05 104.4 m² 0 2
HGW HGW 5.2 m² 0 1
Kontor Kontor 11.7 m² 0 1
Spisestue/kjøkken Spisestue/kjøkken 13.7 m² 0 1

Etasje 1 584.6 m²

Rom Areal Vinduer Dører
Stue 101 32.0 m² 1 1
Kjøkken 102 46.8 m² 0 1
Spisestue 103 42.9 m² 1 1
Gang 104 8.2 m² 0 1
Bad 105 6.4 m² 0 1
Toalett 106 4.4 m² 0 1
Vaskerom 107 8.2 m² 0 1
Kontor 108 7.7 m² 1 1
Gang 109 13.8 m² 0 2
Kjøkken F/G 110 14.3 m² 0 1
Telefonrom 111 17.5 m² 0 1
Lager 112 99.0 m² 0 1
Fryserom 113 25.8 m² 0 1
Kontor 114 6.7 m² 0 1
Gang 115 11.8 m² 0 2
Kaldt lager 116 115.4 m² 0 1
Overbygd rampe 117 11.9 m² 0 1
Gard. A 118 6.4 m² 0 1
Gard. B 119 5.4 m² 0 1
BK 120 11.8 m² 0 1
Korridor 121 8.7 m² 0 1
Adgang 122 52.5 m² 0 1
Kaldt lager 123 115.4 m² 0 1
Overbygd rampe 124 11.9 m² 0 0

Fasader

Ny Extra-butikk Ålen

Nord
Materiale
Tre
Taktype
Flatt tak
Vinduer
13
Dører
1
Synlige etasjer
2
Vest
Materiale
Tre
Taktype
Flatt tak
Vinduer
8
Dører
1
Synlige etasjer
2
Sør
Materiale
Tre
Taktype
Flatt tak
Vinduer
11
Dører
2
Synlige etasjer
2

Leietaker

Nord
Materiale
Tre
Vinduer
13
Dører
1
Synlige etasjer
2

Hendelser

08.04.2026 Revidert dispensasjonssøknad - nytt forretningsbygg - GID 26/20
02.12.2025 Fylkeskommunens uttalelse til søknad om dispensasjon - oppføring av nytt forretningsbygg 26/20 - Holtålen kommune
25.11.2025 Foreløpig svar - Rammesøknad nytt forretningsbygg - GID 26/20
20.11.2025 NVEs uttalelse - Høring - Søknad om dispensasjon fra kommuneplanens arealdel - Oppføring av nytt forretningsbygg, GID 26/20, Ålen sentrum - Holtålen kommune
18.11.2025 Uttalelse - søknad om dispensasjon - Holtålen 26/20 - Graftåsvegen 5 - 7 - 9 og 11 - oppføring av nytt forretningsbygg i Ålen sentrum
04.11.2025 Forespørsel om uttalelse - Søknad om dispensasjon - Oppføring av nytt forretningsbygg GID 26/20
30.10.2025 Bekreftelse på mottatt søknad - 26/20 - Nytt bygg - Ikke boligformål over 70 m², riving av hele bygget
30.10.2025 Rammesøknad - Nytt forretningsbygg - Ikke boligformål over 70 m², riving av hele bygget - GID 26/20