NewConstruction UnderBehandling Naeringsbygg

Ny driftsbygning for dyrehold og lager på Høievegen 525

📍 Høievegen 525 , 5563 FØRRESFJORDEN

Nøkkelinfo

Sakstype
Nybygg
Bygningstype
Naeringsbygg
Bruksareal
72 m²
Kommune
Tysvær
Fylke
Rogaland
Gnr / Bnr
68 / 9
Saksnummer
2020/3608
Fase
Under behandling

Om byggesaken

Ny driftsbygning på 72 m² BYA (65 m² BRA) oppføres på eksisterende grunnmur på landbrukseiendom i Høievegen 525. Bygningen skal brukes til sauehold og lager, med en etasje over deler av tidligere grunnmur. Bygget har trekledning og saltak, med enkelte fasader med flatt tak. Det er tre vinduer på øst- og vestfasade, ett vindu og en dør på nordfasade, og ingen vinduer eller dører på sørfasade. Bygningen er tilpasset landbrukseiendommens ressursgrunnlag og naturverdier, og har tilknytning til kommunalt vann og privat avløpsanlegg. Det er krav om ferdigattest før bruk, og det er gjennomført nabovarsling uten merknader.

Produkter og materialer

Dører Ytterdør

Antall: 1

1 dør på nordfasade

Ytterdør for adkomst

Tak Saltak og flatt tak

Saltak på sør, nord og vestfasade, flatt tak på østfasade

Taktekking med saltak og flatt tak på ulike fasader

VVS Vann og avløp

Tilknytning til kommunalt vannverk og privat avløpsanlegg med septiktank og spredegrøfter

Vannforsyning og avløpssystem

Vinduer Fasadevindu

Antall: 7

3 vinduer på østfasade, 3 vinduer på vestfasade, 1 vindu på nordfasade

Fasadevindu for dagslys og ventilasjon

Fasade Trekledning

🧱 Tre

Bygningen har trekledning på alle fasader

Trekledning til utvendige vegger

Garasjeport Garasjeport

Antall: 1

Garasjeport på nordfasade

Garasjeport for kjøretøy eller utstyr

Tømrer Innvendige konstruksjoner

🧱 Tre

Innvendige vegger og konstruksjoner

Elektro Belysning

Kunstig belysning for dyrevelferd iht. forskrift om velferd for småfe § 15

Innvendig elektrisk belysning

Grunnarbeid Eksisterende grunnmur

🧱 Betong

Bygget oppføres på eksisterende grunnmur fra tidligere tiltak

Grunnmur og fundamentering

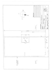
Plantegning

Enebolig 40.2 m²

Etasje 0 40.2 m²

Rom Areal Vinduer Dører
Toalett 001 4.0 m² 0 1
Gang 002 36.2 m² 0 1

Fasader

Driftsbygning

Sør
Materiale
Tre
Taktype
Saltak
Vinduer
0
Dører
0
Synlige etasjer
1
Øst
Materiale
Tre
Taktype
Flatt tak
Vinduer
3
Dører
0
Synlige etasjer
1
Nord
Materiale
Tre
Taktype
Saltak
Vinduer
1
Dører
1
Synlige etasjer
1
Vest
Materiale
Tre
Taktype
Saltak
Vinduer
3
Dører
0
Synlige etasjer
1

Hendelser

15.04.2026 Gbnr 68/9 - Søknad om ferdigattest - dyrehold - lagerbygning - Høievegen 525
10.04.2026 Gbnr 68/9 - Purring på søknad om ferdigattest - Dyrehold - Lagerbygning - Høievegen 525
29.10.2020 Vedtak om tiltak - Dyrehold - Lagerbygning - gnr. 68 bnr. 9 - Høievegen 525
31.08.2020 Tilbakemelding om mangler - Dyrehold - Lagerbyggning - gnr. 68 bnr. 9 - Høievegen 525
27.08.2020 Gbnr 68/9 - Svar på tilbakemelding om mangler - Dyrehold - Lagerbygning
22.07.2020 Gbnr 68/9 - Søknad om tillatelse til tiltak uten ansvarsrett - Dyrehold - Lagebyggning