NewConstruction Rammetillatelse Naeringsbygg

Ny motorvognhall med tekniske installasjoner i Hovemovegen 55, Lillehammer

📍 Hovemovegen 55 , 2624 LILLEHAMMER

Nøkkelinfo

Sakstype
Nybygg
Bygningstype
Naeringsbygg
Bruksareal
2,116 m²
Kommune
Lillehammer
Fylke
Innlandet
Gnr / Bnr
184 / 56
Saksnummer
2025/8532
Fase
Rammetillatelse

Om byggesaken

Ny motorvognhall på totalt 2116,5 m² fordelt på to etasjer bygges på Hovemovegen 55 i Lillehammer. Bygget består av en stor maskinhall på 755,8 m², verkstedrom, tekniske rom, sanitærrom inkludert HC WC, og kompressorrom i første etasje. Taket er flatt og utstyrt med solcelleanlegg på ca. 546 m². Bygget har betongfasader med en gesimshøyde på 10,8 meter. Prosjektet inkluderer også oppføring av oljeutskiller, plassering av en 3000 liters dieseltank med oppsamlingsplate, samt riving av eksisterende plasthall. Det er planlagt fjernvarmetilknytning og omfattende tekniske installasjoner for varme, kulde, sanitær og vannforsyning. Bygget er prosjektert med hensyn til universell utforming og arbeidsmiljøkrav, men det pågår dialog med Arbeidstilsynet om tilpasning av personalrom og garderobeløsninger.

Produkter og materialer

VVS Dieseltank med oppsamlingsplate

🧱 Betong oppsamlingsplate

Antall: 1

Dieseltank på 3000 liter med betong oppsamlingsplate

Lagring av diesel med sikker oppsamling ved lekkasje

VVS Oljeutskiller

Antall: 1

Oljeutskiller med våtvolum 13 m³, integrert sandfang 2,8 m³, serviceavtale for tømming

Oljeutskiller for håndtering av oljeholdig avløpsvann fra verksted

Trapper Trappestige

Antall: 1

Trappestige i teknisk rom og tak

Tilgang til tekniske rom og tak via trappestige

Fasade Betongfasade

🧱 Betong

Betongfasader med flatt tak, gesimshøyde 10,8 m

Fasadeelementer i betong for hele bygget

Elektro Solcelleanlegg

Solcellepaneler på tak med tilhørende vekselretter

Produksjon av elektrisk energi via solcelleanlegg på tak

Ventilasjon Varme- og kuldeinstallasjoner

Varme- og kuldeinstallasjoner prosjektert på overordnet nivå

Ventilasjon og klimatisering av bygget

Annet Oljeutskiller høyde og plassering

Antall: 1

Prosjektering av høyde og plassering av oljeutskiller

Spesifikk prosjektering for oljeutskillerens plassering og høyde

Vinduer Verkstedsvinduer

Antall: 4

2 vinduer i KL verksted, 2 vinduer i LS verksted

Vinduer i verkstedrom for dagslys

Grunnarbeid Grunnarbeid og fundamentering

Grunnarbeid med geoteknisk prosjektering og fundamentering for motorvognhall

Grunnarbeid og fundamentering tilpasset byggegrunn

VVS Sanitærinstallasjoner

Sanitærinstallasjoner for WC, HC WC, garderober og personalrom

Sanitærutstyr og installasjoner i personal- og arbeidsrom

Dører Ytterdører og industridører

Antall: 10

Dører til verksted, tekniske rom, sanitærrom og maskinhall

Dører for adkomst til ulike rom og maskinhall

Gulv Betonggulv i maskinhall og verksteder

🧱 Betong

Betongplate i maskinhall og verkstedområder

Robust gulv for verksted og maskinhall

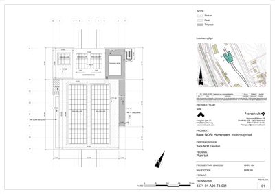
Tak Flatt tak med solcelleanlegg

🧱 Takpapp, sedum, solcellepaneler

Solcelleanlegg på ca. 546 m² fordelt på takflater, sedum og takpapp som taktekking

Taktekking med integrerte solcellepaneler og sedum

Tømrer Bygningskonstruksjon

🧱 Betong og stål

Bygget oppført i betong med stålrammer og tekniske rom

Bygningskonstruksjon for motorvognhall

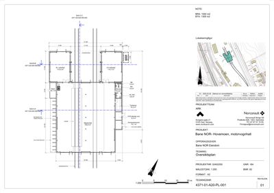
Plantegning

Bane NOR- Hovemoen, motorvognhall 2,116.5 m²

Etasje 1 1,050.0 m²

Rom Areal Vinduer Dører
KL verksted KL verksted 113.3 m² 2 1
LS verksted LS verksted 113.7 m² 2 1
Gass Gass 18.1 m² 0 1
BK BK 1.9 m² 0 1
WC WC 1.8 m² 0 1
Forrom Forrom 6.3 m² 0 1
HC WC HC WC 4.8 m² 0 1
Tavlerom Tavlerom 15.2 m² 0 1
VVS teknisk rom VVS teknisk rom 9.4 m² 0 1
Kompressorrom Kompressorrom 10.1 m² 0 1
Maskinhall Maskinhall 755.8 m² 0 0

Etasje 0 1,066.5 m²

Rom Areal Vinduer Dører
Solceller 001 136.5 m² 0 0
Solceller 002 136.5 m² 0 0
Solceller 003 136.5 m² 0 0
Solceller 004 136.5 m² 0 0
Teknisk rom 005 13.0 m² 0 0
Overdekning 006 153.5 m² 0 0

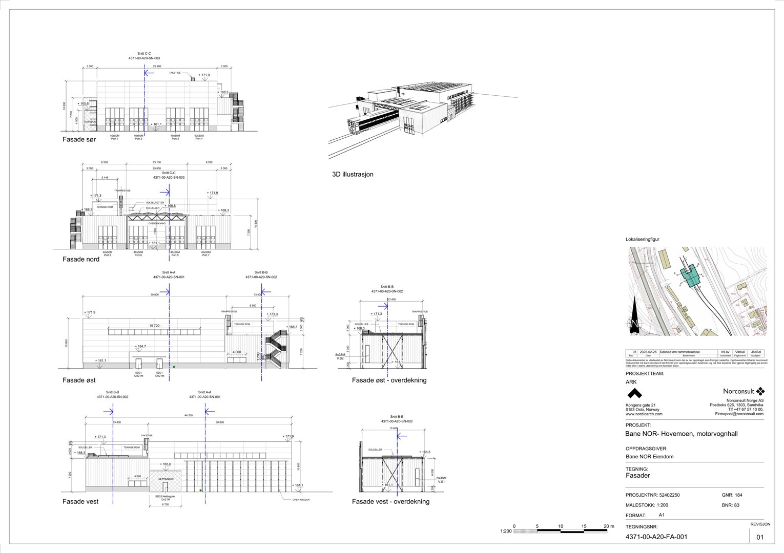
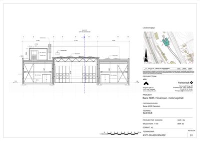
Fasader

Bane NOR- Hovemoen, motorvognhall

Sør
Materiale
Betong
Taktype
Flatt tak
Høyde
10.8 m
Vinduer
0
Dører
0
Synlige etasjer
1
Nord
Materiale
Betong
Taktype
Flatt tak
Høyde
10.8 m
Vinduer
0
Dører
0
Synlige etasjer
1
Øst
Materiale
Betong
Taktype
Flatt tak
Høyde
10.8 m
Vinduer
0
Dører
0
Synlige etasjer
1
Vest
Materiale
Betong
Taktype
Flatt tak
Høyde
10.8 m
Vinduer
0
Dører
0
Synlige etasjer
1

Hendelser

13.04.2026 Innsynskrav innvilget - 2025/8532-11
13.04.2026 Ber om innsyn i 2025/8532-11
10.04.2026 Søknad om endring av tillatelse - Nytt bygg - motorvognhall - eiendom 184/56 - Hovemovegen 55
09.04.2026 Kopi: Etterkontroll – planene oppfyller nå kravene i regelverket - Ny motorvognhall - eiendom 184/56 - Hovemovegen 55
19.03.2026 Kopi: Etterkontroll – planene oppfyller fortsatt ikke kravene i regelverket - Ny motorvognhall - eiendom 184/56 - Hovemovegen 55
11.03.2026 Innsynskrav Godkjent - 2025/8532-7
10.03.2026 Ber om innsyn i 2025/8532-7
03.03.2026 Kopi: Foretatt etterkontroll av planene for tiltaket - Ny motorvognhall - eiendom 184/56 - Hovemovegen 55
27.02.2026 Søknad om rammetillatelse - Ny motorvognhall - eiendom 184/56 - Hovemovegen 55
23.02.2026 Kopi: innvilger søknad om samtykke - Ny verkstedbygning - eiendom 184/56 - Hovemovegen 55
20.10.2025 Fakturagrunnlag - Godkjent tiltak - Ny motorvognhall - eiendom 184/56 - Hovemovegen 55
20.10.2025 Godkjent tiltak - Ny motorvognhall - eiendom 184/56 - Hovemovegen 55
20.10.2025 Fakturagrunnlag - Rammetillatelse - Ny motorvognhall - eiendom 184/56 - Hovemovegen 55