NewConstruction Rammetillatelse Naeringsbygg

Nytt klubbhus og lagerbygg med parkering og flytebrygge på Høyland

📍 Høyland, 20/153 , 4560 VANSE

Nøkkelinfo

Sakstype
Nybygg
Bygningstype
Naeringsbygg
Bruksareal
234 m²
Kommune
Farsund
Fylke
Agder
Gnr / Bnr
20 / 315
Saksnummer
25/02508
Fase
Rammetillatelse

Om byggesaken

Ny en-etasjes bygning for Farsund Kajakklubb med et bebygd areal på 234 m², oppført i tre, tilpasset reguleringsplanens krav. Bygget inneholder klubb- og lagerfunksjoner for kajakkaktiviteter. Det etableres 10 ordinære parkeringsplasser og 1 HC-plass, samt en flytebrygge på 50 m² innenfor regulert badeplass. Bygget har lav byggehøyde og ferdig gulvhøyde tilpasset flomsone. Det opparbeides atkomstvei og parkeringsareal i tråd med kommunens veinormal, med godkjent avkjørsel fra kommunal vei. Tiltaket tilkobles offentlig vann- og avløpsnett, og overvann håndteres på egen eiendom. Prosjektet inkluderer også grunnarbeider, betong, tømrerarbeid, sanitæranlegg og veilysanlegg i henhold til kommunale krav.

Produkter og materialer

Isolasjon Gulvisolasjon

Gulvhøyde tilpasset flomsone, isolasjon iht. TEK17 kapittel 7

Isolasjon for gulv i bygg

Elektro Veilysanlegg

Veilys med LED-armaturer, stålmaster, tennskap og kabelanlegg i henhold til Farsund kommunes veilysnormal

Elektrisk veilysanlegg for atkomstvei og parkeringsplass

Vinduer Fasadevindu

Antall: 6

2 vinduer på nordfasade, 4 vinduer på sørfasade

Fasadevinduer i trebygget

Grunnarbeid Atkomstvei og parkeringsplass

Opparbeidelse av atkomstvei og parkeringsplass med 10 ordinære plasser og 1 HC-plass, i tråd med Farsund kommunes veinormal

Grunnarbeid for vei og parkeringsareal

Tømrer Byggkonstruksjon i tre

🧱 Tre

Tømrerarbeid for oppføring av klubbhus og lagerbygg i tre

Tømrerarbeid for bygg

Maling Utvendig trebeskyttelse

🧱 Maling/Beis

Utvendig maling/beis for trefasade

Overflatebehandling av trefasade

VVS Sanitæranlegg

Sanitæranlegg tilkoblet offentlig vann- og avløpsnett

VVS-installasjoner for bygg

Terrasse Flytebrygge

Antall: 1

Flytebrygge på 50 m² innenfor regulert badeplass

Flytebrygge for kajakkaktiviteter

Dører Ytterdør

Antall: 3

3 dører på nordfasade

Ytterdører til klubbhus og lagerbygg

Fasade Trefasade

🧱 Tre

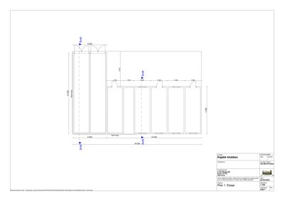
Bygget har trefasade med fasadetegninger datert 02.09.2025

Trepanel for fasade på klubbhus og lagerbygg

Betong Fundament og konstruksjon

🧱 Betong

Betongarbeider for fundamenter og konstruksjon i henhold til prosjektering

Betongarbeid for bygg og infrastruktur

Fasader

Kajakk klubben

Nord
Materiale
Tre
Vinduer
2
Dører
3
Synlige etasjer
1
Sør
Materiale
Tre
Vinduer
4
Dører
0
Synlige etasjer
1

Hendelser

22.04.2026 25/02508-6 Tillatelse til oppføring av nytt klubbhus og lagerbygg for kajakk-aktiviteter, atkomstvei, parkering og flytebrygge, 20/315, Høyland
22.04.2026 25/02508-5 Kopi - Svar på søknad om avkjørsel fra kommunal vei - 20/315, Høyland
12.02.2026 25/02508-4 Manglende avkjøringstillatelse
10.02.2026 25/02508-3 Svar på mangelbrev
26.01.2026 25/02508-2 Mangelbrev
18.12.2025 25/02508-1 Søknad om oppføring av nytt klubbhus og lagerbygg for kajakk aktiviteter med tilhørende parkering, adkomtvei og flytebrygge - 20/315, Høyland