Rendering
3D-visualisering av et toetasjes leilighetsbygg med trapp og balkonger.
1 / 46
NewConstruction
Unknown
Naeringsbygg
Oppføring av modulbygg og nytt bygg med tilhørende tilbygg, carport og parkeringsarealer
📍 Industrivegen, Litldalsvegen, Ringvegen, Vågavegen, Fjellvegen, Nedgardsgate, Eysteingata, Håsenvegen
Nøkkelinfo
- Sakstype
- Nybygg
- Bygningstype
- Naeringsbygg
- Kommune
- Surnadal
- Fylke
- Møre og Romsdal
- Saksnummer
- 19/02359
- Fase
- Unknown
Om byggesaken
Saken omhandler flere nabovarsler knyttet til oppføring av et stort modulbygg (helsetun) samt diverse mindre tiltak som tilbygg, riving og nyoppføring av eneboliger og drivhus i Sunndal kommune.
Fasader
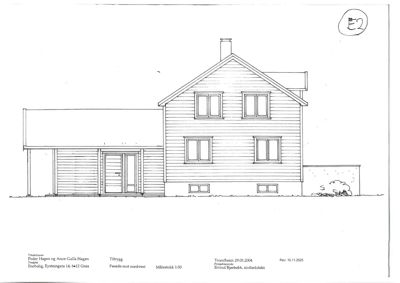
Enebolig
Sør
- Materiale
- Tre
- Taktype
- Saltak
- Takmat.
- Tegl
- Høyde
- 3.7 m
- Mønehøyde
- 5.4 m
- Vinduer
- 2
- Dører
- 1
- Synlige etasjer
- 1
Øst
- Materiale
- Tre
- Taktype
- Saltak
- Takmat.
- Tegl
- Høyde
- 4.5 m
- Mønehøyde
- 6.2 m
- Vinduer
- 3
- Dører
- 1
- Balkonger
- 1
- Synlige etasjer
- 2
Vest
- Materiale
- Tre
- Taktype
- Saltak
- Takmat.
- Tegl
- Høyde
- 4.3 m
- Mønehøyde
- 6.0 m
- Vinduer
- 1
- Dører
- 0
- Balkonger
- 1
- Synlige etasjer
- 1
Nord
- Materiale
- Tre
- Taktype
- Saltak
- Takmat.
- Tegl
- Høyde
- 4.3 m
- Mønehøyde
- 6.0 m
- Vinduer
- 4
- Dører
- 1
- Balkonger
- 1
- Synlige etasjer
- 2
Nordvest
- Materiale
- Tre
- Taktype
- Saltak
- Høyde
- 12.8 m
- Mønehøyde
- 16.4 m
- Vinduer
- 6
- Dører
- 1
- Synlige etasjer
- 2
Nordøst
- Materiale
- Tre
- Taktype
- Saltak
- Høyde
- 12.1 m
- Mønehøyde
- 12.1 m
- Vinduer
- 1
- Dører
- 0
- Synlige etasjer
- 2
Ukjent
- Materiale
- Tre
- Taktype
- Saltak
- Høyde
- 2.9 m
- Vinduer
- 1
- Dører
- 1
- Synlige etasjer
- 1
Sørvest
- Materiale
- Tre
- Taktype
- Saltak
- Høyde
- 12.1 m
- Mønehøyde
- 16.2 m
- Vinduer
- 10
- Dører
- 2
- Balkonger
- 1
- Synlige etasjer
- 3
Sørøst
- Materiale
- Tre
- Taktype
- Saltak
- Høyde
- 12.1 m
- Mønehøyde
- 12.1 m
- Vinduer
- 11
- Dører
- 1
- Synlige etasjer
- 2
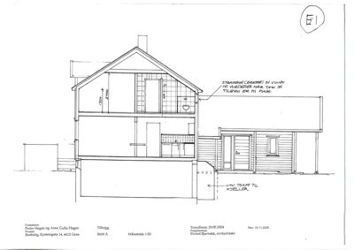
Tilbygg
Ukjent
- Materiale
- Tre
- Taktype
- Flatt tak
- Høyde
- 2.2 m
- Vinduer
- 0
- Dører
- 0
- Synlige etasjer
- 1
Garasje
Ukjent
- Materiale
- Tre
- Taktype
- Saltak
- Vinduer
- 0
- Dører
- 1
- Synlige etasjer
- 1
Hovedbygg
Ukjent
- Materiale
- Tre
- Taktype
- Saltak
- Vinduer
- 5
- Dører
- 2
- Synlige etasjer
- 1
Hendelser
13.04.2026
19/02359-129 53/88 Håsenvegen 57 - nabovarsel for nytt tilbygg - overbygg utestue
27.03.2026
19/02359-127 40/23 Eysteingata 14 - nabovarsel for tilbygg på bolighus
19.03.2026
19/02359-126 51/444 Nedgardsgate 2 - nabovarsel for omdisponering av parkeringsarel ti varelevering og etablering av parkeringsplasser
06.03.2026
19/02359-125 50/119 Fjellvegen 6 - Svar på nabovarsel for oppføring av drivhus
26.02.2026
19/02359-124 50/119 Fjellvegen 6 - nabovarsel for oppføring av drivhus
23.02.2026
19/02359-123 108/27, Vågavegen 29 - nabovarsel om oppføring av enebolig
24.11.2025
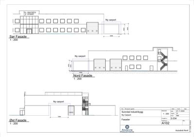
19/02359-122 53/328, Industrivegen 92 - tilbygg
14.11.2025
19/02359-121 50/233, Ringvegen 13, 15, 17, 19 og 21 - nabovarsel om riving og nytt bygg m.m.
06.11.2025
19/02359-120 53/38, Litldalsvegen 40 - etablere leilighet over garasje
28.10.2025
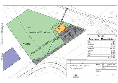
19/02359-119 53/306 Industrivegen - nabovarsel modulbygg