NewConstruction UnderBehandling Naeringsbygg

Nytt næringsbygg med lager og forretning på Lammenes 87, Hvaler

📍 Lammenes 87 , 1680 SKJÆRHALDEN

Nøkkelinfo

Sakstype
Nybygg
Bygningstype
Naeringsbygg
Bruksareal
1,582 m²
Kommune
Hvaler
Fylke
Østfold
Gnr / Bnr
23 / 286
Saksnummer
2024/784
Fase
Under behandling

Om byggesaken

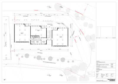
Nytt næringsbygg på Lammenes 87 består av to etasjer med totalt ca. 1582 m² BRA. Første etasje inneholder tre forretningslokaler med samlet areal på ca. 805 m², mens underetasjen inneholder ni lagerenheter og tekniske rom med samlet areal på ca. 776 m². Bygget har saltak med gesimshøyde på 6,3 m og mønehøyde på 8,3 m, og fasader i tre med flatt tak på lagerdelen. Det er etablert utendørs trapp som forbinder de to volumene og etasjene. Utomhusarbeid inkluderer opparbeidelse av vei, parkeringsplasser (16 bilplasser inkl. HC og 16 sykkelplasser), støttemur med fletteverksgjerde og klatreplanter, fordrøyningssone for overvann og beplantning i landskapsvernsonen. Det er etablert vanntank for slokkevann med kapasitet på 50 l/s, plassert i terreng mellom bygget og naboeiendom, med tilhørende pumperom. Bygget er prosjektert med brannkonsept i tiltaksklasse 2, med fulldekkende brannalarmanlegg tilkoblet 110-sentral, branncelleinndeling med EI30 konstruksjoner, og tilfredsstiller krav til brannsikkerhet og universell utforming. Grunnforhold er dokumentert som gode med bart fjell og stabilitet uten kvikkleirefare. Overvann håndteres lokalt med infiltrasjon, fordrøyning og trygge flomveier. Prosjektet har fått rammetillatelse og søknad om igangsettingstillatelse for grunnarbeider er under behandling med nødvendig dokumentasjon og samtykker.

Produkter og materialer

VVS Sanitærinstallasjoner

Sanitærinstallasjoner utført av VARME & BAD AS AVD KIRKØY VVS

Sanitærinstallasjoner for næringsbygget

Parkering Bil- og sykkelparkering

🧱 Asfalt og grus

Antall: 16

16 bilplasser inkl. 2 HC-plasser, 16 sykkelplasser, 5 ladeinfrastruktur plasser, 2 ferdig monterte ladepunkter

Parkering med ladeinfrastruktur for elbil

Gulv Gulvbelegg

🧱 Heltre og parkett

Gulvbelegg med brannklasse Dfl-s1,d0

Gulvbelegg i forretningslokaler

Betong Støttemur

🧱 Betong

Antall: 1

Støttemur i nabogrense med fletteverksgjerde og klatreplanter

Støttemur i betong med fletteverksgjerde og klatreplanter for estetisk skjerming

Tømrer Massivtresøyler

🧱 Tre

Massivtresøyler som bryter opp fasadene i mindre segmenter

Arkitektonisk detaljering med massivtre

Grunnarbeid Utgraving og utfylling

🧱 Løsmasser, stein

Utgraving av løsmasser og utfylling med stein, sprengningsarbeider, grovplanering av vei og parkeringsareal

Grunnarbeider for byggetomten og uteområder

Vinduer Brannmotstand E30

Antall: 10

Vinduer med brannmotstand E30, faste (ikke åpningsbare)

Fasadevindu med brannmotstand E30, faste vinduer

Fasade Stående trekledning

🧱 Tre

Kledning i branncelle som er rømningsvei K210/B-s1,d0 [K1], øvrige K210/D-s2,d0 [K2]

Stående rød trekledning med brannklasse K1 og K2 på fasader

Dører Branncellebegrensende dører EI230Sa

Antall: 7

Dører med brannmotstand EI230Sa, med terskel og tettelister, panikkbeslag ved smalere felt enn 86cm

Branncellebegrensende dører med røyktetthet og panikkbeslag

Grunnarbeid Overvannshåndtering

🧱 Steinsatt bed, vadi, regnbed, permeable flater

Overvann håndteres med infiltrasjon, fordrøyning og trygge flomveier på egen tomt, med klimapåslag 40%

Lokal overvannshåndtering med tre-trinns strategi

VVS Varme- og kuldeinstallasjoner

Varme- og kuldeinstallasjoner utført av VARME & BAD AS AVD KIRKØY VVS

Varme- og kuldeinstallasjoner for bygget

VVS Brannalarmanlegg

Fulldekkende automatisk brannalarmanlegg kategori 2, tilkoblet 110-nødalarmsentral

Brannalarmanlegg med alarmoverføring og forrigling av dører

Rekkverk Rekkverk på støttemur og uteområder

🧱 Metall

Fletteverksgjerde på støttemur, 1 meter over mur, med klatreplanter

Sikkerhetsrekkverk på støttemur

VVS Brannvannstank og pumperom

🧱 Betong og teknisk utstyr

Antall: 1

Vanntank for slokkevann med kapasitet 50 l/s, volum ca. 180 m3, plassert i terreng mellom bygget og naboeiendom, med tilhørende pumperom

Vanntank og pumperom for brannslokking

Maling Innvendige overflater

Overflater på vegger og tak i brannceller med brannklasse B-s1,d0 eller D-s2,d0

Brannklassifiserte innvendige overflater

Ventilasjon Ventilasjonsanlegg

🧱 Ubrennbare materialer

Ventilasjonsanlegg utført i ubrennbare materialer med brannspjeld og branntetting i gjennomføringer

Ventilasjon med brannsikring og røyksikring

Tak Saltak og flatt tak

🧱 Teglfargede metallplater

Saltak med gesimshøyde 6.3m og mønehøyde 8.3m, flatt tak på lagerdel, taktekking klasse BROOF(t2) [Ta]

Teglfargede metallplater som taktekking med brannklasse BROOF(t2)

Trapper Utendørs trapp

Antall: 1

Utendørs trapp som forbinder to volumer og etasjer

Utendørs trapp mellom forretningsbyggets to volumer og etasjer

Plantegning

Forretningsbygg og lager 2,375.1 m²

Etasje 1 805.0 m²

Rom Areal Vinduer Dører
Forretning 101 539.8 m² 0 0
Forretning 102 265.2 m² 0 0

Etasje 0 1,570.1 m²

Rom Areal Vinduer Dører
Lager 001 483.8 m² 0 0
Lager 002 236.7 m² 0 0
Teknisk 003 44.6 m² 0 0

Forretningsbygg 542.3 m²

Etasje 1 542.3 m²

Rom Areal Vinduer Dører
Forretningsareal 1 182.0 m² 0 1
Forretningsareal 2 150.0 m² 0 1
Forretningsareal 3 262.7 m² 0 1
Gang Gang 19.1 m² 0 2
Garderobe Garderobe 12.2 m² 0 1
Møterom Møterom 26.0 m² 0 1
Spis./Kjøkken Spis./Kjøkken 31.5 m² 0 1
WC WC 2.8 m² 0 1
WC WC 2.4 m² 0 1
WC WC 2.4 m² 0 1
Håndvask HCWC 7.4 m² 0 1
Bryterrom BK 4.0 m² 0 1

Fasader

Forretningsbygg og lager

Sør
Taktype
Saltak
Høyde
6.3 m
Mønehøyde
8.3 m
Vinduer
0
Dører
0
Synlige etasjer
1
Øst
Materiale
Tre
Taktype
Flatt tak
Høyde
6.3 m
Mønehøyde
8.3 m
Vinduer
10
Dører
1
Synlige etasjer
1

Hendelser

17.04.2026 Supplering av etterspurt dokumentasjon - søknad om igangsettingstillatelse - 23/286 - Lammenes 87
16.04.2026 Innvilget søknad om samtykke - rammetillatelse - nytt næringsbygg - 23/286 - Lammenes 87
22.12.2025 Supplert dokumentasjon - søknad om igangsettingstillatelse - 23/286 - Lammenes 87
02.12.2025 Ber om dokumentasjon - søknad om igangsettingstillatelse - 23/286 - Lammenes 87
07.11.2025 Søknad om igangsettingstillatelse - oppføring av nytt næringsbygg - 23/283 - Lammenes 87
09.10.2025 Rammetillatelse - oppføring av nytt næringsbygg - 23/286 - Lammenes 87
16.07.2025 Oversendelse av vedtak - rammetillatelse - oppføring av nytt næringsbygg - 23/286 - Lammenes 87
08.07.2025 Supplerende dokumentasjon - støttemur oppriss og illustrasjoner - nytt næringsbygg - 23/286 - Lammenes 87
08.07.2025 Supplerende dokumentasjon - nytt næringsbygg - 23/286 - Lammenes 87
08.07.2025 Supplerende dokumentasjon - nytt næringsbygg - 23/286 - Lammenes 87
21.03.2025 Brannvesenets uttalelse til revidert brannkonsept - nytt næringsbygg - 23/286 - Lammenes 87
21.03.2025 Supplering til rammesøknad - nabosamtykker - nytt næringsbygg - 23/286 - Lammenes 87
17.03.2025 Oppdatert brannkonsept - 23/286 - Lammenes 87
17.03.2025 Supplering til rammesøknad - nytt næringsbygg - 23/286 - Lammenes 87
27.02.2025 Orientering om ny revidering av brannkonsept og uttalelse fra brannvesenet - 23/286 - Lammenes 87
25.02.2025 Tilbakemelding på brannkonsept - innspill fra brannvesenet - søknad om rammetillatelse for oppføring av nytt næringsbygg - 23/286 - Lammenes 87, Skjærhalden
31.01.2025 Supplering av søknaden - revidert brannrapport - 23/286 - Lammenes 87, 1680 Skjærhalden
30.01.2025 Ber om uttalelse til revidert brannkonsept - 23/286 - Lammenes 87
14.01.2025 Innspill fra brannvesenet - søknad om rammetillatelse - oppføring av næringsbygg - 23/286 - Lammenes 87, Skjærhalden
13.01.2025 Tilbakemelding på brannkonsept - innspill fra brannvesenet - søknad om rammetillatelse - oppføring av nytt næringsbygg - 23/286 - Lammenes 87, Skjærhalden
02.12.2024 Status og mangler - nytt Næringsbygg - 23/286 - Lammenes 87
08.10.2024 Ber om kommentar/uttalelse på overvannshåndtering - oppføring av nytt næringsbygg - 23/286 - Lammenes 87, Skjærhalden
01.10.2024 Ber om tilbakemelding på brannkonsept til søknad om rammetillatelse for oppføring av nytt næringsbygg - 23/286 - Lammenes 87, Skjærhalden
01.10.2024 Til opplysning - brannkonsept til rammesøknad er oversendt øvrig myndighet - 23/286 - Lammenes 87
24.09.2024 Søknad om rammetillatelse - 23/286 - Lammenes 87